|
|
0.00 |
|
|
|
|
|
|
УМВ |
|
|
|
|
|
|
|
1 |
|
|
|
об |
|
|
2 |
|
dw |
|
h |
|
|
|
|
|
|
hм |
|
|
3 |
hм /2 |
|
|
|
|
hм /2 |
|
|
||
|
|
|
|
|
|
|
|
|
|
|
|
3 м |
|
h1 |
Слой I |
R1 |
|
|
|
|
|
Е1 |
|
|
|
|
|
|
|
4 |
|
|
|
|
|
|
|
|
|
|
|
h2 |
|
R2 |
|
|
|
|
|
|
|
|
|
|
|
|
Слой II |
Е2 |
|
|
|
|
|
|
|
|
|
|
|
|
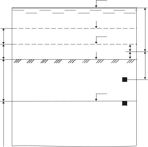
Рис.2. Геологический разрез по оси опоры |
|
|
|
||
|
1– отметка дна реки до размыва; 2– отметка уровня |
|
|
|||
|
общего размыва; 3– отметка уровня местного размыва; |
|
|
|||
|
4– отметка кровли второго слоя грунта |
|
|
|
|
|
Физические и механические характеристики грунтов основания приведе- |
||||||
ны в таблице 3. Для каждого слоя грунта указано минимальное количество |
||||||
независимых физических характеристик. Так, для несвязного грунта /песок/ |
||||||
даны: наименование, плотность частиц грунта s |
природная влажность w в |
|||||
долях единицы. Для пылеватого - глинистого грунта приведены: плотность |
||||||
частиц грунта s , природная влажность w, влажность на границе текучести |
||||||
СибАДИ |
||||||
wL и влажность на границе раскатывания wр . Поскольку все слои грунта за- |
||||||
легают ниже горизонта вод, их следует считать двухфазными со степенью |
||||||
влажности Sr=1. |
|
|
|
|
|
|
Из механических характеристик заданы модуль деформации грунта E и |
||||||
расчетные параметры прочности грунта на сдвиг, используемые в расчетах |
||||||
по первой группе предельных состояний: угол внутреннего трения I |
и |
|||||
удельное сцепление сI . |
|
|
|
|
|
|
6
Таблица 3
Физические и механические характеристики грунтов основания
№ варианта |
слоя№ грунта |
Грунт |
s, |
W |
WL |
Wp |
E, |
I , |
СI, |
|
|
т/м3 |
|
|
|
МПа |
град |
кПа |
|
|
|
|
|
|
|
|
|
|
|
1 |
I |
Суглинок |
2,70 |
0,29 |
0,38 |
0,22 |
4,5 |
22 |
13 |
|
II |
Глина |
2,76 |
0,32 |
0,50 |
0,26 |
14,0 |
12 |
30 |
2 |
I |
Супесь |
2,68 |
0,24 |
0,27 |
0,21 |
8,7 |
26 |
8 |
|
II |
Глина |
2,75 |
0,28 |
0,44 |
0,22 |
18,0 |
14 |
20 |
3 |
I |
Песок мелк й |
2,64 |
0,26 |
- |
- |
9,0 |
30 |
- |
|
II |
Песок средне- |
|
|
|
|
|
|
|
|
|
зерн стый |
2,65 |
0,22 |
- |
- |
27,0 |
34 |
- |
4 |
I |
Песок мелк й |
2,65 |
0,25 |
- |
- |
8,3 |
30 |
- |
|
II |
Гл на |
2,75 |
0,29 |
0,46 |
0,22 |
21,0 |
18 |
35 |
5 |
I |
Песок пылеватый |
2,64 |
0,30 |
- |
- |
7,5 |
28 |
- |
|
II |
Песок средне- |
|
|
|
|
|
|
|
|
|
зерн стый |
2,66 |
0,21 |
- |
- |
25,0 |
32 |
- |
6 |
I |
Сугл нок |
2,71 |
0,29 |
0,39 |
0,22 |
4,4 |
20 |
10 |
|
II |
Гл на |
2,75 |
0,31 |
0,48 |
0,21 |
8,0 |
12 |
20 |
7 |
I |
Сугл нок |
2,71 |
0,28 |
0,36 |
0,21 |
6,5 |
20 |
12 |
|
II |
Гл на |
2,74 |
0,30 |
0,44 |
0,26 |
18,0 |
16 |
36 |
8 |
I |
Сугл нок |
2,71 |
0,29 |
0,38 |
0,22 |
4,5 |
22 |
8 |
|
II |
Глина |
2,74 |
0,37 |
0,47 |
0,27 |
12,0 |
16 |
22 |
9 |
I |
Суглинок |
2,71 |
0,29 |
0,37 |
0,22 |
7,5 |
22 |
15 |
|
II |
Глина |
2,75 |
0,25 |
0,41 |
0,23 |
17,0 |
16 |
33 |
10 |
I |
Глина |
2,74 |
0,33 |
0,43 |
0,25 |
8,9 |
14 |
23 |
|
II |
Глина |
2,75 |
0,31 |
0,47 |
0,27 |
16,5 |
16 |
37 |
2. ПРОЕКТИРОВ НИЕ ФУН АМЕНТА
По исходным |
физическим характеристикам грунтов |
основания |
||
(табл.2). рассчитываются их производные характеристики. |
|
|||
Для глинистого грунта вычисляют: |
|
|||
Сибкоэффициент пористостиАДИ |
||||
е s W / w , |
|
(1) |
||
где w – плотность воды, принимаемая равной 1 т/м3; |
|
|||
плотность грунта, т/м3 |
|
|||
|
(1 W ) s |
; |
(2) |
|
1 e |
||||
|
|
|
||
7
|
удельный вес грунта, кН/м3 |
|
|||||
|
g , |
|
|
|
(3) |
||
где g= 9,81 м/с2 -ускорение свободного падения; |
|
||||||
удельный вес частиц грунта, кН/м3 |
|
||||||
|
s s g ; |
|
(4) |
||||
|
плотность грунта во взвешенном состоянии, т/м3 |
|
|||||
|
в |
( s |
w ) |
; |
(5) |
||
|
|
1 |
e |
|
|||
|
|
|
|
||||
удельный вес грунта во взвешенном состоянии, кН/м3 |
|
||||||
|
в вg ; |
|
(6) |
||||
|
ч сло пласт чности |
|
|||||
|
J p WL |
W p ; |
|
(7) |
|||
|
показатель текучести |
|
|||||
|
JL |
W Wp |
|
(8) |
|||
|
|
J p |
|
|
|
||
|
|
|
|
|
|
|
|
На основании ГОСТ 25100 [2] по найденному значению Jp |
уточняют |
||||||
разновидность глинистого грунта (супесь, суглинок, глина) (прил.1 табл. |
|||||||
П.1), а по значению JL - его консистенцию (прил.1 табл. П.2). |
по выра- |
||||||
Для песчаного грунта вычисляют: коэффициент пористости е |
|||||||
жению (1); плотность грунта по выражению (2); удельный вес грунта по |
|||||||
Свыражениюиб(3); удельный АДИвес частиц грунта s по выражению (4); удельный вес грунта во взвешенном состоянии в по выражению (6).
Разновидность песков по степени плотности устанавливается в зависимости от его коэффициента пористости е по ГОСТ 25100 [2] (прил.1. табл. П.3).
Результаты расчетов необходимо свести в таблицу 4.
8
|
|
|
|
Физические характеристики грунтов основания |
Таблица 4 |
|||||||
|
|
|
|
|
||||||||
|
|
|
|
|
|
|
Удельныйвес грунта взвешенномво |
состоянии |
|
|
|
|
|
№слоя основания |
Коэффициент пористостие |
Плотностьгрунта м/т, |
Удельныйвес грунта м/кН, |
Удельныйвес частиц грунта |
Плотностьгрунта взвешенномво состоянии |
пластичностиЧисло J |
Показатель текучестиJ |
|
|
||
|
|
|
|
|
|
3 |
|
3 |
|
|
|
|
|
|
|
|
|
м |
м / т , |
|
м / кН , |
|
|
|
Разновидность |
|
|
|
|
|
3 |
|
|
|
|
|
|
|
|
|
|
|
|
/ кН |
в |
|
в |
p |
L |
|
грунта |
|
|
|
|
|
, |
|
|
|
|
|
|
|
|
|
|
|
|
s |
|
|
|
|
|
|
|
|
|
СибАДИ |
|
|
||||||||
|
|
|
|
3 |
|
|
|
|
|
|
|
|
|
|
3 |
|
|
|
|
|
|
|
|
|
|
|
1 |
|
|
|
|
|
|
|
|
|
|
|
|
2 |
|
|
|
|
|
|
|
|
|
|
|
|
3 |
|
|
|
|
|
|
|
|
|
|
|
2.1.2. Оценка несущей способности и сжимаемости грунтов
Несущую спосо ность грунтов оценивают послойно сверху вниз по геологическому разрезу по оси проектируемого фундамента (рис.2). Для каждого слоя нескального грунта определяют расчетное сопротивление грунта осе-
вому сжат ю R по формуле [3]: |
|
Ri = 1,7{ R0i [ 1 + k1 ( bф - 2 )] + k2 ( di - 3 )}+14,7dw, |
(9) |
где R0i – условное сопротивление грунта, кПа, принимаемое по таб.1-3 в приложении 24 [3] в зависимости от вида грунта и его физических характеристик, установленных выше в п.2.1.1 (прил.2.3);
bф – ширина (меньшая сторона) подошвы фундамента, м, принимаемая при предварительной оценке грунтов основания равной минимальной ширине подошвы фундамента, м, bф= b0+2Су , где Су=0,2…0,5 м (при ширине более 6 м принимается bф =6 м);
d– глубина рассматриваемой точки, в которой определяется R , м, принимаемая от дна реки у опоры после понижения его уровня на глубину общего половину местного размыва грунта (см. рис.2);
k1 и k2 – коэффициенты, принимаемые по прил.4;
– осредненное по слоям расчетное значение удельного веса грунта, расположенного выше подошвы фундамента, вычисленное без учета взвешивающего действия воды; допускается принимать = 19,62 кН/м3;
Для глин и суглинков в основаниях фундаментов мостов, расположенных в пределах постоянных водотоков, R следует повышать на величину, равную 14,7dw , кПа, где dw – глубина воды, м, от уровня меженных вод до уровня от которого отсчитывается глубина d (см. рис.2).
Для первого слоя грунта значение R определяют на глубине d=3 м, а для второго слоя – на уровне его кровли.
9
Грунты, у которых R не нормируется (отсутствуют в таблицах норм), относятся к категории малопрочных (слабых). Они, как правило, не могут служить естественными основаниями фундаментов опор мостов.
После определения R их численные значения на соответствующих глубинах показывают на геологическом разрезе (см. рис.2). Здесь же приводят значения модулей деформации грунтов Е . Для малопрочных грунтов на раз-
резе указывают: R не нормируетcя. |
|
|
С |
полученных значений |
в тексте пояснительной за- |
На основе анализа |
||
писки должно быть сделано краткое заключение о том, как распределяется |
||
несущая способность грунтов по глубине, указан грунт, обладающий наибо- |
||
лее высокой несущей способностью. Наряду с |
анализом R необходимо по- |
|
при |
|
|
слойно оцен ть сж маемость грунтов по значениям Е. |
||
Результаты оценки несущей способности и сжимаемости грунтов в даль- |
||
нейшем спользуют |
вы оре рациональной длины свай и столбов. |
|
б |
|
|
2.2. Вы ор отметок обреза и подошвы ростверка
Для фундаментов промежуточных опор мостов отметку плоскости обреза ростверка назначают о ычно на 0,5...1,0 м ниже уровня меженных вод.
Отметка подошвы ростверка определяется отметкой обреза и необходимой по расчетным и конструктивном соображениям его толщиной. Толщина ростверка зависит от его размеров в плане и диаметра ствола несущих элементов. Размеры в плане определяются условием размещения необходимого количества несущих элементов.
Первоначально толщину ростверка можно принять hp =1,4... 2,0 м при |
|
|
Д |
диаметре ствола свай до 0,6 м и hp =2,0...3,0 м при большем диаметре несу- |
|
щих элементов. |
А |
При выполнении курсовой работы тип несущегоИэлемента указан в задании табл.2.
Расчетная длина свай и столбов (глубина погружения) определяется отметками подошвы ростверка и кровли несущего слоя грунта. Несущий слой грунта выбирают по данным п. 2.1.2. Сваи и столбы, как правило, должны быть зглублены в слой грунта, обладающий высокой несущей способностью. Величина заглубления свай в несущий слой определяется расчетом и должна быть не менее 0,5 м при нескальных грунтах несущего слоя, представленных крупнообломочными грунтами, гравелистыми, крупными и среднезернистыми песками, а также пылевато-глинистыми грунтами с показателем текучести J 0,1. При других нескальиых грунтах несущего слоя величина заглубления должна быть не менее 1,0 м.
Полная длина несущих элементов должна устанавливаться с учетом их заделки в ростверк. Сваи должны быть заделаны в ростверк: при толщине ствола свай dc < 0,60 м - на 2dc ; при dc > 0,60 м - на 1,20 м. Допускается также
10