Материал: 1897

Внимание! Если размещение файла нарушает Ваши авторские права, то обязательно сообщите нам

Контрольные вопросы

1.Элементы конструктивной системы деревоплиты.

2.Особенности расчетной модели составного стержня.

3.Механизм взаимодействия элементов составного стержня.

4.Надежность конструктивной системы деревоплиты.

5.Эффективность конструкции деревоплиты.

Лекция 19. СОВМЕСТНАЯ РАБОТА СВАЙ С НИЗКИМ РОСТВЕРКОМ

 

19.1. Резервы совместной работы свай с ростверком

 

 

Проблему

свайного

фун-

дамента

 

строители

. В

действующих

нормах проектированияДникакихИуказаний по

учёту со-

вместной работы свай с ростверкомАне приводится. Необходимость решения одной из практическихбзадач, связанной с этой проблемой, возникла в процессе строительства четырёхэтажного жилого дома.

При проектированииидома по бескаркасной системе с поперечными несущими стенами ыло принято свайное основание с железобетонным ленточнымСростверком и забивными сваями с поперечным

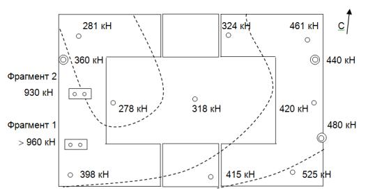
сечением 0,3×0,3 м. Вв ду сложной конфигурации в плане и большой деформативности грунтов здание было расчленено осадочными швами на 4 блока (рис. 19.1).

Согласно инженерно-гидрогеологическим изысканиям нижний конец 8-м свай попадает в слой текучепластичного суглинка (показатель текучести IL > 0,6). В соответствии с требованиями п. 7.2.3 СП 50.102.2003 проектом были предусмотрены в каждом из блоков дорогостоящие испытания забивных свай статической нагрузкой.

Вначале были выполнены натурные испытания двух (минимальное число статических испытаний в контуре здания) свай в восточном блоке и получены частные значения предельного сопротивления Fd, равные 480 кН и 440 кН и соответствующие максимальной нагрузке, достигнутой при испытании. Исходя из этих данных, несущая способность сваи была принята равной N = 440/1,2 = 367 кН (по ми-

101

нимальному значению Fd) при максимальной расчётной нагрузке на сваю 364 кН, и началось строительство дома.

Рис. 19.1. Схема точек испытаний с изолиниями сопротивлений свай

 

 

 

 

 

И

Следует отметить, что частные значения предельного сопротив-

ления должны соответствовать,

согласно нормам, осадке опытных

свай s =

0,2su,mt = 30 мм при

Д

средней предельной осадке здания

su,mt = 15

см, т.е. более

точные значения Fd = 466 кН, 425 кН и

N = 425/1,2 = 354 кН.

 

А

 

Когда все сваи были за ты, а восточный и северный блоки до-

ма частично возведены,

бспытали статической нагрузкой одну сваю в

 

и

 

 

 

 

С

 

 

 

 

западном блоке. Несущая способность сваи оказалась равной всего 288 кН (табл. 19.1); в отчёте ошибочно приведено значение 360/1,2 = 300 кН, соответствующее испытательной нагрузке при осадке s = 40 мм вместо 30 мм) и строители забили тревогу, так как согласно нормам при числе испытаний менее 6 несущую способность

свай следует брать по минимуму, т.е. 288 кН < 364 кН. Возникла ситуация, когда возведение западного блока в проектном виде оказалось невозможным.

102

19.2. Анализ исходных данных

В трудную минуту проектировщики и строители обратились за помощью к учёным СибАДИ, которые в первую очередь выполнили тщательный анализ проектных материалов [13].

Ещё в процессе изысканий проводили испытания грунтов статическим зондированием в 9-ти точках и получили частные значения предельных сопротивлений свай (табл. 19.1). Эти данные проектировщики не использовали для предварительной оценки несущей способности свай, так как под каждым из блоков число испытаний оказалось менее 6. Однако их хватило для определения участков с низкой

несущей способностью свай (рис.

19.1). Как и следовало ожидать,

 

 

 

 

 

 

И

 

наименьшая несущая способность свай оказалась на участке западно-

го блока здания.

 

 

 

 

 

 

Таблица 19.1

 

 

 

 

 

 

 

 

 

 

Данные статического зондирования

 

 

 

 

 

 

 

 

 

Номер точки

 

 

Fu, кН

А

q, МПа

 

EsL, МПа

1

 

 

281

 

 

1,5

 

18

 

 

 

б

Д1,8

 

 

2

 

 

324

 

 

21,6

3

 

 

461

 

 

2,3

 

27,6

 

 

и

 

 

 

 

 

4

 

 

525

 

 

3,2

 

38,4

5

 

 

415

 

 

1,1

 

13,2

6

 

 

398

 

 

2,3

 

27,6

 

С

 

 

 

 

 

 

7

 

 

278

 

 

1,7

 

20,4

8

 

 

318

 

 

-

 

-

9

 

 

420

 

 

1,7

 

20,4

Для анализа несущей способности использовали указания п. 7.3.16 СП, согласно которым несущую способность испытанных статической нагрузкой свай следует определять с использованием результатов статического зондирования (не менее 6 точек) по формуле

Fd = Fu /nγgs,

(19.1)

где Fu/n – среднее значение предельного сопротивления по n = 3 – 5

испытаниям свай статической нагрузкой; γgs – коэффициент надёжности по грунту, определяемый по результатам зондирования по формуле

γgs = 1 + vs,

(19.2)

где vs – коэффициент вариации результатов зондирования.

103

vs = [(Fui - Fu)2/ ns]1/2/Fui/ns,

(19.3)

где Fui и Fu – соответственно частные и среднее значения несущей способности сваи по результатам зондирования; ns – число точек зондирования.

По 9-ти точкам зондирования получено: vs = 0,211, γgs = 1,211 и Fd = (480 + 440 + 360)/3 1,211 = 352 кН > 333 кН. Несущая способ-

ность свай N = Fd/γk = 352/1,2 = 293 кН.

При расчёте по 6-ти точкам зондирования (при Fui > 300 кН) по-

лучено: vs = 0,135, γgs = 1,135 и Fd = (480 + 440 + 360)/3 1,135 = 376 кН.

Несущая способность свай N = Fd/γk = 376/1,2 = 313 кН.

приняли решение об исследовании совместнойИработы ленточного ростверка со сваями. Для оценки степени включения ленточного ро-

19.3. Решение задачи

стверка в работу свайного фундаментаАДвоспользовались методикой расчёта осадки комбинированныхб свайно-плитных фундаментов (КСП), частично изложенной в разделе 7.4 СП 50.102.2003.

Для уточнения несущей способности свайных фундаментов

Метод расчёта основан на совместном рассмотрении жёсткости (нагрузка, делённая на осадку) свай и жёсткости ростверка. Учёт совместной работы всех элементов фундамента заключается в опреде-

лении частных значен й жёсткости группы свай, ростверка и коэф-

и

 

фициента их взаимодействия, используемого для определения коэф-

фициента жесткости всего фундамента.

 

Жёсткость группы из n свай определяется по формуле

 

С

Kp = ηwK1n,

(19.4)

 

где ηw – коэффициент эффективности работы свай, учитывающий увеличение осадки (снижение жёсткости) групп свай в результате их

взаимодействия в свайном фундаменте (ηw = Rs-1, где Rs – коэффициент увеличения осадки, принимаемый по табл. 7.19 СП); K1 – жёсткость одиночной сваи, определяемая в соответствии с формулой

K1 = EsLd/Is, (19.5)

где EsL – модуль деформации грунта на уровне подошвы сваи; d – диаметр (сторона квадратного сечения) сваи, м; Is – коэффициент

104

влияния, определяемый по табл. 7.18 СП, зависящий от отношения

длины сваи l к диаметру и коэффициента жёсткости сваи λ = Ep/EsL, где Ep – модуль деформации материала сваи.

Коэффициент эффективности работы свай с высокой степенью

точности может быть принят равным ηw = 1,1/1,3 n1/2 при значениях n до 100 и расстоянии между сваями c = 3d.

Жёсткость ростверка определяется по обычной формуле теории упругости:

Kс = EsА1/2/(1 – ν2)m0,

(19.6)

где Es – модуль деформации грунта под ростверком; А – площадь ро-

стверка; ν – коэффициент Пуассона материала ростверка; m0 – таб-

личный

коэффициент,

зависящий

от отношения

сторон

ростверка

lc/bc.

 

 

 

 

 

 

 

 

 

 

Таблица 19.2

 

 

Значения коэффициента m0

 

 

 

 

 

 

 

 

 

 

 

 

 

 

 

 

 

 

 

 

 

lc/bc

1

1,5

 

 

2

3

 

5

 

7

 

10

mо

0,88

0,87

 

0,86

0,83

 

0,77

 

0,73

 

0,67

 

 

 

 

 

 

 

И

 

 

 

Общая жёсткость фундамента Kf = Kp + Kс и часть нагрузки, вос-

 

 

 

 

 

 

Д

 

 

 

 

 

принимаемая ростверком, равна Kс/Kf.

 

 

 

 

 

 

При использовании данных статического зондирования для оп-

 

 

 

 

 

А

 

 

 

 

 

 

 

 

 

б

 

 

 

 

 

 

 

 

 

и

 

 

 

 

 

 

 

 

ределения модуля деформац следует руководствоваться тем, что модуль деформац грунта у свай всегда в несколько раз выше, чем у грунта в природномСсостоян (в 2 – 8 раз). Согласно п. 7.4.6 СП при расчёте забивных свай в глинистых грунтах EsL = 10q, где q – сопротивление зонда (см. табл. 19.1). Московскими нормами МГСН 2.07-97 рекомендуется принимать EsL = 12q.

Для проверки расчётного метода и экспериментальной оценки степени включения ростверка в работу свайного фундамента было принято решение о выполнении в западном блоке статических испытаний фрагментов из двух свай, объединённых железобетонным ростверком. Испытание двух фрагментов необходимо для обоснования практического использования опытных данных при строительстве западного блока. При испытании фрагментов рекомендовано руководствоваться правилами испытания одиночных свай с учётом увеличения осадки группы свай.

Расчётом определили ожидаемую несущую способность Ni опытных фрагментов и долю нагрузки, воспринимаемую ростверком.

105