Материал: 10-этажный кирпичный жилой дом по ул. Московской в городе Вологда

Внимание! Если размещение файла нарушает Ваши авторские права, то обязательно сообщите нам

Сварка закладных деталей  10 м шва              

8,96


 

Заливка швов

 100 м


5,22

Установка лестничных площадок и маршей

 шт.

Определяется по спецификации сборных железобетонных конструкций

21


.2.4 Подбор крана

Монтаж конструкций десятиэтажного жилого здания в основном ведется башенным краном.

На основании ведомости монтажных элементов выбираем группу элементов, которая характеризуется максимальными монтажными параметрами, для этой группы подбираем монтажный кран с необходимыми характеристиками.

Выбор крана начинаем с уточнения массы сборных элементов, монтажной оснастки и грузозахватных устройств, габаритов и проектного положения конструкций в сооружении. На основании указанных данных определяем группу сборных элементов, которые характеризуются максимальными монтажными техническими параметрами. Для этих сборных элементов подбираем наименьшие требуемые технические параметры монтажных кранов.

В производстве работ следует применять прогрессивные технологические методы, с учетом конструктивной характеристики здания и сроков его строительства.

Требуемая грузоподъемность крана определяется как сумма масс элементов, навешиваемых одновременно на крюк крана:

, (4.1)

гдемаксимальный вес монтажного элемента (т)

масса стропов (ориентировочно принимается 5% от массы монтажного элемента)

Минимальная требуемая высота подъема крюка:

, (4.2)

где превышение опоры монтируемого элемента над нулевой отметкой, м

запас высоты, м (принимается 0,5м)

высота элемента, м

высота строп, м


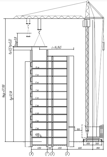
Рисунок 4.2- Параметры выбора монтажного крана

Вылет крюка и длина стрелы:

Lкр. = а/2 + в + с, м, (4.3)

где а - ширина кранового пути

в - расстояние от кранового пути до проекции наиболее выступающей части здания

с - расстояние от центра тяжести монтируемого элемента до выступающей части здания со стороны крана

Lкр. = 6/2 + 1 + 14,045 = 18,05 м

Для подбора крана имеем следующие характеристики:

4.3 Технико-экономическое обоснование выбора монтажного крана


Таблица 4.4- Технические характеристики строительных кранов

Наименование показателей

Модель крана

КБ-403А

КБ-408.04

Требуемая высота подъема крюка HКР, м Грузоподъемность, т: минимальная максимальная Вылет стрелы, м: минимальный максимальный Задний габарит крана, м Расстояние между опорами, м Скорость подъема груза V1, м/мин Скорость плавной посадки груза, м/мин Частота вращения n, мин-1 Скорость движения крана V3, м/мин. Сметная расценка, руб

41,0  3 8  5,5 30 3,8 6 40 5 0,6 18 104,15

41,0  3 10  6 30 4,35 6 36 4,8 0,65 18 112,12



На основании сравнения технико-экономических показателей окончательно для монтажа конструкций выбираю кран КБ-403А как наиболее экономичный вариант.

Технологические параметры крана представлены на листе 5 графической части.

4.4 Требования к качеству и приемке работ


Качество выполненных каменных работ необходимо контролировать систематически, с помощью соответствующих инструментов и приспособлений, к которым относятся уровень, отвес, складной метр, рулетка, шаблон, угольник и др. Необходимо стремиться к тому, чтобы возможные отклонения от проектных размеров каменных конструкций не превышали допустимых значений. Для обеспечения требуемого качества выполненной кладки каменщик следит за тем, чтобы применялись кирпич и раствор, указанные в проекте, проверяет правильность перевязки и качество швов и кладки, вертикальность, горизонтальность и прямолинейность поверхностей и углов, правильность установки закладных деталей и связей, качество поверхности кладки.

Горизонтальность углов кладки на каждом ярусе контролируется правилом и уровнем не реже двух раз. Вертикальность поверхностей стен и углов также контролируется отвесом не реже двух раз на каждом ярусе. Необходимо периодически проверять толщину швов.

Контроль выполняется производителями работ и мастерами, так же могут быть привлечены строительные лаборатории и геодезические службы. При операционном контроле следует проверять соблюдение технологии выполнения строительно-монтажных процессов, соответствие выполняемых работ рабочим чертежам, строительным нормам, правилам и стандартам. Результаты операционного контроля качества должны фиксироваться в журнале работ и учитываются при определении оценки качества работ.

При приёмке законченных работ по возведению каменных конструкций необходимо проверять:

правильность перевязки швов, их толщину;

правильность устройства деформационных швов;

качество поверхностей фасадных стен;

геометрический размер и положение конструкций.

Отклонения в размерах и положении каменных конструкций от проектных не должны превышать указанных в таблице 4.4

Таблица 4.5 - Предельные отклонения

Проверяемые конструкции (детали)

Предельные отклонения, мм


стены

столбы


1

2

3


Толщина конструкций

 ±15

 ±10


Отметки опорных поверхностей

 -10

 -10


Ширина простенков

 -15

 -


Ширина проемов

 +15

 -


Смещение вертикальных осей оконных проемов от вертикали

 20

 -


Смещение осей конструкций от разбивочных осей

 10

 10


Отклонения поверхностей и углов кладки от вертикали:


на один этаж

 10

 10


на здание высотой более двух этажей

 30

 30


 Отклонение рядов кладки от горизонтали на 10м длины стены

 15

 -


 Неровности на вертикальной поверхности кладки, обнаруженные при накладывании рейки длиной 2м

 10

 5


 Толщина швов кладки: горизонтальных - 12мм вертикальных - 10мм

-2; +3 -2; +2

 -2; +3 -2; +2



Элементы сборных железобетонных и бетонных конструкций, которые поступают на строительную площадку, должны соответствовать проекту, действущим ГОСТам, нормам и техническим условиям на изготовление отдельных изделий.

Каждая партия элементов сборных конструкций обязана быть снабжена паспортом, выдаваемым потребителю предприятием-изготовителем при отпуске изделий.

Приемка элементов сборных конструкций производится представителем монтирующей организации, внешним осмотром. При осмотре проверяют: отсутствие деформаций, повреждений, проектные размеры, правильность расположения монтажных петель, отсутствие раковин, трещин, наплывов.

Погрузочно-разгрузочные работы выполняют непосредственно под руководством мастера, имеющего специальную подготовку.

Строповка элементов конструкций должна обеспечивать их подъем и подачу к месту монтажа в положении, соответствующем проектному.

Уровень кладки после каждого перемещения подмостей должен быть не менее чем на 0,7 м выше уровня рабочего настила или перекрытия.

Не допускается кладка наружных стен толщиной до 0,75 м в положении стоя на стене.

4.5 Калькуляция затрат труда и времени работы машин


Основным документом, определяющим затраты труда и продолжительность работ является калькуляция.

Затраты труда:

ЗТ = Нвр∙V, чел∙ч, (4.4)

где Нвр - норма времени на выполнение единицы работы, по [21], [22], [23]

V- объем работы.

Калькуляция трудозатрат представлена в приложении 2.

4.6 График производства работ


График производства работ заполняется на основании калькуляции трудозатрат в одну смену (8 часов).

При планировании необходимо обеспечить полную загрузку машин и организовать производство работ поточным методом с соблюдением правильной последовательности ведения отдельных работ и обеспечение их качества. График производства работ представлен на листе 5 графической части.

4.7 Материально-технические ресурсы


Перечень машин, механизмов и оборудования приведен в таблице 4.5

Таблица 4.6 - Перечень машин, механизмов и оборудования

Наименование машин, механизмов и оборудования

Тип, марка

Технологическая характеристика

 Назначение

Кол-во на звено

 Кран

КБ-403А

Грузоподъемность - 8 т Стрела - 30 м

Подача и монтаж конструкций

 1

Строп четырехветвевой

4 СК - 4,0

Масса 50 кг. Грузоподъем.-4 т

Для захватки краном констр-ции

 1

Шарнирно-пакетные подмости



Для кирп. кладки на 2 ярусе


 Камаз бортовой

КамАЗ-5320


Для перемещения грузов на расстояние

 1


4.8 Мероприятия по охране окружающей среды, технике безопасности, противопожарной защите


До начала строительных работ на площадке выполняем комплекс работ, которые направлены на профилактику травматизма. Площадку ограждают забором высотой 2м, засыпают углубления и выбоины, устраивают систему отвода поверхностных вод, подъездных путей и внутриплощадочных дорог и проездов.

Для борьбы с травматизмом на строительной площадке применяют знаки безопасности. Знаки безопасности по назначению подразделяются: запрещающие, предупреждающие, предписывающие и указательные.

Для правильной организации движения транспорта на территории строительной площадки вывешена схема движения и установлены указатели проездов и дорожные знаки с обозначением допустимой скорости, мест, стоянок, разворотов.

Все дорожные указатели и знаки установлены так, чтобы их было хорошо видно как в светлое, так и в тёмное время суток.

Временные автодороги размещены так, чтобы был возможен проезд автомобилей в любое время года и любую погоду. Минимальное расстояние между дорогой и складом 0,5-1м.

В местах движения рабочих через траншеи и канавы устроены мостики шириной 0,6м с установкой 2-х сторонних перил. В тёмное время суток строительная площадка освещена, в опасных зонах дополнительно выставлены световые сигналы и аварийное освещение.

Временные коммуникации водопровода, канализации, теплосети в местах пересечения с дорогами и проездами заглублены в землю. Временные электросети устроены на временных опорах, которые обеспечивают безопасный проход людей и транспорта под ними.

Колодцы, проёмы и траншеи закрыты прочными щитами и ограждениями, в тёмное время суток ограждения обозначены сигнальными огнями.

Временные склады и сооружения располагаются на расстоянии, обеспечивающем противопожарную безопасность и беспрепятственный доступ при пожаре. При хранении легковоспламеняющихся и горючих жидкостей нельзя чтобы предельное количество вещества было больше 5м3 - легковоспламеняющихся и 25м3 - горючих. Хранение осуществляется в подземных хранилищах.

4.9 Техника безопасности при кладочно-монтажном процессе


Леса и подмости должны быть прочными и устойчивыми. Стойки трубчатых лесов устанавливают на дощатые подкладки толщиной 50мм, укладываемые на спланированную полосу, и крепят к стене крючьями за анкеры. Жесткость и неизменяемость положения лесов обеспечивают установкой жестких диагональных связей.

Не допускается кладка наружных стен толщиной до 0,75м в положении стоя на стене. Не допускается кладка стен зданий последующего этажа без установки несущих конструкций междуэтажного перекрытия, а также площадок и маршей в лестничных клетках.

При кладке стен высотой более 7м необходимо применять защитные козырьки по периметру здания. Первый ряд настила устанавливаем на высоте 7 метров от земли и предназначен он для предохранения проходящих внизу людей от несчастного случая. Второй ряд устанавливаем на высоте 6м от первого. Ширина должна быть не менее 1,5м. Предназначен для защиты жизни самих каменщиков. Второй ряд козырьков переставляют через каждые 6 метров по ходу производства кладки. Рабочие, занятые на установке, очистке или снятии защитных козырьков, должны работать с предохранительными поясами. Ходить по козырькам, использовать их в качестве подмостей, а также складывать на них материалы не допускается. На участке (захватке), где ведутся монтажные работы, не допускается выполнение других работ и нахождение посторонних лиц.

При возведении зданий и сооружений запрещается выполнять работы, связанные с нахождением людей в одной секции (захватке, участке) на этажах (ярусах), над которыми производятся перемещение, установка и временное закрепление элементов сборных конструкций или оборудования.