Материал: 10-этажный кирпичный жилой дом по ул. Московской в городе Вологда

Внимание! Если размещение файла нарушает Ваши авторские права, то обязательно сообщите нам

,123<0,390, условие выполняется, разрушение произойдет по растянутой зоне бетона.

Площадь рабочей арматуры:

,м2, (3.3)

 м2

Подбираем арматуру 12Ø8 А400 с шагом 100 мм см2

Расчет прочности наклонных сечений

В сплошных плитах независимо от высоты допускается поперечную арматуру не устанавливать при выполнении условия:

, Н, (3.4)

где правая часть принимается не более 2,5Rbt∙b∙h0 и не менее φb2(1+φn+φf)∙Rbt∙b∙h0,

Q=, кН, (3.5)

Q= кН.

φb2=2 -коэффициент, зависящий от вида бетона;

φn=0 - коэффициент, учитывающий наличие силы предварительного обжатия в преднапряженных конструкциях, в данном случае плита выполняется без предварительного натяжения арматуры;

φf=0 - учитывает форму таврового сечения в монолитных плитах, в данном случае не учитывается, т.к. сечение прямоугольной формы.

,5Rbt∙b∙h0=2,5∙0,9∙106∙1,174∙0,135=0,36∙106H>0,14∙106H

φb2(1+φn+φf)∙Rbt∙b∙h0=0,6(1+0+0)0,9∙106∙1,174∙0,135=0,08∙106H<0,14∙106H

Условие выполняется, соответственно поперечную арматуру устанавливаем по конструктивным требованиям.

Принимаем стержни Ø5В500 с шагом 100 мм см2

Расчет по второй группе предельных состояний

Проверяем условие образования трещин Мn≤Мcrc.

Мn= , кН·м, (3.6)

Мn=  кН·м

Момент образования трещин равен:

,кН·м, (3.7)

где  - момент от предварительного напряжения железобетонного элемента, в монолитных участках он отсутствует;

кПа.

Для определения пластического момента сопротивления сечения  находим момент инерции бетонного сечения:

м4 , (3.8)

м4

Площадь приведенного сечения:

,м2 , (3.9)

м2

Коэффициент приведения:

, (3.10)

Приведенный статический момент сечения относительно нижней грани:

, (3.11)

где а=0,015 м


, (3.12)


, м, (3.13)

 м=y0-a , м, (3.14)= 0.075-0.015=0.06 м

; , м, (3.15)

Приведенный момент сопротивления:

, м3 , (3.16)

 м3

Пластический момент сопротивления:

, м3 ,  (3.17)

м3

Момент трещинообразования равен: >

Условие выполняется, трещин в растянутой зоне не образуется.

Расчет по деформациям

На участке без трещин прогиб складывается из - прогиба от кратковременной (полной) нагрузки, - прогиба от длительной составляющей.

Полный прогиб равен:

f=f1+f2<[f] (3.18)

[f]=1/200l0=4.58/200=0.023 м.

, м, (3.19)

м

, м, (3.20)

м

f=0,00015+0,00024=0,00039 м < 0,023 м, условие выполняется.

Схему плиты П-8 и разрез плиты см. лист 3 графической части.

На рисунке 3.2 показаны размеры монтажной петли.

здание строительный плита стена

Рисунок 3.2 - Монтажные петли плиты М-8

3.2 Расчет свайного фундамента


В данном проекте предусмотрен свайный фундамент. Сваи представляют собой стержни, которые погружены в грунт и передают нагрузки от сооружения к грунту. Верхние части свай объединены монолитной железобетонной балкой - ростверком. Ростверк передает нагрузки от сооружения на сваи и обеспечивает их совместную работу.

Выполнение свайных фундаментов менее трудозатратное. Оно не требует устройства больших котлованов и траншей. Сваи позволяют передавать нагрузки на плотные грунты, лежащие глубоко от поверхности, которые обладают большей несущей способностью, чем грунты, лежащие вблизи поверхности земли.

Расчет произведем по трем сечениям:

сечение 1-1 по оси А - по наружной несущей стене

сечение 2-2 по оси В - по внутренней несущей стене

сечение 3-3 по оси 6 - по наружной самонесущей стене

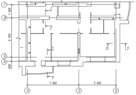
На рисунке 3.3 показаны сечения и грузовая площадь.

Рисунок 3.3 - Фрагмент плана

3.2.1 Сбор нагрузок на фундамент

Таблица 3.2 - Сбор нагрузок на междуэтажное перекрытие

Нагрузка

Нормативн. нагрузкаКоэф. надежности Расчетн. нагрузка



Постоянные: собственный вес плиты перекрытия

цементно-песчаная стяжка

линолеум

,750

,540

,090

,1

,3

,2

,025

,702

0,108




 нагрузка от перегородок толщ. 70мм

0,120

1,1

0,132

 Итого постоянной:

3,5


3,967

 Временная нагрузка: Равномерно-распределенная

 1,5

 1,3

 1,800

 Итого временная и постоянная

5,0


5,767



Таблица 3.3 - Сбор нагрузки на чердачное перекрытие, кН/м

Нагрузка

Нормативная нагрузкаКоэф. надежности Расчетная нагрузка



 Постоянные: собственный вес плиты перекрытия

керамзитовый гравий

цементно-песчаная стяжка

,750

,3

,72

,1

,3

,3

,025

,39

,936





Итого постоянной:

3,77


4,351

Временная нагрузка: равномерно-распределенная

 0,70

 1,3

 0,91

Итого временная и постоянная

4,47


5,26


Таблица 3.4 - Сбор нагрузок на кровлю

Нагрузка

Нормативная нагрузкаКоэф-ент надежности Расчетная нагрузка



1

2

3

4

Постоянные: линокром 2 слоя

цементно-песчаная стяжка

пенополистирол

керамзитовый гравий по уклону

рубероид 1 слой

собственный вес плиты перекрытия

,050

,54

,064

,18

,018

,750

,2

,3

,3

,3

,2

,1

,06

,702

,083

,234

,022

3,025




Итого постоянной:

3,60


4,126

Временная: от людей снеговая

0,50  1,68

1,2  1,4

0,60  2,40

Итого временная и постоянная

5,28


6,526


Нормативное значение снеговой нагрузки на горизонтальную проекцию покрытия:

S0 = 0,7 ce ct m Sg ; кПа, (3.21)

где ce - коэффициент, учитывающий снос снега с покрытий зданий под действием ветра или иных факторов, по [16];

ct =1,0 - термический коэффициент, по[16];

m =1 - коэффициент перехода от веса снегового покрова земли к снеговой нагрузке на покрытие, для плоской кровли по[16];

Sg=2,4 кПа - вес снегового покрова на 1 м2 горизонтальной поверхности земли, принимаемый по[16];

ct = 1,0

m=1 - для плоской кровли

Sg=2,4 кПа

S0 = 0,7 ·1·1·1 ·2,4=1,68 кПа

Таблица - 3.5 Сбор нагрузок на подвальное перекрытие,

Нагрузка

Нормативная нагрузкаКоэф. надежности Расчетная нагрузка



1

2

3

4

Постоянные: собственный вес плиты перекрытия

минеральные ватные плиты

армированная цементно-песчаная стяжка

керамическая плитка

,750

,020

,720

,180

,1

,2

,3

,2

,025

,024

,936

0,215




Итого постоянной:

3,670


4,20

Временная нагрузка: Равномерно-распределенная

 4,0

 1,2

 4,800

 

Итого временная и постоянная

7,67


9,000

 


3.2.2 Сбор нагрузок по сечениям

Сечение 1-1 (по наружной несущей стене)

Нагрузка от опирания плит перекрытий:

=219,52 кН/м;

Нагрузка от стены:

 ,кН/м, (3.22)

где - толщина стены

- расстояние от верха до низа стены

К0 - коэффициент остекления

- плотность материала стены

Коэффициент остекления:

, кН/м, (3.23)

где ,

Нок - высота окна,

Нэт - высота этажа,

L - расстояние между центрами окон.

кН/м

, кН/м

 кН/м

Балконные плиты  кН/м

Ростверк ориентировочно:  кН/м

Вес грунта:  кН/м

 кН/м

 кН/м

Сечение 2-2 (по внутренней несущей стене)

Нагрузка от опирания плит перекрытий:

 кН/м