Нагрузка
от стены
кН/м
кН/м
.
Ростверк ориентировочно:
кН/м
.
Вес грунта: 2
кН/м
кН/м
Сечение 3-3 (по наружной самонесущей стене)
Нагрузка от стены:
кН/м
кН/м
Ростверк
ориентировочно:
кН/м
Вес
грунта:
кН/м
кН/м
кН/м
Рассчитываем сечение 1-1
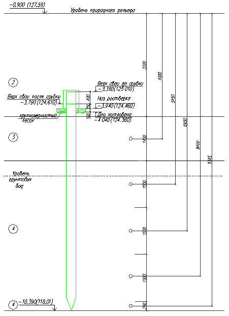
Грунтовые условия (см. рис. 3.4):
слой - супеси коричневые пластичные (IL=0.42), толщина слоя 3,3 м
слой - суглинок тугопластичный (IL=0.27), толщина слоя 1,4 м
слой - суглинок моренный (IL=0.4), толщина слоя 4,79 м
Свая С70.30-8: бетон В20, продольная арматура каркасов Ø14 А400
Длина сваи - L=7 м
Сечение сваи - d*d=300х300 мм
Площадь поперечного сечения сваи - А=0,30*0,30=0,09 м2
Периметр сечения сваи - u=0,30*4=1,2 м
Расчетная глубина погружения нижнего конца сваи от поверхности грунта 9,49 м.
По [17] для этой глубины находим расчетное сопротивление грунта в плоскости нижнего конца сваи R=2530 кПа (значение принято по интерполяции).
Определяем среднюю глубину расположения слоев грунта от дневной поверхности и соответствующие значения расчетного сопротивления грунта на боковой поверхности сваи по [17].
слой: l1=4,0 м→f1=38 кПа
слой: l2=5,45 м→f2=29,5 кПа
слой: l3=6,95 м→f3=32 кПа
слой: l4=8,4 м→f4=33,2 кПа
слой: l5=9,345 м→f5=33,7 кПа
Рисунок 3.4 - Схема к расчету сваи с геологическими условиями
Несущая способность Fd
определяется:
Fd=γс·(γсR·R·A+u·γcf·fi·hi), кН (3.24)
где γс - коэффициент условий работы: γс=1
Fd=1(1·2530·0.09+1.2·1(38·1.4+29,5·1.5+32·1.5+33,2·1.5+33,7·0.29))=432,7кН
Расчетная нагрузка, передаваемая на 1 сваю:
(3.25)
где N - расчетная нагрузка, передаваемая на сваю
Определяем количество свай, необходимое по несущей способности, для 1 м.п.
Принимаем количество свай равное 3, из условий по несущей способности и по конструктивному решению.
Шаг свай 0,5 м.
Проверка по формуле 2.25
,29кН/м≤927,2кН/м.
Условие
выполнено. Принимаем под наружную несущую стену по 2 сваи в ряду с шагом 0,5 м.
Сечение сваи 0,3х0,3, длиной 7 м.
Рисунок 3.5 - Схема расположения свай по оси А. Сечение 1-1
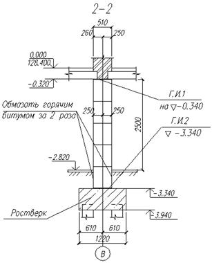
Сечение 2-2
слой: l1=4,0 м→f1=38 кПа
слой: l2=5,45 м→f2=29,5 кПа
слой: l3=6,95 м→f3=32 кПа
слой: l4=8,4 м→f4=33,2 кПа
слой: l5=9,345 м→f5=33,7 кПа
Несущая способность Fd определяется по формуле 3.24
Fd=1(1·2530·0.09+1.2·1(38·1.4+29,5·1.5+32·1.5+33,2·1.5+33,7·0.29))=432,7кПа
Расчетная нагрузка, передаваемая на 1 сваю по формуле 3.25
Определяем количество свай, необходимое по несущей способности, для 1 м.п.
Принимаем количество свай равное 3, из условий по несущей способности и по конструктивному решению. Шаг свай 0,55 м
Проверка по формуле 2.25
,35кН/м≤927,21кН/м
Условие
выполнено. Принимаем под наружную несущую стену по 2 сваи в ряду с шагом 0,55
м. Сечение сваи 0,3х0,3, длиной 7 м.
Рисунок 3.6 - Схема расположения свай по оси В. Сечение 2-2
Сечение 3-3
слой: l1=4,0 м→f1=38 кПа
слой: l2=5,45 м→f2=29,5 кПа
слой: l3=6,95 м→f3=32 кПа
слой: l4=8,4 м→f4=33,2 кПа
слой: l5=9,345 м→f5=33,7 кПа
Несущая способность Fd определяется по формуле 3.24
Fd=1(1·2530·0.09+1.2·1(38·1.4+29,5·1.5+32·1.5+33,2·1.5+33,7·0.29))=432,7кПа
Расчетная нагрузка, передаваемая на 1 сваю по формуле 3.25
Определяем количество свай, необходимое по несущей способности, для 1 м.п.
Принимаем количество свай равное 2, из условий по несущей способности и по конструктивному решению. Шаг свай 0,85 м.
Проверка по формуле 3.25
N - расчетная нагрузка, передаваемая на сваю
,86 кН/м≤618,14кН/м
Условие
выполнено. Принимаем под наружную несущую стену по 1 свае в ряду с шагом 0,85
м. Сечение сваи 0,3х0,3, длиной 7 м.

Рисунок 2.7 - Схема расположения свай по оси 6. Сечение 3-3
Технологическая карта разработана на кладочно-монтажный процесс 10 этажного кирпичного жилого здания расположенного в г. Вологда по улице Московская.
Здание с размерами в осях 14,62 х 33,1 м. Наружные стены выполнены из камня силикатного рядового пористого одиннадцатипустотного по [5] с облицовкой лицевым утолщенным силикатным кирпичом по [5]. Масса наиболее тяжелого элемента 3025 кг (плита покрытия ПК72.12).
Материалы - бетон для монолитных заделок класса В-15, раствор марки 100 и сборные конструкции доставляются на строительную площадку с заводов ЖБИ автотранспортом.
В состав работ, рассматриваемых картой, входят:
кладка наружных стен;
заделка стыков в плитах перекрытия;
монтаж сборных железобетонных перемычек;
устройство перегородок;
подача раствора в ящиках;
установка и разборка подмостей;
монтаж плит перекрытия и покрытия;
монтаж лестничных площадок и маршей.
Монтаж этажа осуществляется поточно-кольцевым методом. Сначала звено выкладывает 1 ярус высотой 1,2м по всему зданию, затем устанавливаются подмости высотой 1,2 м и выкладывается 2 ярус высотой 0,8м. Затем в такой же последовательности возводится 3 ярус высотой 0,8м.
До начала кирпичной кладки стен верхнего этажа должны быть выполнены следующие работы: закончены и сданы по акту все работы нулевого цикла; выполнена геодезическая разбивка осей стен здания; доставлены на площадку и подготовлены к работе башенный кран, подмости, необходимые приспособления, инвентарь и материалы.
Доставку кирпича на объект осуществляем пакетами в специально оборудованных бортовых машинах. Раствор на объект доставляем автомобилями-самосвалами и выгружаем в установку для перемешивания и выдачи раствора (раздаточным бункером). В процессе кладки запас материалов пополняется.
Складирование кирпича предусмотрено на спланированной площадке на
поддонах или железобетонной плите. Схема складирования приведена на рисунке 4.1
Рисунок 4.1 - Схема складирования кирпича: 1 - кирпич; 2 - поддон;
- железобетонная плита.
Процесс кирпичной кладки состоит из следующих операций:
установка и перестановка причалки;
рубка и теска кирпичей (по мере надобности);
подача кирпичей и раскладка их на стене;
перелопачивание, подача, расстилания и разравнивание раствора на стене;
укладка кирпичей в конструкцию (в верстовые ряды, в забутку);
расшивка швов;
проверка правильности выложенной кладки.
Кирпичная кладка выполняется из камня силикатного рядового пористого одиннадцатипустотного по [5] с облицовкой лицевым утолщенным силикатным кирпичом по [5]. Кладку выполняем горизонтальными рядами. Вначале ведётся наружная верста, а затем внутренняя. Основными системами перевязки кирпичной кладки стен, широко применяемыми в нашей стране, являются однорядная (цепная) и многорядная. Во внутренней версте допускается любой тип перевязки. В облицовочном слое допускается только цепная перевязка.
Раствор для кладки должен быть приготовлен на портландцементе. Применение шлакопортландцемента не допускается. Марку раствора принимаем М100.
Для правильного расположения горизонтальных рядов кладки применяем шнур - причалку, которая является направляющей при кладке верстовых рядов. Её устанавливают с обеих сторон стен и прикрепляют к порядовкам к предварительно выложенной кладке при помощи скоб. Вертикальность граней и углов кладки из кирпича, горизонтальность ее рядов необходимо проверять по ходу выполнения кладки (через 0,5-0,6м). Толщина горизонтальных швов кладки должна составлять 12 мм, вертикальных швов - 10 мм.
После окончания кладки каждого этажа производим инструментальную проверку горизонтальности и отметок верха кладки независимо от промежуточных проверок горизонтальности. Результаты проверок заносятся в журнал работ.
В местах установки порядовок выкладываем маяки высотой в шесть рядов. В четвёртом ряду заделывают скобы для крепления порядовок. Для кладки первых пяти рядов причалки натягивают при помощи штыря, забиваемого в швы кладки. Кладка шестого и всех последующих рядов выполняется с перестановкой кронштейна на высоту ряда.
Подготовка стены заключается в её очистке и раскладке на ней кирпича.
Раствор подается лопатой в количестве, необходимом для образования горизонтального шва под 6-7 кирпичей и разравнивают его с помощью кельмы.
Подачу материала, кирпича, раствора осуществляем при помощи крана. Для кладки 2 и 3 яруса кирпич на поддонах подается на подмости. Раствор подаётся в специальных ящиках.
Во всех случаях на рабочем месте каменщиков должно быть обеспечено свободное передвижение рабочих по фронту работ и их полная безопасность. Общую ширину рабочих мест принимаем равной 2,5 - 2,6 м, в том числе рабочую зону 60 - 70 см. Кирпич доставляем на объект и поднимаем на подмости на поддонах. Для спуска порожние поддоны связывают так, чтобы исключить возможность их падения. Запрещается сбрасывать поддоны с подмостей.
Ширина постелей подмостей должна обеспечивать свободный проход рабочих, удобное производство работ и размещение необходимых материалов. Настилы должны иметь ровную поверхность, с зазорами не более 10 мм.
Толщина слоя раствора под опорными частями перемычек не должна превышать 15мм.
Монтаж плит производится после кладки стен. Кладку стен вышележащего этажа выполняем только после монтажа, анкеровки и замоноличивания плит перекрытия.
Конструктивное армирование кладки: в уровне низа оконных проемов устанавливаются горизонтальные диафрагмы из арматурных сеток в слое цементного раствора. Сетки из проволоки ø5 В500 по [15]. Обязательная постановка связей в углах здания на расстоянии 100мм от внутреннего угла и у углов проемов.
Кладку стен с вентиляционными каналами ведем с полным заполнением раствором шва и швабровкой внутренней поверхности каналов.
В местах прохождения каналов в количестве два и более укладываем сетки из проволоки ø3 В500 по [18] с ячейкой 50х50мм через три ряда кирпича. В трех рядах под перекрытием сетки укладываем в каждом ряду.
Сборные перемычки укладываются по ходу кладки. Разность высот возводимой кладки на смежных участках и при кладке примыканий наружных и внутренних стен не должна превышать высоты этажа.
Устройство кирпичной кладки в зимних условиях.
Наиболее распространенными противоморозными химическими добавками являются: поташ (п) К2SO3, нитрит натрия (нн), соединение нитрата кальция с мочевиной (нкм).
Условия применения добавок в растворы оговорены в табл.2 прил.У [19].
Нормативное количество основных добавок в % по массе цемента в пересчете
на сухое вещество при разных отрицательных температурах приведено в таблице 4.1
Таблица 4.1 - Количество основных добавок
|
Вид добавки |
Среднесуточная температура воздуха, |
|
|
|
1 |
2 |
3 |
4 |
|
Поташ |
От 0 до -5 От -6 до -15 От -16 до -30 |
5 10 15 |
- |
|
Нитрит натрия |
От 0 до -5 От -6 до -9 От -10 до -15 |
5 8 10 |
- |
|
Нитрат кальция с мочевиной |
От 0 до -5 От -6 до -15 От -16 до -25 |
5 10 15 |
НК:М-1:1 НК:М-2:1 НК:М-3:1 |
Не допускается контакт растворов с добавками НН, П, НКМ и ННКХМ с оцинкованными и алюминиевыми закладными без протекторных покрытий.
Марка применяемого раствора не ниже 50.
В качестве вяжущего для растворов рекомендуется применять портландцемент марки не ниже 300. Допускается применение шлакопортландцемента и пуццоланового портландцемента.
Применение растворов выполняем с соблюдением требований, изложенных в
[20].
Таблица 4.2 - Прочность раствора
|
Вид добавки |
Средняя температура твердения, |
Прочность раствора, % марки при твердении на морозе |
|||
|
|
|
3 сут. |
7 сут. |
28 сут. |
90 сут. |
|
Поташ |
До -5 От -6 до -15 Ниже -15 |
15 10 5 |
25 20 10 |
60 50 35 |
80 65 50 |
|
Нитрит натрия |
До -5 От -6 до -15 |
5 3 |
10 5 |
40 30 |
55 40 |
|
Нитрат кальция с мочевиной |
До -5 От -6 до -15 Ниже -15 |
20 10 5 |
30 15 10 |
50 40 30 |
90 70 50 |
На основании проектных данных определяем количество монтажных элементов,
их массу и размеры. Сводная ведомость объёмов работ будет являться исходным
документом для составления калькуляции трудовых затрат и выбора монтажных и
транспортных машин.
Таблица 4.3 - Ведомость объёмов работ
|
Наименование работ |
Ед.изм-я |
Формула подсчета |
Кол-во |
|
1 |
2 |
3 |
4 |
|
Подача кирпича |
1000 шт. |
392 на 1 м³ кладки N= 392*3734,86=5286000 |
528,6 |
|
Подача раствора |
м³ |
0,25 на 1 м³ кладки V=0.25*3734,86=622,61 |
622,61 |
|
Кладка 1 яруса |
|||
|
Кладка наружных стен толщиной 770мм с расшивкой |
м³ |
V=a*b*h V=0.77*97.76*1.2=90,33*10 |
903,3 |
|
Кладка внутренних стен толщиной 640мм, 510мм, 380мм |
м³ |
V=a*b*h V1=0.64*25.79*1.2=19,8*10 V2=0.51*57.76*1.2=35,35*10 V3=0.38*30,64*1,2=13,97*10 |
705,66 |
|
Кладка 2 яруса |
|||
|
Устройство блочных подмостей |
м3 |
- |
133,6 |
|
Кладка наружных стен толщиной 770мм с расшивкой |
м³ |
V=a*b*h V=0.77*97.76*0.8=60.22*10 |
602,2 |
|
Кладка внутренних стен толщиной 640мм, 510мм, 380мм |
м³ |
V=a*b*h V1=0.64*25.79*0.8=13.20*10 V2=0.51*57.76*0.8=23.57*10 V3=0.38*30,64*0.8=9.31*10 |
460,8 |
|
Кладка 3 яруса |
|||
|
Разборка и устройство блочных подмостей |
м3 |
|
133,6 |
|
Кладка наружных стен толщиной 770мм с расшивкой |
м³ |
V=a*b*h V=0.77*97.76*0.8=60,22*10 |
602,2 |
|
Кладка внутренних стен толщиной 640мм, 510мм, 380мм |
м³ |
V=a*b*h V1=0.64*25.79*0.8=13,2*10 V2=0.51*57.76*0.8=23,56*10 V3=0.38*30,64*0.8=9,31*10 |
460,8 |
|
Подача и укладка перемычек |
1 проем |
|
1200 |
|
Подача и монтаж плит перекрытия |
шт. |
Определяется по спецификации сборных железобетонных конструкций |
668 |