Материал: Углеродные наноматериалы, производство, свойства, применение (Мищенко), 2008, c.172

Внимание! Если размещение файла нарушает Ваши авторские права, то обязательно сообщите нам

Рис. 2.36. Электродуговая установка для синтеза фуллеренов и нанотрубок:

1 – графитовый анод; 2 – графитовый катод; 3 – токовводы; 4 – керамический изолятор; 5 – молибденовые держатели; 6 – реактор; 7 – медный жгут;

8 – шаговый электродвигатель; 9 – вакуумметр; 10 – стеклянный фильтр; 11 – вакуумный порт; 12 – к вакуумным насосам; 13 – к системе подготовки газов

Перед заполнением реактора рабочим газом графитовые стержни прогревались при 900 ° С в вакууме (10–2 торр) для дегазации. В качестве неиспаряемого электрода (катода) использовали графитовые стержни диаметром 18 мм. Анод (испаряемый электрод) представлял собой графитовый стержень длиной 155 мм и диаметром 8 мм, в котором по центру высверливался канал диаметром 4 мм и глубиной 145 мм. В качестве катализатора использовали или смесь порошков кобальта и никеля в соотношении 3 : 1, или полученный гидридным диспергированием порошок YNi2. Полый канал заполнялся смесью графита и металлического катализатора в массовом соотношении 5,5 : 4 для Co/Ni и 1 : 1 для YNi2. Рассчитанная доля катализатора в испаряемой части стержня составляла 10…15 мас. %.

Испарение проводили в среде гелия, поддерживаемое постоянным давление для разных опытов варьировалось в интервале 400…800 тoрр. Ток разряда менялся в разных опытах от 50 до 130 А при напряжении дуги от 20 до 30 В. В пределах одного опыта промежуток между анодом и катодом не менялся. Его величина задавалась и контролировалась специальным устройством и в разных опытах варьировалась от 1 до 4 мм. Расстояние от электродов до стенок охлаждаемой водой камеры составляло 70 мм. Продукты электродугового испарения металл-графитового электрода конденсировались на боковых стенках охлаждаемой камеры ("пристеночная" сажа), вокруг катода ("воротниковая" сажа) и непосредственно на катоде ("депо-

зит") (рис. 2.37).

На дне реактора также осаждалось небольшое количество "шлака", но в нем практически не содержатся ОНТ, и в данной работе его не исследовали.

Рис. 2.37. Распределение продуктов электродугового испарения металл-графитовых электродов (повернуто на 90°)

Электродуговой синтез проводился по известному методу Кретчмера-Хаффмана [27] в электродуговой установке [28] в атмосфере очищенного гелия при давлении 650 торр.

Графитовые электроды диаметром 8 мм и длиной 155 мм с углублением диаметром 4 мм и длиной 145 мм заполнялись смесью графит– никель– железо. Перед испарением электроды дегазировали при температуре 900 ° С в вакууме (10–2 торр). Для электродугового испарения использовали графитовые стержни спектральной чистоты (примеси < 10–3 %), карбонильное железо (99,5 %), карбонильный никель (99,5 %) с размерами частиц 20 мкм. Синтез проводился с использованием в качестве катализатора чистого порошка железа, а также смесевых катализаторов, в которых соотношение порошков железа и никеля составляло Fe : Ni = 3 : 1, Fe : Ni = 1 : 1 при массовой доле металла в электроде 15 %. Падение напряжения на дуге составляло 25 В при силе тока 90 А и межэлектродном расстоянии 3 мм. Конденсированный продукт испарения делили на 4 фрак-

ции в зависимости от места его нахождения. Непосредственно на катоде растет довольно плотный нарост, или депозит. Вокруг катода в процессе испарения образуется "воротник", в котором обычно и обнаруживаются однослойные углеродные нанотрубки. Воротниковая сажа может быть разделена на темную часть, расположенную ближе к депозиту, и светлую внешнюю часть. Кроме того на боковых стенках камеры конденсируется так называемая пристеночная сажа.

Исходная концентрация бинарной каталитической смеси определяет размер металлических частиц в воротниковой части депозита, обуславливая тем самым механизм и оптимальные условия для синтеза ОНТ. Образование ОНТ возрастает при увеличении концентрации никеля в каталитической смеси до 30 % в последовательности Fe < Fe3Ni < < FeNi < FeNi3.

В работе [29] предлагается новый способ получения углеродных наноматериалов в плазме высоковольтного разряда атмосферного давления. В качестве исходного сырья для получения конечного продукта используется смесь природного газа (метан) с воздухом. Метод реализуется как при непосредственной обработке смеси метан– воздух плазмой, так и с предварительным осуществлением процесса каталитической конверсии метана и последующей обработке продуктов конверсии (CO и

H2) разрядом.

Одним из возможных механизмов образования УНМ может быть так называемая реакция диспропорционирования по схеме:

CO (v) + CO (w) → CO2 + C;

Ev + Ew ≥ 5,5 эВ,

где CO (v) и CO (w) – колебательно-возбужденные молекулы оксида углерода. Превышение активного барьера реакции 5,5 эВ происходит за счет возбуждения верхних колебательных уровней молекул CO плазмой.

По своим электрическим характеристикам высоковольтный разряд атмосферного давления занимает промежуточное положение между тлеющим и дуговым разрядом. Он реализуется в относительно широком диапазоне постоянного напряжения

(1…10 кВ) и тока (0,02…0,2 А).

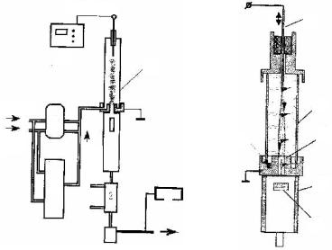
Схема экспериментальной установки для получения УНМ изображена на рис. 2.38. Плазмохимический реактор состоит из двух частей (рис. 2.39). Верхняя часть представляет собой кварцевую трубу с внутренним диаметром 18 мм и длиной 100 мм. В нижней, металлической части реактора, происходит охлаждение газового потока и устанавливается подложка, на которой осаждается получаемый углеродный материал.

Перемещаемый катод 1 располагается в верхней части кварцевого корпуса реактора 2, а заземленный анод 3 – в нижней части. Анод имеет форму диска с центральным отверстием с острой кромкой, служащей для надежной привязки разряда. Отверстие предназначено для выхода газовой смеси из зоны реакции. Диаметр катода 4 мм, длина 220 мм. Нижний рабочий конец катода выполнен со сменным наконечником,

–(2…5) кВ

5

1

Воздух

4

СН4

СО Н2

7

2

6

3

Рис. 2.38. Схема экспериментальной установки:

1 – плазмохимический реактор; 2 – холодильник;

3 – конденсатосборник; 4 – система газоснабжения;

5 – система электропитания; 6 – хроматограф;

7 – установка конверсии метана в водород

1

2

3

4

5

6

Рис. 2.39. Схема плазмохимического реактора

позволяющим использовать различные материалы при изготовлении рабочей части электрода. Механизм перемещения катода обеспечивает изменение межэлектродного расстояния в диапазоне 0…60 мм. Подача газовой смеси производится тангенциально в анодной части реактора 4. При этом в разрядной зоне создается обратный вихревой поток, стабилизирующий разряд и охлаждающий стенку реактора. Охлаждение выходящего газового потока происходит непосредственно за анодом в металлической части 5 корпуса реактора. В верхней части зоны охлаждения устанавливалась подложка 6 для осаждения углеродных наноматериалов. Рабочая газовая смесь подготавливалась в двух вариантах.

В одном варианте на вход реактора подавалась смесь метана с воздухом в соотношении 1 : 2,5, во втором – продукты конверсии метановоздушной смеси на платиновом катализаторе. В результате образовывалась смесь CO : H2 : N2 = 1 : 2 : 2. Общий расход газовой смеси поддерживался на уровне 350 л/ч. Производительность экспериментальной установки (рис. 2.40) составила до 1 г/ч углеродного материала.

Рис. 2.40. Экспериментальная установка

В [30] предлагается получать наноструктурный углерод при контакте углеродного пара с немагнитными переходными металлами, два из которых выбираются из следующего списка: рутений, родий, палладий, платина. Углеродный пар и частицы немагнитных переходных металлов производятся при помощи дугового разряда между анодом, состоящим из углерода и названных металлов, и катодом, расположенным напротив анода. Большая часть углеродных нанотрубок выделяется на катоде. Дуговой разряд происходит внутри реакционной камеры, заполненной инертным газом или смесью инертного газа с водородом под давлением 50…1500 торр. Авторы изобретения приводят схему реактора для получения УНТ (рис. 2.41).

Аппарат включает реакционную камеру 1 (вакуум-камеру), у которой имеются верхний фланец 2, нижний фланец 4, передний фланец 3 и задний фланец 5. Внутри реакционной камеры 1 расположены стержневые катод 6 и анод 7 напротив друг друга. Устройство подачи анода 8 обеспечивает постоянное расстояние между электродами. Катод 6 и анод 7 подключены к токоподводам 9 и 10, соответственно, на которые подается постоянный ток от внешнего источника. При запуске воздух из реактора вытесняется гелием с чистотой 99,9 % и включается дуговой разряд. В области С на катоде происходит рост УНТ, в области B выделяется катодная сажа, а в области А – камерная сажа.

 

 

 

2

 

 

 

1

5

 

 

 

 

 

 

3

 

 

A

6

 

 

8

B

7

 

 

 

 

 

 

 

 

 

 

 

 

C

 

9

 

 

10

4

Рис. 2.41. Схема реактора для получения УНТ [30]:

1 – реакционная камера; 2

верхний фланец; 3 – передний фланец;

4 – нижний фланец; 5

задний фланец; 6 – катод; 7 – анод;

8 – устройство подачи анода; 9, 10 – токоподводы

В [31] представлены основные стадии процесса синтеза УНТ подводом индуктирующего электрического тока к углеродным (графит, активированный уголь) аноду и катоду в условиях благоприятных для выделения наноструктурного углеродного материала. При этом катод по габаритам больше чем анод. Предпочтительным считается использование индуктирующего электрического тока, как при дуговой сварке. Для синтеза не требуется герметичной камеры, а достаточно лишь

реакционную зону накрыть кожухом. Данный метод позволяет получать высококачественные ОУНТ без использования катализатора.

На рис. 2.42 схематически представлен вариант конструктивного оформления установки для получения нанотрубок описанным методом. Установка включает цилиндрический катод 1, частично помещенный в охлаждающую ванну 2, наполненную водой. Катод имеет центральное отверстие 3. Для удержания катода в горизонтальном положении используется зажим 4, подключенный к земляному кабелю 5 сварочного трансформатора 6. Анодный узел 7 имеет возможность вертикального перемещения и закреплен на держателе 8. Углеродный стержень 9 помещен в анодный узел 7 и закрыт кожухом 10. В установке предусмотрено охлаждение анодного узла 7 водой и подача через него инертного газа, например гелия.

7

10

3

8

9

1

 

5

 

4

2

6

 

 

 

Рис. 2.42. Схема установки для получения УНТ [27]:

1 – цилиндрический катод; 2 – охлаждающая ванна;

3 – центральное отверстие; 4 – зажим; 5

земляной кабель;

6 – трансформатор; 7 – анодный узел;

8 – держатель;

9 – углеродный стержень; 10

 

кожух

В процессе работы установки катод 1 диаметром 5,08 см с внутренним отверстием 3 диаметром 1,6 см помещается в охлаждающую ванну 2 с выступом над поверхностью воды приблизительно на 5,08 см. Графитовый стержень 9 диаметром 0,3 см устанавливается в анодный узел 7 и накрывается кожухом в виде колокола высотой 30,5 см. Анод располагается над торцевой поверхностью катода на высоте, равной половине диаметра катода, и это расстояние поддерживается все время процесса. Процесс ведут периодически. УНТ, выделившиеся на верхней торцевой части катода, удаляются и отправляются на очистку, а графитовый стержень 9 обновляется. Авторы изобретения утверждают, что за один цикл работы, длящийся 3 минуты, в установке можно получать до 1 грамма ОУНТ.

Метод получения ОУНТ из углеродсодержащих жидкостей дуговым разрядом между электродами, не содержащими каталитически активных металлов и при их присутствии в электродах, может быть реализован в аппарате, предложенном в

[32].

Аппарат (рис. 2.43) содержит пару охлаждаемых электродов 1 и 2, генерирующих дуговой разряд в вакуум-камере 3. Электроды изготовлены из тугоплавких металлов, например молибдена, вольфрама, тантала.

6

7

8

9

1

2

4 5

3

Рис. 2.43. Аппарат для получения ОУНТ дуговым разрядом [32]:

1 – катод; 2 – анод; 3 – вакуум-камера; 4 – баллон с несущим газом; 5 – емкость с углеродсодержащей жидкостью; 6 – патрубок подачи реагентов;

7 – распылительное сопло; 8 – модули охлаждения электродов; 9 – регулятор положения электродов

В случае использования электродов из углерода с вкраплениями катализаторных металлов может быть повышен выход УНТ. На начальной стадии синтеза с помощью вакуум-насоса в камере 3 создается разрежение 1,3 Па или ниже. Несущий газ (He, Ar, H2, N2, O2 или CO2) из баллона 4 вместе с углеродсодержащей жидкостью (этанол, метанол, керосин, бензин, органиче-

ские масла и др.) из обогреваемой емкости 5 поступает по трубке 6 через распылительное сопло 7 в дуговой разряд между электродами. В процессе синтеза в камере 3 поддерживается давление в пределах 1,3…93,3 кПа. Для предупреждения образования аморфного углерода электроды снабжены модулями охлаждения 8, а зазор между катодом 1 и анодом 2 поддерживается с помощью регулятора 9 равным 0,1…10 мм. Под действием электрической дуги (10…1000 А, 10…40 В) происходит испарение и разложение углеродсодержащей жидкости, при этом УНТ образуются на торцевой поверхности катода 1 и осаждаются на стенках вакуум-камеры 3.

В [33] описан способ получения УНТ дуговым разрядом между углеродными электродами, помещенными в жидкий азот (рис. 2.44).

2

1

3

4

Рис. 2.45. Схема установки:

1, 5 – графитовые нагреватели;

2 – контактное кольцо, закрепленное на нержавеющем стержне двумя болтами; 3 – поддерживающее графитовое кольцо; 4 – графитовый экран; 6 – центральный стержень

Рис. 2.44. Схема установки синтеза УНТ дуговым разрядом [33]:

1 – резервуар; 2 – медный стержень; 3 – катод; 4 – анод

Аппарат для реализации этого способа содержит резервуар 1 с жидким азотом, в который помещены два медных стержня 2. На них закреплены графитовые катод 3 и анод 4. При подаче постоянного электрического тока (18 В, 80 А) в течение 10 секунд на поверхности катода 3 происходит образование и рост УНТ, при этом наиболее качественные из них (30… 80 нм) получаются в области действия электрической дуги.

В работе [34] предпринята попытка получить нанотрубки под высоким давление в присутствии азота. Использовалось несколько значений давлений – до 75 МПа. Схема установки показана на рис. 2.45, где А, B, C – зоны отложения продукта; E – область максимальной температуры (испарение углерода); F, G – место расположения термопар; H – болты из нержавеющей стали.

Зона с самой высокой температурой (E) нагревалась до 1800 ° С. В зонах A и C достигалась температура выше 1400 ° С, в то время как в нижней части не превышала 1300 ° С. Полученные углеродные материалы снимались с зон A, B, C и H. Большинство углеродных материалов было получено в зонах A, B и C. Более высокое давление азота увеличивало количество углеродного материала и вело к увеличению многообразия углеродных наноструктур. Морфология наноструктур зависела от температуры в зоне образования осадков.

Литература к главе 2

1.Мележек, А.В. Синтез тонких углеродных нанотрубок на соосажденных металлооксидных катализаторах / А.В. Мележек, Ю.И. Семенцов, В.В. Янченко // Журнал прикладной химии. – СПб. : Наука, 2005, июнь. – Т. 78, вып. 6. – С. 938 – 944.

2.Образование углеродных нанотрубок при каталитическом пиролизе углеводородов с железосодержащим катализатором / С.Ю. Царева, Е.В. Жариков, И.В. Аошкин, А.Н. Коваленко // Известия вузов. Электроника. – 2003. – № 1.

3.Царева, С.Ю. Влияние природы катализатора и параметров синтеза на морфологию многослойных углеродных нанотрубок, получаемых методом каталитического пиролиза углеводородов / С.Ю.

Царева // Микросистемная техника. – 2004. – № 1. – С. 26 – 31.

4.О перспективах синтеза углеродных нанотрубок каталитическим пиролизом углеводородов при ультразвуковом распылении реакционной смеси / Е.В. Жариков, С.Ю. Царева, А.Н. Коваленко, А.М. Даценко // Тезисы IV Междунар. конф. "Химия твердого тела и современные микро- и нанотехнологии". – Кисловодск– Ставрополь : СевКавГТУ, 2004. – 492 с.

5.CVD synthesis of high-purity multiwalled carbon nanotubes using CaCO3 catalyst support for large-scale production / E. Couteau, K. Hernadi, J.W. Seo, L. Thien-Nga, Cs. Miko, R. Gaal, L. Forro // Chemical Physics Letters. – 2003. – Vol. 37 8(1, 2). – P. 9 – 17.

6.Vijay, K. Varadan and Jining Xie Large-scale synthesis of multi-walled carbon nanotubes by microwave CVD / K. Vijay // Smart Materi-

als Struct. – 2002, 11 august. – N 4. – P. 610 – 61 6.