025 - фрезерная операция. Результаты приведены в
таблице 3.14.
Таблица 3.14 - Определение времени на технологический процесс
|
Операция, Технологический переход |
Элементы нормирования |
|||||||||||
|
|
l, мм |
S, ЗУБ |
V, м/мин |
в минутах |
Твп |
Тшт |
Тпз |
Тшт |
||||
|
Фрезеровать шпоночный паз |
100 |
0,09 |
51 |
0,5 |
0,3 |
1,5 |
0,3 |
1,8 |
||||
- сверлильная операция. Результаты приведены и
пронумерованы в таблице 3.15, расчеты производятся по установленным для сверлильной
операции параметрам.
Таблица 3.15 - Определение времени на технологический процесс
|
Операция, Технологические переходы |
Элементы нормирования |
|||||||
|
|
l мм |
S, мм/об |
nф, об/мин |
в минутах |
||||
|
|
|
|
|
ТО |
Тв |
Тшт |
Тпз |
Тшт |
|
Сверлить отверстие №1 Æ10 мм на длине L=278,5 от торца |
110 |
0,05 |
710 |
1,05 |
0,21 |
|
|
|
|
Сверлить отверстие №2 Æ10 мм на длине L=308,5 от торца |
110 |
0,05 |
710 |
1,05 |
0,21 |
|
|
|
|
Сверлить отверстие №3 Æ10 мм на длине L=338,5 от торца |
110 |
0,05 |
710 |
1,05 |
0,21 |
|
|
|
|
Итого: |
|
|
|
|
|
3,8 |
0,9 |
4,69 |
- круглошлифовальная операция. Результаты
приведены в таблице 3.16.
Таблица 3.16 - Определение времени на технологический процесс
|
Операция, Технологические переходы |
Элементы нормирования |
|||||||
|
|
l мм |
S, мм/об |
nф, об/мин |
в минутах |
||||
|
|
|
|
|
ТО |
Твс |
Тшт |
Тпз |
Тшт-к |
|
Шлифовать 100к7 |
50 |
- |
- |
1,2 |
0,24 |
|
|
|
|
Продолжение таблицы 3.16 |
||||||||
|
Шлифовать посадочное место под шкив |
135 |
- |
- |
0,6 |
0,12 |
|
|
|
|
Итого: |
|
1,68 |
0,48 |
2,16 |
||||
ВЫБОР ОБОРУДОВАНИЯ
Выбор оборудования осуществляется на основании следующих данных:
) метод обработки;
) точность обработки;
) шероховатость поверхностей;
) габаритных размеров заготовки;
) количества инструментов в суппорте станка;
) эффективность использования станка по времени, мощности;
) типа производства.
Для токарных операций 005, 010 используем станок
16А20Ф3, предназначен для обработки деталей типа тел вращения в замкнутом
полуавтоматическом цикле. Технические данные токарного станка модели 16А20Ф3
приведены в таблице 3.17, общий вид представлен на рисунке 3.1.
Таблица 3.17 - Технические данные токарного станка модели 16А20Ф3
|
Параметры |
Значения |
|
Наибольший диаметр изделия, устанавливаемого над станиной, мм |
500 |
|
Наибольший диаметр обрабатываемого изделия, мм - над станиной - над суппортом |
320 200 |
|
Наибольшая длина устанавливаемого изделия в центрах, мм |
1000 |
|
Наибольшая длина обрабатываемого изделия при 8-ми позиционной головке, мм |
750 |
|
Диаметр цилиндрического отверстия в шпинделе, мм |
55 |
|
Продолжение таблицы 3.16 |
|
|
Наибольший ход суппорта, мм - поперечный - продольный |
210 905 |
|
Максимальная скорость быстрых перемещений, мм/мин - продольных - поперечной |
15000±6% 7500±6% |
|
Пределы частот вращения шпинделя, мм 202500 |
202500 |
|
Количество одновременно управляемых координат |
2 |
Рисунок 3.1 - Общий вид токарного станка модели
16А20Ф3
Для фрезерных операций 015,020,025 используем станок 6Р12, станки модели предназначены для сверления, фрезерования и растачивания заготовок любой формы из различных материалов - стали, чугуна, цветных металлов.
Технические данные фрезерного станка модели 6Р12
указаны в таблице 3.18.
Таблица 3.18 - Технические данные фрезерного станка модели 6Р12
|
Параметры |
Значения |
|
Рабочая поверхность стола, мм |
1250х320 |
|
Перемещение стола, мм, наибольшее продольное поперечное вертикальное |
800 320 420 |
|
Перемещение пиноли шпинделя на одно деление / оборот лимба, мм |
0,05 / 4 |
|
Диаметр фрез при черновой обработке, мм, наибольший |
160 |
|
Расстояние, мм от торца вертикального (оси горизонтального) шпинделя до рабочей поверхности стола, мм от оси шпинделя до направляющих станины От оси Х до противоположного значения Х От Y пиноли |
30-450 380 |
|
Частота вращения горизонтального или вертикального шпинделя, мин-1 |
31,5-1600 |
|
Подача, мм/мин продольная и поперечная вертикальная |
12,5-1600 4,1-530 |
|
Угол поворота шпиндельной головки, град |
45 |
|
Мощность, кВт привода главного движения привода подач |
7,5 3 |
|
Масса обрабатываемой детали (вместе с приспособлением), кг |
400 |
|
Габаритные размеры, мм длина ширина высота |
2280 1965 2265 |
На рисунке 3.2 показан общий вид фрезерного станка модели 6Р12.
Для сверлильной операции 030, используем станок
2Н150, предназначенный для сверления, рассверливания, зенкования,
развертывания, нарезания резьбы; наличие на станке механической подачи
шпинделя, при ручном управлении циклами работы, допускает обработку деталей в
широком диапазоне размеров. применяется в условиях единичного и серийного
производства. Технические данные сверлильного станка модели 2Н150 указаны в
таблице 3.19.
Рисунок 3.2 - Общий вид фрезерного станка модели 6Р12
Таблица 3.19 - Технические данные сверлильного станка модели 2Н150
|
Параметр |
Значение |
|
Наибольший диаметр сверления в стали 45 ГОСТ 1050-74, мм |
50 |
|
Размеры конуса шпинделя по ГОСТ 25557-82 |
Морзе 5 |
|
Расстояние от оси шпинделя до направляющих колонны, мм |
350 |
|
Наибольший ход шпинделя, мм |
300 |
|
Расстояние от торца шпинделя, мм: - до стола - до плиты |
0-800 700-1250 |
|
Наибольшее (установочное) перемещение сверлильной головки, мм |
250 |
|
Перемещение шпинделя за один оборот штурвала, мм |
131,68 |
|
Рабочая поверхность стола, мм |
500∙560 |
|
Наибольший ход стола, мм |
360 |
|
Установочный размер Т-образных пазов в столе по ГОСТ 1574-75: - центрального - крайних |
18H9 18H11 |
|
Расстояние между двумя Т-образными пазами по ГОСТ 6569-75, мм |
100 |
|
Количество скоростей |
12 |
|
Пределы частоты вращения шпинделя, 1/мин |
22,4 - 1000 |
|
Количество подач |
12 |
|
Пределы подач, мм/об |
0,05 - 2,24 |
|
Наибольшее количество нарезаемых отверстий в час |
50 |
|
Род тока питающей сети |
Трехфазный |
|
Напряжение питающей сети, В |
380/220 |
|
Габаритные размеры, мм: - высота - ширина - длина |
2930 890 1355 |
|
Масса станка, кг |
1870 |
Сверлильный станок модели 2Н150 показан на рисунке 3.3.
На рисунке 3.4 показан общий вид круглошлифовального станка модели 3Т160. Для круглошлифовальной операции 045, используем станок 3Т160, предназначенный для одновременного шлифования наружной цилиндрической и торцовой поверхностей деталей, при установке их в центрах в условиях крупносерийного серийного и массового производств.
Технические данные круглошлифовального станка
модели 3Т160 указаны в таблице 3.20.
Таблица 3.20 - Технические данные круглошлифовального станка модели 3Т160
|
Параметр |
Значение |
|
Год начала выпуска |
1975 |
|
Класс точности: П |
П |
|
Наибольший диаметр обрабатываемой детали, мм |
280 |
|
Наибольшая длина обрабатываемой детали, мм |
1000 |
|
Длина шлифования, мм |
130 |
|
Max частота вращения шпинделя, об/м: |
1250 |
|
Мощность, кВт: |
17 |
Рисунок 3.4 - Общий вид круглошлифовального
станка модели 3Т160
6.1 Выбор режущего инструмента
Номенклатура режущего инструмента представлена в
таблице 3.21.
Таблица 3.21 - Ведомость режущего инструмента для токарной операции
|
№ операции |
Технологический переход |
Вид инструмента |
|
005-токарная, установ №1 |
Т01- подрезать торец |
Резец проходной упорный, черновой Р6М5 ГОСТ 18869-73 |
|
|
Т01-Точить наружный контур предварительно |
Резец проходной упорный, черновой Р6М5 ГОСТ 18869-73 |
|
|
Т02-Точить наружный контур окончательно |
Резец проходной упорный, чистовой Т15К6 ГОСТ18879-73 |
|
|
Т03-Точить канавки |
Резец канавочный наружный, Р6М5 ГОСТ18874-73 |
|
|
Т04-Центровать центральное отверстие |
Сверло центровочное ГОСТ 14952-75 |
|
|
Т05-Сверлить центральное отверстие |
Сверло диаметром 8,5 мм, с цилиндрическим хвостовиком ГОСТ 10902-77 |
ВЫБОР ИЗМЕРИТЕЛЬНОГО ИНСТРУМЕНТА
Для измерения размеров применяем штангенциркули по ГОСТ 166-83: ШЦ-III с пределами измерения: 0-150 мм; 0-500 мм. Шпоночный паз под посадку шкива - специальный калибр пробка, шаблон.
Т- образные шпоночные пазы контролируем - специальными калибрами пробками.
Посадочные размеры подшипников 100k6, проверяем гладким микрометром с диапазоном измерений 75-100 мм, ГОСТ 6507-90.
Для контроля фасок используем шаблон.
6.2 Разработка управляющей программы
для станка с ЧПУ
Применяемые команды для токарного станка с ЧПУ:
% - начало программы;- номер кадра;- подготовительная функция;, Y, Z, R - программирование геометрической информации;
X - перемещение по вертикальной оси (оси X);- быстрый подвод инструмента по оси Z;
L - корректор инструмента;
М - вспомогательная функции;
S - Функция скорости (скорость или частота вращения шпинделя);
F - функция подачи;
Т - номер инструмента.
В качестве вспомогательных функций используются:
М02 - конец программы;
М03 - включение правого вращения шпинделя;
М04 - включение левого вращения шпинделя;
М05 - выключение шпинделя;
М08 - подача СОЖ (смазочной охлаждающей жидкости).
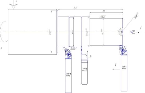
Для разработки УП для токарного станка с ЧПУ представим рисунок 3.5. Данный рисунок содержит всю необходимую информацию для создания последовательности обработки детали типа "дебалансный вал", назначения инструмента, режимы резания, текст программы, представлены в таблице 3.22. Деталь устанавливается в трехкулачковый патрон относительно нуля, по осям Х и Z определяемых установкой.
На рисунке 3.5 представлена последовательность токарной 005 обработки детали (установ №1).
Тест управляющей программы, 1 токарная операция (установ №1) показан в таблице 3.22.
Предоставленный текст является универсальным для системы управления NC/110, соответственно текст управляющей программы может использоваться на всех станках под управлением системы NC/110. Для использования управляющей программы на других типах станков требуется произвести коррекции в зависимости от типа оборудования.
Рисунок 3.5 - Последовательность токарной
обработки
Таблица 3.22 - Тест управляющей программы
|
№ кадра |
Текст программы |
Пояснение текста программы |
|
% |
Начало |
|
|
1 |
(DIS "DIBALANSNYY VAL01") |
Вывод на дисплей названия программы |
|
2 |
M00 |
безусловный останов, продолжение нажатием кнопки "Пуск" |
|
3 |
G71 G91 G95 G97 X0Z0 |
Программа в мм, относительная система координат, подача в мм/об, начальная точка X0Z0 |
|
4 |
T1.1 M06 S460M04 |
Выбор 1 инструмента и коррекций, включение шпинделя (по часовой стрелке с частотой 460 об/мин), включение СОЖ |
|
5 |
G00 X150Z1 |
Позиционирование, перемещение на координаты |
|
6 |
G1 Z-2F0.2 |
Рабочий ход 3 мм, с подачей 0,2 мм/об |
|
7 |
X-1.5 |
Перемещение на координату |
|
8 |
Z1 |
Перемещение на координату |
|
9 |
G0 X141.5 |
Ускоренный подвод в координату |
|
10 |
G1 Z-196F0.12 |
Рабочий ход с подачей 0,12 мм/об |
|
11 |
G0 X143 |
Ускоренное перемещение на координату |
|
12 |
G82 X101.5 Z-107.45F0.14 |
Включение постоянного цикла обработки с подачей 0,14 мм/об |
|
13 |
G80 |
Выключение постоянного цикла |
|
14 |
T2.2 MO6 S630 M04 |
Выбор 2 инструмента и коррекций, включение шпинделя (по часовой стрелке с частотой 630 об/мин), включение СОЖ |
|
15 |
G0 X98 Z1 |
Ускоренный подвод в координату |
|
16 |
G1 X100.5 Z-2F0.2 |
Рабочий ход с подачей 0,2 мм/об |
|
17 |
X140.5 |
Перемещение на координату |
|
18 |
Z-196 |
Перемещение на координату |
|
19 |
G0 X143 |
Ускоренный отвод в координату |
|
20 |
X150 Z200 М05 |
Перемещение в начальную точку, выключение шпинделя |
|
21 |
T3.3MO6 S315M04 |
Выбор 3 инструмента и коррекций, шпинделя. |
|
22 |
G0 X102 Z1 |
Ускоренный подвод в координату |
|
23 |
Z-10 |
Перемещение на координату |
|
24 |
G1 X96.5 F0.06 |
Рабочий ход с подачей 0,06 мм/об |
|
25 |
G0 X102 |
Ускоренный отвод в координату |
|
26 |
Z-60 |
Перемещение на координату |
|
27 |
G1 X96.5 |
Рабочий ход с подачей 0,06 мм/об |
|
28 |
G0 X102 |
Ускоренный отвод в координату |
|
29 |
X150 Z200 М05 |
Перемещение в начальную точку, выключение шпинделя |
|
30 |
(DIS, TIM) |
Вывод на экран времени обработки |
|
31 |
Пауза |
|
|
32 |
M30 |
Сброс программы |
|
33 |
% |
Конец |