Материал: Разработка конструкции платяного шкафа

Внимание! Если размещение файла нарушает Ваши авторские права, то обязательно сообщите нам

Разработка конструкции платяного шкафа

Содержание

Введение

.        Общая часть

1.1    Описание изделия

.2      Общий вид и основные размеры

.3      Конструкция и материалы

2.      Расчетно-технологическая часть

2.1    Разработка технологического процесса

.1.1   Составление карты технологического процесса

.1.2   Разработка маршрутной схемы

.1.3   Расчет количества оборудования и рабочих мест

.1.4   Описание принятого технологического процесса

.2      Выбор и расчет норм расхода материалов в производстве мебели

.2.1   Расчет норм расхода древесных и облицовочных материалов

.2.2   Баланс перерабатываемых древесных и облицовочных материалов и расчет количества отходов

.2.3   Расчет норм расхода шлифовальных материалов

3.      Разработка плана производственного участка и расстановка оборудования

3.1    Расчет площади рабочих мест

.2      Расчет площади мест межоперационной выдержки

.3      Расчет производственной площади

.4      Расчет общей площади проектируемого цеха

.5      Расчет потребного количества транспортного оборудования

.5.1   Расчет потребного количества роликовых конвейеров

.5.2   Расчет потребного количества траверсных тележек

4.      Энергетическая часть

4.1    Расчет потребного количества электроэнергии на освещение

.2      Расчет потребного количества силовой электроэнергии

5.      Организационно технологическая часть

5.1    Охрана окружающей среды

.2      Охрана труда

.3      Промышленная санитария

.4      Техника безопасности

.5      Пожарная безопасность

Заключение

Список использованной литературы

ВВЕДЕНИЕ

В современном мире мебель является неотъемлемым атрибутом любого помещения дачи, коттеджа, квартиры, кафе или офиса. Однако со временем она может утратить свой первозданный вид при этом морально устареть и совершенно не вписывается в современные тенденции интерьерного дизайна.

Когда-то, в мебельном производстве появилось понятие мобильной мебели. Это такая мебель, которая оснащена колесиками, что позволяет ее без особых трудностей передвигать в радиусе помещения. К ним относятся диваны, раскладные кресла, столы, офисные стулья и т.д.

Своеобразный конструктор представляет собой модульная мебель - это взаимозаменяемые модули, которые можно менять между собой. К этому виду мебели можно отнести и мягкую мебель: пуфики, банкетки с подушками и т.д. Такая мебель обладает рядом преимуществ, главным из этого ряда, это ее многофункциональность.

На современном этапе развития промышленности остро стоит проблема экономии ресурсов, замены дорогих материалов более дешёвыми. Деревообработка идёт путём оптимизации производственных процессов, внедряя более современные технологии в раскрое сырья, автоматизации производств, установки промышленных роботов, которые могут выполнять целый комплекс процессов; также внедряются новые достижения в организацию управления производством. Результатом такой деятельности является снижение себестоимости, повышение производительности, уменьшение процента отходов, что приведёт к значительному снижению затрат.

Целью данной работы является проектирование участка раскроя с высокой производительностью и механизацией труда, малой материалоёмкостью, низкой себестоимостью продукции.

1.      ОБЩАЯ ЧАСТЬ

.1 Описание изделия

В курсовом проекте разработан платяной шкаф. Конструкция шкафа разработана согласно ГОСТ 16371-93 « Мебель бытовая. Общие технические условия». Шкаф платяной предназначен для оборудования жилых помещений и служит для хранения белья и одежды.

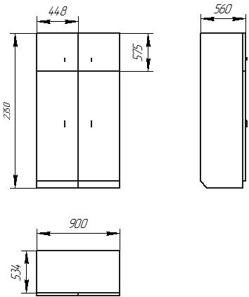
.2 Общий вид и основные размеры

Платяной шкаф размером 2350х900х560 состоит из основного отделения и антресоли. Основной шкаф разделен на два отделения: первое отделение предназначено для хранения верхней одежды, второе отделение разбито на шесть частей полочками для хранения белья. Над основным шкафом располагается антресоль.

.3 Конструкция и материалы

Шкаф изготовлен из плит ЛДСтП (рисунок 1.1.). Собран из: стенки вертикальной, стенки горизонтальной верхней, стенки горизонтальной нижней, стенки вертикальной средней, крышки верхней, полок, стенки задней накладной (таблица 1.1.). Вся конструкция соединяется на эксцентриковые стяжки. Размеры элементов эксцентриковые стяжек и установочные размеры регламентируются ОСТ 13-78-79. Для изделия стяжка выбирается из каталога мебельной фурнитуры. Распашные двери навешиваются на четыре шарнирные фиксирующие петли с углом открывания 1100. Фурнитура соответствует требованиям ОСТ 13-40-89 «Фурнитура мебельная. Общие технические условия». Кромки облицовываются кромочным материалом. Защитно-декоративные покрытия выполняются в соответствии с ОСТ 13-27-82 «Покрытия защитно-декоративные на мебели из древесины и древесных материалов». Конструкция изделия предусматривает возможность сборки его на дому у покупателя без применения специального инструмента, оборудования и приспособлении.

Гайки стяжек, устанавливаются на соответствующие элементы изделия на предприятии-изготовителе.

Отверстия под установку стяжек и фурнитуры сверлятся на предприятие изготовителя.

Крепежная фурнитура, не установленная на основные элементы изделия, упаковывается в пакет или коробку.

Рисунок. 1.1. Эскиз платяного шкафа

Таблица 1.1 Перечень деталей платяного шкафа.

Наименование деталей

Материал

Количество

1

Стенка вертикальная

ЛДСтП

2

2

Дверь верхняя

ЛДСтП

2

3

Дверь нижняя

ЛДСтП

2

4

Нижняя горизонтальная стенка

ЛДСтП

1

5

Верхняя горизонтальная стенка

ЛДСтП

1

6

Средняя вертикальная стенка

ЛДСтП

1

7

Крышка верхняя

ЛДСтП

1

8

Полка

ЛДСтП

6

9

Стенка задняя накладная

ДВП

1

10

Штанга для одежды

хромированная

1



2.      РАСЧЕТНО-ТЕХНОЛОГИЧЕСКАЯ ЧАСТЬ

Процесс производства изделий зависит от конструкции отдельных его элементов, вида исходного сырья и наличия оборудования. Технологический процесс состоит из совокупности технологических процессов изготовления отдельных деталей, сборки их в сборочную единицу (если необходимо), обработки сборочных единиц и общей сборки изделия.

При выборе оборудования необходимо учитывать масштаб производства. Для крупносерийного и массового производства технологический процесс строится по принципу поточного производства с использованием автоматических и полуавтоматических линий. При работе предприятия по заказам, используется универсальное оборудование, которое не отличается высокой производительностью, но легко может быть перенастроено для выполнения различных технологических операций.

Структура технологического процесса принципиально зависит от вида выбранных конструкционных и облицовочных материалов.

.1 Разработка технологического процесса

.1.1 Составление карты технологического процесса

Карта технологического процесса на сборочную единицу разрабатывается по утвержденным типовым формам. Исходным документом для составления технологических карт сборочной единицы является эскиз платяного шкафа (рисунок 1.1), спецификация (таблица 2.2) и карта раскроя (рисунок 2.2). Разработанная технологическая карта цеха раскроя, и механической обработки приведена в форме 1.

.1.2 Разработка маршрутной схемы

Для увязки маршрутов обработки всей совокупности деталей, сборочных единиц и расчета необходимого количества оборудования разрабатывается схема технологического процесса.

Схема представляет собой условное графическое изображение технологического процесса изготовления изделия, показывающее последовательность операций и оборудования, на котором они выполняются.

Маршрутная схема раскроя платяного шкафа приведена в форме 2.

Форма 1. Карта технологического процесса

номер

Наименование и содержание операции

Обозначение детали по чертежу

Размеры детали после обработки

Обозначение станка

Инструмент, приспособление, средства защиты работающего

Документ по контролю инструмент контроля

Количество деталей

разряд

Количество рабочих




Д

Ш

Т







1

Раскрой












Раскроить плиту ЛДСпТ на заготовки лист 1

Стенка вертикальная Средняя вертикальная стенка Крышка верхняя Полка

2350 1674  900 412

534 534  534 490

16 16  16 16

Станок для раскроя плит ЦТ4Ф

Пилы дисковые Ø 320, Ø360 ГОСТ 97669-79 наушники

Рулетка 3м ГОСТ 7502-98

2 1  1 2

4 3

1 1


Раскроить плиту ЛДСпТ на заготовки лист 2

Дверь верхняя Дверь нижняя Полка

575 1740 412

448 448 490

16 16 16

Станок для раскроя плит ЦТ4Ф

Пилы дисковые Ø 320, Ø360 ГОСТ 97669-79 наушники

Рулетка 3м ГОСТ 7502-98

2 2 4

4 3

2

2

Калибрование












Калибровать заготовки по размеру

Стенка вертикальная Средняя вертикальная стенка Крышка верхняя Дверь верхняя Дверь нижняя Полка

2350 1674  900 575 1740 412

534 534  534 448 448 490

16 16  16 16 16 16

Линия МКФ-2

Шкурка шлифовальная № 80-50, лепестковая повязка, респиратор.

Калибр №10, штангенциркуль

2 1  1 2 2 6

4

2

3

Облицовка












Облицевать торцевые поверхности детали

Стенка вертикальная Средняя вертикальная стенка Крышка верхняя Дверь верхняя Дверь нижняя Полка

2350 1674  900 575 1740 412

534 534  534 448 448 490

16 16  16 16 16 16

Линия МКФ-2

Облицовочная лента МКР-1 ТУ13-771-84, клей расплав

линейка

2 1  1 2 2 6

4

2

4

Сверление












Сверление деталей под соединение

Стенка вертикальная Средняя вертикальная стенка Крышка верхняя

2350 1674  900

534 534  534

16 16  16

Сверловочный станок СГВП-1А

Сверло Ø 8 мм, Ø 12 мм ГОСТ 885-77

Калибр №8

2 2  1

4

2


Сверление деталей под установку фурнитуры

Дверь верхняя Дверь нижняя

575 1740

448 448

16 16

Сверловочный станок СГВП-1А

Сверло Ø 4 мм ГОСТ 885-77

Калибр №4

2 2

4

2


Форма 2. Маршрутная схема технологического процесса

Наименование детали

материал

количество

Размеры детали

Оборудование




Д

Ш

Т

ЦТ4Ф

МФК-2

СГВП-1А

Рабочее место







Операции







Форматный раскрой

Облицовка кромок

Сверление отверстий под сборку

Сборка установка фурнитуры

Шкаф платяной

ЛДСтП

1

2350

900

560





Стенка вертикальная

ЛДСтП

2

2350

534

16





Дверь верхняя

ЛДСтП

2

575

448

16





Дверь нижняя

ЛДСтП

2

1740

448

16





Верхняя горизонтальная стенка

ЛДСтП

1

862

534

16





Нижняя горизонтальная стенка

ЛДСтП

1

862

534

16





Средняя вертикальная стенка

ЛДСтП

1

1674

534

16





Крышка верхняя

ЛДСтП

1

900

534

16





Полки

ЛДСтП

6

412

490

16





Стенка задняя накладная

ДВП

1

2300

900








2.1.3 Расчет количества оборудования и рабочих мест

Участок раскроя ЛДСтП

Рисунок 2.2. Схема раскроя листов.

Для раскроя плит ЛДСтП на форматные заготовки принимаем станок ЦТ4Ф.

Производительность станка ЦТ4Ф, шт./заг. рассчитывается по формуле:

(2.1)

где,U - скорость подачи  =20 м/мин;

Кд - коэффициент использования рабочего времени, Кд=0,7

Км-коэффициент использования машинного времени, Км=0,9

n - количество плит на станке (n = 2);

z - количество пропилов при раскрое плиты, определенных по карте раскроя;

 - сумма длин пропилов при раскрое плиты, определяется по карте раскроя;

ΔLр - меж торцевой разрыв при подаче плиты в станок

ΔLр = (0,4…0,5 м).

Производительность станка ЦТ4Ф при раскрое 1 листа (дверь верхняя, стенка вертикальная, средняя дверь, крышка верхняя)

 шт

Производительность станка ЦТ4Ф при раскрое 2 листа (дверь нижняя, дверь верхняя, полочки)

 шт

Производительность станка облицовывания продольных и поперечных кромок МФК-2 рассчитывается по формуле:

(2.2)

где,U - скорость подачи  =12 м/мин;

Кд - коэффициент использования рабочего времени, Кд=0,9

Км-коэффициент использования машинного времени, Км=0,8

m - количество проходов;

- размер обрабатываемой поверхности.

 шт

Производительность станка для сверления отверстий СГВП-1А.

Производительность СГВП-1А, шт:

(2.3)

где Тсм - время смены, Тсм=480 мин;

Кд - коэффициент использования рабочего времени, Кд=0,7;

tц - время цикла, tц=0,2мин.

Км-коэффициент использования машинного времени, Км=0,9

 шт.

Норма времени на деталь рассчитывается по формуле:

(2.4)

Норма времени для станка ЦТ4Ф:

 часов

Норма времени для станка МФК-2:

 часов

Норма времени для станка СГВП-1А:

 часов

Расчетное время на изготовление комплекта деталей определяем по общей формуле: