Материал: Разработка единого технологического процесса обработки детали типа втулка

Внимание! Если размещение файла нарушает Ваши авторские права, то обязательно сообщите нам

Расчет ведем для размера  мм

Т - допуск на размер T = 200 мкм.

Определяем погрешность базирования

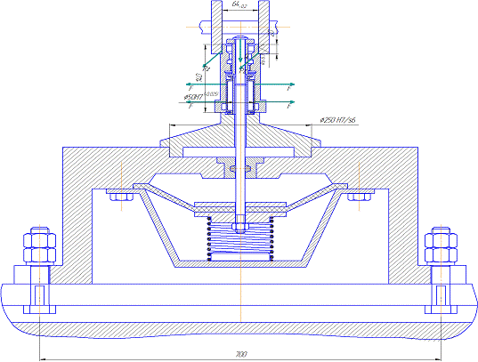
Зажим заготовки осуществляется по внутреннее поверхности детали с помощью гофрированных втулок.

Погрешность базирования призмах будет равна допуску на изготовления поверхности базирования  мкм

Расчёт СП в направлении размера 64 мм.

Операционная точность размера: Т(64)=0.2 мм

Погрешность базирования : ξБ(50)=0.025 мм

Расчётное выражение (1), с учётом известных значений:


Выявляем составляющие с нулевым значением (например, в порядке их записи слева направо).

ξЗ=0, так как привод зажимного устройства механизирован (пневмокамера); если перейти на ручной зажим, то также ξЗ=0, потому, что направление зажима перпендикулярно направлению получаемого размера, и следовательно, деформации СП не отражаются на точности размера.

Износу подвергаются левая и правая призмы ( опорная база); принимаем, что погрешность износа не равна нулю, .

Погрешность положения приспособления на станке в направлении получаемого размера, т.е., в вертикальном направлении, отсутствует, так как никакого зазора между основанием приспособления и столом станка нет: =0.

Погрешность приспособления так же не равна нулю, так как основная конструкторская и технологическая база в вертикальном направлении не совпадают.

Погрешность положения установа, определяемая точностью расстояния между указанной верхней образующей контрольной оправки и горизонтальной рабочей поверхностью установа, как следует, из рисунка 6, тоже не равна нулю.

Уравнение (1) с учётом нулевых значений составляющих:


Принимаем:

;


По найденному значению точности, соответствующему принятым условиям обработки, подбираем метод обработки.

Тогда получаем:

Из полученного уравнения определяем ξСР=0,268мм

Учитывая принятое равенство неизвестных средней величине, переходим на этап оценки и/или уточнения полученных результатов.

Известно, что величина износа (U) и погрешность износа связаны между собой выражением


где γ - угол между направлением износа и направлением получаемого размера (для прямой призмы и вертикального направления получаемого размера ).

Тогда,  =0,517 мм.

Из эмпирического выражения определяем количество (N) установок заготовок (нарастающим итогом до критического износа установочного элемента). Имеем: для призмы β=0,6; тогда 0,136х 1000= и N=51377 шт. Для деталей массой до 8 кg условиям среднесерийного производства отвечает максимальная годовая программа до 5000 штук; тогда приспособление «не износится» более 10 лет. Таким образом, для проектного расчёта можно считать, , и расчётное уравнение принимает иной вид:

Новое среднее значение составляющей погрешности (после решения уравнения):

 = 0,284 мм.

 мм

5.2 Расчёт силы зажима

Определение расчётной величины нажимного усилия;

Рис.4. Схема действия сил в приспособлении

Крутящий момент на валу фрезы равен 542 Нм (из предыдущих расчетов).

Разложим его на две составляющие : на горизонтальную и вертикальную. Сила от горизонтальной составляющей будет стремиться опрокинуть деталь, а сила от вертикальной составляющей будет стремиться прокрутить деталь вокруг своей оси.

Мкр гор. = Мкр х sin = 542 х sin 2.08 = 20 Нмкр верт = Mкр x cos = 542 х cos 2.08 = 541 Нм

где =2.08 - угол подъема витков фрезы (ГОСТ 9324-80)

Требуемая сила прижима, чтобы уравновесить силу опрокидывания

Рz= 1084 Н (из предыдущих расчетов)

в) Расчет гофрированных втулок [11, т.2, стр.154-161]

Исходные данные для расчета:

диаметр базового отверстия втулки dз=50H7 мм;

длина базового отверстия lз=85 мм;

поле допуска на диаметр dз= 25 мкм;

крутящий момент от сил резания Mкр = 541 Нм

) По известному значению диаметра dз базирования заготовки находим по таблице 21 [1, с.158] основные геометрические размеры гофрированной втулки:


D1= 49.8мм; D2=35.5 мм; h=0,75 мм; d1=46 мм; d2=38 мм; L=30,5 мм, l=10,5 мм, l1=9,5мм ; l2=4,5 мм; l3=6 мм

) Номинальный наружный диаметр гофрированной втулки, мм:

н = dз - гар = 50-0,02=49,98 мм

где: dз=50мм, гар= 0,02 мм

) Номинальный диаметр центральной расточки гофрированной втулки

= Dн - 2h = 49,98 - 2 х 1= 47,98 мм

) Приращение наружного диаметра

Dн = Dн+ dз + гар =4+25+20=49 мкм

где Dн= 4мкм - допуск на наружный диаметр гофрированной втулки;

) Осевое сжимающие усилие, которое нужно приложить к гофрированным втулкам для установки заготовки:

Рз=Dн /  = 49,98 /0,0088 = 5649 Н

где  = 0,0088 мкм/Н - расчетный коэффициент таб.21 [1,c.158]

) Наибольшее напряжение, возникающее в материале гофрированной втулки при нагружении осевым сжимающим усилием Рз,

=5649*0.089 = 505 МПа

где =0,089 1/мм2 - расчетный коэффициент таб.21 [1,c.158]

) Число гофрированных втулок оправки: n=2, если 2L<l3, n=1, если 2L >lзаг

) Крутящий момент, гарантированно передаваемый спроектированной оправкой равен

кр гар= 1,5 dз2 Рзn 10-4=1,5  49.982х 5649 х2 * 10-4 = 13292 Нм

Должно быть соблюдено условие:

кр гар >. Mкр х к = 542 х 2,5=1355 Нмм

где к=2,5 - коэффициент запаса

Условие соблюдено.

Qн = 5649 Н

Коэффициент запаса рассчитываем по формуле из /3, с.85 /

К = Ко*К1*К2*К3*К4*К5*К6

где Ко - коэффициент гарантированного запаса

К1 - коэффициент учитывающий увеличениесил резания из -за случайных неровностей

К2 - коэффициент характеризует увеличение сил резания вследствие затупления режущего инструмента.

К3 - коэффициент учитывает увеличение сил резания при прерывистом резании;

К4 - коэффициент характеризует постоянство закрепления в зажимном механизме

К6 - коэффициент учитывающий наличие моментов стремящихся повернуть заготовку, установленную плоской поверхностью на постоянные опоры

Значения Ко, К1, К3, К4, К5, К6 принимаем из /3, с.85/

Значения К2 принимаем из /3, с.84 табл 9/

К = 1.5*1*1*1*1.3*1*1=1.95

Так как значение К меньше 2.5 принимаем К=2.5

Qр = Qmax×k = 5649×2.5 = 14122 Н

Определение силовых и геометрических параметров двигателя зажимного устройства

Диаметр пневмоцилиндра определяем по формуле


 - давление сжатого воздуха в пневмосети 0.5 Мпа.

C учетом трения в механизме усилие Q будет равно

 Н

 мм

После округления до ближайшего большего нормального размера, получим окончательно D = 275 мм.

Для установки принимаем мембранный пневоцилиндр с тянущей силой на штоке большей 36000 Н, что больше необходимой силе зажима.

Рекомендуемая литература

1 Красикова А.Г. “Справочник технолога машиностроителя” в 2-х томах М. “Машиностроение” 1986 г.

. Режимы резания для токарных и сверлильно-фрезерных станков с числовым программным управлением: Справочник. 2-е изд. /Под ред. В.И Гузеева - М.: Машино-строение, 2007 г. 368 с, ил.

. Режимы резания на работы, выполняемые на шлифовальных и доводочных станках с ручным управлением и полуавтоматах: Справочник / Д. В. Ардашев [и др.]. - Челябинск: АТОКСО, 2007. - 384 с.

. Оснастка для станков с ЧПУ: Справочник /Ю. И. Кузнецов, А. Р. Маслов, А. Н. Байков. - 2-е изд., перераб. и доп. - М.: Машиностроение, 1990. - 512 с, ил.

. Технологические регламенты процессов металлообработки и сборки в машино-строении: учебное пособие/ А.Г. Схиртладзе, В.П. Борискин, А.И. Пульбере [и др.]. - 3-е изд., перераб. и доп. - Старый Оскол: ООО «ТНТ», 2009. - 424 с.

Локтев А.Д. “Общемашиностроительные нормативы режимов резания. ” Справочник в 2 - х томах. М. Машиностроение 1991 г.

Добрыднев И.С. курсовое проектирование по предмету “Технология машиностроения” М. Машиностроение 1985 г.

Ансеров М.А. “Приспособление для машинорежущих станков” М. “Машиностроение” 1975 г.

Силантьева Н.А. “Техническое нормирование труда в машиностроении.” М. “Машиностроение” 1998 г.

Моисеев В.В. “Проектирования приспособлений для металлорежущих станков” Методическое пособие. Ю-Сах ЮСГПИ 1994 г.

Анурьев В.И. “Справочник конструктора - машиностроителя в 3-х томах”, М. “Машиностроение” 1980 г.

Журавлев В. И. “Машиностроительные стали” Справочник, - М., “Машиностроение” 1992 г. 480с.

. Горбацевич А. Ф. , Шкред В. А. “Курсовое проектирование по технологии машиностроения” - Мн. Высшая школа, 1983 - 256 c.

. Худобин Л. В., Гурьянихин В. Ф. “Курсовое проектирование по технологии машиностроения” - М. “Машиностроение”, 1989 - 288 c.

. Жуков Э. Л., Козарь И. И. “Технология машиностроения” 2 книга - М. “Высшая школа”, 2005 г. - 295 c