смещение горизонтали по поребрику вычисляется по формуле (9):
расстояние между соседними горизонталями вычисляется по формуле (10):
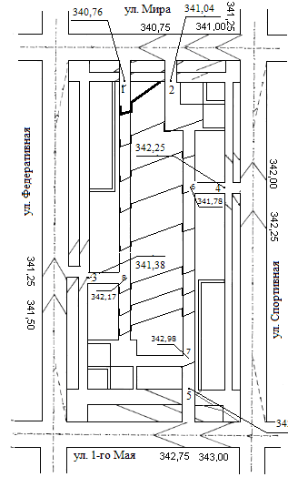
Местоположение проектных
горизонталей между остальными точками вычисляются аналогичным образом. Пример
расположения горизонталей изображен на Рисунке 17.
Рисунок 17 - Определение положения
проектных горизонталей на внутриквартальных проездов
1.8
Определение положения горизонталей на отмостке зданий
Проектные отметки площадок под здания, расположенные по красным линиям микрорайона, со стороны главных фасадов определяются по проектным горизонталям, запроектированным для прилегающих улиц. Со стороны дворовых фасадов высоты углов площадок под здание назначаются таким образом, чтобы максимальная разность угловых отметок не превышала предельного значения и чтобы был обеспечен отвод поверхностных вод от здания. Уклоны по противоположным сторонам могут быть равными.
Рассмотрим вычисление проектных горизонталей в
границах отмостки на примере 5-ти этажного здания, которое находится на 2-ом
перекрестке (рисунок 18):
Рисунок 18 - Изображение проектного
рельефа горизонталями в границах отмостки
1.9
Проектирование рельефа на не застроенной территории
Рельеф территорий, расположенных между линиями застройки, зданиями и проездами, проектируется в виде отдельных плоскостей таким образом, чтобы в микрорайоне не образовались бессточные места, чтобы уклон плоскостей был достаточен для обеспечения стока поверхностных вод (min 5‰), удовлетворял архитектурным требования и обеспечивал хорошие условия для произрастания растительности. Считая, что в проекте принята сплошная система вертикальной планировки, проектные горизонтали с одинаковыми отметками, нанесенные на план улиц, внутриквартальных проездов и отмосток зданий, соединяют между собой в границах незастроенной территории квартала отрезками прямых линий и таким образом получают изображение незастроенной территории проектными горизонталями.
Раздел 2. Вычисление
объемов земляных работ
.1 Вычисление объемов
земляных работ для территории микрорайона
Вычисление объёмов земляных работ на территории микрорайона будет производиться способом четырёхгранных призм.
Сущность метода 4-гранных призм заключается в определении объемов отдельных земляных призм, основаниями которых являются четырехугольники (как правил, квадраты, а на границах территорий - прямоугольники или трапеции) проектной и существующей поверхностей земли, а боковыми поверхностями - вертикальные плоскости, проходящие через стороны этих четырехугольников, с последующим суммированием объемов призм для всей территории микрорайона.
Подсчёт объёмов земляных работ для территории микрорайона включает следующие этапы:
вычерчивание на листе миллиметровой бумаги плана линий застройки микрорайона с членением его территории на квадраты и трапеции. Масштаб плана 1:1000 (прил.2);
вычисление существующих (табл.1) и проектных
отметок (табл.2) вершин квадратов и трапеции для данного варианта в
соответствии с порядковым номером студента (N=9);
Таблица 1.
|
|
1 |
2 |
3 |
4 |
5 |
|
|
1 вариант |
A |
437,33 |
440,04 |
435,17 |
438,30 |
441,39 |
|
|
B |
438,64 |
440,91 |
436,03 |
439,15 |
441,28 |
|
|
C |
436,49 |
439,30 |
434,36 |
437,49 |
440,06 |
Таблица 2.
|
|
Проектная высота вершины А1 |
Проектные уклоны |
|
|
|
|
А1-А5 |
|
|
Вариант 1 |
437,37 |
+0,020 |
-0,008 |
Вычислим проектные отметки наших точек:
- вычисление рабочих отметок вершин
фигур. Вычисленные проектные, существующие и рабочие отметки указываются на
плане микрорайона у вершин фигур в виде дроби: в числителе - проектную, в
знаменателе - существующую, слева от дроби- рабочую
Рабочая отметка представляет собой разность проектной и существующей отметок. На той части территории, где рабочии отметки вершин квадратов положительные необходимо проводить подсыпку грунта, а где отрицательные - срезку
определение положения линий нулевых работ. Расстояния от точек нулевых работ до ближайших вершин фигур вычисляется по формулам:
(11)
где а - длина стороны квадрата (прямоугольника или трапеции);
|h1|, |h2| - абсолютные значения рабочих отметок конечных точек стороны квадрата;
l1, l2 - расстояние от точки нулевых работ до вершин квадрата, имеющей соответственно рабочую отметку h1 или h2. Сумма этих расстояний должна быть равна длине стороны квадрата.
- нумерация фигур;
- вычисление площадей фигур;
- вычисление объёмов насыпи и выемки по формуле:
(12)
Подсчёт объёмов ведётся в табличной
форме (табл. 3)
Вычисление объёмов насыпи и выемки для территории микрорайона
Таблица 3.
|
№ фигуры или ее части |
Количество вершин |
Сумма рабочих отметок, м |
Средняя рабочая отметка, м |
Площадь фигуры или её части, м² |
Объем фигуры или её части, м³ |
|
|
|
|
|
|
|
Выемка -V |
Насыпь +V |
|
1 |
4 |
+0,37 |
+0,09 |
156,25 |
|
17,19 |
|
2 |
3 |
+4,83 |
+1,61 |
126,25 |
|
203,26 |
|
3 |
3 |
+4,50 |
+1,50 |
1186,87 |
|
1780,31 |
|
4 |
3 |
+7,44 |
+2,48 |
625,00 |
|
1550,00 |
|
5 |
4 |
+10,33 |
+2,58 |
2500,00 |
|
6456,25 |
|
6 |
3 |
+2,89 |
+0,96 |
555,50 |
|
424,03 |
|
7 |
3 |
+2,07 |
+0,69 |
1357,22 |
|
936,48 |
|
8 |
3 |
+2,11 |
+0,70 |
44,00 |
|
30,95 |
|
9 |
4 |
-4,61 |
-1,15 |
2343,75 |
2683,59 |
|
|
10 |
3 |
-2,94 |
-0,98 |
561,88 |
550,64 |
|
|
11 |
3 |
-1,21 |
-0,40 |
793,28 |
319,95 |
|
|
12 |
5 |
-6,38 |
-1,28 |
2749,28 |
4325,16 |
|
|
13 |
4 |
-4,71 |
-1,18 |
1097,25 |
1292,01 |
|
|
14 |
4 |
+7,11 |
+1,78 |
1652,75 |
|
2937,76 |
|
15 |
4 |
+7,33 |
+1,83 |
2750,00 |
|
6166,88 |
|
16 |
4 |
+1,86 |
+0,46 |
1393,70 |
|
648,07 |
|
17 |
4 |
-2,18 |
-0,54 |
1631,30 |
889,06 |
|
|
18 |
3 |
+0,04 |
+0,01 |
0,71 |
|
0,09 |
2.2 Вычисление объёмов
земляных работ для участка улицы
Определение объёма земляных работ выполняется в следующей последовательности:
вычисление проектных высот по оси улицы на
пикетах 0,1,2 (табл.4).
Отметки точек по оси и границам улицы
Таблица 4.
|
№ |
Проектные высоты |
Существующие высоты |
||||||||||
|
|
|
По оси улицы |
По границам улицы |
|||||||||
|
|
ПК0 |
ПК1 |
ПК2 |
ПК0 |
ПК1 |
ПК2 |
Левая |
Правая |
||||
|
|
|
|
|
|
|
|
ПК0 |
ПК1 |
ПК2 |
ПК0 |
ПК1 |
ПК2 |
|
1 |
114,0 |
113,0 |
112,0 |
115,3 |
111,5 |
113,1 |
115,3 |
111,5 |
113,1 |
115,3 |
111,5 |
113,1 |
определение проектных высот всех характерных
точек поперечников улицы на тех же пикетах:
Проектные высоты характерных точек правой половины поперечника улицы равны проектным высотам соответствующих точек левой половины ввиду симметричности поперечного профиля.
вычисление существующих отметок характерных точек поперечников на ПК0,1,2. Отметки точек по оси и границам улицы определяются по данным табл. 4, а остальных точек (A,C,D,E) -интерполяцией. При этом земная поверхность от оси до границы улицы принимается за плоскость.
вычерчивание плана улицы с делением её территории на прямоугольники, ширина которых равна ширине тротуаров, газонов и половине проезжей части, а длина - 50м (прил. 3).
определение рабочих отметок вершин прямоугольников и положения линий нулевых работ, вычисление объёмов земляных работ по методу четырёхгранных призм.
Объемы определяются, так же как и в п. 2.1.
Ведомость подсчета объёма земляных работ
Таблица 5
|
№ фигуры или ее части |
Кол-во вершин |
Сумма рабочих отметок, м |
Средняя рабочая отметка, м |
Площадь фигуры или её части, м² |
Объем фигуры или её части, м³ |
|||||
|
|
|
|
|
|
Выемка -V |
Насыпь +V |
||||
|
1 |
4 |
-2,21 |
-0,55 |
148,01 |
163,55 |
|
||||
|
2 |
4 |
-2,43 |
-0,61 |
195,26 |
237,24 |
|
||||
|
3 |
4 |
-2,78 |
-0,70 |
173,70 |
120,72 |
|
||||
|
4 |
4 |
-2,78 |
-0,70 |
173,70 |
120,72 |
|
||||
|
5 |
4 |
-2,43 |
-0,61 |
195,26 |
237,24 |
|
||||
|
6 |
4 |
-2,21 |
-0,55 |
148,01 |
163,55 |
|
||||
|
7 |
4 |
+3,39 |
+0,85 |
226,99 |
|
192,37 |
||||
|
8 |
4 |
+3,17 |
+0,79 |
254,74 |
|
201,88 |
||||
|
9 |
4 |
+2,82 |
+0,70 |
176,26 |
|
124,26 |
||||
|
10 |
4 |
+2,82 |
+0,70 |
176,26 |
|
124,26 |
||||
|
11 |
4 |
+3,17 |
+0,79 |
254,74 |
|
201,88 |
||||
|
12 |
4 |
+3,39 |
+0,85 |
226,99 |
|
192,37 |
||||
|
13 |
4 |
+3,39 |
+0,85 |
244,46 |
|
207,18 |
||||
|
14 |
4 |
+3,17 |
+0,79 |
274,32 |
|
215,81 |
||||
|
15 |
4 |
+2,82 |
+0,70 |
189,80 |
|
133,81 |
||||
|
16 |
4 |
+2,82 |
+0,70 |
189,80 |
|
133,81 |
||||
|
17 |
4 |
+3,17 |
+0,79 |
274,32 |
|
215,81 |
||||
|
18 |
4 |
+3,39 |
+0,85 |
244,46 |
|
207,18 |
||||
|
19 |
4 |
-1,81 |
-0,45 |
130,54 |
59,07 |
|
||||
|
20 |
4 |
-2,03 |
-0,51 |
175,68 |
89,16 |
|
||||
|
21 |
4 |
-2,38 |
-0,60 |
170,20 |
101,27 |
|
||||
|
22 |
4 |
-2,38 |
-0,60 |
170,20 |
101,27 |
|
||||
|
23 |
4 |
-2,03 |
-0,51 |
175,68 |
89,16 |
|
||||
|
24 |
4 |
-1,81 |
-0,45 |
130,54 |
59,07 |
|
||||