Материал: Проектирование вертикальной планировки территории микрорайона

Внимание! Если размещение файла нарушает Ваши авторские права, то обязательно сообщите нам

Вычисленные отметки точек и уклоны позволяют без особого труда определить положение проектных горизонталей на перекрестке и прилегающей к ним участках улиц, которое в последующем может быть подвергнуто дополнительной корректировке, если сформированный рельеф не удовлетворяет требованиям обеспечения удобства движения транспорта и пешеходов или производства планировочных работ.

При построении горизонталей на перекрестках, прежде всего, необходимо по отметкам характерных точек (т.т. 1….15) определить, какие горизонтали (с какими отметками) будут располагаться в пределах размостки и участка неразмащиваемой улицы с измененными поперечными уклонами элементов улицы.

Для примера рассмотрим расположение горизонталей в пределах перекрестка на пересечении ул. 1-го Мая и ул. Федеративной. От центра перекрестка до точки 10 при заданной высоте сечения 0,25 м. будут располагаться горизонтали с отметками 342,00 м., 341,75 м.

Для горизонтали с отметкой 341,75 м. расстояния между характерными точками перекрестка и характерными точками горизонтали равны:

расстояние от т.7 до горизонтали по гребню 7-10:

где 342,02м - отметка лотка в т.7, а 0,008 - уклон линии 7-10;

расстояние от т.7 до горизонтали по лотку проезжей части:

 где 0,012 - уклон лотка 7-11;

расстояние от т.7 до горизонтали по верху бордюрного камня:

 где 342,17м - отметка верха бордюрного камня в точке 7;

расстояние от т.8 до горизонтали по верху бордюрного камня:

 где 342,37м - отметка верха бордюрного камня в точке 8, а 0,022 - уклон линии 8-9;

расстояние от т.8 до горизонтали по лотку бордюрного камня;

 где 342,27м - отметка верха бордюрного камня в точки 8, а 0,022 - уклон линии

расстояние от т.9 до горизонтали по верху поребрика:

 где 342,66м - отметка верха поребрика в точке 9, а 0,046 - уклон линии 9-12;

расстояние от т.9 до горизонтали по лотку тротуара:

 где 342,27м - отметка лотка в точке 9;

расстояние от т.5 до горизонтали по красной линии:

 где 342,62м - отметка точки 5 после уравнивания, а 0,044 - уклон красной линии в пределах размостки;

Для горизонтали с отметкой 342,00м расстояния между характерными точками перекрестка и характерными точками горизонтали равны:

расстояние от т.7 до горизонтали по гребню 7-10:

где 342,17м - отметка лотка в точке 7, а 0,013 - уклон линии 7-10;

расстояние от т.7 до горизонтали по лотку проезжей части:

 где 0,012 - уклон лотка 7-11;

расстояние от т.7 до горизонтали по верху бордюрного камня:

 где 342,17 м - отметка верха бордюрного камня в точке 7;

расстояние от т.9 до горизонтали по верху поребрика:

 где 342,37м - отметка верха поребрика в т.9, а 0,022 - уклон линии 8-9;

расстояние от т.9 до горизонтали по лотку тротуара:

 где 342,27м - отметка лотка в точке 9;

расстояние от т.5 до горизонтали по красной линии:

 где 342,62м - отметка точке 5 после уравнивания, а 0,044 - уклон красной линии в пределах размостки;

Вычисленные расстояния позволяют нанести на план перекрестка горизонтали с отметкой 341,75 м. и 342,00 м. Аналогично определяются расстояния для других горизонталей. На рисунке 7 дано изображение горизонталей перекрестка в пределах размостки.

Таким же способом наносятся горизонтали на остальные три перекрестка.

Рисунок 7 - Изображение проектного рельефа на 1-ом перекрестке в горизонталях

1.4 Определение положения горизонталей на участках улиц вне пределах размостки

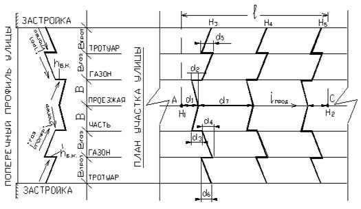
Для определения положения проектных горизонталей в пределах улиц и дорог необходимо знать проектные отметки точек пересечения осей и перегибов продольного профиля, продольный уклон по оси улицы, расстояния между точками пересечения осей и перегибов профиля, а также проекты поперечных профилей (ширину и поперечный уклон элементов улицы - проезжей части, тротуара, газона и др.), которые берем из п. 1.2. На основе этих данных вычисляют по формулам (3) расстояния, определяющие положение горизонталей на плане улицы (рисунок 11):

 (3)

где Н1 и Н2 - проектные отметки точек А и С (рисунок 11) изменения продольного уклона улицы, либо центров перекрестков;

, ,  - поперечный уклон соответственно проезжей части улицы, газона и тротуара;

В, bгаз , bтрот - ширина соответственно проезжей части, газона и тротуара;

hсеч - высота сечения проектного рельефа;

,  - высота бортового камня, отделяющего соответственно проезжую часть от газона и тротуар от газона, равна 0,15м и 0,10м;

Н3 и Н5 - отметки проектной горизонтали на участке между точками с высотами Н1 и Н2, ближайшей соответственно к точке с высотой Н1 и к точке с высотой Н2;

n - число заложений между первой и последней горизонталями с отметками Н3 и Н5.

Для контроля вычисляют горизонтальное расстояние l между точками изменения продольного уклона улицы:


Проектные горизонтали первоначально наносят на план улиц без учета наличия въездов с улиц внутрь кварталов. В последующем корректируют положение горизонталей в пределах въездов на территорию квартала, т.к. у границ въезда тротуар и газон прерываются и отделяются от него бордюрным камнем и при этом поверхность покрытия въезда располагается ниже поверхности газона и тротуара.

Рисунок 8 - Изображение проектного рельефа улицы в горизонталях

Приведем пример расположения горизонтали с отметкой 342,25 м. вне пределах размостки по ул. 1-го Мая:

Вычислив, как будет проходить горизонталь 343,25, вычисляем через какое расстояние будут проходить последующие горизонтали:

Через 20,8м будет проходить горизонталь 343,50 (рисунок 12).

Вычисление расположения горизонталей на остальных улицах вне пределов размостки ведется аналогичным способом.

Рисунок 9 - Изображение проектного рельефа улицы от 1-го до 4-го перекрестка в горизонталях

1.5 Определение положения горизонталей на въезде в микрорайон

Первоначально не принимается во внимание наличие въездов с улиц в квартал. Но после нанесения проектных горизонталей на план улиц выполняется корректировка их положения на въездах, т.к. газон и тротуар у границ въезда прерываются и отделяются от проезжей части въезда бордюрным камнем, что меняет положение горизонталей.

Рисунок 14 - Схема организации рельефа на въезде с улицы в квартал

Для определения положения проектных горизонталей в границах проезда вычисляют отметки точек пересечения оси лотка проезжей части улицы с осями лотков въезда:

НА = Н1 + h * n / (n + m)          (4)

HB = H1 + h * k / (k + t )

где: Н1 - отметка ближайшей к т.А младшей проектной горизонтали на проезжей части улицы;- расстояние от горизонтали с отметкой Н1 до т.А по оси лотка проезжей части улицы;

m - расстояние от т.А до ближайшей к ней старшей проектной горизонтали на проезжей части улицы по оси лотка с отметкой Н2 = Н1 + h;

k и t - расстояния аналогичные n и m, но только для т.В;- высота сечения рельефа.

Далее вычисляют расстояния d1 и d2 по осям лотков въезда: d1 = (H2 - HA)/iвпр; d2 = (H2 - HB) / iвпр , где iвпр - продольный уклон по оси и лоткам въезда; принимается равным проектному поперечному уклону газона и тротуара.

Откладывают на плане от т.А и т.В соответственно расстояния d1 и d2 и полученные точки соединяют отрезком прямой линии. Этот отрезок и является частью проектной горизонтали с отметкой Н2 в границах въезда. Участки горизонтали за пределами въезда не корректируют и сохраняют в первоначальном виде.

Рисунок 15 - Определение положения проектных горизонталей на въезде в квартал

К примеру, для определения положения проектной горизонтали с отметкой 341,25 в границах проезда по ул. Федеративная необходимо вычислить отметки точек пересечения оси лотка проезжей части улицы с осями лотков въезда:

НА = 341,00 + 0,25 * 20 / (8 + 20) = 341,18 м;

HB = 341,00 + 0,25 * 14 / (14 + 14 ) = 341,12 м.

Расстояния d1 и d2 по осям лотков въезда:= (341,25 - 341,18)/0,020 = 3,5 м;

d2 = (341,25 - 341,12)/0,020 = 6,5 м.

На плане откладываем соответствующие расстояния и соединяем их линией горизонтали.

Рисунок 16. Горизонталь с отметкой 341,25 на проезде по ул. Федеративной.

1.6 Вычисление отметок точек пересечения осей внутриквартальных проездов с красными линиями

Используя проектные горизонтали улиц, способом интерполирования вычисляют отметки начальных точек проездов, точки пересечения осей (или одного из лотков) проездов с красными линиями квартала(т.т. 1….5 на рисунке 16). Рассмотрим вычисление всех 5 проектных отметок.

Проектные отметки вычисляются по следующей формуле:

  (5)

где:  - отметка ближайшая к т. i младшей проектной горизонтали улицы;

h - высота сечения рельефа;

n - расстояние по красной линии от горизонтали с отметкой  до т.i;

m - расстояние по красной линии от т.i до ближайшей старшей горизонтали;

 - высота бордюра, отделяющего въезд в квартал от тротуара.

Для т.1 проектная отметка вычисляется по формуле (5):

Для т.2 проектная отметка по формуле (5):

Для т.3 проектная отметка по формуле (5):

Так как через точку 4 проходит горизонталь с отметкой 342,25 м., то отметка этой точки будет равняться отметке горизонтали.

Для т.5 проектная отметка по формуле (5):


Рисунок 16 - Определение отметок точек пересечения осей внутриквартальных проездов с красными линиями

1.7 Определение положения проектных горизонталей для внутриквартальных проездов

После тога, как определены все отметки начальных точек проездов, можно начинать вычислять продольные уклоны проездов, которые определяются по формуле:

 (6)

где  - расстояние между точками I и j; определяется графически по плану квартала.

Продольный уклон проезда (3-5) определяется по формуле (6):

После того, как нашли продольный уклон проезда 3-5, вычисляем отметки т.т. 8 и 6:


Определим теперь продольный уклон по проезду (1-7) по формуле (6):

Вычисляем отметку т. 7:


Затем вычисляем продольные уклоны проездов (3-8) и (6-4) по формуле (6):

После вычисления отметок т.т. 1…8 и назначения продольных уклонов по проездам определяют положение проектных горизонталей на проездах. Проезды, как правило, проектируют с односкатным поперечным профилем с наклоном поверхности проезда в том же направлении, что и существующий рельеф квартала, а величину поперечных уклонов назначают в пределах от 1,5 до 2,5%. Расстояния, необходимые для вычисления проектных горизонталей на план проездов (рисунок 17), вычисляем по следующим формулам:

 (7)

 (8)

 (9)

 (10)

где: Нн - отметка начальной точки проезда;

Нгор - отметка ближайшей к начальной точке проектной горизонтали;

- продольный уклон проезда;

h - высота сечения рельефа;

- поперечный уклон проезда;

b - ширина проезда;

hпор - высота поребрика, отделяющего проезд от прилегающей территории квартала.

Рассмотрим, как будут проходить проектные горизонтали от т.1 до т.8

( рисунок 17):

- расстояние от т.2 до ближайшей горизонтали вычисляется по формуле (7):

- смещение горизонтали вследствие поперечного наклона проезда вычисляется по формуле (8):

смещение горизонтали по поребрику вычисляется по формуле (9):

расстояние между соседними горизонталями вычисляется по формуле (10):

Рассмотрим, как будут проходить проектные горизонтали от т.2 до т.7

( рисунок 17):

- расстояние от т.2 до ближайшей горизонтали вычисляется по формуле (7):

- смещение горизонтали вследствие поперечного наклона проезда вычисляется по формуле (8):