Материал: Проектирование городских систем газа снабжение, Колпакова

Внимание! Если размещение файла нарушает Ваши авторские права, то обязательно сообщите нам

Приложение 3

План квартала жилого района М 1 : 10 000 г. Оренбурга

 

 

Условные обозначения:

 

Ресторан

 

×

Хлебозавод

 

 

Баня

 

 

Котельная

 

 

 

 

 

 

 

 

 

 

 

Прачечная Промпредприятие

При наличии в квартире газовой плиты и централизованного горячего водоснабжения (тип 1)

При наличии в квартире газовой плиты и отсутствии централизованного горячего водоснабжения (тип 2)

При наличии в квартире газовой плиты и проточного газового водонагревателя (тип 3)

60

Приложение 4

Схема газопровода низкого давления г. Оренбурга М 1 : 10 000

ɍɫɥɨɜɧɵɟ ɨɛɨɡɧɚɱɟɧɢɹ

Ⱦɥɢɧɚ ɭɱɚɫɬɤɚ ɝɚɡɨɩɪɨɜɨɞɚ ɦ Ɋɚɫɱɟɬɧɵɣ ɪɚɫɯɨɞ ɝɚɡɚ ɧɚ ɭɱɚɫɬɤɟ ɝɚɡɨɩɪɨɜɨɞɚ ɦ3 ɱ Ⱦɢɚɦɟɬɪ ɝɚɡɨɩɪɨɜɨɞɚ ɦɦ

1–2 Ɋɚɫɱɟɬɧɵɣ ɭɱɚɫɬɨɤ ɇɭɥɟɜɚɹ ɬɨɱɤɚ

ɇɚɩɪɚɜɥɟɧɢɟ ɞɜɢɠɟɧɢɹ ɝɚɡɚ

61

Приложение 5

Схема газопровода высокого давления М 1 : 10 000

ɍɫɥɨɜɧɵɟ ɨɛɨɡɧɚɱɟɧɢɹ

Ɋɟɫɬɨɪɚɧ

ɉɪɨɦɵɲɥɟɧɧɨɟ ɩɪɟɞɩɪɢɹɬɢɟ

Ʉɨɬɟɥɶɧɚɹ

ɉɪɚɱɟɱɧɚɹ

Ȼɚɧɹ

ɏɥɟɛɨɡɚɜɨɞ

Ƚɚɡɨɪɟɝɭɥɹɬɨɪɧɵɣ ɩɭɧɤɬ ȽɊɉ

62

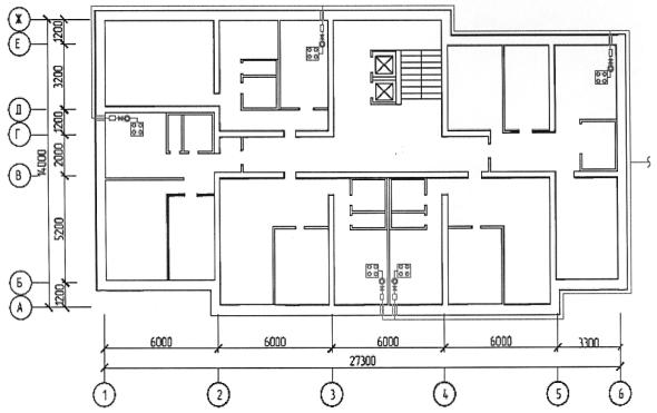
Приложение 6

План первого этажа (М 1 : 10 000)

63

Приложение 7

Аксонометрическая схема внутреннего газопровода

ɍɫɥɨɜɧɵɟ ɨɛɨɡɧɚɱɟɧɢɹ

ɉɥɢɬɚ ɝɚɡɨɜɚɹ ɱɟɬɵɪɟɯɤɨɧɮɨɪɨɱɧɚɹ ɉȽ

Ʉɥɚɩɚɧ ɬɟɪɦɨɡɚɩɨɪɧɵɣ Ʉɪɚɧ ɲɚɪɨɜɨɣ ɋɱɟɬɱɢɤ ɝɚɡɨɜɵɣ

64