Материал: Проект технологического производства двутавровой балки 35Ш3

Внимание! Если размещение файла нарушает Ваши авторские права, то обязательно сообщите нам

Проект технологического производства двутавровой балки 35Ш3

ВВЕДЕНИЕ

Цех прокатки широкополочных балок АО «ЕВРАЗ НТМК» введен в эксплуатацию в 1977 г. Проектная производительность 1,6 млн. тонн.

В целях совершенствования производства для более полного удовлетворения потребностей народного хозяйства, улучшения его качества и повышения эффективности производства необходимо предусматривать существующий прирост наиболее прогрессивных видов проката, расширение сортамента и улучшение эксплуатационных и потребительских свойств металлопродукции, а также снижение материалоемкости проката, рост производительности труда, улучшение условий труда и повышение эффективности капитальных вложений.

Актуальность работы состоит в том, что любое предприятие, чтобы обеспечить эффективную экономику и не отставать в своем развитии, должно проводить внедрение новой техники или реконструкцию существующего оборудования. Поэтому в условиях жесткой конкуренции на мировом рынке необходимо своевременно перестраивать технологические процессы под требования потребителей. Таким образом, расширение сортамента является важным этапом сохранения конкурентоспособности предприятия.

Цель работы - расширение сортамента ЦПШБ.

Задачи:

анализ оборудования цеха;

анализ действующих калибровок для производства двутавров;

расчет формоизменения металла при прокатке двутавровой балки 35Ш3;

расчет энергосиловых параметров прокатки;

расчет скоростного режима прокатки;

расчет температурного режима прокатки.

1       ОБЩАЯ ЧАСТЬ

1.1 Техническая характеристика оборудования ЦПШБ АО «ЕВРАЗ НТМК»

Методические печи

Количество печей - 3 шт.

Производительность одной печи до 160 т/ч.

Вес садки (мах) - 400 т.

Размеры заготовок:

сечение: от 230х320 до 1050х450/110;

длина: от 3600 до 11400 мм.

Вес заготовок: от 1,37 до 15,5 т.

Темп выдачи:

шаг пода (800мм) - 71 с;

шаг пода (1600 мм) 147 с.

Температура нагрева 1240 - 1260 °С

Топливо смешанный природно - доменный газ.

Калорийность топлива 4500 ккал/м².

Давление газа 500 мм вод. ст. (300 мм вод. ст.- у горелок).

Давление воздуха 1200 мм вод. ст.- у вентилятора (600 мм вод. ст.- у горелок).

Температура подогретого воздуха до 400 ºС.

Удельный расход топлива до 500 ккал/кг.

Тепловая мощность печи 80х10 ккал/час.

Расход газа на одну печь до 17800 мм³/час.

Расход воздуха на одну печь до 95000 мм³/час.

Расход воды на 1 печь до 160 мм³/час.

Каждая печь оборудована устройством безударной задачи и выдачи заготовок из печи.

Участок стана

Прокатная линия ЦПШБ представлена универсально-балочным станом (УБС). По расположению клетей на стане УБС относится к полу непрерывному типу станов, в соответствии с рисунком 1.

Рисунок 1 - Участок стана ЦПШБ

подшипник двутавровый балка калибровка

Обжимная клеть

Тип клети - дуо реверсивная. Диаметр валков - 1300 мм. Привод валков индивидуальный от электродвигателей мощностью 2×5250 кВт. Скорость вращения - 0-65-100 об/мин.

Станина клети закрытого типа. Материал - стальное литье. С обеих сторон клеть оборудована двумя станинными роликами.

Нажимное устройство электрическое. Скорость опускания 180 мм/с. Уравновешивание верхнего вала гидравлическое. Подшипники текстолитовые.

С передней и задней стороны клеть оборудована линейками манипуляторов и кантователями крюкового типа.

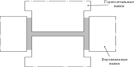
Главная универсальная клеть (ГУК).

Предназначена для обработки шейки, внутренних и наружных поверхностей фланцев при прокатке балок.

Деформация металла в универсальной клети приведена на рисунке 2.

Рисунок 2 - Универсальный калибр

Диаметр горизонтальных валков - 1350-1500 мм. Диаметр вертикальных валков - 900-1100 мм.

Горизонтальные валки приводные, вертикальные - неприводные. Все валки снабжены нажимными устройствами, приводимыми от электродвигателей.

Клеть выполнена с переменным расстоянием между осями стоек станины, что позволяет применять горизонтальные валки различной длины в зависимости от размера прокатываемых балок. Предусмотрены 3 типа расстояний между осями стоек станин: 1500, 1750, 2050 мм.

Вспомогательная клеть (ВК).

Предназначена для обжатия кромок полок и контроля их ширины. По конструкции клеть дуо реверсивная с приводом от одного электродвигателя.

Деформация металла во вспомогательной клети приведена на рисунок 3.

Рисунок 3 - Вспомогательная клеть

Конструкция вспомогательной клети подобна универсальной клети, но в ней отсутствуют вертикальные валки.

Диаметр валков 1100-1250 мм.

Участок перевалки клетей

Для перевалки универсальных и вспомогательных клетей предусмотрены рельсовые направляющие, по которым старые клети выезжают в специальные карманы, а на их место в линию стана задвигаются новые клети. Схема перевалки приведена на рисунке 4.

Рисунок 4 - Схема перевалки клетей

Пилы горячей резки.

Пилы служат для резки раската на заданные длины, обрезки концов и отбора проб. Диаметр дисков - 2000-2200 мм, частота вращения дисков - 1000 об/мин. Толщина дисков - 10 мм. Температура порезки - 700-1000°С.

Установлены 6 пил маятникового типа, из которых 2 стационарные (для обрезки переднего и заднего концов), остальные - передвижные (для резки раската на мерные длины). Перемещение пил осуществляется по направляющим рельсам.

Уборка обрези производится в скиповый подъемник, периодически удаляющий ее в железнодорожные вагоны.

Клеймовочная машина.

Клеймовочная машина предназначена для нанесения клейма накатыванием на стенку балки при её перемещении по рольгангу. Количество знаков в клейме 10, плюс 2 резервных. Клеймовочная машина устанавливается в потоке стана за участком пил горячей резки. Клеймовочная машина выполнена двухдисковой, с нижним стационарным и верхним, нажимным диском.

Центральный холодильник.

Предназначен для охлаждения прокатанного металла. В состав цеха входят три холодильника.

Холодильники №1 и №3 предназначены для охлаждения балок, поступающих по подводящему рольгангу от пил горячей резки и выдачи охлаждённой балки на отводящий рольганг в положении «лёжа».

Холодильник №2 предназначен для охлаждения балок, поступающих по подводящему рольгангу от пил горячей резки и выдачи пакета охлаждённых балок на транспортный рольганг. Каждый холодильник двухсекционный. Перемещение металла осуществляется при помощи шагающих балок.

Роликоправильные машины. Участок правки включает два роликоправильных комплекса, состоящих из горизонтальной и вертикальной роликоправильных машин.

Оба типа машины включают по 8 роликов.

Скорость правки 0,8-2,5 м/с.

1.2 Технологический процесс производства двутавровой балки

Цех прокатки широкополочных балок (ЦПШБ) является цехом по производству двутавров, осевой заготовки, шпунта Л5У-М, квадратной и круглой заготовок, полосы (листа). ЦПШБ состоит из нескольких участков:

участка уборки и вырубки горячего металла (УУВГМ);

участка методических печей (УНП);

универсально-балочного стана (УБС);

участка отделки и отгрузки металла (УООМ);

участка сборки и перевалки клетей (УСПК);

участка подготовки сменного оборудования (УПСО).

Исходной заготовкой для прокатки двутавровых профилей является непрерывно-литая заготовка, полученная на МНЛЗ.

На участке уборки и вырубки горячего металла производится осмотр и приемка непрерывно - литых заготовок. Выявленные поверхностные дефекты удаляются огневой зачисткой.

Нагрев заготовок перед деформацией осуществляется в трех методических пятизонных нагревательных печах с шагающим подом, торцевой загрузкой и выдачей металла. Посад металла в печь производится как в холодном состоянии, так и в теплом (от 200ºС до 500ºС) состоянии. Заготовки садятся по ширине печи следующим образом:

длиной до 5650 мм - в одном ряду две заготовки;

длиной свыше 5650 мм - в одном ряду одна заготовка.

Температура металла на выдаче из печей 1240-1260 °С.

Нагретые до необходимой температуры заготовки прокатываются в обжимной реверсивной клети стана за 5-11 пропусков, температура конца прокатки в обжимной клети не должна быть ниже 1100 ºС.

После прокатки в обжимной клети заготовки по рольгангу поступают в черновую универсальную группу клетей, состоящую из вспомогательной клети (ВК-1) и главной универсальной клети (ГУК-1). В зависимости от размеров двутавра, раскат прокатывается за 1-3 пропусков в автоматическом режиме работы оборудования. Затем раскат транспортируется по рольгангу к предчистовой группе, состоящей из ГУК-2 и ВК-2. Прокат осуществляется за 1-3 пропуска в автоматическом режиме работы оборудования.

После предчистовой группы клетей раскат передается на чистовую клеть, где осуществляется только один пропуск в автоматическом режиме. Температура конца прокатки в чистовой клети должна обеспечить качественную порезку раската на пилах горячей резки и соответствовать таблице 1.

Таблица 1 - Температура конца прокатки

Вид профиля

Температура, не ниже ºС

Сортовой

900

Фасонный

800


Температура измеряется перед ГУК-3 пирометром - спектропиром. Прокатанные в чистовой клети двутавры длиной до 100 мрольгангом передают на участок резки. На стане установлено семь пил горячей резки с дисками диаметром 2000-2200 мм (тип пилы - маятниковая ударного действия). Комплексная автоматизация участка пил горячей резки обеспечивает рациональный раскрой металла на мерные и нормальные длины до 30 м, точную без упорную остановку полосы в положении реза, дистанционную расстановку пил и автоматическую корректировку их положения в зависимости от температуры разрезаемого двутавра. Раскрой металла осуществляется автоматически в три приема, причем обрезка переднего конца каждой очередной полосы совмещается в цикле раскроя с последним ходом пил при резке предыдущей полосы.

1.3 Сортамент выпускаемой продукции

Сортамент ЦПШБ представлен в таблице 2.

Таблица 2 - Сортамент продукции ЦПШБАО «ЕВРАЗ НТМК»

Наименование продукции

Шифр профиля, мм

Нормативный документ на профиль

Двутавр с параллельными гранями полок

20Б - 60Б 20Ш - 70Ш 20К - 40К

СТО 20-93 (СТО АСЧМ 20-93)


40У

P 40-93 (JISG 3192)


20Ш-У


Двутавр с параллельными гранями полок нестандартных размеров

Размеры по ASTMA6, JISG 3192, BS 4

Размерная спецификация Р 40 - 94

Двутавр с уклоном внутренних полок

24М, 30М, 36М, 45М

ГОСТ 19425-74


60

ГОСТ 2239-89

Шпунт

Л5-У

ТУ-192-147-93

Квадратная заготовка

100, 120, 125, 130, 150, 160

ТУ14-1-5237-93

Круглый прокат

120, 130, 140, 150

ГОСТ 2590-88

Заготовка трубная


ОСТ 14-21-77

Заготовка шаровая

120

ТУ 14-2-133-74

Толстолистовой прокат

Толщина от 14 мм и выше, ширина 700 мм

Размерная спецификация Р 45 - 97

Примечание: Б - балочный;Ш - широкополочный;К - колонный; ASTM - стандарт США;JIS - стандарт Японии;BS - стандарт Великобритании.


1.4 Технико-экономические показатели работы цеха за 2016 год

Основные показатели работы цеха за 2016 год приведены в таблице 3.

Таблица 3 - Показатели работы ЦПШБ АО «ЕВРАЗ НТМК» за 2016 год

Наименование

Значение

Годный прокат, т


План

972016

Факт

1017234

Отгрузка, т


План

918300

Факт

952223

Номинальное время работы, ч


План

350,00

Факт

351,26

Текущие простои, ч


План

2192,40

Факт

3362,87

Фактическое время работы, ч


План

6207,60

Факт

5067,35

Производительность, т/ч


План

156,6

Факт

200,7

Брак, т


Всего

1667,054

по металлу

512,842

по прокату

1154,212

Расход металла на 1 т проката, т


План

1,063

Факт

1,076


1.5 Динамика захвата двутавровой заготовки валками обжимной клети 1300 УБС

На Нижнетагильском металлургическом комбинате непрерывнолитые двутавровые заготовки прокатываются в обжимной клети 1300 универсально-балочного стана [11]. При этом очень важно оценить условия захвата двутавровой заготовки калиброванными валками обжимной клети 1300, а также знать характер изменения и величину нормальных и касательных напряжений на контактной поверхности по мере заполнения очага деформации металлом.

Моделирование процесса прокатки двутавровой балки в обжимной клети 1300 универсального балочного стана выполнялось с использованием программного комплекса ANSYS. Расчет проводился в объемной постановке. Упор сделан на определение напряженно-деформированного состояния и характер течения металла, возникающего в очаге деформации при прокатке балки 30Ш в калибрах 1,2 и 3 обжимной клети 1300.

При исследовании напряженно-деформированного состояния двутавровой балки при прокатке пренебрегли инерционными и массовыми силами; деформируемый металл балки считаем несжимаемым. При записи уравнений состояния использовали случай простого нагружения. Для материала проката принята упруго-пластическая модель Прандтля-Рейса.