Материал: Повышение эффективности использования СБИС++

Внимание! Если размещение файла нарушает Ваши авторские права, то обязательно сообщите нам

По НПБ 105-95 [2] помещение технического отдела по пожароопасности относится к категории В4 (помещение с преобразовательным электрооборудованием постоянного и переменного тока).

По правилам устройства электроустановок (ПУЭ) рассматриваемое помещение относится к классу П-IIа, то есть зоны, расположенные в помещении, в которых образуются твердые горючие вещества.

Для предотвращения взрывов и пожаров в отделе имеются следующие средства:

·        пожарная сигнализация, состоящая из систем контроля, оповещения и автоматики с выводом на пульт пожарной части;

·        автоматическая пожарная насосная станция.

В здании, где располагается технический отдел, в 2011 году были проведены работы по улучшению пожарной безопасности включающие в себя:

·        реконструкцию системы пожарной сигнализации с заменой датчиков, извещателей, световых табло;

·        обработку металлических конструкций (лестницы, несущие элементы здания) с целью повышения огнестойкости;

·        замена информационных стендов в коридорах с планами эвакуации и расположениями средств пожаротушения;

·        перезарядка огнетушителей и обновление по необходимости.

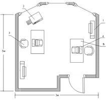
В техническом отделе установлено два пожарных датчика, подключенные в общую систему пожарной сигнализации и огнетушитель ОП-10 (Огнетушитель порошковый). На рисунке 4.3 показано расположение пожарных датчиков и огнетушителя.

Рисунок 4.3 - Расположение датчиков задымления и огнетушителя.

-Принтер, 2-стул, -3 Стол, 4-ПК

Характеристика помещения технического отдела по взрывопожароопасности представлена в таблице 4.4.

Таблица 4.4 - Характеристика помещения с ПЭВМ по взрывопожароопасности и молниезащите

Наименование помещения

Наименование применяемых сгораемых веществ

Категория помещения по НПБ 105-95

Класс помещения (зоны) по ПУЭ

Степень огнестойкости здания по СНиП 21-01-97

Класс здания по пожарной опасности

Наименование применяемых средств пожаротушения







конструктивной

функциональной


Помещение с ПЭВМ или дисплейный класс

Твердые вещества (бумага, деревянные изделия, пластик)

В4

П-IIа

Закрытого типа

II

C1

Ф4.3

Огнетушитель ОП-10



4.5 Расчет и подбор кондиционера для помещения технического отдела ООО "Компьютерный аудит"


Для выбора кондиционера необходимо определить требуемую мощность охлаждения. Этот параметр является основной характеристикой любого кондиционера.

Для расчета мощности охлаждения необходимо подсчитать общее тепловыделение (Q, Вт).

= Q1 + Q2 + Q3, (4.1)

Где Q1 - теплоприток от солнечной радиации;- сумма теплопритоков от людей;- сумма теплопритоков от бытовых приборов.

Рассчитаем сумму теплопритоков от солнечной радиации (Q1).

Рассматриваемое помещение находится на втором этаже трёхэтажного здания, окна ориентированы на юго-запад и имеют тройное остекление в пластиковой раме. Поэтому тепловыделения от солнечной радиации можно определить по формуле:

= Fост ∙ q ∙ Aост,  (4.2)

где Q1 - тепловыделения от солнечной радиации, Вт;ост - площадь остекления, м2;- тепловыделения через 1 м2 поверхности остекления, Вт/м2;

Аост - коэффициент учёта характера остекления.

В рассматриваемом случае Fост = 3 м2, q = 145 Вт/ м2, Аост = 1,15.

Тогда по (4.2)

Q1 = 3 ∙ 145 ∙ 1,15 = 500,25 Вт.

Сумма теплопритоков от персонала отдела (Q2) вычисляется по формуле:

= n ∙ q,(4.3)

где n - количество человек работающих в помещении, шт.;- выделяемое тепло взрослым человеком, устанавливается исходя из вида работы, (Вт):

Вт - в спокойном состоянии;

Вт - при легком движении;

Вт - при физической нагрузке.

Количество человек работающих в отделе n = 2. В связи с тем, что основная работа сотрудников технического отдела происходит в сидячем положении - q = 100 Вт. По (4.3) рассчитаем теплоприток от персонала:

= 2 ∙ 100 = 200 Вт.

Рассчитаем теплопритоки от ПЭВМ и источников освещения (Q3):

= N ∙ n,  (4.4)

где: Q - тепловыделения, Вт;- суммарная мощность устройств, Вт;- коэффициент тепловых потерь (n=0,7 для ПЭВМ, n=0,55 для люминесцентных ламп).

Принимая тепловыделение одной ПЭВМ равное 400 Вт, тепловыделение от 2-х ПЭВМ составит.

Qпэвм = 400 ∙ 2 ∙ 0,7 = 560 Вт.

Тепловыделение люминесцентных ламп ЛБ-20 в количестве 16 шт. составит

ламп = 20 ∙ 16 ∙ 0,55 = 176 Вт.

Суммарное тепловыделение ПЭВМ и светильников (Q3, Вт) будет суммой тепловыделения этих приборов:

= Qпэвм + Qламп = 560 + 176 = 736 Вт.

Общее тепловыделение Q по формуле 4.1 составит:

= 500,25 + 200 + 736 = 1436,25 Вт.

Мощность кондиционера должна находиться в диапазоне от -5% до +15% расчетной мощности Q.

Опираясь на полученные данные, выбираем кондиционер Samsung AQ07UGF (рисунок 4.4). Для обеспечения наилучшей эффективности установим два кондиционера. Второй кондиционер необходим для аварийсной ситуации когда первый выйдет из строя (рисунок 4.5).

Основные характеристики кондиционера представлены в таблице 4.5.

Рисунок 4.4 - Кондиционер Samsung AQ07UGF.

Таблица 4.5 - Характеристики кондиционера Samsung AQ07UGF.

Характеристика

Значение

Принцип установки

Сплит система

Потребляемая мощность

810 Вт

Производительность (охлаждение)

2050 Вт

Функции

Охлаждение, обогрев, осушение, регулировка направления воздушного потока и его скорости


Рисунок 4.5 - Расположение кондиционеров

- Кондиционер, 2-Принтер, 3-стул, -3 Персональный компьютер, 4-Стол

.6 Мероприятия и технические средства по охране окружающей среды в районе расположения объекта исследования


Компания располагается в природоохранной зоне реки Волга, в черте города. Это накладывает более жесткие требования к экологической безопасности. На ООО "Компьютерный аудит" в штатном расписании есть должность инженера-эколога. В его обязанности входит контролирование и надзор за экологической обстановкой в компании. Под постоянным наблюдением находятся места временного хранения оборудования, состояние ливневой канализации, выбросы в атмосферу. Проводятся химические анализы сбрасываемой воды, анализы воздуха на содержание пыли. Инженер-эколог после выявления нарушения экологических норм и правил выписывает предписание к устранению лицу ответственному за участок.

Согласно ГОСТ 15.001-88 [2] для подтверждения соответствия продукции предприятия требованиям охраны здоровья и природы проводится экологическая экспертиза (ЭЭ) всех предплановых, предпроектных и проектных материалов по объектам строительства, документации по созданию новой техники, технологии, материалов и веществ, концепций, программ и планов отраслевого и территориального развития, а также экологические обоснования лицензий и сертификатов. Согласно Закону РФ "Об охране ОПС" (1992г.) ЭЭ может быть государственной и общественной. Порядок государственной ЭЭ объектов федерального, республиканского или местного значения регулируется Положением о государственной ЭЭ, утвержденным Минприродой РФ.

Общественная ЭЭ проводится научными коллективами или общественными объединениями по их инициативе. Ее результаты становятся юридически обязательными только после утверждения их соответствующими органами государственной ЭЭ.

Государственная ЭЭ проводится с целью проверки соответствия хозяйственной и иной деятельности экологической безопасности общества. Государственная ЭЭ является обязательной мерой охраны ОПС, предшествующей принятию хозяйственного решения, осуществление которого может оказать вредное воздействие на ОПС. Финансирование и осуществление работ по всем проектам и программам производится только при наличии положительного заключения государственной ЭЭ.

Государственная ЭЭ включает два этапа: 1) согласование условий природопользования (назначение граничных условий) при выборе места расположения объекта; 2) государственная ЭЭ (согласование) ТЭО (проектов).

Здание, где располагается технический отдел, имеет экологический паспорт. Исходя из проведенного анализа данных пунктов, можно сделать вывод о соответствии условий труда в рассматриваемом помещении технического отдела требованиям СаНПиН 2.2.2.542-96 [14].

Таким образом, в данном разделе были изложены требования к помещению технического отдела ООО "Компьютерный аудит". После проведенных мероприятий по расчету и установке системы кондиционирования, правильному расположению средств пожаротушения, данное помещение соответствует всем санитарно-гигиеническим и пожаро-безопасным нормам.

Заключение


Для достижения поставленной цели, а именно, повышение эффективности работы с системой электронной отчетности СБИС++ за счет использования средств адаптации к особенностям оператора связи, были решены следующие задачи:

. проведен анализ существующих операторов связи и выявлено особенности обмена информацией между ними и клиентами;

. проанализирован состав и структура информационных баз системы электронной отчетности СБИС++;

. разработана программу автоматической настройки информационных баз системы СБИС++ с учетом особенностей оператора связи;

. разработаны средства для учета программных продуктов клиентов на базе системы 1С Предприятие 8.2;

. проведена оценка экономической эффективности предложенных решений. Годовой экономический эффект от внедрения предложенных разработок составил 1913808 рублей, а срок окупаемости проекта - 0.2 года;

. рассмотрены возможные мероприятия по улучшению условий труда персонала, предотвращению чрезвычайных ситуаций и охране атмосферного воздуха. Проведен расчет и выбор кондиционера для помещения, в котором располагается технический отдел.

Таким образом, можно сделать вывод о том, что поставленные цель и задачи дипломного проекта выполнены.

Список использованных источников


1.      ГОСТ 12.0.003 - 1974 Опасные и вредные производственные факторы. Классификация.

.        ГОСТ 12.1.005 - 1988 Система стандартов безопасности труда. Воздух рабочей зоны. Общие санитарно-гигиенические требования.

.        ГОСТ 12.1.005-88. ССБТ Общие санитарно-гигиенические правила к воздуху рабочей зоны.

.        ГОСТ 12.1.003-83.ССБТ Шум. Общие требования безопасности.

.        ГОСТ Р 50923 - 1996 Дисплеи Рабочее место оператора. Общие эргономические требования и требования к производственной среде. Методы измерения.

.        ГОСТ Р 50948 - 2001 Средства отображения информации индивидуального пользования. Общие эргономические требования и требования безопасности.

.        ГОСТ Р 50949 - 2001 Средства отображения информации индивидуального пользования. Методы измерений и оценки эргономических параметров и параметров безопасности.

.        ГОСТ Р 51658 - 2000 Фильтры-экраны защитные для средств отображения информации.

.        Дудников Н.Г., В.В. Лупулов, А.И. Сеселкин Информатика и применение вычислительной техники в туристско-экскурсионных организациях. - М.: Центральное рекламно-информационное бюро "Турист", 1987.

.        Котиков И.М. Пространство технологий абонентского доступа для оператора связи // Технологии и средства связи 2003. №1.

.        Котиков И.М. Технологии проводного доступа для мультисервисных сетей связи // Технологии и средства связи 2003. №3.

.        Проектирование и внедрение компьютерных сетей. Учебный курс 2-е издание / Майкл Палмер. - Спб: БХВ, 2004.

.        Мауфер Т. WLAN Практическое руководство для администраторов и профессиональных пользователей Пер.с англ. - М.: КУДИЦ-ОБРАЗ, 2005.

.        СанПин 2.2.2.542-96 Гигиенические требования к видеодисплейным терминалам, персональным электронно-вычислительным машинам и организации работы.

.        СниП 2.04.05-86 Отопление, вентиляция и кондиционирование.

.        СНиП II-4-85. Естественное и искусственное освещение.

.        СниП II-А.9-71. Искусственное освещение. Нормы проектирования.

.        Стандарт предприятия. Проекты (работы) дипломные и курсовые. Общие требования к оформлению пояснительных записок и чертежей. СТП I-У-НГТУ-98.

.        Методические указания по выполнению раздела "Экологичность и безопасность проекта" в дипломных проектах по специальностям 200700 - "Радиотехника",…,200900 - "Сети связи и системы коммутации" / НГТУ; Сост.: А.Э. Эппель, А.Б. Елькин. Н. Новгород, 1999.

.        Мешков А., Тихомиров Ю. "Visual C++ и MFC. Программирование для Windows NT и Windows 95: В 3-х томах. Том 1". - СПб.: BHV - Санкт-Петербург, 1997. - 464 с., ил.

.        Мешков А., Тихомиров Ю. "Visual C++ и MFC. Программирование для Windows NT и Windows 95: В 3-х томах. Том 2". - СПб.: BHV - Санкт-Петербург, 1997. - 464 с., ил.

.        Мешков А., Тихомиров Ю. "Visual C++ и MFC. Программирование для Windows NT и Windows 95: В 3-х томах. Том 3". - СПб.: BHV - Санкт-Петербург, 1997. - 384 с., ил.

.        Герберт Шилдт "MFC: основы программирования": Пер. с. англ. - К.: Издательская группа BHV, 1997. - 560 с.

.        Visual C++ для Начинающих.