Материал: Повышение эффективности использования СБИС++

Внимание! Если размещение файла нарушает Ваши авторские права, то обязательно сообщите нам

Все это обуславливает необходимость обеспечения безопасности жизнедеятельности работников, а именно, сохранения работоспособности и здоровья человека, выбора параметров состояния производственной среды и применения мер защиты от негативных факторов.

.1 Идентификация потенциальных опасностей и вредностей в помещении технического отдела ООО "Компьютерный аудит"

.1.1 Описание рабочего места, оборудования, выполняемых операций

В данном дипломном проекте разрабатывается программное обеспечение. Целью этого пункта будет рассмотрение опасных и вредных производственных факторов, которые могут возникать у персонала использующего локальную компьютерную сеть. Анализ выполним на основе помещения технического отдела ООО "Компьютерный аудит".

Отдел можно охарактеризовать как инженерную группу службы главного инженера. В отделе работают 2 специалиста: Сетевой инженер, программист.

Некоторые функции, которые выполняет технический отдел:

·        подбор оборудования;

·        программирование;

·        помощь клиентам.

Оборудование, используемое в отделе, включает в себя 2 персональных компьютера и сетевое многофункциональное устройство (МФУ). Род работ - разработка и редактирование технической документации, написание программ.

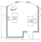
План размещения рабочих мест и оборудования показан на рисунке 4.1.

Рисунок 4.1 - План размещения оборудования в помещении

- Принтер, 2 - стул, - 3 Стол, 4 - Персональный компьютер

Общая характеристика помещения технического отдела представлена в таблице 4.1.

Таблица 4.1 - Исходные характеристики помещения с ПЭВМ

Характеристика помещения

Показатель характеристики

1.

Этаж, на котором расположено помещение

2

2.

Размеры помещения, АЧВЧН, м

3Ч5Ч2,75

3.

Объём помещения, м3

41,25

4.

Количество работающих в помещении (max), чел.

2

5.

Количество ПЭВМ и другой оргтехники, шт.

3

6.

Площадь на одно рабочее место, м2

7,5 м2

7.

Объем на одно рабочее место, м3

20,65 м3

8.

Ориентация оконных проемов (часть света)

Юго-запад

9.

Окраска помещения: стены, потолок, пол, оборудование

 Бежевый Белый Серый (линолеум) Белый, серый, серебристый

10.

Системы обеспечения параметров микроклимата: отопление, вентиляция, кондиционирование

 Центральное водяное Естественное отсутствует

11.

Освещение: - рабочее (тип и количество): - лампы; - аварийное (наличие)

Встраиваемые светильники 4 шт. ЛБ-20, всего 16 лампы. Отсутствует

12.

Наличие штор, занавесей, жалюзи и т.д.

Жалюзи (горизонтальные)

13.

Конструктивные параметры рабочего места с ПЭВМ: стула; стола

 Регулируемая Высота 80 см

.1.2 Характеристика санитарно-гигиенических факторов помещения технического отдела ООО "Компьютерный аудит"

На ООО "Компьютерный аудит" раз в 5 лет проводится аттестация рабочих мест. Последняя аттестация проводилась в 2011 году. На основании данных аттестации можно сделать выводы о соответствии помещения технического отдела требованиям безопасности труда. Данные приведены в таблице 4.2.

Таблица 4.2 - Характеристика факторов производственной среды в помещении с ПЭВМ

Наименование фактора условий труда

Единицы измерения

Значение фактора

Источник или причина, вызывающая превышение норм

Рекомендуемые мероприятия и технические средства



фактическое

нормативное



Температура воздуха (летом/зимой)

оС

28/25

22-24/21-23

Отсутствие кондиционирования воздуха

Установить кондиционер.

Относительная влажность воздуха

%

50

40-60

-

__ .. __

Скорость движения воздуха (летом/зимой)

м/с

0,1

0,2/0,1

-

__ .. __

Запыленность воздуха

мг/м3

0,6

0,5

-

Влажная уборка

Уровень шума

дБА

40

50

-

__ .. __

Освещенность

лк

500

500

-

__ .. __


К опасным и вредным факторам, имеющимся на производстве можно отнести следующие:

·        повышенная запыленность воздуха рабочей зоны;

·        повышенная температура поверхностей оборудования, помещений;

·        повышенный уровень статического электричества, электромагнитных излучений;

·        напряжение цепи, замыкание которой может произойти через тело человека.

В целом по организации для исключения возможности воздействия вредных и опасных факторов на человека приняты ряд мер:

·        организованна вентиляция производственных помещений с целью поддержания требуемых температурных условий;

·        произведено заземление технологического оборудования, в котором возможно появление статического разряда. Кроме того выполнено заземление открытых, токопроводящих элементов конструкции что бы предупредить поражение электрическим током при косвенном прикосновении;

·        проведены ряд мероприятий по уменьшению возможности запыления производственных помещений (установка фильтрующих элементов, пылеуловителей).

Основная работа отдела связана с компьютерами, можно выделить опасные и вредные факторы:

·        повышенный уровень статического электричества, электромагнитных излучений;

·        повышенная температура воздуха в помещении;

·        уровень шума;

·        возможность поражения электрическим током при косвенном прикосновении;

·        повышенная или недостаточная освещенность;

·        повышенная зрительная нагрузка;

·        усталость от статического положения.

) Статическое электричество. Статическое электричество скапливается на мониторах компьютеров, системных блоках и МФУ. В процессе работы оператор может получить электростатический разряд. Электротравм при этом не возникает, так как величины этих разрядов небольшие и они кратковременны. Однако разряд вызывает рефлекторное движение человека, что может привести к резкому движению и как следствие - получение травмы. У людей, работающих в зоне воздействия электростатического поля, встречаются разнообразные жалобы: на раздражительность, головную боль, нарушение сна, снижение аппетита и др. Допустимые уровни напряженности электростатических полей установлены в ГОСТ 12.1.045-84 [5]. "Электростатические поля. Допустимые уровни на рабочих местах и требования к проведению контроля". Допустимые уровни напряженности полей зависят от времени пребывания на рабочих местах.

Предельно допустимый уровень напряженности электростатических полей равен 60 кВ/м в 1 ч.

) Повышенная температура воздуха в помещении. В соответствии с ССБТ ГОСТ 12.1.005-88 [16] в помещении технического отдела должна соблюдаться оптимальная температура воздуха в летний период 22-24 градуса Цельсия, в зимний период 21-23 градуса Цельсия. В данном помещении температура завышена и составляет в летний период 28 градусов Цельсия, в зимнее время 25 градусов Цельсия. Для снижения температуры в помещении необходимо установить кондиционер.

) Уровень шума. Согласно санитарным нормам СанПин 2.2.2/2.4.1340-03 [15], предельно допустимый уровень звука для человека равен 80 дБ, а комфортный уровень значительно ниже - 45 дБ. Для офисов нормальным считается уровень не выше 50 дБ. В данном помещении уровень шума соответствует санитарным нормам и равен 40дБ.

) Косвенное прикосновение. Прикосновения к нетоковедущим, но токопроводящим (металлическим) частям оборудования, инструмента или инженерных сооружений, оказавшихся под напряжением, относятся к косвенным. Косвенные прикосновения происходят из-за пробоя изоляции по тем или иным причинам, не связанным с действиями пострадавшего, и могут рассматриваться как отказ техники. Протекание тока через человека приводит к электротравме. Электротравма - результат воздействия на человека электрического тока и электрической дуги. Электрический ток, проходя через тело человека, производит термическое, биохимическое и биологическое воздействие.

) Повышенная или недостаточная освещенность. В соответствии с СНиП 23-05-95 [16] освещенность в помещении должна быть 300 - 500 лк. В данном помещении она равна 500 лк, что соответствует норме. Освещение не должно создавать бликов на поверхности экрана. Освещенность поверхности экрана не может быть более 300 лк. Недостаточное освещение влияет на зрение, на психику человека, его эмоциональное состояние, вызывает усталость центральной нервной системы.

) Повышенная зрительная нагрузка. Компьютерный зрительный синдром представляет собой совокупность нарушений со стороны как опорно-двигательного аппарата, так и органа зрения, которые возникают у человека, работающего с компьютером в течение длительного времени. Такой синдром является одной из основных проблем, с которыми регулярно сталкиваются постоянные пользователи компьютера.

К особенностям зрительной активности при пользовании компьютером относятся такие факторы, как дискретность отображаемого на мониторе изображения, самосветимость этого изображения, а также периодичность мерцания экрана монитора и символьных элементов. Некоторые специалисты утверждают, что компьютерный зрительный синдром развивается не менее чем у 75% пользователей персональных компьютеров.

) Усталость от статического положения. В результате статического положения атрофируются мышцы и грудной клетки, брюшной полости, спины, шеи, а это приводит к нарушению осанки.

Максимальное время работы за компьютером не может превышать 6 часов за смену, необходимо делать перерывы в работе за ПК продолжительностью 10 минут через каждые 45 минут работы. Продолжительность непрерывной работы за компьютером без регламентированного перерыва не должна превышать 1 час, во время регламентированных перерывов с целью снижения нервно-эмоционального напряжения и утомления зрения, предотвращения развития позотонического утомления целесообразно выполнять комплексы специальных упражнений.

.2 Мероприятия по разработке безопасных условий труда на производственном участке


На ООО "Компьютерный аудит" вопросами, связанными с охраной труда, занимается инженер по охране труда и технике безопасности. Все поступающие на работу проходят вводный инструктаж. Со временем сдают обязательные экзамены.

Организация работы с ПЭВМ осуществляется в зависимости от вида и категории трудовой деятельности.

Вид трудовой деятельности в техническом отделе ООО "Компьютерный аудит" осуществляется в соответствии с группой В. Это связано с тем, что основные работы проходят в диалоге с ПЭВМ. Для этого вида работы устанавливается III категория в связи со временем, проведенным за работой с ПЭВМ в районе 6 часов в смену.

Исходя из дынных таблицы приведенной в СанПин 2.2.2/2.4.1340-03 [15] видно, что суммарное время регламентированных перерывов должно составлять 90 минут.

Работоспособность человека меняется в течение рабочего дня и может быть разделена на три фазы. Длительность первой фазы (фаза "врабатывания" а) в зависимости от вида труда колеблется от нескольких минут до одного часа. При завершении этой фазы организм работника переходит в так называемое "устойчивое состояние", которое характеризуется наивысшей для данного индивида эффективностью и устойчивостью. Длительность этой фазы зависит от интенсивности труда, условий внешней среды и субъективного отношения человека к своей работе. Как правило, через три-четыре часа работоспособность начинает снижаться, внимание рассеивается, движения замедляются, возрастает число ошибок. Обычно к этому периоду приурочивают обеденный перерыв. После обеденного перерыва организм вновь проходит через фазу "врабатывания".

Для III категории работ, регламентируемые перерывы рекомендуется делать через 1,5-2,0 часа от начала рабочей смены и через 1,5-2,0 часа после обеденного перерыва продолжительностью 20 минут каждый или продолжительностью 15 минут через каждый час работы.

.3 Обеспечение электробезопасности в помещении технического отдела ООО "Компьютерный аудит"


Все пользователи ПЭВМ относятся к неэлектротехническому персоналу (не ЭТП) и проходят обучение и проверку знаний правил по электробезопасности. По результатам проверки им присваивается I квалификационная группа по электробезопасности (без выдачи удостоверения).

В соответствии с ПУЭ технический отдел относится к помещениям без повышенной опасности. Источниками электрической опасности в отделе являются компьютеры. Корпус ПЭВМ изготовлен из токопроводящего материала (металл), который может оказаться под напряжением в результате пробоя изоляции. Человек может получить электротравму в результате косвенного прикосновения. Применяемое напряжение 220 В. Схема зануления в здании TN-C-S. Это усовершенствованная система зануления, предназначенная для обеспечения электробезопасности однофазных сетей электроустановок. Она состоит из совмещённого PEN-проводника, который соединён с глухозаземленной нейтралью питающего электроустановку трансформатора. В точке, где трёхфазная линия разветвляется на однофазные потребители (например, в этажном щите) PEN-проводник разделяется на PE- и N-проводники, непосредственно подходящие к однофазным потребителям.

Для защиты от поражающего воздействия электрического тока в отделе применяются следующие устройства и средства:

1.      Дифференциальный автомат типа АС (реагирует на утечку переменного тока) - предназначен для использования в однофазной или трёхфазной электрической сети переменного тока в системе электроснабжения с заземленной нейтралью. Дифавтомат реагирует на дифференциальный (остаточный) ток, повышенную нагрузку (тепловой расцепитель) и ток короткого замыкания (механический расцепитель).

Дифавтомат обеспечивает:

·   повышение уровня безопасности при эксплуатации людьми бытовых и аналогичных электроприборов;

·        предотвращение пожаров из-за возгорания изоляции токоведущих частей электроприборов от дифференциального (остаточного) тока на землю;

·        автоматическое отключение участка электрической сети при перегрузке и токе короткого замыкания.

2.      Защитное зануление по схеме TN-C-S. Для обеспечения работы схемы применяются розетки с заземляющим контактом и 3-х проводная схема подключения электроприборов.

.4 Обеспечение пожарной безопасности


ООО "Компьютерный аудит" в соответствии со СНиП 21-01-97 "Пожарная безопасность зданий и сооружений" относится ко II степени огнестойкости и по классу конструктивной пожарной опасности - С1 (здание, допустимая высота которого не должна превышать 28 м), по классу функциональной пожарной опасности - Ф4.3 (здание органов управления учреждений, проектно-конструкторские организации, информационные и редакционно-издательские организации, научно-исследовательские организации, банки, конторы, офисы). Данное помещение технического отдела характеризуется как помещение с ПЭВМ или дисплейный класс. В помещении применяются твердые сгораемые вещества, такие как бумага, деревянные изделия, пластик.