126 |
Глава 3. ПРОЕКТИРОВАНИЕ ХИМИЧЕСКИХ ПРОИЗВОДСТВ |
|
|
прессоры, насосы и аппараты с местным контрольно-измерительными приборами) должны быть шириной 2 м.
Однако минимизация трубопроводных коммуникаций вступает в противоречие с другими требованиями компоновки оборудования. Например, со стремлением сгруппировать аппараты по определенным признакам, допустим, выполняющим сходные операции: выпарные установки, сульфораторы и т.п. Могут реализоваться и другие принципы группировки: оборудование с большим выделением пыли, вибрирующие агрегаты. Объединение подобных аппаратов в отдельном помещении дает определенные выгоды. Например, сгруппированное пылящее оборудование позволяет свести к минимуму количество вентиляционных камер.
Большое внимание уделяется вибрирующему оборудованию: компрессоры, дробилки, вентиляторы, насосы и другие машины. Это оборудование размещают на массивных фундаментах, изолированных от основной конструкции здания.
Прицеховые емкости сырья, тяжелое и крупногабаритное оборудование – размещают на первом этаже, поскольку расположение его на верхних этажах вызовет необходимость усложнения строительных конструкций. Следует также помнить, что тяжелое оборудование, обслуживаемое подъемными кранами, необходимо размещать в зоне приближения крюка крана.
Итак, суть вышеизложенных положений сводится к следующему: исходной базой для компоновки служат общие виды оборудования; принципиальная технологическая схема, которая указывает на размещение оборудования по различным высотным отметкам.
Выбрав вариант компоновки (открытый, закрытый или смешанный) и учитывая изложенные рекомендации, приступают непосредственно к проектному размещению основного и вспомогательного оборудования.
Для поиска оптимального варианта компоновки привлекаются специалисты различных отделов проектной организации: технологи, монтажники, электрики и т.д. Целесообразно к этой работе привлекать и специалистов заказчика.
Вначале определяют с учетом технологии производства и условий застройки этажность здания или железобетонного постамента. После этого группируют аппараты по сходным признакам. Затем на чертежах в масштабе 1:100 изображают планы каждого этажа с нанесением сетки колонн и наружных контуров аппаратов.
На строительных планах колонны обозначают пересечением двух взаимно перпендикулярных продольных и поперечных разбивочных осевых линий. Систему продольных и поперечных осей по рядам колонн называют сеткой колонн. Расстояние меду опорами (по продольным осям), перекрываемое балками или фермами называется пролетом.
Продольные разбивочные оси обозначаются прописными буквами русского алфавита, за исключением букв З, Й, Х, О, Ц, Ч, Ы, Ъ, Ь (рис. 3.38).
КОМПОНОВКА ПРОИЗВОДСТВА |
127 |
|
|
Рис. 3.38. Строительный план и разрез промышленного здания:
1 – колонна; 2 – ригель; 3 – плита перекрытия; 4 – ограждение; 5 – мостовой кран; 6 – балка
Рассмотрим в качестве примера варианты компоновки ректификационной установки, принципиальная схема которой представлена на рис. 3.26.
Аппараты ориентируют и привязывают по двум взаимно перпендикулярным направлениям к осям колонн и к уже нанесенным на план аппаратам.
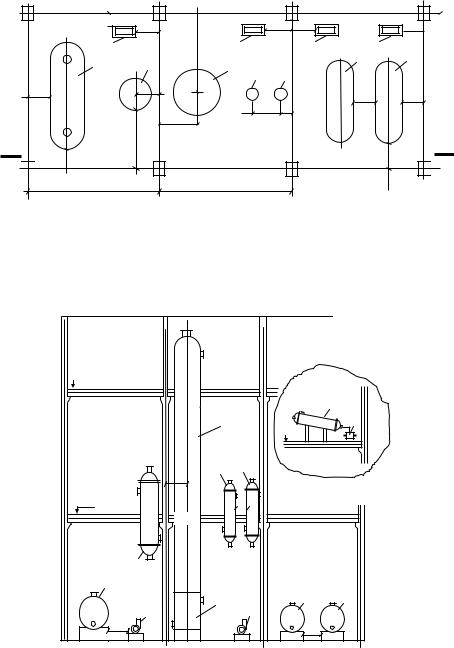
Кроме изображения оборудования в плане (рис. 3.39) по этажам делают поперечные и продольные разрезы цеха (рис. 3.40), на которых стараются показать все аппараты. Как и на планах, в разрезах оборудование изображается контурно
ипоказывают способ его установки: на фундаменте, на консолях и т.д. К планам
иразрезам цеха дается экспликация, номера аппаратов в которой обязательно должны совпадать с номерами на технологической схеме. В экспликации указывается наименование аппарата, его конструкционный материал, характеристика, количество таких аппаратов и масса аппарата. Цеховой напольный транспорт не изображается на планах при компоновке.
При определении общей производственной площади следует учитывать, что 40…50% ее занимает трубопроводная обвязка. Различные варианты компоновки оборудования отличаются друг от друга длиной трубопроводов, транспортеров, линий пневмотранспорта, количеством и типом газодувок, насосов, промежуточных емкостей, этажностью строительных сооружений и т.д.
128 |
Глава 3. ПРОЕКТИРОВАНИЕ ХИМИЧЕСКИХ ПРОИЗВОДСТВ |
|
|
1,0
Г
А 

1
0,8
2а
1
0,5 2,5
6,00
1,0
3,0
3
1, 
1,5
2
1,5 |
2,0 |
1,0 |
2б |
2в |
2г |
4 |
1 |
1 |
|
||
8 |
|
|
9 |
|
|
1,3 |
1,0 |
1,0 |
|
|
|
0,5 |
|
|
|
|
1,0 |
6,00
3


Г
4
Рис. 39. Фрагмент плана на отметке 0.000:
1 – емкость исходной смеси; 2а – насос исходной смеси; 2б – насос кубового остатка; 2в – насос дистиллята; 2г – насос; 3 – подогреватель исходной смеси; 4 – колонна; 8 – холодильник дистиллята; 9 – холодильник кубового остатка;
10 – емкость дистиллята; 11 – емкость кубового остатка
12.00 |
|
|
|
|
6 |
4 |
18.00 |
7 |
|
|
|
8 |
9 |
|
1,5 |
|
|
6.00 |
0,5 |
|
|
|
|
3 |
|
|
1 |
|
|
5 |
10 |
11 |
2 |
2б |
|
1,0 |
1,0 |
|
|
|
|
Рис. 3.40. Разрез Г–Г: |
|
|
1 – емкость исходной смеси; 2а – насос исходной смеси; 2б – насос кубового остатка; 2в – насос дистиллята; 2г – насос; 3 – подогреватель исходной смеси; 4 – колонна; 5 – встроенный кипятильник; 6 – дефлегматор; 7 – разделительный стакан;
8 – холодильник дистиллята; 9 – холодильник кубового остатка; 10 – емкость дистиллята; 11 – емкость кубового остатка
КОМПОНОВКА ПРОИЗВОДСТВА |
129 |
|
|
При открытом варианте компоновки оборудование данной установки располагается на железобетонной этажерке в соответствии с правилами, изложенными выше.
Достоинство этого варианта компоновки только в том, что предусмотрена самотечная подача флегмы в колонну и длина трубопроводов минимальна.
Недостатки такой компоновки заключаются в следующем: оборудование не сгруппировано по отделениям (насосное, емкостей). Кроме того, необходимость четвертого этажа обусловлена лишь размещением дефлегматора 6 для обеспечения самотека флегмы.
Самым рациональным в данном случае следует считать смешанный вариант компоновки. При этом колонна располагается на открытой площадке, а остальное оборудование – в двухэтажном здании (рис. 3.41).
|
4 |
|
|
|
|
2,0 |
|
|
|
|
1,5 |
|
|
|
В |
|
|
|
|
0,8 |
1 |
3 |
2,0 |
|
|
2,0 |
|
2,5 |
1,5 |
|
2,5 |
|
|
|
|
|
|
|
|
|
|
|
8 |
9 |
Б |
|
|
2а |
2б |
2,0 |
|
|
||
1 |
1 |
2д |
1,5 |
|
|
|
|
||
|
|
|
2г |
2в |
|
|
3,5 |
|
2,5 |
1,0 |
1,2 |
1,0 |
2,5 |
1,5 |
|
|
|
|
|
А |
|
|
|
|
1 |
|
2 |
|
3 |
Рис. 3.41. Модернизация варианта компоновки (разрез Г–Г):
1 – емкость исходной смеси; 2а – насос исходной смеси; 2б – насос кубового остатка; 2в – насос дистиллята; 2г – насос; 3 – подогреватель исходной смеси; 4 – колонна; 5 – встроенный кипятильник; 6 – дефлегматор; 7 – разделительный стакан;
8 – холодильник дистиллята; 9 – холодильник кубового остатка; 10 – емкость дистиллята; 11 – емкость кубового остатка
130
ПРОИЗВОДСТВ ХИМИЧЕСКИХ ПРОЕКТИРОВАНИЕ .3 Глава
Рис. 3.42. Схема распределения площади цеха по помещениям:
1 – электростанция; 2 – теплопункт; 3, 4 – бытовые помещения; 5 – кладовая; 6 – операторное отделение; 7 – цеховая лаборатория; 8 – аппаратное отделение; 9 – насосное отделение;
10 – административные помещения; 11 – венткамера; 12 – цеховые склады