Тсм - продолжительность рабочей смены (без учета обеденного перерыва),
час;
Таблица 9 График выхода на работу работников холодного цеха соловой
|
|
Повар 1 |
Повар 2 |
Повар 3 |
Повар 4 |
Повар 5 |
|
1 |
5:00 - 16:30 |
10:00-20:30 |
в |
в |
8:00-18:30 |
|
2 |
5:00 - 16:30 |
10:00-20:30 |
в |
в |
8:00-18:30 |
|
3 |
|
|
5:00 - 16:30 |
10:00-20:30 |
в |
|
4 |
|
|
5:00 - 16:30 |
10:00-20:30 |
в |
|
5 |
5:00 - 16:30 |
10:00-20:30 |
|
|
в |
|
6 |
5:00 - 16:30 |
10:00-20:30 |
|
|
в |
|
7 |
в |
в |
5:00 - 16:30 |
10:00-20:30 |
8:00-18:30 |
|
8 |
в |
в |
5:00 - 16:30 |
10:00-20:30 |
8:00-18:30 |
|
9 |
5:00 - 16:30 |
10:00-20:30 |
в |
в |
в |
|
10 |
5:00 - 16:30 |
10:00-20:30 |
в |
в |
в |
|
11 |
в |
в |
5:00 - 16:30 |
10:00-20:30 |
в |
|
12 |
в |
в |
5:00 - 16:30 |
10:00-20:30 |
в |
|
13 |
5:00 - 16:30 |
10:00-20:30 |
в |
в |
8:00-18:30 |
|
14 |
5:00 - 16:30 |
10:00-20:30 |
в |
в |
8:00-18:30 |
|
15 |
в |
в |
5:00 - 16:30 |
10:00-20:30 |
в |
|
16 |
в |
в |
5:00 - 16:30 |
10:00-20:30 |
в |
|
17 |
5:00 - 16:30 |
10:00-20:30 |
в |
в |
в |
|
18 |
5:00 - 16:30 |
10:00-20:30 |
в |
в |
в |
|
19 |
в |
в |
5:00 - 16:30 |
10:00-20:30 |
8:00-18:30 |
|
20 |
в |
в |
5:00 - 16:30 |
10:00-20:30 |
8:00-18:30 |
|
21 |
5:00 - 16:30 |
10:00-20:30 |
в |
в |
в |
|
22 |
5:00 - 16:30 |
10:00-20:30 |
в |
в |
в |
|
23 |
в |
в |
5:00 - 16:30 |
10:00-20:30 |
в |
|
24 |
в |
в |
5:00 - 16:30 |
10:00-20:30 |
в |
|
25 |
5:00 - 16:30 |
10:00-20:30 |
в |
в |
8:00-18:30 |
|
26 |
5:00 - 16:30 |
10:00-20:30 |
в |
в |
8:00-18:30 |
|
27 |
в |
в |
5:00 - 16:30 |
10:00-20:30 |
в |
|
28 |
в |
в |
5:00 - 16:30 |
10:00-20:30 |
в |
|
29 |
5:00 - 16:30 |
10:00-20:30 |
в |
в |
в |
|
30 |
5:00 - 16:30 |
10:00-20:30 |
в |
в |
в |
|
31 |
в |
в |
5:00 - 16:30 |
10:00-20:30 |
8:00-18:30 |
|
Время обеда |
12-12:30 |
15-15:30 |
12-12:30 |
15-15:30 |
12-12:30 |
|
Количество отработаных часов за месяц |
184 |
184 |
172,5 |
172,5 |
125,5 |
Вывод: Самый оптимальным графиком выхода на работу в столовой «№3» при промпредприятии является график два через два, когда работники бригадами, посменно, приходят на работу в разное время, установленное работодателем.
Глава 3. Проектирование технологических участков, рабочих мест в цехе
При разработке проекта холодного цеха студентам необходимо рассчитать холодильное оборудование
В холодном цехе предприятия емкость холодильной камеры необходимо определить для хранения полуфабрикатов на 1/2 смену и для хранения готовой продукции с учетом 1-2 часовой реализации продукции
Расчет емкости холодильного шкафа для хранения полуфабрикатов.
(21)
где G - масса продукта (изделия), кг;
ρ - объемная плотность продукта (изделия), кг/м3;
ν - коэффициент, учитывающий массу тары (ν = 0,7...0,8).
Для осуществления расчета следует заполнить таблицу:
Таблица 10 Расчет объема холодильного шкафа
Расчет холодильной емкости для хранения готовой продукции на 1-2 часа реализации. Данные для расчета берутся из таблицы плана-меню за определенный период работы (1 или 2 смену). Из плана-меню берутся холодные блюда, закуски, напитки, сладкие блюда (мороженое, желе, кремы и т. д.), которые после приготовления хранят с охлаждением.
Расчет производится по формуле:
![]()
, где (22)
Е - потребная загрузочная емкость холодильника для хранения готовой продукции, кг
n - количество блюд данного вида на 1час реализации (по максимальному часу)
q - масса одной порции данного блюда, кг
n- коэффициент, учитывающий массу тары (0,7 - 0,8)
Таблица 11 Расчет емкости холодильной камеры для хранения готовых блюд
|
№ п/п |
Наименование блюд |
Кол-во блюд на 1-2 часа |
Масса 1 пор. q, кг |
Коэффициент, учит.тару |
Загрузочная емкость х-ка Е, кг |
|
|||
|
1 |
Салат зеленый с огурцами и помидорами |
23 |
0,1 |
0,8 |
2,875 |
|
|||
|
2 |
Салат мясной |
30 |
0,15 |
0,8 |
5,625 |
|
|||
|
4 |
Яйца под майонезом с гарниром |
17 |
0,15 |
0,8 |
3,1875 |
|
|||
|
4 |
Салат из квашеной капусты |
13 |
0,1 |
0,8 |
1,625 |
|
|||
|
5 |
Редис с огурцами и яйцом |
18 |
0,1 |
0,8 |
2,25 |
|
|||
|
6 |
Салат из моркови |
18 |
0,1 |
0,8 |
2,25 |
|
|||
|
7 |
Винегрет овощной |
17 |
0,1 |
0,8 |
2,125 |
|
|||
|
8 |
Салат "Летний" |
13 |
0,1 |
0,8 |
1,625 |
|
|||
|
9 |
Салат яичный |
20 |
0,1 |
0,8 |
2,5 |
|
|||
|
10 |
Салат столичный |
18 |
0,15 |
0,8 |
3,375 |
|
|||
|
11 |
Салат из свеклы с сыром и чесноком |
17 |
0,1 |
0,8 |
2,125 |
|
|||
|
12 |
Суфле ванильное |
16 |
0,06 |
0,8 |
1,2 |
|
|||
|
13 |
17 |
0,1 |
0,8 |
2,125 |
|
||||
|
Итого |
32,8875 |
|
|||||||
|
1 |
Салат зеленый с огурцами и помидорами |
23 |
0,1 |
0,8 |
2,875 |
||||
|
2 |
Салат мясной |
30 |
0,15 |
0,8 |
5,625 |
||||
|
4 |
Яйца под майонезом с гарниром |
17 |
0,15 |
0,8 |
3,1875 |
||||
|
4 |
Салат из квашеной капусты |
13 |
0,1 |
0,8 |
1,625 |
||||
|
5 |
Редис с огурцами и яйцом |
18 |
0,1 |
0,8 |
2,25 |
||||
|
6 |
Салат из моркови |
18 |
0,1 |
0,8 |
2,25 |
||||
|
7 |
Винегрет овощной |
17 |
0,1 |
0,8 |
2,125 |
||||
|
8 |
Салат "Летний" |
13 |
0,1 |
0,8 |
1,625 |
||||
|
9 |
Салат яичный |
20 |
0,1 |
0,8 |
2,5 |
||||
|
10 |
Салат столичный |
18 |
0,15 |
0,8 |
3,375 |
||||
|
11 |
Салат из свеклы с сыром и чесноком |
17 |
0,1 |
0,8 |
2,125 |
||||
|
12 |
Суфле ванильное |
16 |
0,06 |
0,8 |
1,2 |
||||
|
13 |
Яблоки в желе |
17 |
0,1 |
0,8 |
2,125 |
||||
|
Итого |
32,8875 |
||||||||
После определения суммы Е по справочнику торгово-технологического оборудования подбирается холодильный шкаф необходимой грузовместимости.
После расчета холодильного оборудования необходимо составить таблицу
подбора необходимых видов оборудования на основании расчетов, и норм оснащения,
а также производственной необходимости. Таблица должна включать холодильное,
механическое, весоизмерительное оборудование.
Таблица 12 Потребное количество и виды оборудования
|
Наименование оборудования |
Тип, марка оборудования |
Кол-во оборудования, шт. |
|
|
|
|
|
Шкаф холодильный |
ШХ-0,7 S |
1 |
|
Камера холодильная |
КХ-2,9 |
1 |
|
Стол производственный |
СП-1050 |
1 |
|
Ванна- раковина |
066/10 |
1 |
|
Стеллаж передвижной |
СП-125 |
1 |
|
Ванна моечная |
ВНЦ-10 |
1 |
|
Весы настольные |
|
2 |
|
Картофелечистка |
МОК-300М |
1 |
|
Машина резательная |
МПР-350М-02 |
1 |
|
ХЛЕБОРЕЗКА |
АХМ-300Т |
1 |
Соответственно приказу Министерства торговли «Нормы оснащения предприятий
общественного питания посудой, столовыми приборами, мебелью и кухонным
инвентарем» подбираем следующее немеханическое оборудование:
|
№ пп |
Наименование |
Кол-во Шт. |
|
1 |
Нож филейный |
2 |
|
2 |
Нож гастрономический (колбасный) |
2 |
|
3 |
Нож для нарезки ветчины |
1 |
|
4 |
Нож с двумя ручками для нарезки масла и сыра |
1 |
|
5 |
Нож кухонный |
5 |
|
6 |
Нож с одной ручкой для нарезки сыра и масла |
1 |
|
7 |
Нож для фигурной нарезки масла |
1 |
|
8 |
Нож- вилка |
1 |
|
9 |
Томаторезка ручная |
1 |
|
10 |
Яйцерезка |
1 |
|
11 |
Скребок для сливочного масла |
1 |
|
12 |
Доска разделочная |
6 |
|
13 |
Соковыжималка ручная |
1 |
|
14 |
Лопатка- нож для заливных блюд |
1 |
|
15 |
Горка для гарниров |
2 |
|
16 |
Лотки для заливных блюд |
10 |
|
17 |
Формы для паштетов, заливных и сладких блюд |
80 |
|
18 |
Лопатки для раскладывания порционных блюд |
3 |
|
19 |
Лопатки-ножи для раскладывания заливных блюд |
3 |
|
|
Приборы для раскладывания блюд: |
|
|
20 |
Приборы салатные |
3 |
|
21 |
Прибор для консервированных фруктов |
3 |
|
22 |
Щипцы для раскладывания порционных блюд |
3 |
|
23 |
Тарелки |
600 |
|
24 |
Кастрюли разных объемов |
9 |
|
25 |
Салатницы |
600 |
Необходимо составить таблицу основных технологических линий, участков, рабочих мест.
Данные свести в таблицу
Таблица 12 Основные технологические линии, участки, рабочие места горячего цеха
|
Наименование технологических линий, участков, рабочих мест |
Проводимые операции |
Необходимые виды оборудования |
|
Линия по приготовлению холодных блюд и закусок |
-помывка овощей - нарезка сырых и варёных овощей - приготовление заливных блюд |
-ванны - ножи -доски с маркировкой -производственный стол -лотки -металлические лопатки |
|
Линия приготовлению холодных сладких блюд. |
-приготовление фруктов, ягод -взбивание муссов -взбивание кремов -самбуки |
-производственный стол, со встроенной моечной ванной -весы -посуда -инвентарь -морозильные прилавки -слайсеры -холодильные камеры |
При расчете площади цеха необходимо составить таблицу оборудования цеха.
В данную таблицу следует включить холодильное, механическое,
немеханическое оборудование с учетом расчетов, подбора по примерным нормам
оснащения.
|
п№ |
Наименование |
Марка |
Кол - во |
Длина, мм |
Ширина, мм |
Высота, мм |
S пол (м2) |
|
1 |
Шкаф холодильный |
ШХ - 0,4 М |
1 |
750 |
750 |
1820 |
0.6 |
|
2 |
Шкаф холодильный |
ШХ - 0,6 М |
1 |
1120 |
786 |
1726 |
0.9 |
|
3 |
Стол производственный секционный модулированный |
СПСМ - 1 |
1 |
1050 |
840 |
860 |
0.9 |
|
4 |
Стол производственный секционный модулированный с охлаждаемым шкафом. |
СОЭСМ - 2 |
1 |
1680 |
840 |
860 |
1.4 |
|
5 |
Универсальный привод |
МУ - 1000 |
1 |
470 |
400 |
440 |
0.2 |
|
6 |
Ванна моечная на 2 отделения |
ВМ- 2СМ |
1 |
1680 |
840 |
860 |
1.4 |
|
7 |
Хлеборезательная машина |
ХРМ - 300М |
1 |
1220 |
525 |
625 |
0.6 |
|
8 |
Машина для нарезки вареных овощей |
МРОВ - 160 |
1 |
470 |
370 |
500 |
0.2 |
|
9 |
Привод для холодного цеха |
ПХ - 0,6 |
1 |
530 |
280 |
310 |
0.2 |
|
|
Итого |
|
|
|
|
|
6.7 |
Таким образом, полезная площадь составит 6,7 м.
Расчет общей площади цеха рассчитываем с помощью формулы:
, м2
где: k - коэффициент использования площади помещения, принимается 0,4.
Sобщ= 6,7/0,4 =
16,75м2
На основе принятого состава помещений составляется схема их взаимосвязи для проектируемого предприятия и предлагается планировочное решение. Принятая схема взаимосвязи помещений представлена на рис. 3.
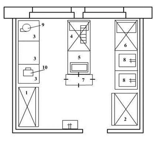
Рис. 3 - Схема взаимосвязи помещений
Планировка цеха
-холодильный шкаф ШХ-0.4; 2- холодильный шкаф ШХ -0.6 3- стол производственный. 4- секция-стол с охлаждаемым шкафом и горкой СОЭСМ-3 5- низкотемпературный прилавок СН-0,15. 6- секция-стол с охлаждаемым шкафом СОЭСМ-2; 7- передвижной стеллаж. 8- моечная ванна ВМ-2СМ 9- машина для нарезки вареных овощей 10- маслоделитель ручной
Заключение
С каждым годом массовое питание все больше проникает в быт широких масс населения, способствует решению многих социально-экономических проблем, помогает лучше использовать продовольственные ресурсы страны, своевременно предоставляет населению качественное питание, имеющего решающее значение для сохранения здоровья, роста производительности труда, повышению качества учебы, позволяет более эффективно использовать свободное время, что в наши дни является не мало важным фактором для населения; высвобождает из домашнего хозяйства.
В ходе проделанной работы была произведена реконструкция холодного цеха.
Вначале была разработана производственная программа холодного цеха, затем произведен расчет и подбор оборудования (холодильного, механического), расчет количества производственных работников цеха, расчет и подбор вспомогательного оборудования и расчет площади холодного цеха.
Площадь цеха получилась 16,75м2
Цех размещен таким образом, что исключены встречность и перекрещивание потоков сырья с потоками готовой продукции, использованной и чистой посуды, а также с потоками потребителями и персонала.
Столовая оснащено высокопроизводительным оборудованием: холодильным, механическим, вспомогательным отечественных и зарубежных производителей, которое соответствует стандартам и отвечает нормам техники безопасности.
Список используемой литературы
1. Аграновский Е.Д., Дмитриев В.В. Основы проектирования и интерьер предприятий общественного питания. М.: Экономика, 2009. - 278 с.
2. Богушева В. И. Организация производства и обслуживания на предприятиях общественного питания: Феникс, Серия: Среднее профессиональное образование, 2008, 256 с.
. Васюкова А. Т., Пивоваров В. И., Пивоваров К. В. Opганизация производства и управление качеством продукции В общественном питании: Учебное пособие. М.: Издательско-торrовая корпорация «Дашков И К\>, 2009. 296 с.