Материал: Одноэтажное промышленное здание

Внимание! Если размещение файла нарушает Ваши авторские права, то обязательно сообщите нам

После разработки котлована грунт основания должен быть обследован геологом и представителем авторского надзора.

Выработанный грунт вывозится автосамосвалами типа КамАЗ. Часть грунта, предназначенного для обратной засыпки котлована, складируется в специально отведенном месте.

Котлован должен ограждаться инвентарным ограждением. На щитах ограждений необходимо установить предупредительные надписи и знаки, а в ночное время - сигнальное освещение.

Перемещение, установка и работа машин вблизи выемок с неукрепленными откосами разрешается только за пределами призмы обрушения грунта на расстоянии, установленном в ППР.

В случае обнаружения любых подземных коммуникаций или сооружений, не указанных в проектной документации, работы следует приостановить. На место работ следует вызвать автора проекта и представителей организаций, эксплуатирующих смежные коммуникации.

В связи с тем, что выработанный грунт не пригоден для обратной засыпки, проектом предусмотрено использование привозного грунта. Расчетную схему для подсчета земляных работ смотрите на рис.6,7.

Табл. 4 - Объем земляных работ

№ п/п

Вид работ

Ед. изм.

Количество

1.

Разработка экскаватором с вывозом

м3

2.

Добор невыработанного грунта вручную с вывозом

м3

3.

Объем привозного грунта

м3


Определения объемов земляных работ в траншее:


где: - объемов земляных работ в траншее под фундамент;

- объемов земляных работ в траншее;

- объем земляных масс;

Определения объемов земляных работ в котловане:


где: a,b- размеры выемки понизу, a=118,700м, b=76,950м;, B- размеры выемки поверху, м.

где: hк - глубина котлована, hк =2,750м;- коэффициент заложения откоса, m=0,5 (для суглинков глубиной котлована до 3м).

Определения объемов земляных работ насыпи котлована:


где a, b - размеры выемки понизу, a=66,450м, b=20,850м;, B - размеры выемки поверху, м.

м

где: hк - глубина котлована, hк =2,750м;- коэффициент заложения откоса, m=0,5 (для суглинков глубиной котлована до 3м).

Определения объемов земляных работ насыпи котлована:


где: a, b - размеры выемки понизу, a=14,850м, b=75,850м;, B - размеры выемки поверху, м.

м

где hк - глубина котлована, hк =2,750м;- коэффициент заложения откоса, m=0,5 (для суглинков глубиной котлована до 3м).

Определения объемов земляных работ насыпи котлована:


где: a, b - размеры выемки понизу, a=20,850м, b=75,850м;, B - размеры выемки поверху, м.

м

где: hк - глубина котлована, hк =2,750м;- коэффициент заложения откоса, m=0,5 (для суглинков глубиной котлована до 3м).

Определения объемов земляных работ насыпи котлована:


где a, b - размеры выемки понизу,a=10,700м, b=75,850м;, B - размеры выемки поверху, м.

м

где: hк - глубина котлована, hк =2,750м;- коэффициент заложения откоса, m=0,5 (для суглинков глубиной котлована до 3м).

Определение недобора грунта:

Объем грунта недобора подсчитывают отдельно, т.к. зачистка его выполняется другими средствами механизации, а площади, подлежащие зачистке, иногда не совпадают с площадью подошвы выемки.

где:  - площадь подошвы фундаментов,м2 (см.табл.7);

 - толщина слоя недобора,м.

Возвращаемую часть грунта в плотном теле составит разница между объемом выемки  и объемом фундаментов . Но для обратной засыпки грунта понадобится несколько меньше.

Объем грунта размещенный в пазухах фундамента после уплотнения Vо.з. можно найти из выражения:

,

где - объем котлована (выемок), м3;

-объем фундамента, заглубленного в грунт,м3 (см. табл.7); - коэффициент остаточного разрыхления грунта,

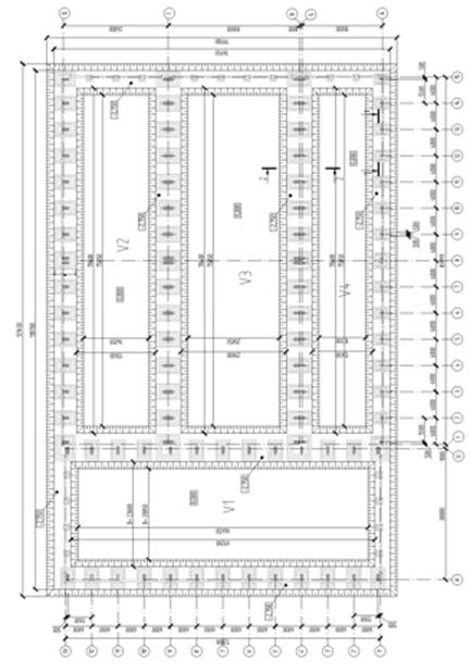
Рис. 6 - Схема плана траншей под фундамент

Рис. 7 - Схема фундаментов

Рис. 8 - Расчетная схема траншеи под фундамент

Арматурные работы

Арматуру устанавливать в соответствии с проектом. Армирование производится отдельными стержнями и сетками с соединением их между собой при помощи вязальной проволоки.

Арматурные изделия, поступающие на стройплощадку, должны пройти входной контроль.

Арматурные изделия перед бетонированием должны быть очищены от пыли и грязи. Все арматурные изделия и арматурные работы перед бетонированием должны быть предъявлены авторскому надзору и технадзору заказчика с составлением акта на скрытые работы.

До монтажа арматуры фундамента должны быть выполнены следующие работы:

разбивка осей и устройство бетонной подготовки;

доставка и складирование в зоне действия монтажного автомобильного кранаКС-55717 г/п 25тнеобходимого количества арматурных элементов;

подготовка к работе такелажной оснастки, инструмента и электросварочной аппаратуры.

Монтаж арматуры начинается с разметки мест, раскладки сеток фундамента и установки фиксаторов с шагом 1 м для создания защитного слоя бетона.

Армирование производится унифицированными сетками изготовленными в заводских условиях на многоточечных контактных машинах.

Раскладка сеток производится по взаимно перпендикулярным направлениям.

Подколенник армируется пространственным каркасом, который устанавливают в проектное положение с помощью крана.

Сборка пространственных каркасов производится на сборочной площадке. Сначала устанавливают две вертикальные сетки, которые закрепляют временными растяжками.

Для создания защитного слоя бетона устанавливают фиксаторы, изготовленные из пластмассы, и оставляют их в бетоне.

Приемка смонтированной арматуры осуществляется до установки опалубки и оформляется актом освидетельствования скрытых работ. В акте приемки смонтированных конструкций должны быть указаны номера рабочих чертежей, отступления от чертежей, оценка качества смонтированной арматуры; после установки опалубки дают разрешение на бетонирование.

Опалубочные работы

Технологические схемы по применению всех типов опалубки на данном объекте разрабатываются отдельно.

Последовательность сборки и монтажа опалубки перекрытия производить в строгом соответствии с "Производственной инструкцией по технологии монтажа рамных конструкций опалубки".

Подача опалубки на монтажный горизонт осуществляется автомобильным краномКС-55713-4 г/п 25т.Монтаж и демонтаж опалубки ведется вручную. Монтаж опалубки краном допускается при разбивке этапов строительства на захватки. Возможность разбивки и количество захваток согласовывается с автором проекта.

Монтаж щитовой опалубки следует начинать с укладки по всему контуру бетонируемой конструкции маячных реек. Внутренняя грань рейки должна совпадать с наружной гранью бетонируемой стены.

За состоянием установленной опалубки ведется непрерывное наблюдение в процессе бетонирования. Контроль вертикальности движения может быть осуществлен различными способами: с помощью отвесов специальной конструкции, приборами вертикального проектирования и др. В случае непредвиденных деформаций отдельных элементов опалубки или недопустимого раскрытия щелей следует устанавливать дополнительные крепления и исправлять деформированные места.

Отрыв опалубки от бетона производить с помощью домкратов. Использование кранов для отрыва опалубочных щитов запрещено.

Демонтаж опалубки разрешается производить только после достижения бетоном требуемой прочности согласно СНиП 3.03.01-87 "Несущие и ограждающие конструкции" и с разрешения производителя работ.

После снятия опалубки необходимо:

произвести визуальный осмотр элементов опалубки;

очистить все элементы опалубки от налипшего бетона;

произвести смазку поверхности палуб и винтовых соединений;

произвести сортировку элементов опалубки.

При выполнении опалубочных работ следует иметь в виду основные источники опасности:

опрокидывание опалубочных щитов,

перегрузка опалубочных конструкций,

наличие отверстий в настилах.

Для предотвращения опрокидывания опалубочных щитов необходимо обеспечить жесткость и устойчивость. Жесткость придают путем устройства специальных ребер, а устойчивость подкосами, растяжками и другими приспособлениями.

Опасность опрокидывания панелей опалубки резко возрастает при сильном ветре, поэтому при появлении парусного эффекта установку опалубки прекращают.

Во избежание падений опорные площадки должны быть ограждены, проходы освобождены от мусора и отходов. Все работающие на высоте вне ограждений должны быть с предохранительными поясами и знать места надежного прикрепления.

Бетонные работы

Возведения монолитных железобетонных конструкций осуществляются с применением автобетононасоса СБ-207 и автобетоносмесителя 58147Z.

Бетонирование конструкций ведется с соблюдением схем операционного контроля качества, соблюдая регламент контроля прочности. Для сокращения сроков набора прочности монолитными железобетонными конструкциями производится круглогодичный прогрев бетона.

Высота свободного сбрасывания бетона не должна превышать значений, указанных в СНиП 3.03.01-87 "Несущие и ограждающие конструкции". Запрещается выгрузка всей массы бетона в одном месте.

Уплотнение бетонной смеси производится погружением вибратора в слой бетона вертикально и слегка наклонно, при этом конец рабочей части вибратора должен погружаться в ранее уложенный слой на 5-10 см. Соприкосновение вибраторов с арматурой во время работы не допускается.

При ведении работ в зимний период предусмотреть мероприятия по предотвращению замерзания бетонной смеси.

После достижения бетоном проектной прочности, на фундаменты выкладывают фундаментные балки массой до 1,5т под стеновое ограждение здания автомобильным краном КС-55713-4 г/п 25т.

Обратная засыпка и уплотнение грунта

Обратная засыпка грунта за стенки фундаментов и траншей производится бульдозером ДЗ-18 с уплотнением грунта механическими трамбовками, а в местах, где применение техники невозможно, - засыпку производить вручную.

Монтаж сборных конструкций. Работа крана

Для производства монтажных работ предусмотрено использование гусеничного крана СКГ-100 г/п 100т и автовышки "MANITOU" MRT 2540.

Работы по возведению здания производятся со стоянок, указанных на стройгенплане.

В ППР разработать мероприятия по безопасному методу ведения работ и уменьшению размера опасной зоны от работы крана (ограничение высоты подъема грузов на разгрузочной площадке; организация 7-метровой зоны работ на монтажном горизонте с сопровождением грузов при помощи оттяжек).

Для повышения безопасности работы крана рекомендуется применять компьютерную систему ограничения зоны работ (СОЗР, ОНК-160).

Подъем сборных элементов должен быть плавным без рывков и толчков. При подъеме не допускается раскачивание элементов, запрещается перенос конструкций краном над рабочим местом монтажников и над соседней захваткой.

Запрещается пребывание людей на этажах ниже того, на котором производятся строительно-монтажные работы (в одной захватке), а также в зоне перемещения элементов и конструкций краном.

Монтаж сборных конструкций производить с соблюдением требований:

последовательности монтажа, обеспечивающей устойчивость и геометрическую неизменяемость.

комплектности установки конструкций каждого участка здания, позволяющей производить на смонтированном участке последующие работы.

Монтаж сборных элементов ведется следующим образом:

устанавливаются железобетонные колонны каркаса, горизонтальные и вертикальные связи;

монтируются подкрановые балки;

монтируются фермы;

монтируются плиты покрытия;

монтируется стеновое ограждение здания.

Выбор монтажных механизмов произведен исходя из веса сборных элементов, высоты подъема и ширины здания.

Сборные железобетонные конструкции, прибывающие на стройплощадку монтажными комплектами, частично подаются непосредственно к месту монтажа, частично складируются на специально отведенных для этих целей площадках.