Материал: Общественно-жилой комплекс переменной этажности

Внимание! Если размещение файла нарушает Ваши авторские права, то обязательно сообщите нам

во время эксплуатации: транспортные средства

Использование объекта оказывает, в пределах допустимых величин, воздействие на атмосферный воздух.

Водные ресурсы:

Отвод поверхностных сточных вод осуществляется вертикальной планировкой участка и при необходимости устройством дренажной системы. Производственные стоки, образующиеся на строительной площадке, будут очищены и обезврежены.

Отвод бытовых сточных вод данного объекта осуществляется в наружную сеть бытовой канализации, на расстоянии 3 м от цоколя зданий. Планировочные отметки площадок канализационных сооружений и насосных станций, размещаемых на прибрежных участках водотоков и водоемов, на 0,5 м выше максимального горизонта паводковых вод.

Поверхностные и подземные воды загрязняются по причине:

мест для хранения коммунальных и бытовых отходов

утечек вредных веществ из трубопроводов и других объектов

выпавших, на объём содержащий пыль и другие промышленные вещества, осадков

бытовых сточных вод, которые мало очищены или не очищены вовсе

В соответствии со всеми нормами и техническими условиями на подключение к коммунальным системам водоснабжения и водоотведения снабжение водными ресурсами общественно-жилого комплекса осуществляется от водопроводных сетей города. На территории квартала планируются мероприятия по организации систем поверхностного стока и снижение уровня грунтовых вод с помощью закрытого типа ливневой канализации, при которой дождевая вода, которая стекает, далее собирается лотками водоотвода. Все системы включены в конструкцию дорог и тротуаров, далее вода поступает в подземный трубопровод, по которому отводится в ближайшие каналы.

В соответствие с техническими условиями на подключение канализационная система примыкает к городской сети, тем самым исключается возможность загрязнения подземных вод и почв.

Земельные ресурсы:

Действия по восстановлению земель участка решены с помощью подсыпки под цветники и газоны растительным грунтом толщиной 15 см и посадочные ямы под посадку деревьев и кустарников будут засыпаны на 100%.

При строительных работах проектируемого комплекса грунт, который будет вытащен из котлована и применён частично для засыпки обратно, а остаточный объём будет вывезен в резерв города.

На данной территории растут, не имеющие большую ценность, насаждения. Свободная от застройки территория будет покрыта газоном, кустарниками и деревьями с учётом подземных инженерных сетей и расчетом расстояния между объектами согласно нормативам.

Чтобы исключить загрязнение территории общественно-жилого комплекса и прилегающей территории, будет спланировано и представлено несколько мероприятий:

обустройство тротуаров и проездов мелкозернистым асфальтобетоном

ограда зелёных зон бордюрами, при них исключается смыв грунта на дорожное покрытие в момент дождей

в ходе стройки будет предусмотрено складирование, а после вывоз строительного мусора на свалку.

Озеленение и благоустройство:

Работы по сбору и вывозу мусора с территории комплекса обеспечивается после заключения договора с ТСЖ или индивидуальным предпринимателем. Договор заключается на постоянной основе.

Все действия, которые перечислены выше по охране окружающей среды, предлагают возможность для обеспечения благоприятных условий и людей которые проживают в общественно-жилом комплексе.

Пожарная безопасность объекта:

Мероприятия по обеспечению безопасности комплекса.

Общественно-жилой комплекс разрабатывается в структуре проекта квартала, который будет располагаться в северной части города Вологды. Вблизи с территорией старого аэропорта и прилегающей к ней трассой М8.

Проектом предусмотрено пожарное отделение в структуре кварталов.

Степень огнестойкости здания - I (табл. 4 СНиП 21-01-97*) [13]. Класс конструктивной пожарной опасности - С 0.

Объемно-планировочные и конструктивные решения, принятые в проекте, отвечают требованиям СП 4.13130.2009 и СНиП 31-01-2003. Эвакуационные выходы из помещений и здания, пути эвакуации соответствуют требованиям СП 1.13130.2009.

В соответствии с п. 7.2.8 СП 54.13330.2011, эвакуация людей из каждой квартиры секции здания наружу осуществляется по обычным лестничным клеткам типа Л1. Расстояние от двери самой удаленной квартиры секции до выхода в лестничную клетку составляет менее 40 метров (п.7.2.1 СП 54.13330.2011).

Ширина лестничных маршей составляет 1200 мм, уклон лестниц 1:2, что соответствует требованиям таблицы 8 СНиП 31-01-2003. Выход из лестничных клеток осуществляется через вестибюль и двойной тамбур.

Ширина межквартирных коридоров по проекту 1,8 м при допускаемой минимальной ширине 1,4 м (п.7.22 СП 54.13330.2011).

Общественные функции находятся на первых этажах и имеют входные зоны и эвакуационные. Эвакуационные пути и стены в лестничных клетках выполнены из негорючих материалов. Защитный слой бетона в монолитных конструкциях соответствует всем требованиям безопасности, а именно от 25 до 50 мм.

Здания оснащены противопожарными преградами:

отделяющие отсеки-стены и перекрытия

стены лестничных клеток

перегородки, которые выделяют лифтовые холлы и коридоры

перегородки технических и пожароопасных помещений

перегородки коммуникационных шахт

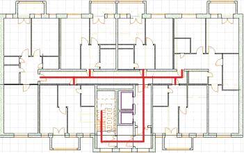
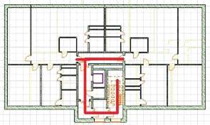
Планы эвакуации приведены на рисунках 13 и 14.

Рисунок 13 - План эвакуации

Рисунок 14 - План эвакуации

Расчетное время эвакуации из жилого блока через эвакуационную лестницу составит:


На пути движения людского потока имеются дверные проемы. Ширина каждого из них должна быть не меньше требуемой.

Требуемая ширина проема:

 , м,

где ∑Nk - суммарное количество людей, чел;

Безопасность людей не гарантирована из расчетного времени в 8,57 минут из требуемого 3,9 минут. Здание должно быть оборудовано системой пожаротушения и системой оповещения о пожаре.

ЗАКЛЮЧЕНИЕ


Анализируя проблему застройки повышенной этажности, в ходе исследований и сбора теоретических данных можно сделать вывод о необходимости «буферной» в качестве здания с переменной этажностью, зоны для данных кварталов, потому что резкий скачок этажности негативно влияет как для жителей такого здания, так и для всего квартала в целом.

Проект предполагает создание такого комплекса с переменной этажность для того что бы сделать более плавный переход в глубь застройки квартала с повышенной этажностью, тем самым обеспечив комфортное восприятие для жителей данного квартала.

СПИСОК ИСПОЛЬЗОВАННЫХ ИСТОЧНИКОВ


1.   Асташенков, В.П. Сметное ценообразование в строительстве: Учебное пособие / СПб. гос. архит.-строит. ун-т. - СПб.: СПбАСУ, 2008. - 271с.

2.       Кияненко К.В. «Выбор и социальное обоснование дипломного проекта: Методические указания для студентов специальности «Архитектура»-Вологда; ВоПИ, 1996.-36с.

3.       Кияненко К.В. «Разработка социально-функциональной модели общественно-жилого комплекса» методическое пособие для студентов специальности «Архитектура» - Вологда: 2010

4.       СНиП 2.08.01-89. «Жилые здания. Планировка и застройка городских и сельских поселений»

5.       Кияненко К.В. «Социальные основы архитектурного формирования жилой среды: Учебное пособие-Вологда: ВоГТУ, 1999.-210с.

6.       Кияненко К.В. «Общество, среда, архитектура: социальные основы архитектурного формирования жилой среды» Вологда: , 2015.-284с.

.        СНиП 23-02-2003. Строительные нормы и правила. Тепловая защита зданий: утв. Госстроем России 26.06.2003 г. № 113. - Взамен СНиП II-3-79*; введ. 01.10.2003. - М.: ГУП ЦПП, 2003. - 66 с

ПРИЛОЖЕНИЕ


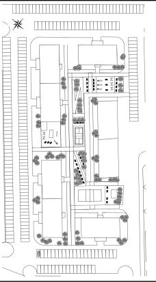
Генеральный план