Содержание
Введение
1. Особенности кустового строительства скважин
2. Специальные буровые установки для кустового строительства скважин
2.1 Устройство и монтаж буровой установки БУ-3000ЭУК
2.2 Устройство и монтаж буровой установки БУ-2500ЭУК
3. Циркуляционные системы ЦС2-3000ЭУК И ЦЗН3-3000ЭУК
3.1 Циркуляционная система ЦС2-3000ЭУК
3.2 Циркуляционная система ЦСЗ-ЗОООЭУК
4. Новые модификации буровых установок для кустового строительства скважин
4.1 Эшелонная установка бурового оборудования
4.2 Буровая установка БУ-3000ЭУК-1
Заключение
Литература
Введение
Кустовое бурение-сооружение скважин, в основном наклонно направленных, устья которых группируются на близком расстоянии друг от друга с общей ограниченной площадки, а забои вскрывают продуктивный горизонт в заданных точках в соответствии с сеткой разработки
В настоящее время большинство эксплуатационных скважин бурится кустовым способом. Это объясняется тем, что кустовое разбуривание месторождений позволяет значительно сократить размеры площадей, занимаемых бурящимися, а затем эксплуатационными скважинами, дорогами, линиями электропередач, трубопроводами.
Особое значение это преимущество
приобретает при строительстве и эксплуатации скважин на плодородных землях, в
заповедниках, в тундре, где нарушенный поверхностный слой земли
восстанавливается через несколько десятилетий, на болотистых территориях,
усложняющих и сильно удорожающих строительно-монтажные работы буровых и
эксплуатационных объектов. Кустовое бурение также необходимо, когда требуется
вскрыть залежи нефти под промышленными и гражданскими сооружениями, под дном
рек и озёр, под шельфовой зоной с берега и эстакад. Особое место занимает
кустовое строительство скважин на территории Тюменской, Томской и других
областей Западной Сибири, позволившее в труднодоступном, заболоченном и
заселённом регионе успешно осуществлять на засыпных островах строительство
нефтяных и газовых скважин.
На суше кустовое бурение нашло применение с 1944 г., сначала в Пермском, а затем и в большинстве других нефтяных районах страны. В начальный период кустовой метод строительства скважин был одиночным явлением. Объемы кустового бурения были малы, поэтому долгое время им занимался только узкий круг специалистов.
Новый этап в развитии кустового метода строительства скважин связан с началом освоения нефтяных богатств Западной Сибири. Отсутствие дорог, сложность переброски оборудования со скважины на скважину на первых порах значительно осложнили организацию буровых работ в новом нефтяном районе. Так, например, при освоении Усть-Балыкского и Мегионского месторождений, основной объем бурения, как правило, выполнялся зимой, и лишь отдельные участки разбуривались в летний период. Причем для работы на этих участках все необходимое оборудование завозилось заранее по зимним дорогам и консервировалось после завершения бурения скважин до наступления зимы и очередного ввода дорог в эксплуатацию.
Возникшая таким образом сезонность в бурении вызвала необходимость разработки и создания на заболоченных и затопляемых участках специальных сооружений, отвечающих требованиям круглогодичного производства буровых работ. В поисках приемлемых решений были предложены и успешно освоены различные конструкции внутрипромысловых дорог и оснований для бурения скважин на болотах. Принимая во внимание возрастающие объемы буровых работ и трудности, связанные с обеспечением своевременного строительства таких сооружений, представилось целесообразным рациональное их применение в сочетании с кустовым бурением.
Первые результаты кустового бурения скважин в Западной Сибири не только подтвердили правильность принятых решений, но и выдвинули целый ряд специфических требований к технике, технологии и организации строительства наклонно направленных скважин в новых условиях. В последующие годы на базе отработки техники и технологии проводки наклонно направленных стволов скважин, разработки и совершенствования методов монтажа бурового оборудования и передвижения его в пределах куста кустовой способ строительства скважин распространялся в этом районе все больше и в последнее время стал основным.
Большие объемы буровых работ, высокие темпы разбуривания нефтяных месторождений Западной Сибири дали мощный толчок научной и инженерной мысли. В сжатые сроки разработаны технические средства для проводки и контроля наклонно направленных скважин, различные конструкции передвижных оснований для перемещения буровых станков в пределах кустовой площадки. Четко определились особенности кустового строительства скважин, требования к буровому оборудованию для этих условий, следствием чего явилось создание буровых установок, специально предназначенных для кустового бурения скважин.
Строительство скважин кустовым способом имеет ряд существенных достоинств экономического и социального характера, которые с каждым годом приобретают все большее значение и способствуют все более широкому распространению этого способа в нашей стране и за рубежом. К числу этих достоинств, прежде всего, следует отнести значительное сокращение материальных и трудовых затрат на инженерное обустройство площадок под скважины, подъездных дорог к ним и месторождений в целом, особенно в условиях моря, заболоченности территорий и бездорожья, где возникает необходимость сооружения искусственных оснований под скважины и дорог специальных конструкций.
В последние годы поиски нефти и газа ведутся в труднодоступных индустриально слаборазвитых районах. Освоение место - рождений в таких районах сопряжено со значительными затратами материальных и технических ресурсов. Кустовое бурение - единственный способ снижения этих затрат, так как оно определяет не только экономическую сторону вопроса, но и темпы разбуривания и освоения месторождений. При этом существенно уменьшаются затраты на промысловое обустройство скважин, строительство нефтегазосборных сетей, энергообеспечение промысловых объектов, ремонт и эксплуатационное обслуживание скважин.
Значительно снижаются затраты на вышкостроение, так как буровое оборудование передвигается в основном в пределах кустовой площадки. Помимо этого кустовой способ позволяет улучшить баланс времени работы буровой бригады. Внедрение кустового способа строительства скважин позволяет снизить до минимума простой буровой бригады при переходе на новую скважино-точку в кусте.
В последние годы большое внимание уделяют вопросам охраны окружающей среды, рационального использования земли. Строительство индивидуальных скважин увеличивает площадь земель, изъятых из сельскохозяйственного производства, и затраты на природоохранные мероприятия (рекультивацию и т.д.). В связи с этим переход на кустовое строительство скважин приобретает весьма актуальное значение.
Все это предопределило в последние годы широкое распространение кустового метода не только на новых территориях, но и в старых нефтяных районах, на давно введенных в эксплуатацию месторождениях.
Строительство скважин кустовым методом составляет в настоящее время более 70% от всего объема эксплуатационного бурения. Причем основной объем кустового бурения приходится на долю Западной Сибири, где кустовое бурение скважин наиболее широко распространено и является решающим экономическим фактором при освоении нефтяных месторождений. Широкое применение кустовой метод находит и при строительстве газовых скважин.
Начинается значительное увеличение удельного веса кустового строительства скважин на месторождениях Пермской области и Коми АССР, а также других нефтяных районов страны.
Основной объем кустового строительства скважин пока осуществляется серийным оборудованием, предназначенным для бурения одиночных скважин. В настоящее время для кустового бурения скважин используются практически все типы буровых установок с условной глубиной бурения от 2000 до 5000 м. Такие установки в промысловых условиях усовершенствуются и "приспосабливаются" к специфике проводки с одной площадки куста наклонно направленных скважин, что, в свою очередь, породило большое многообразие схем расположения оборудования в кусте, взаимного размещения скважин и способов передвижения буровой со скважины на скважину.
Все это предопределило необходимость создания бурового оборудования, предназначенного специально для строительства кустов скважин. В последние годы были созданы первые буровые установки для кустового строительства скважин - БУ-3000ЭУК и БУ-2500ЭУК. Буровая установка БУ-3000ЭУК успешно прошла промышленные испытания и с 1980 г. пущена в серийное производство. В настоящее время основной объем бурения в Западной Сибири выполняется этими установками. В 1982 г. прошла промышленные испытания и буровая установка БУ-2500ЭУК. С 1984 г. начато ее серийное производство.
Таким образом, наметилась перспектива дальнейшего расширения объемов кустового строительства скважин на промыслах нефтегазодобывающих районов страны. Можно предположить, что в ближайшем будущем кустовой метод станет основным при строительстве эксплуатационных скважин на нефть и газ.
кустовое бурение скважина установка
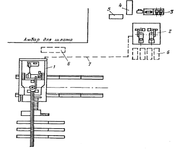
Буровая установка БУ-3000ЭУК предназначена для кустового
бурения нефтяных скважин в условиях Западной Сибири. В комплект бурового
оборудования БУ-3000ЭУК, поставляемого производственным объединением
"Уралмаш", входят: вышечно-лебедочный блок 1 (рис.1) вместе с
механизмом передвижения и выравнивания, насосный блок 2, а также компрессорный
3, энергетический 4 и дизель-генераторный 5 блоки. Циркуляционная
система очистки бурового раствора 6 и нагнетательная линия 7 буровых
насосов, входящие в состав установки, поставляются по кооперации смежными
предприятиями.
Рис. 1 Схема размещения блоков буровой установки БУ-3000ЭУК
Техническая характеристика БУ-ЗОООЭУК
Условная глубина бурения, м 3200
Допускаемая нагрузка на крюке, кН 1700
Мощность привода подъемного механизма, кВт 64<5
Мощность привода буровых насосов, кВт 1260
Тип привода:
буровой установки
Электрический переменного тока, напряжением 600 В лебедки и ротора
Групповой от асинхронного двигателя
буровых насосов
Индивидуальный от синхронного электродвигателя
Оснастка талевой системы 1 4 Х 5, 5 Х 6
Диаметр талевого каната, мм 28
Буровой насос У8-6МА 2
Мощность насоса приводная, кВт 630
Наибольшая суммарная подача, м3/с 0,077
Наибольшее давление на выкиде насосов, МПа 25
Вышка ВМР-45Х170
А-образная, секционная, трубчатая с четырехгранным сечением ноги, со встроенными лестницами и механизмом подъема
Высота (от ствола ротора до низа подкронблочной рамы), м 45
Размер нижней базы, м 10
Номинальная длина свечи, м 25 или 27
Отметка пола буровой от уровня земли, м 7,2
Масса буровой установки, кг 490000
Вышечно-лебедочный блок
Вышечно-лебедочный блок (рис.2) буровой установки представляет собой разборное металлическое основание на колесном рельсовом ходу с расположенным на нем оборудованием. Основание блока 1 выполнено из двух продольных рам, связанных между собой поперечными элементами (балками, рамами, фермами, связями).
Верхняя часть основания состоит из трех рам, которые опираются на поперечные плоские фермы. На буровой площадке с отметкой пола 7200 мм смонтированы ротор 2, буровой ключ 3 лебедка вспомогательная 4 привод ротора 5, пневмораскрепитель 6 и другое мелкое оборудование.
В приводной части основания на отметке 4200 мм монтируется буровая лебедка 7, а электропривод 8 лебедки и вспомогательный привод 9-на отметке 3900 мм. Управление буровой и вспомогательной лебедками сосредоточено у поста бурильщика на буровой площадке. Лебедка, электропривод лебедки и вспомогательный привод устанавливаются на рамы-секции основания и могут транспортироваться отдельными мелкими блоками на передвижных платформах ПП-40Бр. Для крупноблочных перевозок основание блока снабжено кронштейнами 10 под тяжеловозы и балансирным устройством 11. В конструкции основания блока предусмотрено приспособление 12 для снятия превентора с колонной головки и перемещения его вместе с блоком на очередную скважину в кусте. Нижняя часть основания снабжена ходовыми тележками 13, опирающимися на рельсы направляющих балок 14. Для передвижения блока на колесно-рельсовом ходу предусмотрены гидроцилиндры 15 закрепленные к силовым рамам основания, а для выравнивания - домкраты 16. На время бурения колеса тележек разгружаются и блок устанавливается на направляющие с помощью специально предусмотренных опор 17 и проставок 18. Колесно-рельсовый ход и гидроцилиндры блока обеспечивают безопасное передвижение его вместе с комплектом бурильного инструмента, установленного на подсвечниках основания.
На продольные рамы основания опираются буровая вышка 19, устройство 20 для подъема вышки в рабочее положение (УПВ) и консольно-поворотный кран 21 для обслуживания приемного моста, грузоподъемностью 20 кН.
Высота вышки позволяет работать с удлиненной ведущей трубой и наращивать бурильную колонну свечами.
Укрытие 22 блока - металлическое, панельного типа.
Буровая площадка защищается от ветра стеновыми панелями высотой 6 м. Выход на
приемный мост перекрывается откидными воротами. Размер и контур буровой
площадки обеспечивают опускание вышки без разборки укрытия. В приводной части
блока предусмотрен каркас 23, опирающийся на продольные рамы основания.
Ригели каркаса несут на себе панели кровли и используются для перемещения
ручной тали 24 грузоподъемностью 32 кН, предназначенной для обслуживания
лебедки и приводов. Панели укрытия выполнены из профильно-листового проката и
гофрированного листа.

Приемный мост (рис.3) блока состоит из наклонных трапов 1 и 7, горизонтального трапа 6, инструментальной площадки 3 и девяти стеллажей 2. Трапы приемного моста представляют собой плоские сварные рамы со встроенным направляющим желобом. На горизонтальном трапе предусмотрены места запаливания буксирного каната для перемещения трапа по стеллажам в процессе передвижки блока. Наклонный трап 7 опирается одним концом на центральную раму 9 верхней части основания блока, а другим - на трап 6. При передвижке трап перемещается вместе с блоком в зафиксированном положении. В качестве фиксатора используется стойка, опирающаяся на балку 4, закрепленную к продольным рамам 5 основания. Стеллажи выполнены в виде трехгранных ферм, в верхней части которых устанавливаются съемные балки 10, обеспечивающие свободное перекатывание по мосту бурильных, обсадных и насосно-компрессорных труб. Такие балки по мере передвижения горизонтального трапа демонтируются, переставляются на противоположную сторону и фиксируются с помощью клиньев 11.
Рис.3 Приемный мост
Рекомендуемая последовательность монтажа блока такова. Вначале на подготовленной площадке устанавливают в проектное положение и закрепляют между собой направляющие балки механизма передвижения. Причем для свободного маневрирования техники обычно монтируют лишь две пары направляющих балки, а две другие пары подсоединяют после окончания монтажа блока.
Затем на направляющих собирается основание блока. Для этого к продольным рамам основания закрепляют опоры блока, домкраты и ходовые тележки. В собранном виде обе продольные рамы устанавливают на направляющие балки так, чтобы они опирались на них своими опорами через проставки и колеса ходовых тележек были разгружены. Рамы соединяют между собой системой поперечных связей и на них монтируют верхнюю часть основания. Совмещение крепежных отверстий при сборке металлоконструкций обеспечивается с помощью регулировочных тяг.