|
Feldbus-Controller |
• 37 |
|
Feldbus-Controller 750-841 |
|
3.1.9 |
Fehlerverhalten ............................................................................. |
102 |
3.1.9.1 |
Feldbusausfall ........................................................................ |
102 |
3.1.9.2 |
Klemmenbusfehler................................................................. |
103 |
3.1.10 |
Technische Daten.......................................................................... |
104 |
WAGO-I/O-SYSTEM 750 ETHERNET TCP/IP
38 • Feldbus-Controller 750-841
3.1.1 Beschreibung
Der Programmierbare Feldbus-Controller 750-841 (kurz: PFC) kombiniert die Funktionalität eines Kopplers zur Anschaltung an den Feldbus ETHERNET mit der einer Speicherprogrammierbaren Steuerung (SPS).
In dem Controller werden sämtliche Eingangssignale der Sensoren zusammengeführt. Nach Anschluss des ETHERNET TCP/IP FeldbusControllers ermittelt der Controller alle in dem Knoten gesteckten I/O- Klemmen und erstellt daraus ein lokales Prozessabbild. Hierbei kann es sich um eine gemischte Anordnung von analogen (Datenaustausch wortweise) und digitalen (Datenaustausch bitweise) Klemmen handeln.
Das lokale Prozessabbild wird in einen Eingangsund Ausgangsdatenbereich unterteilt.
Die Daten der analogen Klemmen werden in der Reihenfolge ihrer Position nach dem Controller in das Prozessabbild gemappt.
Die Bits der digitalen Klemmen werden zu Worten zusammengefügt und im Anschluss an die analogen ebenfalls in das Prozessabbild gemappt. Ist die Anzahl der digitalen E/As größer als 16 Bit, beginnt der Controller automatisch ein weiteres Wort.
Entsprechend der IEC 61131-3-Programmierung erfolgt die Bearbeitung der Prozessdaten vor Ort in dem PFC. Die daraus erzeugten Verknüpfungsergebnisse können direkt an die Aktoren ausgegeben oder über den Bus an die übergeordnete Steuerung übertragen werden.
Wahlweise kann der ETHERNET-Controller 10/100 MBit/s über Ethernet „100BaseTX“ oder „10BaseT“ mit übergeordneten Systemen kommunizieren.
Die Erstellung des Applikationsprogramms erfolgt mit WAGO-I/O-PRO CAA gemäß IEC 61131-3.
Hierfür stellt der Controller 512 KB Programmspeicher, 128 KB Datenspeicher und 24 KB Retainspeicher zur Verfügung.
Der Anwender hat Zugriff auf alle Feldbusund E/A-Daten.
Um Prozessdaten via ETHERNET zu versenden, unterstützt der Controller eine Reihe von Netzwerkprotokollen.
Für den Prozessdatenaustausch sind das MODBUS TCP (UDP)-Protokoll und das Ethernet/IP-Protokoll implementiert. Beide Kommunikationsprotokolle können wahlweise jedoch nicht gemeinsam verwendet werden.
Für die Verwaltung und Diagnose des Systems stehen die Protokolle HTTP, BootP, DHCP, DNS, SNTP, FTP, SNMP und SMTP zur Verfügung.
Der Programmierer kann Clients und Server über eine interne Socket-API für alle Transportprotokolle (TCP, UDP, u.s.w.) mit Funktionsbausteinen programmieren. Zur Funktionserweiterung sind Library-Funktionen verfügbar. Mit der IEC 61131-3 Bibliothek "SysRTC.lib" wird beispielsweise eine gepufferte Echtzeituhr mit Datum, Zeit (Auflösung 1 Sekunde), Alarm-
WAGO-I/O-SYSTEM 750 ETHERNET TCP/IP
Feldbus-Controller 750-841 • 39
Beschreibung
funktionen und einem Timer eingebunden. Diese Uhr wird bei einem Energieausfall durch eine Hilfsenergie überbrückt.
Der Controller basiert auf einer 32 Bit CPU und ist Multitasking fähig, d. h. mehrere Programme können quasi gleichzeitig ausgeführt werden.
Für Web basierende Anwendungen steht ein interner Server zur Verfügung. Informationen über die Konfiguration, den Status und die E/A-Daten des Feldbusknoten sind bereits als HTML-Seiten in dem Feldbus-Controller gespeichert und können über einen üblichen WEB-Browser ausgelesen werden. Darüber hinaus lassen sich über ein implementiertes Filesystem auch eigene HTML Seiten hinterlegen oder Programme direkt aufrufen.
WAGO-I/O-SYSTEM 750 ETHERNET TCP/IP
40 • Feldbus-Controller 750-841
3.1.2 Hardware
|
ETHERNET |
01 |
02 |
|
LINK |
A |
|
|
|
|
C |
Feldbus- |
MS |
B |
|
|
D |
||
anschluss |
|
|
|
NS |
24V |
0V |
|
RJ 45 |
|
||
TxD/RxD |
|
|
|
|
|
|
|
|
I/O |
+ |
+ |
|
USR |
||
|
|
|
Status der Betriebsspannung -Leistungskontakte
-System Datenkontakte
Versorgung 24V
0V
Versorgung über Leistungskontakte 24V
750-841
Klappe geöffnet
Konfigurationsund
Programmierschnittstelle
_ 
_ 
0V
Leistungskontakte
Betriebsartenschalter
Abb. 3-1: Darstellung ETHERNET TCP/IP Feldbus-Controller |
g084100d |
Der Controller besteht aus:
•Geräteeinspeisung mit Netzteil für die Systemversorgung sowie Leistungskontakte für die Feldversorgung über angereihte Busklemmen
•Feldbusinterface mit dem Busanschluss
•Anzeigeelemente (LED's) zur Statusanzeige des Betriebes, der Buskommunikation, der Betriebsspannungen sowie zur Fehlermeldung und Diagnose
•Konfigurationsund Programmier-Schnittstelle
•Betriebsartenschalter
•Elektronik für die Kommunikation mit den Busklemmen (Klemmenbus) und dem Feldbus-Interface
WAGO-I/O-SYSTEM 750 ETHERNET TCP/IP
Feldbus-Controller 750-841 • 41
Hardware
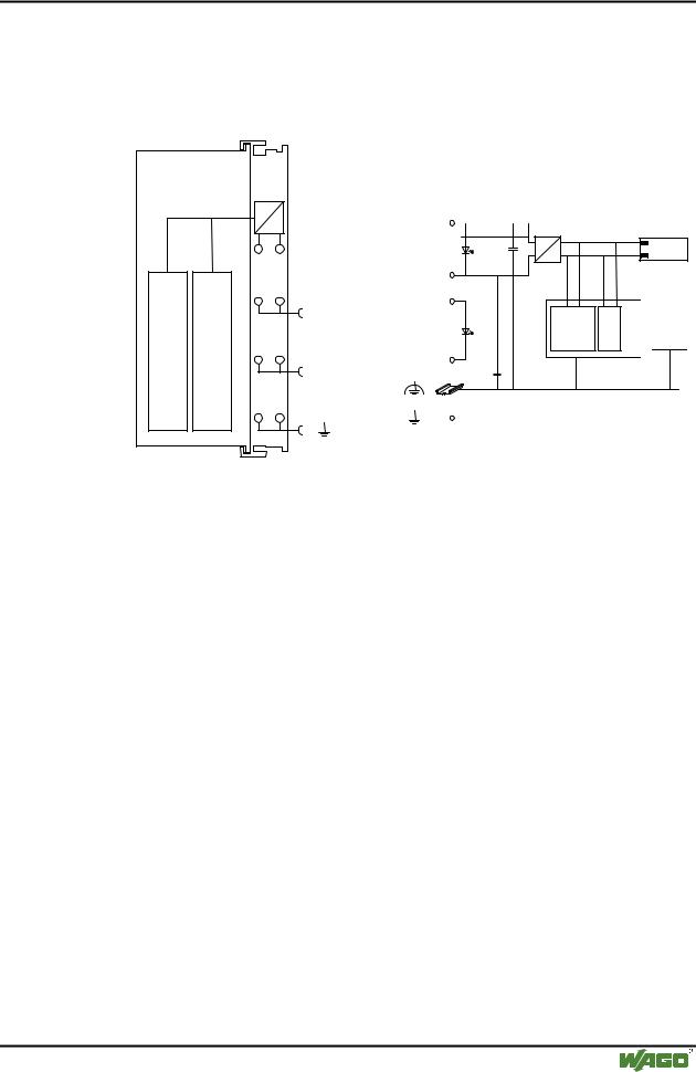
Die Versorgung wird über Klemmen mit CAGE CLAMP®-Anschluss eingespeist. Die Geräteeinspeisung dient der Systemversorgung und der feldseitigen Versorgung.
FELDBUSINTERFACE |
ELEKTRONIK |
|
750-841 |
|
|
24 V |
1 |
5 |
DC |
|
24 V /0 V |
|
|
10 nF |
|
|
|
DC |
0 V
2 6
24 V
24 V
ELEKTRONIK
3 7
0 V |
0 V |
10 nF |
4 8
Busklemmen
FELDBUSINTERFACE


Abb. 3-2: Geräteinspeisung |
G084101d |
Das integrierte Netzteil erzeugt die erforderlichen Spannungen zur Versorgung der Elektronik und der angereihten Busklemmen.
Das Feldbus-Interface wird mit einer galvanisch getrennten Spannung aus dem Netzteil versorgt.
WAGO-I/O-SYSTEM 750 ETHERNET TCP/IP