Материал: 1799

Внимание! Если размещение файла нарушает Ваши авторские права, то обязательно сообщите нам

Результат (с пояснениями)

Несущая способность М

4416603,0 кгс∙см

Х (высота сжатой зоны)

17,3484 см

XL (нижняя граница отыскания)

17,3481 см

XG (верхняя граница отыскания)

17,3488 см

sum s (суммарное усилие в арматуре)

93211,8 кгс

NB (усилия сжатия в бетоне)

93213,2 кгс

Столбец σs - 3750

(напряжения

 

7178,23

 

3750

в арматуре в рядах,

6648,75

сверху вниз)

 

Прочность достаточна. Резерв 6,25%.

Результаты проверки на ПЭВМ показали корректность выполненного расчетного анализа (в скобках результаты проверки на ПЭВМ):

высота сжатой зоны бетона 17,20 см (17,35 см);

коэффициент условия работы в преднапряженной арматуре

γs6 = 1,038 (7178,23/6950 = 1,033);

несущая способность сечения

Ми = 44,33 тс∙м (44,17∙10-5 кгс∙см).

Прочность наклонных сечений

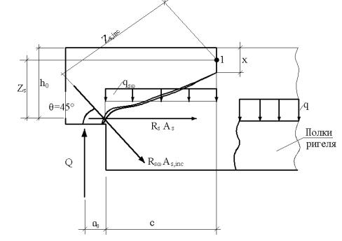
Ригель свободно опирается на скрытую консоль колонны, размещенную в его подрезке, поэтому у опоры ригель является элементом с резко меняющейся высотой сечения [6, пп. 3.48; 3.49].

Для ригелей с подрезками на опорах производится расчет по поперечной силе для наклонных сечений, проходящих у опоры консоли, образованной подрезкой. При этом в расчетные формулы вводится рабочая высота h01 короткой консоли ригеля (рис. 64). Таким образом, в качестве расчетного принимается прямоугольное сечение с размерами b x h1, в котором действует поперечная сила Q от полной расчетной нагрузки (Q = Qmax).

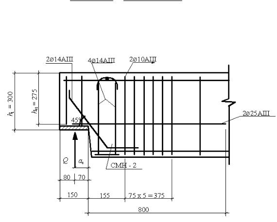
Вертикальные стержни (4Ø14АIII) закладной детали СМН – 2 установлены в соответствии с [2, п. 5.58]. Если напрягаемая арматура располагается сосредоточено у нижней грани, то для предотвращения образования продольной трещины у торца необходимо установить дополнительную поперечную арматуру.

148

Сечение этой арматуры должно быть в состоянии воспринимать не менее 20% усилия в продольной напрягаемой арматуре нижней зоны опорного сечения:

As 0,2 Rsp Asp 0,2 6950 15,2 5,63 см2. Rs 3750

Приняты 4Ø14АIII с As = 6,16 см2; дополнительная поперечная арматура надежно заанкерена по концам.

Рис. 64. Опорный участок ригеля с подрезкой

Из минимума правой части формулы [2, (84)] формируется условие необходимости установки поперечной арматуры по расчету:

Qb3(1 n)Rbtbh01,

внашем случае (Qmax – см. статический расчет)

Q Qmax 26950 кгс > 0,6 ∙ 11,97 ∙ 30 ∙ 27,5=5925 кгс,

где Rbt = 13,3 ∙ 0,9 = 11,97 кгс/см2 [2, табл. 13; 15]; отсюда следует, что поперечное армирование в ригеле установлено по расчету, причем максимальный шаг хомутов определяется из того же условия [2, (84)].

Smax Rbtbh012 /Q 11,97 30 27,52 /26950 10,08 см.

Принятый шаг поперечных стержней (S = 75 мм) удовлетворяет как вышеполученному требованию, так и [2, п. 5.27].

Погонная несущая способность хомутов (Rs = 3000 кгс/см2;

Аs = 0,785 ∙ 2 = 1,57см2; [2, формула (81)]):

149

qs Rs As /S 3000 1,57/7,5 628 кгс/см.

Длина проекции опасной наклонной трещины ([2, формула (80)])

 

b2

(1

n

 

f

)R bh2

С0

 

 

 

bt

01

,

 

 

 

 

qs

 

 

 

 

 

 

 

 

 

 

 

 

где п = 0 – отсутствие продольных сил (в том числе условия предварительного обжатия) в наклонном сечении, проходящем через входящий угол подрезки;

f = 0 – отсутствие сжатых полок;

b2 = 2.

 

2 11,97 30 27,52

С0

 

29,4 см.

628

 

 

Поперечное усилие, воспринимаемое бетоном сжатой зоны при срезе ([2, формула (76)]),

Qb b2(1 n f )Rbtbh02 ,

C

где С = 30 см (целое число шагов хомутов).

Qb 2 11,97 30 27,52 18105 кгс. 30

Несущая способность наклонного сечения

Qb Qs Qb qs C0 18105 628 29,4

36568 кгс > Qbmax 26950 кгс.

Условие прочности на действие поперечной силы [2, формула (75)] выполняется даже без учета наклонной арматуры.

В ригелях с подрезками у концов устанавливаются дополнительные хомуты и отгибы для предотвращения горизонтальных трещин отрыва у входящего угла подрезки. Эти хомуты и отгибы должны удовлетворять условию [6, формула (80)]:

Rs As 1 Rs As,inc sin

где h01, h02 – рабочая высота сечения короткой консоли подрезки и вне ее; дополнительных хомутов, расположенных

Q(1 h01 ),

h02

ригеля соответственно в Аs 1 – площадь сечения у конца подрезки; As,inc

площадь сечения отгибов, проходящих через входящий угол подрезки

(2Ø14АIII, As,inc = 3,08 см2).

150

Участок ригеля у подрезки длиной 155 см (см. рис. 64) предназначен для размещения закладной детали СМН – 2 и не снабжен поперечной арматурой каркаса СКР – 8; функции поперечного армирования на этом участке выполняют анкера закладной детали СМН – 2 4Ø14АIII. В таком случае площадь сечения дополнительных хомутов можно определить по формуле

As 1 (Rs As qs l)/ Rs ,

где Аs = 6,16 см2 площадь сечения 4Ø14АIII;

l = 15,5 см – длина зоны размещения СМН – 2.

As 1 (3750 6,16 628 15,5)/3750 3,56 см2.

Проверка условия [6, формула (80)], (h02 = 39,5):

3000 3,56 3000 3,08sin45 17212кгс > 26950(1 – 27,5/39,5) = = 8187 кгс; условие выполняется.

Перед выполнением проверки прочности наклонного сечения, проходящего через входящий угол подрезки, на действие изгибающего момента следует удостовериться на достаточность заведения за конец подрезки продольной растянутой арматуры в короткой консоли, образованной подрезкой (2Ø25АIII, см. рис. 64). Длина заведения должна быть не менее:

во-первых, lan [2, п. 5.14] или [6, п. 5.44]:

lan ( an Rs an)d and или 250 мм,

Rb

где d = 25 мм диаметр заводимой арматуры;

ап = 0,70; λап = 11; λап = 20; Rs = 3750 кгс/см2;

Rb = 199 кгс/см2 (без учета γb2).

 

 

lan

(0,70

3750

11)25 605мм > 20 ∙ 25 мм;

 

 

 

 

 

 

 

199

 

 

 

 

во-вторых, 0 [6, п. 3.49]:

 

 

 

 

 

2(Q Rs As 1 Rs As,inc

sin )

 

0

 

 

 

 

 

 

a0 10d,

 

 

 

 

qs

 

 

 

 

 

 

 

 

 

где а0 – см. рис. 64, 65; а0 = 7 см; θ = 45°; d = 2,5 см;

Q = 26950 кгс – см. выше.

0 2(26950 3000 3,56 3000 3,08 sin45 )

628

7 10 2,5 63,01 см = 630,1 мм;

151

принятая в проекте длина заведения (800 мм, см. рис. 64) удовлетворяет приведенным выше требованиям.

Расчет по прочности наклонного сечения, проходящего через входящий угол подрезки, на действие изгибающего момента производится из условия:

M Ms Ms Ms,inс,

где М – момент в наклонном сечении с длиной проекции с на продольную ось элемента; Ms; Ms ; Ms,inc – моменты, воспринимаемые соответственно продольной и поперечной арматурой, а также отгибами, пересекаемыми рассматриваемым наклонным сечением, относительно противоположного конца наклонного сечения (в отсутствии отгибов Ms,inc = 0).

Рис. 65. Расчетная схема наклонного сечения на действие момента

Продольная арматура короткой консоли подрезки представлена горизонтальными стержнями, привариваемыми к опорной закладной детали ригеля, что обеспечивает ее надежную анкеровку на опоре, а значит и возможность учета с полным расчетным сопротивлением.

Невыгоднейшее значение длины проекции с определяется по несколько измененной формуле [6, п. 3.45]:

с

Q Rs As,inc

sin

 

 

,

qs

 

 

 

 

152