Материал: 1644

Внимание! Если размещение файла нарушает Ваши авторские права, то обязательно сообщите нам

е р и я в н у т р и в у з о в с к и х См е т о д и ч е с к и х у к а з а н и й С и б А Д И

Министерствоинауки высшего образования Российской Федерации

Федеральное государственное бюджетное образовательное учреждение высшего образования « ибирский государственный автомо ильно-дорожный университет (СибАДИ)»

Кафедра «Мосты и тоннели»

бПРОЕКТИРОВАНИЕ МЕТАЛЛИЧЕСКИХАРЕШЁТЧАТЫХ

ПРОЛЁТНЫХ СТРОЕНИЙ С ОРТОТРОПНОЙДПЛИТОЙ

Методические указанияИ Составитель М.А. Телегин

Омск ▪ 2018

УДК 624.27 ББК 39.112.24.2

П79

Согласно 436-ФЗ от 29.12.2010 «О защите детей от информации, причиняющей вред их здоровью и развитию» данная продукция маркировке не подлежит.

Рецензент

д-р. техн. наук И.Г. Овчинников (СГТУ им. Ю.А. Гагарина)

СибАДИприкрытие автомобильных дорог, мостов тоннелей» при выполнении курсового проекта.

Работа утверждена редакционно-издательским советом СибАДИ в

качестве метод ческ х указаний.

П79 Проект рован е металлических решётчатых пролётных строений

с ортотропной пл той [Электронный ресурс] : методические указания / сост. : М.А. Телег н. – (Сер я внутривузовских методических указаний СибАДИ). –

Электрон. дан. – Омск : Си АДИ, 2018. – URL: http://bek.sibadi.org/cgi-bin/

irbis64r plus/cgiirbis 64 ft.exe. - Режим доступа: для авторизованных пользователей.

Изложены положен я по проектированию металлических решётчатых пролётных строен й с ортотропной плитой. Приведены методики расчёта

основных конструктивных элементов пролётного строения.

Имеют интерактивное оглавление в виде закладок.

Рекомендованы для магистров, обучающихся по направлению «Строительство» (магистерская программа «Проектирование и строительство

мостов и транспортных тоннелей»), а также для специалистов, обучающихся по специальности «Строительство, эксплуатация, восстановление и техническое

Подготовлены на кафедре «Мосты и тоннели».

Текстовое (символьное) издание (1,3 МБ)

Системные требования: Intel, 3,4 GHz; 150 Мб; Windows XP/Vista/7; DVD-ROM; 1 Гб свободного места на жестком диске; программа для чтения pdf-файлов:

Adobe Acrobat Reader; Foxit Reader

Техническая подготовка В.С. Черкашина

Издание первое. Дата подписания к использованию 14.12.2018 Издательско-полиграфический комплекс СибАДИ. 644080, г. Омск, пр. Мира, 5

РИО ИПК СибАДИ. 644080, г. Омск, ул. 2-я Поселковая, 1

ФГБОУ ВО «СибАДИ», 2018

1. СОЗДАНИЕ ПРЕДВАРИТЕЛЬНОЙ СХЕМЫ ПРОЛЁТНОГО СТРОЕНИЯ

В соответствии с заданием необходимо определить расстояния между стойками главных ферм, расстояние между главными фермами, Сдлины панелей, длину тротуарных консолей и начертить фасад, план продольных связей и поперечных балок (рис.1.1), поперечное сечение пролётного строен я (рис.1.2). В пролётных строениях с ездой понизу при назначен поперечных связей необходимо обеспечить габарит проезда по высоте согласно приложению Г [1]. При разделении ортотропнойипл ты на монтажные блоки их ширина не должна превышать

3250мм.

б А Д И

Рис.1.1. Пример фасада пролётного строения, плана связей и поперечных балок

3

С

 

и

 

 

б

 

 

А

 

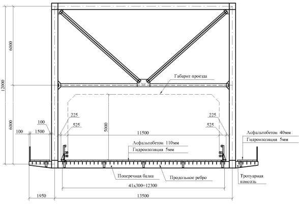
Рис.1.2. Пример поперечного сечения пролётного строения

 

2. РАСЧЕТ ПОПЕРЕЧНОЙ Б ЛКИ И ТРОТУАРНОЙ

 

КОНСОЛИ ОРТОТРОПНОЙ ПЛИТЫ

 

Д

2.1. Сбор нагрузок на поперечную балку и тротуарную консоль

 

Поперечная балка воспринимает следующие постоянные нагрузки:

 

 

И

 

постоянная нагрузка от собственного веса;

 

постоянная нагрузка от веса продольных рёбер ортотропной

 

плиты;

 

постоянная нагрузка от веса листа настила ортотропной плиты;

 

вес дорожной одежды;

 

 

вес барьерных ограждений.

 

Тротуарная консоль воспринимает следующие постоянные нагрузки:

постоянная нагрузка от собственного веса;

постоянная нагрузка от веса продольных рёбер ортотропной плиты;

постоянная нагрузка от веса листа настила ортотропной плиты;

4

вес дорожной одежды;

вес перильных ограждений.

Для определения доли постоянных и временных нагрузок, приходящейся на одну поперечную балку или тротуарную консоль, допус-

кается воспользоваться методом рычага.

С

 

 

 

 

 

Рис

 

 

 

.2.1. бор постоянных нагрузок на поперечную балку или тротуарную кон-

 

 

 

соль

б

 

q'пост.нагр

qпост.нагр·w f .

А

Рис.2.2. Сбор нагрузки К на поперечную балку

Расчётное давление от нагрузки К, приходящееся на расчётную

поперечную балку:

 

 

 

 

И

 

 

 

 

 

 

РАК

Д

Р

2

· f ·(1

yi

2

· f ·(1 )·w.

Рис.2.3. Сбор нагрузки НК на поперечную балку

5