Материал: 1462

Внимание! Если размещение файла нарушает Ваши авторские права, то обязательно сообщите нам

 

Вариант №17

1.

Диаметр трубопровода 820 мм;

2.

Толщина стенки трубы 12 мм;

3.

Материал стенки трубы 17Г1С;

4.

Длина участка строительства 13 км;

5.

Категория грунта 4;

С

6.

Толщина почвенно-растительного слоя грунта 22 см;

7.

Максимальный перепад высот на участке 135 м.

 

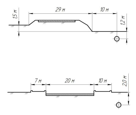
Вар ант №18

1.

Диаметр трубопровода 1020 мм;

2.

Максимальный

Толщина стенки трубы 10 мм;

3.

Матер

стенки тру ы СТ20;

4.

Длина участка стро тельства 15 км;

2.

Толщинатрубопроводастенки ы 16 мм;

5.

Категор

я грунта 4;

6.

Толщина почвенно-растительного слоя грунта 40 см;

7.

 

перепад высот на участке 155 м.

 

Вар ант №19

 

 

 

1.

Диаметр

1220 мм;

 

 

3.

Материал трубы Ст5сп;

 

 

4.

Длина участка строительства 14 км;

 

5.

Категория грунта 4;

 

Д

6.

Толщина почвенно-растительногоАслоя грунта 38 см;

7.

Максимальный перепад высот на участке 140 м.

 

Вариант №20

 

 

И

1.

Диаметр трубопровода 1420 мм;

 

 

 

2.

Толщина стенки трубы 18 мм;

 

 

3.

Материал трубы 09Г2С;

 

 

4.

Длина участка строительства 9 км;

 

5.

Категория грунта 4;

 

 

 

6.

Толщина почвенно-растительного слоя грунта 36 см;

7.

Максимальный перепад высот на участке 95 м.

31

Приложение Б

Варианты задания к работе №5

Вариант №1

С

и

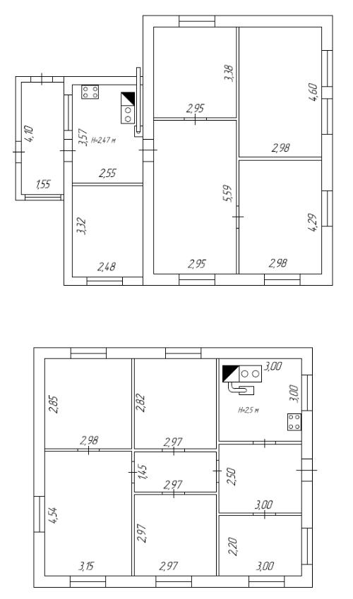
Вариант №2

б

 

 

А

 

Д

 

И

32

Приложение В

Варианты задания к работе №6

Вариант №1

 

С

 

и

б

 

А

Вариант №2

Д

 

 

И

33

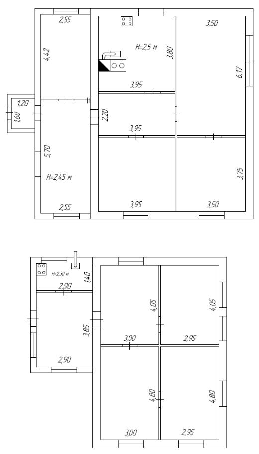
Вариант №3

С

 

и

б

 

А

Вариант №4

Д

 

 

И

34

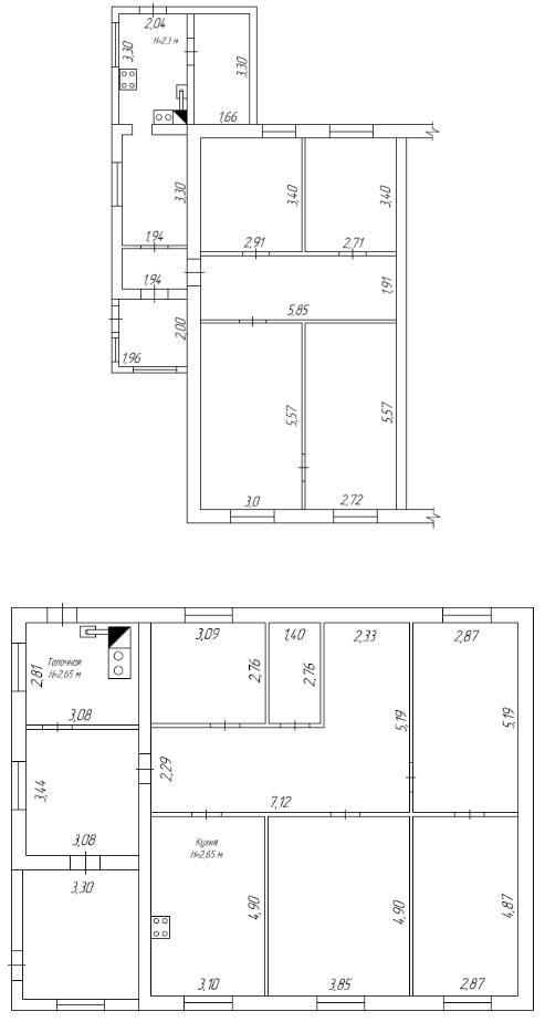
Вариант №5

С

 

и

б

Вариант №6

А

 

Д

 

И

35