Материал: Выбор прототипа автомобиля общего назначения на основании заданных технических характеристик

Внимание! Если размещение файла нарушает Ваши авторские права, то обязательно сообщите нам

Далее на осях D и Do откладываем в масштабе значения D и Dо соответственно.

Соединяем значения D и Dо , полученные при одинаковых значениях пунктирной линией и указываем соответствующее значение.

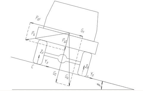
7. ОПРЕДЕЛЕНИЕ НАГРУЗОК НА ОСИ И КОЛЕСА МАШИНЫ

На колеса тяговой машины при ее движении действуют нормальные и касательные силы. Знание этих сил позволяет проводить анализ устойчивости и управляемости, а также тяговых и сцепных качеств машин. Решение прочностных задач деталей ходовой части машины требует определения суммарных реакций грунта на опорный аппарат. При определении нагрузок вводим ряд допущений, не влияющих принципиально на общую модель движения машины.

Для проведения расчетов по определению нагрузок на оси машины выбираются расчетная схема и геометрические параметры машины.

Геометрические параметры автомобиля := 1300 мм = 1,30 м;= 1240 мм = 1,24 м;= 2960 мм = 2,96 м;= 4200 мм = 4,2 м;гр. = 250 мм = 0,25 м;гр. = 1600 мм = 1,6 м;

В - передняя = 2000 мм = 2,00 м;

В - задняя = 2000 мм = 2,00 м;

β = 0º;

α = 5º;

С = 1400 мм = 1,4 м.

При определении нагрузок на оси и колеса автомобиля рассматриваем установившееся движение при малой скорости движения, т.е. Pw=0 и Pj=0. Рассмотрим автомобиль без груза и действующие на него силы на горизонтальной плоскости (рис.8.1) и найдем статические нагрузки на оси незагруженной машины , и , для этого составим уравнения суммы моментов сил, действующих на машину относительно точек А и В:

Рисунок 7.1 - Схема автомобиля с нагрузками на горизонтальной поверхности.

= 0:ст×L - Gа×b = 0,

:


Проверка:

ст + Zост = 55391,5 +23204,5 = 78596 = Ga.

Определяем статические нагрузки Z2ст и Z3ст на задний и передний мосты из условия равновесия балансирной каретки:

ст = Z3ст = Z0ст /2,ст = Z3ст = 23204,5 / 2 =11602 Н.

Аналогично определяем статические нагрузки для груженой машины: = 0:а×b - Z1ст×L + Q1·bгр = 0,

,2ст = Z3ст = Z0ст /2,2ст = Z3ст = 69288 / 2 = 34644Н.

Рассмотрим автомобиль с грузом при движении на руководящий подъем (рис.8.2) и определим нагрузки Z1 и Z0:

Рисунок 8.2 - Схема автомобиля с нагрузками при движении на подъем

:

= Mf1+Mf2f3 + Ga· cosα·a - Z0·L + Q1· cosα·(L - bгр) + Ga· sinα·hg

+ Q1· sinα·hгр = 0;

где Mf1, Mf2, Мf3 - моменты сил сопротивления качению, определяем по формуле:

f1 + Mf2 + Мf3 = [(Gа+Q1)·cosα ]·fmax·Rк,

где fmax - коэффициент качения, fmax=0,015;

Rк - радиус колеса, Rк=0,598 м.

f1+Mf2 + Мf3 = (78596+ 49000)∙0,9962·0,015·0,598 = 1140Н·м.0 = (Mf1+Mf2 + Мf3 + Ga· cosα·a + Q1· cosα·(L - bгр) + Ga· sinα·hg + Q1·

sinα·hгр) / L,0 = (1140 + 78596*0,9962*1,24 + 49000·0,9962*(4,2 - 0,25) +

*0,0872*1,3 + +49000·0,0872·1,6 )/ 4,2 = 73045Н.

Z2 = Z3 = Z0 / 2,2 = Z3 = 73045/ 2 = 36522,5Н.

= 0:

= Mf1+Mf2 + Мf3 - Ga· cosα·b + Ga· sinα·hg - Q1· cosα· bгр + Q1·

sinα·hгр + Z1·L = 0,1 = (-(Mf1+Mf2 + Мf3) + Ga· cosα·b - Ga· sinα·hg + Q1· cosα· bгр - Q1·

sinα·hгр) / L,1 = (-1140 + 78596*0,9962·2,96 - 78596*0,0872·1,3+ 49000·0,9962·0,25

49000·0,0872·1,6) / 4,2 = 54066Н.

Рассмотрим автомобиль без груза при движении на руководящий подъем и определим нагрузки Z1, Zо, при составлении уравнение моментов относительно точек А, В:

=0,f1+Mf2f3 - Ga·cosα·b + Ga·sinα·hg + Z1·L = 0,

где Mf1, Mf2, Мf3 - моменты сил сопротивления качению, определяем по формуле:

f1 + Mf2 + Мf3 = Gа·cosα*·fmax·Rк,

где fmax - коэффициент качения, fmax = 0,015;

Rк - радиус колеса, Rк = 0,598 м.

Mf1+Mf2 + Мf3 = 78596·0,9962·0,015·0,598 = 702,3Н·м

Тогда:

1 = - (Mf1+Mf2+ Мf3) + Ga·cosα·b - Ga·sinα·hg)/L,

Z1 = (-702,3 +78596*0,9962·2,96 - 78596·0,0872·1,3)/4,2 = 52892Н

:f1+Mf2 + Мf3 + Ga· cosα·a - Z0·L + Ga·sinα·hg = 0,0 = (Mf1+Mf2 + Мf3 + Ga· cosα·a + Ga·sinα·hg) / L,0 = (702,3 + 78596·0,9962·1,24 + 78596·0,0872·1,3) / 4,2 = 53351Н

Нагрузки на заднюю и среднюю оси машины Z3 и Z2 равны:

2 = Z3 = Z0 / 2,

Z2 = Z3 = 53351/ 2 = 26675Н.

Произведем оценку неравномерности нагрузки на одно колесо, определив коэффициент неравномерности Кн и сравнив его с допустимым значением коэффициента [Кн] = 1,5:

Кн = Zmax / Zmin,

где Zmax и Zmin - максимальная и минимальная нагрузки на шины груженой машины.

Для передних колес:

Кн = Z1ст / Z1 = / 52892 = 1,02 < [Кн],

Для задних колес:

Кн = Z2 / Z2ст =36522,5 / 26675= 1,37 < [Кн].

8. АНАЛИЗ УСТОЙЧИВОСТИ АВТОМОБИЛЯ

.1 Анализ продольной устойчивости машины

Потеря продольной устойчивости наиболее вероятна при движении на подъем, когда нагрузка на переднюю ось равна нулю. Определим предельный угол продольной устойчивости  из уравнения моментов сил относительно точки В:

для незагруженной машины:

.

,

для загруженной машины:

, (8.1)


.2 Анализ поперечной устойчивости машины

Наиболее часто потеря устойчивости автомобиля выражается в поперечном и боковом скольжении. Потеря боковой устойчивости наблюдается, как правило, при движении.

Рассмотрим устойчивость автомобиля, движущегося на закруглении постоянного радиуса R=80 м со скоростью Vа на дороге с наклоном полотна = 0º (Рисунок 7).

Рисунок 7 - Расчетная схема поперечной устойчивости автомобиля

На автомобиль действует сила тяжести Gа, которая может быть разложена на составляющие:

= Gа*cos,

= Ga*sin

Составим уравнение моментов сил относительно точки С:

,

Критическая скорость по условию опрокидывания:

м/с

Критический угол поперечного уклона по условию опрокидывания:


Критическая скорость по условию бокового заноса:

м/с.

Для прямолинейного участка дороги определяем угол поперечного наклона дороги:

.

В ряде случаев возникает необходимость выяснить, что раньше происходит: опрокидывание или боковое скольжение

м/с,

Отсюда можно сделать вывод: на дороге, где коэффициент сцепления меньше коэффициента боковой устойчивости (φ < б), первым будет наблюдаться боковое скольжение.

9. КОНСТРУИРОВАНИЕ И РАСЧЕТ КОРОБКИ ПЕРЕДАЧ

.1 Общие параметры для зацепления всех передач

Межосевое расстояние, мм

Принимаем большее значение, из полученных по следующим формулам:


где - - максимальный крутящий момент двигателя, Н*М;общ - общее передаточное число коробки передач на I передаче;

- коэффициент полезного действия, принимаю равным 0,97;

- коэффициент использования максимального крутящего момента, интерполированием получаем =0,933

мм

Принимаем  и округляем до ближайшего стандартного значения

Предварительное передаточное число привода промежуточного вала UПВ

UIобщ


При этом передаточное число привода промежуточного вала должно быть больше единицы, примем UПР = 2

.2 Расчет зубчатых колес первой передачи

Передаточное число

= UI общ / UПР= 7,54/ 2 = 3,77

Модуль зацепления

Принимаем модуль зацепления равным .

Рабочая ширина зубчатых венцов, мм

Принимаем стандартное значение ширины венцов равной

Суммарное число зубьев


Округлим значение в меньшую сторону и получим

Число зубьев шестерни


Полученное значение числа зубьев шестерни округлим до

Число зубьев колеса


Фактическое передаточное число


Отклонение передаточного числа, %

< 5%

Делительное межосевое расстояние, мм


Угол зацепления

,

где α = 20 - угол профиля зуба


Коэффициент суммарного смещения

,

где inv α - эвольвентная функция, inv


.3 Коэффициент смещения

Если , принимают  и .

Принимаем  и

Делительные диаметры шестерни и колеса, мм

;

.

;

.

Начальные диаметры, мм

;

.

;

.

Коэффициент воспринимаемого смещения


Коэффициент уравнительного смещения


Диаметры вершин зубьев, мм


Диаметры впадин


Основные диаметры, мм