Материал: В.И.Чуешов, Л.А.Мандрыка, А.А. Сичкарь Оборудование и основы проектирования химико-фармацевтических производств

Внимание! Если размещение файла нарушает Ваши авторские права, то обязательно сообщите нам

ПРИЛОЖЕНИЕ Г

Примеры р:нмеще1111я oliopyдona111ш фармацсвт1l'1есю1х 11ро11зnо11ств в шш11с 11 р:: зрезе цех:1

Г.1. P:tJ ICЩCJIIIC оборудова1111я для ll()OIIЗBOДCTШl таблстшс, 1101срьпых OUOЛO'IKOii (щншер № 1)

-- .,_, 14, 400

д

о

о

о

r

i

 

"'

 

 

 

 

 

 

 

 

 

 

е

 

 

 

 

 

 

 

 

 

 

 

 

 

 

 

N

 

 

 

 

 

 

 

 

 

 

 

 

 

 

 

 

о

 

 

 

 

 

 

 

 

 

 

 

 

 

 

о

 

 

 

 

 

 

 

 

 

е

 

 

 

 

 

 

 

 

 

 

 

 

 

 

(

8

 

 

 

 

 

 

 

 

 

 

 

 

 

 

 

 

 

 

 

 

 

 

 

 

 

 

 

 

 

е

е

в

 

 

 

 

 

 

 

 

 

 

 

 

 

 

 

 

 

 

 

 

 

 

 

 

 

 

 

 

 

 

 

 

 

 

 

 

 

 

 

 

 

 

 

 

 

 

 

 

 

 

 

 

 

 

 

 

 

 

 

 

 

 

 

 

 

 

 

 

 

 

 

 

 

 

 

 

 

 

 

е

2J·-

 

 

 

 

 

- *-

 

 

е ,

 

 

 

 

 

 

 

 

 

 

 

 

 

 

 

 

 

 

 

 

 

 

 

6000

 

 

 

 

 

 

 

 

6000

 

 

 

 

 

 

10460

 

 

 

 

 

 

 

 

 

 

 

 

 

 

 

 

 

 

 

 

 

 

 

 

 

 

 

 

 

 

 

 

 

 

 

 

 

 

 

 

 

, '

 

.,.

®

 

 

 

 

 

 

 

 

 

 

 

 

 

 

 

 

 

 

 

 

 

 

.

'

 

 

 

 

 

 

 

 

 

 

 

 

 

 

 

 

 

..

"'

 

 

 

 

 

 

 

i

Продолжение приложения Г 1

Разрез 1-1

Разрез 2-2

,___}, -- h--· ----- ---_j' -----,-,

 

V

1: 19.200

19 200

t

 

n1

)

"' 1

 

 

 

11

 

 

 

/

 

 

 

 

ti....!OQ,

 

 

 

J

 

 

 

 

 

 

 

 

 

 

\

 

 

 

 

1

 

 

 

1

 

 

 

 

 

 

 

 

 

 

 

 

 

 

 

 

 

 

 

 

 

 

 

!

 

 

 

\1/

 

111

 

 

 

 

111

 

11

 

 

11/

1

 

 

 

 

 

 

 

 

 

10

 

 

11

 

 

 

 

\

i)

 

1

 

 

\

 

-\

 

 

 

 

i

 

 

 

1

 

 

 

 

 

1,

'

 

 

 

 

. ;-1

(g'

 

 

 

 

 

 

 

 

 

 

 

 

 

 

 

 

 

 

 

9

r-i

 

 

'IEJ

i

 

 

 

4.

 

'

,_

 

 

 

'

 

--,1

 

 

 

 

 

 

d1U

 

 

11

,

.

 

j

 

 

 

1

 

 

1

 

 

 

 

 

 

 

 

 

 

 

 

 

 

,-----11

 

 

 

 

11/

 

111

 

 

 

 

111

 

 

 

 

 

,11

 

 

 

 

 

 

 

\ (

1

 

 

 

 

 

 

 

 

 

 

 

 

 

 

 

 

1

 

 

 

 

 

 

 

 

 

 

 

 

 

 

 

 

6000

1

Продолжение приложения Г.1

Эксrшикация 11омсщс1шй

 

 

 

Но"ер

 

 

 

 

 

 

 

 

 

Наиме11ованне

Категория поме-

 

 

 

ломе-

 

 

 

 

 

 

 

 

 

 

щения по пожаро-

 

 

 

щеuин

 

 

 

 

 

 

 

 

 

 

ВЗDЫВООПасности

 

 

 

401

 

 

 

 

 

 

 

 

Санитаnный ПDOIIVCKHИK

 

·v

 

402

 

 

 

 

 

 

 

 

 

 

 

Помещение растаривания сыр .я

 

'\,

 

 

403

 

 

 

 

 

 

 

 

Тамбур-шлюз

 

 

 

404

 

 

 

 

 

 

 

 

Помещение взвешивания

 

 

 

 

405

 

 

 

 

 

 

 

 

Помещение хпанения сыпья

 

 

 

 

406

 

 

 

 

 

 

 

 

Помещение измельчения н ппосева

 

 

 

 

407

 

 

 

 

 

 

 

 

Помещение хранения пустых бидонов

 

V

408

 

 

 

 

 

 

 

 

Помещение мойки и сушки сборников

 

 

 

 

409

 

 

 

 

 

 

 

 

Помещение мойки и сушки табл. инвентаря

-

 

 

 

410

 

 

 

 

 

 

 

 

 

Помещение получения массы дл• таблетипования

 

 

 

411

 

 

 

 

 

 

 

 

 

Помещение хранения таблеточной массы

 

 

 

 

412

 

 

 

 

 

 

 

 

Помещение nблетирования

 

 

 

 

413

 

 

 

 

 

 

 

 

Помещение хранения таблеток

 

 

 

 

414

 

 

 

 

 

 

 

 

Помещение дражиnовки

 

 

 

 

415

 

 

-

 

 

 

 

Помещение фасовки

 

 

 

 

416

 

 

 

 

 

 

Помещение п.....-nтnвления vвлажнителя

 

 

 

 

417

 

 

 

-

 

 

хDанеиия тех. инвентаDя

 

 

 

 

413

 

 

 

 

 

 

 

 

Пvwевая

 

 

 

J

419

 

 

 

 

 

 

 

 

Помещение

 

хDанеиия инвентаDя чистых помещений

 

''

 

 

420

 

 

 

 

 

 

 

 

Помещение хранения инв. упаковки

 

\/

 

 

421

 

 

 

 

 

 

 

 

Помещение хоанения упаковочных матеDиалов

 

 

 

 

422

 

 

 

 

 

 

 

 

Помещение упаковки

 

 

 

 

423

 

 

 

 

 

 

 

 

Склад nnnllVJЩИИ

 

 

 

 

424

 

 

 

 

 

 

 

 

Коммуникационный копидоп

 

 

 

 

425

 

 

 

 

 

 

 

 

KoDHДOD

 

 

 

 

 

 

426

 

 

 

 

 

 

 

 

Раздевало

nei,coнana у11,1ковки

 

Перечень основного оборудования

Зона

Поз

 

1

 

2

 

3

 

4

 

5

 

6

1 7

8

9

10

11

12

13

Обозначение

РМЗ

ГФ9 ГФ18 ГФ20

СШ22

ГФ24 ТС27

Р15 ГФ35-1 ГФ35-3

ФУЗ9 ГФ41

Нащtеноваине Микромельница молотковая Виброситоцилиндрическое Смеситель

Гранулятор универсальиыli Сушилка порционная

СГранулятор Ротационный таблеточный пресс

Реактор

Емкость с мешалкой Дражировочный котел Блок управления

Автомат для упаковки таблеток Стол

Кол. Примечание

1

1

1

1

1

1

1

1

1

1

1

1

1

 

 

 

 

 

 

=

 

 

 

 

Q

 

 

:r

 

 

Q

 

 

 

i::

 

 

...

 

 

=

 

 

=

'

 

Q

)

 

 

 

с.

 

 

Q

 

 

=

 

 

1с:>

 

 

Q

 

 

 

 

 

 

 

 

"'

 

 

 

 

с.

 

 

('11

 

 

N

 

 

 

 

 

с.

 

 

=

 

 

 

 

 

.

 

с.

с

r-i

 

 

....

"'

1<),

"'1

l<)r

1

,

с:,

....

С1

l

!-----oou9

(

 

 

 

 

 

 

 

 

 

 

'

 

 

 

 

 

 

 

 

 

 

 

 

 

 

 

 

 

 

 

 

 

 

 

 

 

 

 

 

 

 

 

 

 

 

 

 

 

 

 

 

 

 

 

 

 

_k_

 

 

 

 

 

 

 

 

 

 

 

 

 

 

 

 

 

 

 

·J

 

 

 

 

 

 

 

 

 

 

 

 

 

 

 

 

 

 

 

 

 

 

 

 

 

 

 

 

 

 

 

 

 

 

 

 

 

 

 

 

 

 

 

 

 

 

 

 

 

 

 

 

 

 

 

 

 

 

 

 

 

 

 

@

 

 

 

 

 

 

 

 

 

 

 

 

 

 

 

 

 

 

 

 

 

 

 

 

 

 

 

 

 

 

 

 

 

 

 

 

 

 

 

 

 

 

 

 

 

 

 

 

 

 

 

 

 

 

 

 

 

 

 

 

 

 

 

1

 

 

 

 

 

 

 

 

 

 

 

 

 

 

 

 

 

 

 

 

 

®

 

 

®

 

 

 

 

 

 

 

 

 

 

 

 

 

 

 

 

 

 

 

 

 

 

 

 

 

 

 

 

 

 

 

 

 

 

 

 

 

 

 

 

 

 

 

 

 

 

 

 

 

 

 

Тоо - -

 

 

 

 

 

 

 

 

 

 

 

 

 

 

 

 

 

 

 

 

 

 

 

 

 

 

 

 

 

 

@)

 

 

 

 

 

 

 

 

 

 

 

 

 

 

 

 

 

 

 

 

 

 

 

 

 

 

 

о

 

 

 

 

 

 

 

 

 

 

 

 

 

 

 

 

 

 

 

 

 

 

 

 

 

 

 

 

 

 

 

 

 

 

 

 

 

 

 

 

 

 

 

 

 

 

 

 

 

 

 

 

 

 

 

 

оом--;-

 

 

 

 

 

 

 

 

 

 

 

 

 

 

 

 

 

 

 

 

 

 

 

 

 

 

 

 

 

 

 

 

 

 

 

 

 

 

 

 

 

 

 

 

 

 

 

 

 

 

 

 

 

 

 

 

 

 

 

 

 

)

 

1_

 

 

 

 

 

 

 

 

 

 

 

 

 

 

 

 

 

 

 

 

 

 

 

 

 

 

 

 

 

 

 

 

 

 

 

 

 

 

 

 

 

 

 

 

 

 

 

 

 

 

 

 

 

 

 

 

 

 

 

 

 

 

 

1

 

 

 

®

1

OU09 е1

 

 

 

 

 

 

 

 

 

 

 

 

r6 0009

0\0\lJ;

0009

 

 

 

 

,а,>

-(;?)

--@

@

@)

-< )

162

163

 

Номер ПО·

мешення

 

601

 

 

 

 

 

 

602

 

 

 

 

 

 

 

 

 

 

 

 

603

 

 

 

 

 

 

604

 

 

 

 

 

 

605

 

 

 

 

 

 

606

 

 

 

 

 

 

 

 

 

 

 

 

 

607

 

 

 

 

 

 

608

 

 

 

 

 

 

609

 

 

 

 

 

 

 

 

 

 

 

 

610

 

 

 

 

 

 

611

 

 

 

 

 

 

612

 

 

 

 

 

 

613

 

 

 

 

 

 

 

 

 

 

 

 

 

614

 

 

 

 

 

 

615

 

 

 

 

 

 

616

 

 

 

 

 

 

 

 

 

 

 

 

617

 

 

 

 

 

 

 

 

 

 

 

 

618

 

 

 

 

 

 

619

 

 

 

 

 

 

620

 

 

 

 

 

 

621

 

 

 

 

 

 

 

 

Поз.

 

Зон ;

 

 

 

 

 

 

 

 

 

1

 

 

 

 

2

 

 

 

 

 

 

 

 

 

3

 

 

 

 

 

 

 

 

 

4

 

 

 

 

5

 

 

 

 

 

 

 

 

 

6

 

 

 

 

 

 

 

 

 

7

 

 

 

 

 

 

 

1

8

 

 

 

11

9

 

 

 

!

10

 

 

 

;

11

 

 

 

 

 

;

·12

 

 

 

 

 

 

 

 

!

13

 

 

1

14

 

 

..

15

 

 

 

 

16

 

 

 

 

 

 

 

 

11 ·1

,Продолжение приложения Г.2

'--- '•'-jr,__.__:;с::

I _,:_- ::r

-

_,_211111...

Р з 1-1

 

 

-=--

-------т',------- ---.--'1

.:u.L

 

 

-..-::.!...'

 

 

®

J)

Экспли саци11 помеще11и_й

 

 

Наименование

 

Тамбур

 

 

 

 

Епектрощитовu

 

 

 

Комната уборочного инвектар,

 

 

 

Кoмlllria nрнн1ПИJ1 пищи

 

 

 

1·• мужскu гардеробнu

 

 

 

2-• мужсш гардеробнu

 

 

 

1-•ЖCIICICU гардеробная

 

 

 

2·• женсш rардеробнu

 

 

 

Пркrочнu векткамера

 

 

 

Помещение подготовки воздуха

 

 

 

Туалет

 

 

 

 

Персональны!! шлюз

 

 

 

Помещение храненИJ1 чисто!! одежды

 

 

Помещение полученИJ1 очищенной ilQды

д

Офис

 

 

 

д

 

 

 

 

ЛабораторИJ1

 

ж

итсu

д

Помещение приrотоменИJ1 уаnа

в

 

и

Помещение ripиroтoaneнu трlП)'!)JЦнонноll смеси

в

Помещение прнГОТОВJ1ени, табпеNассы

в

Помещение гомогенизации

 

 

в

BecolllUI

 

 

 

в

 

п

 

 

 

 

Перечень основноrо оборудования

Обозначение

 

 

Наименование

 

КП-1

с

 

 

 

Ве ы электронные

 

КП-2

Весы электронные

 

ГФ-4

Вибросито

 

 

 

ГФ-6

Смеситель дла тркrурации

 

ГФ-7

Миксер

 

 

 

3-8,9,10

Смсеительныll контеllнер

 

ГФ-11

Смеситель-rранумтор-сушилка

 

ГФ-12

Колибратор-просеивател

 

ГФ-13

Смеситель-гомогенизатор

 

КП-14

Пресс таблеточный

 

ГФ-15

Весы электронные

 

ГФ-16

Установка дл, блистериоА уnакоаки.

 

ГФ-17

Фасовочно-упакоаочнu машин.

 

ГФ-18

Стол дл, упаковки

 

 

Установка фнльwации аоздуха

 

ГФ-23

Агрегат получена, очищенной·воды

 

 

 

164

 

ХатеrорИJ1 по пожаро- взрывоопасности

'.

Кол.

Прнмеча-

 

ние

2

1

1

1

1

3

1

1

1

1

1

1

1

1

1

1

..

..

fjl1

:\1

. ;а

J,

 

__L., '

 

-

.............. ........==r==а 4i'i!.ici -- Ы!J'\;,......i jjlf

'чt:ГГ,'::J

=

с. !

=u с:

с.

f")

с:

1

ф

" --

, i

ffi @

t

t

H

 

 

 

Т'='

 

®

 

t

 

 

- 1

L

 

1

:

 

фi

tJ

 

l

 

l:

 

. г

ф

l..! 4-1-.:::

 

 

-;;-.

 

 

 

1 1 ·-'

 

 

 

t·j: ..

 

 

 

.,1 ..

 

 

]

"'

-

 

 

 

 

 

 

 

 

·:V

 

 

 

1

 

 

 

,

{

":.'

 

 

 

J

 

 

 

 

,

 

 

 

 

1

 

 

 

 

1

 

 

.r­

\ 1

@;

·,

:::,

165

" 1

 

 

 

 

 

 

 

 

 

 

 

 

 

"'""'

г

 

 

 

 

 

 

 

 

 

 

 

 

 

 

 

 

 

 

 

 

 

 

 

 

1

 

 

 

 

 

 

 

 

 

 

--

 

 

 

 

 

 

 

 

 

 

 

 

Продолжение приложения Г.3

 

 

 

 

 

 

 

 

 

 

 

 

Продолжение приложс11ия Г.3

 

 

 

 

IHН.:ТII

 

 

 

 

 

 

 

 

 

 

 

 

 

 

 

 

 

 

 

 

 

 

 

 

 

 

 

 

 

 

 

 

 

 

 

 

 

 

 

 

 

 

 

 

 

 

 

 

 

 

 

 

 

 

 

 

 

 

 

 

 

 

 

 

 

 

 

 

 

 

 

 

 

 

 

 

 

 

 

 

 

 

 

 

 

 

 

 

 

 

 

 

 

 

 

 

 

 

 

 

 

 

 

 

 

'·)i- .:t'll.'lllh::IHIНI JIO'\ICЩCllllii

 

 

 

 

 

 

 

 

 

 

 

 

 

 

 

 

 

 

 

 

 

 

 

 

 

 

 

 

 

 

 

 

 

 

 

 

 

 

 

 

 

 

 

 

 

 

 

 

 

 

 

 

 

 

 

 

 

 

 

 

 

 

 

 

 

 

-----

 

 

 

 

-·-.---

 

---- ··-·-····-

 

 

 

i

 

 

 

..--- -

 

 

 

 

 

 

 

 

 

 

 

 

 

 

 

 

 

 

 

 

 

 

 

 

 

 

 

 

 

 

 

 

 

 

 

 

 

 

 

 

 

 

 

 

 

 

 

 

 

 

I I.IIIMCIIOlit11111Я

 

 

 

 

 

 

 

 

 

1':;it\.'.l"OJ111}1

111,

 

 

 

 

 

 

 

 

 

 

 

 

 

 

 

 

 

 

 

 

 

 

II0\11,;·

 

 

 

 

 

 

 

 

 

 

 

 

 

 

 

 

 

 

 

 

 

 

 

 

 

 

 

 

 

 

 

 

 

 

 

 

 

1rожаро-

 

 

1

 

 

 

 

 

 

 

 

 

 

 

 

 

 

 

 

 

 

 

 

ШCIIШI

 

 

 

 

 

 

 

 

 

 

 

 

 

 

 

 

 

 

 

 

 

 

 

 

 

 

 

 

 

 

 

 

 

 

 

 

 

1Пp1,IJI0(HlaC-

 

 

 

 

 

 

 

 

 

 

 

 

 

 

 

 

1()1-

 

 

 

 

 

 

 

 

 

 

 

 

 

 

 

 

 

 

 

 

 

 

 

 

 

 

 

 

 

 

 

 

·--t-n-··----

 

 

 

 

 

 

 

 

 

 

 

 

 

 

 

 

 

 

 

--

 

 

 

 

 

С .:л.1;1 сыр ,

-

 

 

 

 

 

 

 

 

 

 

 

 

 

 

 

 

 

 

 

 

 

 

 

 

 

 

 

 

 

 

 

 

 

 

 

-

 

 

 

---

 

 

 

 

 

 

 

 

 

 

 

 

 

 

 

 

 

 

 

.)__

 

····-·

 

 

 

 

1

 

 

 

 

 

 

 

 

 

 

 

 

 

 

 

 

 

 

 

 

 

 

 

 

 

 

 

 

 

 

 

 

 

 

 

 

 

 

 

 

 

 

 

 

 

 

 

 

 

 

 

Ра,реэ 1-f

 

 

 

 

 

 

 

10

-

 

 

 

---Отн·...-:ЛL."Шtе ripoce1н1 11дроблею1я сырья,

класс чистоты )/ А

 

 

 

 

 

111

_

..____

 

1

 

 

 

 

 

 

 

 

 

 

 

 

 

 

 

 

 

 

 

 

 

 

 

 

 

 

 

 

 

 

 

 

 

 

 

 

 

 

 

 

103

 

 

 

 

 

 

 

 

 

 

Про:..1.:жут Ч1-tый склад, класс 1 н1стоты 3/В

 

 

 

 

 

 

 

 

 

 

 

в

 

 

 

 

 

 

 

 

!

 

 

 

 

 

 

 

 

 

 

 

 

 

 

 

---·

 

 

 

 

 

 

 

 

 

 

 

 

 

 

 

 

 

 

 

 

 

 

 

 

 

 

 

 

 

 

 

 

 

 

 

 

 

 

 

 

 

 

 

 

 

 

 

 

 

 

 

 

 

 

 

 

 

 

 

 

 

 

 

 

 

 

 

 

 

 

 

 

 

 

 

 

 

 

 

 

 

 

 

 

 

 

 

 

 

 

 

 

 

 

 

 

 

 

 

 

 

 

 

 

 

 

 

 

 

 

 

 

 

 

 

 

 

 

 

 

 

 

 

 

 

 

 

 

104

г

 

 

 

 

 

Отл шшне в1

веш11вания, класс ч IICTOTЫ 3/А

 

 

 

 

 

 

 

 

 

 

 

в

 

 

 

 

 

 

 

--

 

!1

 

 

 

 

 

 

 

 

 

 

 

 

 

 

 

 

 

 

 

 

"""'iо ·

 

 

 

 

_ С•тш серий, класс_ чистоты 3/А

 

 

 

 

 

 

 

 

 

 

 

 

 

 

 

 

 

 

в

 

 

 

 

 

 

 

__ J

 

 

 

 

 

 

 

 

 

 

 

 

 

 

 

 

 

 

 

 

 

 

 

 

 

 

 

 

 

 

 

 

 

 

 

 

 

 

 

 

 

 

 

 

 

 

 

 

 

 

 

 

 

 

 

 

 

 

 

 

 

 

 

 

 

 

 

 

 

 

 

 

 

 

 

 

 

 

 

 

 

 

 

 

 

 

 

 

 

 

 

 

 

 

 

 

 

 

 

 

 

 

 

 

 

 

 

 

 

 

 

106

__

 

 

 

 

Отделение приготовления растворов, класс.чистоты 3/А

 

 

 

 

 

 

 

 

 

 

 

в

 

 

 

 

 

 

 

 

 

 

i

 

 

 

 

 

 

 

 

 

 

 

 

 

 

,

 

 

 

 

 

 

 

 

 

 

 

 

 

 

 

 

 

 

 

 

 

 

 

 

 

 

 

 

 

 

 

 

 

 

 

 

 

 

 

 

 

 

 

 

 

 

-1

 

 

 

 

 

 

 

 

 

 

 

 

 

 

 

107

 

 

 

 

 

 

-

 

 

 

Отделение гранул11рования, класс ч11стоты 3/А

 

 

 

 

 

 

 

 

 

 

 

в

 

 

 

 

 

 

 

 

 

 

 

 

 

 

 

 

 

 

 

 

 

 

 

 

 

 

,____

 

 

 

 

-

 

 

 

 

 

 

 

 

 

 

 

 

 

 

 

 

 

 

 

 

 

 

 

 

 

 

 

 

 

 

 

 

 

 

 

 

 

 

1

 

 

 

 

 

 

 

 

 

 

 

 

 

 

 

108

 

 

 

 

 

 

 

 

 

 

,Отдслен11е сушк11 гранулята, класс чистоты ЗiА

 

 

 

 

 

 

 

 

 

 

 

в

 

 

 

 

 

 

 

 

 

1

 

 

 

 

 

 

 

 

 

 

 

 

 

 

 

 

 

 

 

 

 

 

 

 

 

 

 

 

 

 

 

 

 

 

 

 

 

 

 

 

 

 

----!

 

 

 

 

 

 

 

 

 

 

 

 

 

 

 

 

 

 

 

 

 

 

 

 

 

 

 

 

 

 

 

 

 

 

 

 

 

 

 

 

 

 

 

 

 

 

 

 

 

 

 

 

 

 

 

 

10()

 

 

 

 

 

- 1

 

-.

 

 

 

 

 

 

 

 

 

 

 

 

А

 

 

 

 

 

 

 

 

 

 

 

 

 

 

 

 

 

в

 

 

 

 

 

 

 

 

 

 

 

 

 

 

 

 

 

 

 

 

 

 

 

 

 

 

 

 

Склад rранулята. к.,асс •111стоты З

 

 

 

 

 

 

 

 

 

 

 

 

 

 

 

 

 

 

 

 

 

 

 

 

 

 

 

 

 

 

 

 

 

 

 

 

 

 

 

 

 

 

 

 

t---··-

 

 

 

 

 

 

 

 

 

 

 

 

 

 

 

1

 

 

 

 

 

 

 

 

 

 

 

 

 

 

 

 

 

 

 

 

 

 

 

 

 

 

 

 

1

 

 

 

 

 

 

 

 

 

 

 

 

 

 

 

 

 

 

 

 

--·--------с-

 

 

 

 

 

 

 

 

 

 

 

 

 

 

 

 

 

 

 

 

 

 

 

 

 

 

 

 

 

 

 

 

 

 

 

 

 

 

 

 

 

 

 

 

 

 

 

 

 

 

 

 

 

 

110

 

 

 

 

 

 

 

 

 

 

О1·д..:.i1t."нис оnудр11вания и rомогенизаuин. класс чистоты 1-'А

 

 

 

 

 

 

 

 

 

 

 

в

 

 

 

 

 

 

 

---1

 

 

 

 

 

 

 

 

 

 

 

 

 

 

 

 

 

 

 

 

f---

 

 

 

 

 

О1·делен11е таблетирования, кдасс чистоты _ЗIА

 

 

 

 

 

 

 

 

 

 

 

в

 

 

 

 

 

 

 

 

 

 

 

 

 

 

 

 

 

 

 

 

 

 

111

 

 

 

 

 

 

 

 

 

 

 

 

 

 

 

 

 

 

 

 

 

 

 

 

 

 

 

 

 

 

--;!

 

 

 

 

 

 

 

 

 

 

 

 

 

 

1:

112

 

 

 

 

 

 

 

 

 

 

Отделение хранения таблеток. класс ч11стоты 3/А

 

 

 

 

 

 

 

 

i

 

 

в

 

 

 

 

 

 

 

 

 

 

i

 

 

 

 

 

 

 

 

 

 

 

 

 

 

 

 

 

 

 

t---···

 

 

 

Оп1слсние фасовки. класс ч11стоты 318

 

 

 

 

 

 

 

 

 

 

 

 

 

 

 

 

 

 

 

 

 

 

 

 

 

 

 

 

 

 

 

 

 

 

 

 

 

 

 

 

 

 

6000

 

 

 

 

 

 

113

 

 

 

 

 

 

 

 

 

 

 

 

 

 

 

 

 

 

 

 

 

 

 

 

 

 

 

 

 

 

 

 

:

 

 

 

 

 

 

 

 

 

 

 

 

 

 

 

 

 

 

 

 

 

 

 

 

 

 

 

 

 

 

 

 

 

 

 

 

 

 

 

 

 

 

 

 

 

 

 

 

 

 

 

 

 

 

 

 

 

 

 

 

 

 

 

 

 

 

 

 

 

 

 

 

 

 

 

 

f!QOO

 

 

 

12соо

 

 

 

 

 

 

 

 

г--·

 

 

 

 

 

 

 

 

 

 

 

 

 

 

 

 

 

 

 

 

 

 

 

 

 

 

 

 

 

 

 

 

 

 

 

 

 

 

 

 

 

 

 

 

 

 

 

 

 

 

 

 

 

 

)

114

 

 

 

 

 

 

 

 

 

 

Отдl..'ление упаковки

 

 

 

 

 

 

 

 

 

 

 

 

 

 

 

 

 

JB

 

 

 

 

 

 

 

 

 

 

 

 

..;_,

 

 

 

 

 

 

 

 

115

 

 

 

 

 

 

 

 

 

 

Скт1д готовой продукции, упаковочных материалов

 

 

 

 

 

 

 

 

 

 

 

в

 

 

 

 

 

 

 

 

 

 

 

 

 

 

 

 

 

 

 

 

 

 

 

 

 

 

 

 

 

 

 

 

 

 

 

 

 

 

 

 

 

 

 

 

 

 

 

 

 

 

 

 

 

 

 

 

 

 

 

 

 

 

 

 

 

f---

 

 

 

 

 

 

 

 

 

 

 

 

 

 

 

 

 

 

 

 

 

 

 

 

 

 

 

 

 

 

 

 

 

 

 

 

 

д

 

 

 

 

 

 

 

 

l

 

 

 

 

 

 

 

 

 

 

 

 

 

 

,116

 

 

 

 

 

 

 

 

 

 

Moiiкa. класс чистоты 3/В

 

 

 

 

 

 

 

 

 

 

 

 

 

 

 

 

 

 

 

 

 

 

 

 

 

 

 

 

 

 

 

 

 

 

 

 

 

 

 

 

Разре, Z-2

 

 

-----

 

 

 

 

Гар!!ероб

 

 

 

 

 

 

 

 

 

 

 

 

 

 

 

 

 

 

 

 

 

 

 

 

 

 

 

 

 

 

 

 

 

 

 

 

 

 

 

 

 

 

 

 

 

 

 

 

 

 

f 117

 

 

 

 

 

 

 

 

 

 

 

 

 

 

 

 

 

 

 

 

 

 

 

 

 

 

 

 

 

 

 

 

д

 

 

 

 

 

 

 

 

 

1

 

 

 

 

 

 

 

 

 

 

 

 

 

 

 

---.-

 

 

 

 

 

 

 

 

 

 

 

 

 

 

 

 

 

 

 

 

 

 

 

 

 

 

 

 

 

 

 

 

 

 

 

 

 

 

 

 

 

 

 

 

 

 

 

 

i1

 

 

 

 

 

 

 

 

 

 

 

 

 

 

 

 

 

 

 

Саю1ропускннк. .класс чистоты 3/В

 

 

 

 

 

 

 

 

 

 

 

 

 

 

 

 

 

д

 

 

 

 

 

 

 

 

 

 

 

 

 

 

 

 

 

 

 

 

 

 

 

 

-118

 

 

 

 

 

 

 

 

 

 

 

 

 

 

 

 

 

 

 

 

 

 

 

 

 

 

 

 

 

 

 

 

 

 

 

 

 

 

 

 

 

 

 

 

 

 

 

 

 

 

 

119

 

 

 

 

 

 

 

 

 

 

Технолог11ческий коридор, класс чистоты

3/В

 

 

 

 

 

 

 

 

 

 

 

д

 

 

 

 

 

 

 

 

 

J!

 

 

 

 

 

 

 

 

 

 

 

 

 

 

 

 

 

Т2о

 

 

 

 

 

 

 

 

 

 

 

 

 

 

 

 

 

 

 

 

 

 

 

 

 

 

 

 

 

 

 

 

 

 

 

 

 

 

 

 

 

 

 

 

 

 

 

 

 

 

 

 

 

 

 

 

 

 

 

 

 

 

 

--

 

 

 

 

Лаборатория. класс ч11стоты 3/13

 

 

 

 

 

 

 

 

 

 

 

 

 

 

 

 

 

 

в

 

 

 

 

 

 

 

 

 

 

 

 

 

 

 

 

 

 

 

 

 

 

 

 

 

 

 

 

 

 

 

Зон

 

 

 

 

 

 

 

 

 

 

 

 

 

 

 

Обо1начен11с

Спе11иФикации оборудоваи1tя

 

 

 

 

 

 

 

 

 

 

 

 

 

 

 

 

 

 

 

 

 

 

 

 

 

 

 

 

 

 

 

 

 

 

 

 

 

 

 

 

 

 

 

 

о

 

 

 

 

 

 

 

 

 

На1tменование

 

 

 

 

 

 

 

 

 

 

 

Кол.

 

 

 

 

 

 

 

 

 

 

 

 

 

 

 

 

 

 

 

 

 

 

 

 

 

 

 

 

 

 

 

 

 

 

 

 

 

 

 

 

 

 

 

 

 

 

1

 

 

 

\IСЧа·

 

 

 

 

 

 

 

 

 

 

 

 

 

 

 

 

 

 

 

 

 

 

 

 

 

 

 

 

 

 

 

 

 

 

 

 

 

 

 

 

 

 

 

 

 

 

 

 

 

 

 

 

 

 

 

 

 

 

 

 

 

 

 

 

 

 

 

 

 

 

 

 

п;;,-

 

 

 

 

 

 

 

 

 

 

 

 

 

 

 

 

 

 

 

-

 

П з /

 

 

 

 

 

 

 

 

 

 

 

 

 

 

 

 

 

 

 

 

 

 

 

 

 

 

i

 

 

 

 

 

 

 

 

Hl·IC

 

 

I!

 

 

 

 

 

 

 

 

 

 

 

 

 

 

 

 

 

 

 

 

 

 

 

 

 

 

 

 

ФI

 

 

 

 

Виброс11то

 

 

 

 

 

 

 

 

 

 

 

 

 

 

 

 

 

1

 

 

 

 

 

 

 

 

_j

 

 

 

 

 

 

 

 

 

 

 

 

 

 

 

 

 

 

 

 

 

 

 

 

 

 

 

 

 

 

 

 

 

 

 

 

 

 

 

 

 

 

 

 

 

 

 

 

 

 

 

 

 

 

 

 

 

 

 

 

 

 

 

 

 

 

 

 

 

 

 

 

 

 

 

--

 

 

 

 

 

 

 

 

r:r>.: .:)·,

 

 

 

 

 

 

 

 

 

 

 

 

 

 

 

 

 

 

 

 

 

 

 

 

-·-!

 

 

 

 

 

 

 

 

 

 

 

 

 

 

 

 

 

 

 

 

 

 

 

 

 

 

 

 

 

 

 

 

 

 

 

 

 

 

 

 

 

 

 

 

 

 

 

 

 

 

 

 

 

 

 

 

 

 

 

 

 

 

 

 

 

 

 

 

 

 

 

 

 

 

 

 

 

 

 

 

 

 

 

 

 

 

 

 

Весы п,1атформенные

 

 

 

 

 

 

 

 

 

 

 

 

 

 

 

 

 

 

 

 

 

 

i

 

1-

 

 

 

 

 

 

 

 

 

 

 

 

 

 

 

 

-

 

 

 

 

 

_

 

 

 

Кll 10

 

 

 

 

 

 

 

 

 

i

1

 

 

 

 

 

 

 

·-;

 

 

 

 

 

 

 

 

 

 

 

 

 

 

 

 

 

 

 

= (1112

 

 

Весы аналитические

 

 

 

 

 

!

 

 

 

 

 

 

 

 

 

 

 

il

u

 

 

 

 

 

 

 

 

 

 

 

 

 

 

 

 

 

 

 

 

 

 

 

 

 

 

 

 

 

 

1--t--·-··

'

 

 

1

 

 

 

 

 

 

 

 

 

 

 

 

 

 

 

-

 

 

 

 

 

.(

 

1

 

1'

 

1

 

 

 

 

Котел 111-tщевой электрнческ11й

 

 

 

 

 

 

 

i

1

 

1

 

 

·-1

 

 

 

 

 

 

 

 

 

 

 

 

 

 

 

 

 

 

 

 

 

 

 

 

 

 

 

 

 

 

 

 

 

 

 

 

 

 

 

 

 

 

 

 

 

 

 

 

 

 

 

 

 

 

 

 

-

 

 

 

 

 

5

 

 

 

 

С

16

 

 

 

 

Емкость для приrотов.1ен11я

увлажннтеля

'

 

 

 

 

 

--r-

 

 

-i

1

 

 

 

 

 

 

 

 

 

 

 

 

 

 

 

 

 

 

 

 

 

 

 

 

 

 

 

 

 

 

 

 

 

 

 

 

 

 

 

 

с ООО

 

 

 

 

 

 

 

 

 

 

 

 

 

 

 

 

 

 

 

 

 

 

 

 

1 м 15

 

 

 

Мерни" воды очищенно;1\1

 

 

 

 

 

1

 

 

1

-

 

 

 

 

 

 

 

 

1

 

 

 

 

 

 

 

 

 

 

 

 

 

 

 

 

 

 

---+- -;

 

 

 

 

 

 

 

 

 

 

 

 

 

 

 

 

 

 

 

 

 

 

 

 

 

 

 

 

 

 

 

 

 

 

 

 

 

 

 

 

 

 

 

 

 

 

 

 

 

 

 

 

 

 

 

 

 

 

 

 

 

 

 

 

 

 

 

 

 

 

 

 

 

 

 

 

 

 

 

 

 

 

 

 

 

 

 

 

 

 

 

 

 

 

 

 

 

 

 

 

 

 

 

 

 

 

 

 

 

 

 

 

 

 

 

 

 

 

l

 

 

 

 

 

(!:

 

 

 

7

 

 

1Ф17

 

 

 

Смеситель гранулятор

 

 

 

 

 

 

 

 

 

 

1

 

 

 

 

 

 

 

 

 

 

i

 

\ ;

 

 

 

 

 

 

 

 

 

 

 

 

 

 

 

 

 

 

 

8

 

 

 

 

 

l"Ф18

 

 

 

Калибратор

 

 

 

 

 

 

 

 

 

 

 

 

 

 

 

 

 

1

 

 

 

 

 

 

 

 

 

 

 

 

 

 

 

 

 

 

 

 

 

 

 

 

 

1

 

 

 

 

 

 

 

 

 

 

 

 

 

 

 

 

 

 

 

 

 

 

 

 

 

 

 

 

 

 

 

 

 

 

 

..---

 

 

 

 

 

 

 

 

 

 

 

 

 

 

 

 

 

 

 

 

 

 

 

 

 

 

 

 

 

 

 

 

 

 

 

 

 

 

 

 

 

 

 

 

 

 

 

 

 

 

 

 

 

 

 

 

 

 

 

 

 

 

 

 

 

 

 

 

 

 

 

 

 

 

 

 

 

 

 

 

 

 

 

 

 

 

 

 

 

сш 19

 

 

Сушилка псевдоожиженногu слоя

 

 

 

 

 

 

 

 

 

 

1

 

 

 

 

 

 

 

--;!

 

 

 

 

 

 

 

 

 

 

 

 

 

 

 

 

 

 

 

-

10

 

 

ГФ20

 

 

 

Калибратор

 

 

 

 

 

 

 

 

 

 

 

 

 

 

 

 

1

 

 

 

 

 

 

 

 

с]

 

 

 

 

 

 

 

 

 

 

 

 

 

 

 

 

 

 

 

 

 

 

 

 

 

 

 

 

 

 

 

 

 

 

 

 

 

 

 

 

 

 

 

 

 

 

---

 

 

 

 

 

 

 

 

 

 

 

 

 

 

'

 

 

 

 

 

 

 

 

 

 

 

11

 

 

IФ22

 

 

 

Устройство перегрузочное

 

 

 

 

 

1

 

 

31

 

 

 

 

i

 

 

 

 

1

 

 

 

 

 

 

 

 

 

 

 

 

 

 

 

 

 

 

 

 

 

 

 

 

 

 

12

 

 

1·Ф1з·,

 

 

Смес т-ель

 

 

 

 

 

 

 

 

 

 

 

 

 

 

 

 

 

 

 

 

 

 

 

1

 

 

 

 

 

 

 

 

 

 

 

 

 

 

 

 

 

 

 

 

 

 

 

 

 

 

 

 

 

 

 

 

 

 

 

 

 

 

 

 

 

 

 

 

 

 

 

 

 

 

 

 

 

 

 

 

 

 

 

 

 

 

 

 

 

 

 

 

 

 

 

 

 

 

 

 

 

 

 

 

 

13

 

 

ГФ 14

 

 

 

Таблето•1ный пресс

 

 

 

 

 

 

 

 

 

 

 

 

 

 

 

 

 

 

 

 

 

1

 

 

 

 

 

 

 

 

 

 

 

 

 

 

 

 

 

 

 

 

 

 

 

 

 

 

 

 

 

 

 

 

 

 

 

 

 

 

 

 

 

 

 

1

 

 

 

 

 

 

 

 

 

 

 

 

 

 

 

 

 

 

 

 

 

 

 

 

 

 

 

 

 

 

 

:

 

 

 

 

 

 

 

 

 

 

 

 

 

 

 

 

 

 

 

 

 

 

 

 

 

 

 

 

 

 

 

 

 

 

 

 

 

 

 

 

 

 

 

 

 

 

 

 

 

 

 

 

 

-14

 

 

fФ26

 

 

Упаконочная линия

 

 

 

 

 

 

 

 

 

 

 

1

 

 

 

1

 

 

 

 

 

 

 

 

 

 

 

 

 

 

 

 

в

 

 

 

 

 

 

 

 

 

 

 

 

 

 

 

 

 

 

 

 

 

 

 

 

 

 

 

 

 

 

 

 

 

 

 

 

 

 

 

 

 

 

 

 

 

 

 

 

 

 

 

 

 

 

 

 

 

 

 

 

 

 

 

 

 

 

 

 

 

 

 

 

 

 

 

 

 

 

 

 

Ф2

7

 

 

 

 

 

 

 

 

 

 

 

 

 

 

 

 

 

 

 

 

 

 

 

 

 

 

 

 

 

 

 

 

 

 

 

 

 

 

 

 

 

 

 

 

 

 

 

 

 

 

-

 

 

 

 

 

Сго_л упаковочный

 

 

 

 

 

 

 

 

 

 

1

 

 

 

 

 

 

 

 

 

 

 

 

 

 

 

 

 

 

 

 

 

 

 

 

 

 

 

 

 

 

 

 

 

 

 

 

 

 

 

 

 

 

 

 

 

 

 

 

 

 

 

 

 

 

 

 

 

 

 

 

 

 

 

 

 

 

 

 

 

 

 

 

 

 

 

 

 

 

 

 

 

 

 

 

 

 

 

 

 

 

 

 

 

 

 

 

 

:

 

 

 

 

 

 

 

 

 

 

 

 

 

 

 

 

 

 

i

 

 

 

 

 

 

 

 

 

 

 

 

 

 

 

 

 

 

 

 

 

 

 

166

 

 

 

 

 

 

 

 

 

 

 

 

 

 

 

 

 

 

 

 

 

 

 

167

 

 

 

 

 

 

 

 

 

 

 

 

 

 

 

 

 

 

 

 

 

 

 

 

 

 

 

 

 

 

 

 

 

 

 

 

 

 

 

 

 

 

 

 

 

 

 

 

 

 

 

 

 

 

 

 

 

 

 

 

 

 

 

 

 

 

 

 

 

 

 

 

 

 

 

 

 

 

 

 

 

 

 

 

 

 

 

 

 

 

 

 

 

 

 

 

 

 

 

 

 

 

 

 

 

 

 

 

 

 

 

 

 

 

 

 

 

 

 

 

 

 

 

 

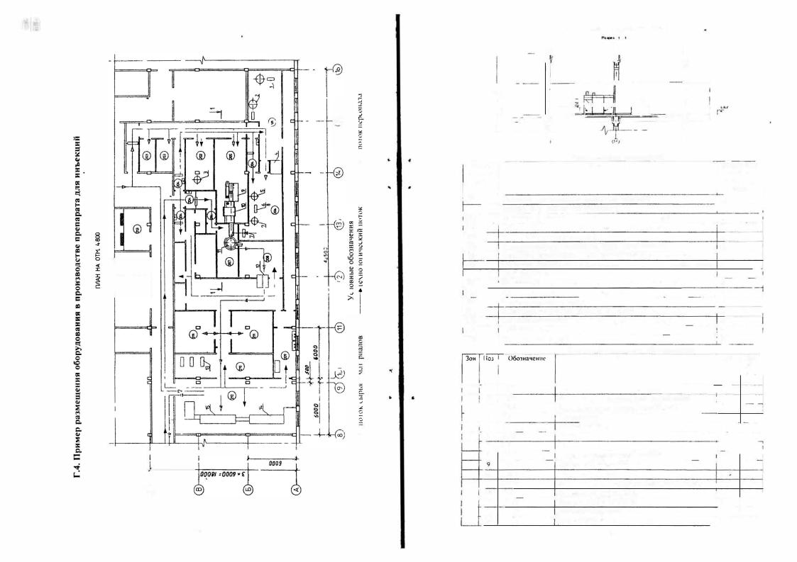
Продолжение приложения Г 4

 

 

 

 

 

 

 

 

 

 

 

 

 

 

 

 

 

 

 

 

 

 

 

 

 

 

 

 

 

 

 

 

 

 

'

 

 

 

 

 

 

 

 

 

 

 

 

 

 

--· r::J. =J:

 

 

 

 

 

 

 

 

 

 

 

 

 

 

 

 

 

 

 

 

 

 

 

 

 

 

 

} - -- i

 

 

 

 

 

 

 

 

 

 

 

 

 

 

 

 

 

 

 

 

 

 

 

 

 

 

 

 

 

 

1

 

 

 

 

 

 

 

 

 

 

11[

 

 

 

 

 

11

 

 

 

 

 

 

 

11

 

 

 

 

 

 

 

 

 

 

 

 

 

 

 

 

 

 

 

 

 

 

(\О)

 

 

 

 

 

 

 

 

 

 

 

 

 

 

 

 

 

 

 

 

·':

 

 

-- -¾-u"== ==- --

-· -.aj

 

 

 

 

 

 

 

 

 

 

 

 

 

 

 

 

 

 

 

 

 

 

 

 

 

 

 

 

 

 

 

 

 

 

 

 

 

 

 

 

 

 

 

 

 

 

 

 

 

 

 

 

 

 

 

 

 

 

 

 

 

 

 

 

 

 

 

 

 

 

 

 

 

 

 

 

 

 

 

 

 

 

 

 

Нощр

 

 

1

 

 

 

 

 

 

 

 

 

 

 

 

 

На11,1енования

 

 

 

 

 

 

11

 

 

 

 

 

 

 

 

 

 

 

 

 

о 1 1 я п

 

 

 

 

 

 

 

 

 

 

 

 

 

 

 

 

 

 

 

 

 

 

 

 

 

 

 

 

 

 

 

 

 

 

 

 

 

 

 

 

 

 

 

 

 

 

 

 

 

 

 

 

 

 

 

 

 

 

 

 

 

 

 

 

 

 

 

 

 

 

 

 

 

 

 

 

 

 

 

 

 

 

 

 

 

r

 

 

 

 

 

 

 

 

 

 

 

 

 

 

 

 

 

 

 

 

 

 

Эhс11;111ка1111я помеще11ий

 

 

 

 

 

 

 

 

 

 

 

 

 

 

 

nожаро-

 

о

 

 

 

 

 

 

-

 

 

 

 

 

 

 

 

 

 

 

 

 

 

 

 

 

 

 

 

 

 

 

 

 

 

 

 

 

 

 

 

 

 

1

 

 

 

 

 

 

 

 

 

 

 

 

 

 

 

 

 

 

 

 

 

 

 

 

 

 

 

 

 

 

 

 

 

 

 

 

 

 

 

 

 

 

 

 

 

 

 

 

 

 

 

 

 

 

 

 

 

 

 

 

 

 

 

 

 

 

 

 

 

 

 

 

 

 

 

 

 

 

 

 

 

 

 

 

 

 

 

 

 

 

 

 

 

 

 

 

 

 

 

 

 

 

 

 

 

 

1

 

к;гег

 

р

 

 

 

1

 

 

 

 

 

 

 

 

 

 

 

 

 

 

 

 

 

 

 

 

 

 

 

 

 

 

 

 

 

 

 

 

 

 

 

 

 

 

 

 

 

 

 

 

 

 

 

 

о ,рывооnас

 

 

 

 

 

 

; : '"'"'" "°''"'""' ю,а "'"'" re'" """"''!"

 

 

 

 

 

 

 

 

 

 

 

 

 

 

 

 

 

 

 

HOCIII

 

 

 

1

 

 

 

 

 

 

 

 

 

 

 

 

 

 

 

 

 

..! _/ -=

_=--

1

 

 

 

 

202

 

 

 

 

·

 

1

 

 

)1 1елен

е пр111отовл ения oeJ

растворов

класс чистоты З

 

 

 

 

 

 

 

 

 

 

 

:: ---------

 

 

 

 

1--

 

 

Tt:.pltЛII) Те\11

 

одежды KJllC..C ЧIIСТОТЫ З

 

 

 

 

 

 

 

 

 

 

 

 

 

 

 

 

 

 

 

 

 

 

 

 

 

 

 

 

 

 

 

 

 

 

203

 

 

 

 

 

 

 

 

 

Отделение храненияпоро,..н11х a,inyл

класс чистоты 3

 

 

 

 

 

 

 

 

 

 

 

 

 

Д

 

 

 

 

 

 

 

 

 

 

 

 

 

 

 

,-- -- ------------------------

-:-

-------

 

 

 

c

 

 

 

 

 

 

 

 

 

 

 

 

 

 

 

 

 

 

 

 

 

 

 

 

 

<

 

 

 

 

и

 

 

 

 

 

 

 

 

 

 

 

 

 

 

 

 

 

 

 

 

 

 

 

 

t-Д

 

 

 

 

 

 

 

 

 

 

 

 

 

 

 

 

 

 

 

 

 

 

 

 

 

 

 

 

 

 

 

 

 

 

 

 

 

 

 

 

 

 

 

 

 

 

 

 

 

 

 

 

 

 

 

 

 

I

 

 

 

 

 

 

 

 

 

 

 

 

 

 

 

 

 

 

 

 

 

 

 

 

 

 

 

 

(анnроnускннк класс чистоты 2

 

 

 

 

 

 

 

 

 

 

 

 

 

 

 

 

 

 

 

 

Д

 

 

 

 

 

 

 

 

 

 

 

 

 

 

 

 

 

 

 

 

 

 

 

 

 

 

 

 

 

 

 

 

 

 

 

 

 

 

 

 

 

 

 

 

 

 

 

 

 

 

 

 

 

 

 

 

 

 

 

 

,___ --+Отцеление мойки н стерилизации ампул, класс чистоты З

 

 

 

 

 

 

 

 

 

 

 

 

 

 

 

 

 

 

 

 

 

 

 

 

 

 

 

 

 

 

 

 

 

 

Отделение приготовления и фильтрации раствора, класс чистоты 2

 

 

 

 

 

 

Д

 

 

 

 

 

 

 

 

 

 

 

 

 

 

 

206

 

 

 

 

 

 

 

 

 

 

 

 

 

 

 

Д

 

 

 

 

 

 

 

 

 

 

 

 

 

 

 

 

 

 

 

 

 

 

 

 

 

 

--------------------------------,----с--

 

 

 

 

 

 

 

 

н

 

207

 

 

 

 

 

 

 

 

 

Отделение стерилиэующе11 фильтрации наполнения и запаliки а>1nул

 

 

 

 

Г

 

 

 

 

 

 

 

 

 

 

 

 

,----

 

 

 

 

 

 

 

 

•ласе чистоты 1

 

 

 

-

 

 

 

 

 

 

 

 

 

 

 

 

 

 

 

 

 

 

 

 

 

 

 

 

 

 

 

 

 

 

-

 

 

 

 

 

--t------------- ----------c-- - - : ---:

 

-1

 

2,0!_

 

 

-

-+От ел енне nponepl\и ампv r на гер,1етнчность класс чистоты 1

 

 

 

 

 

 

 

 

Д

 

 

 

 

 

 

 

 

 

 

 

 

 

 

 

 

 

 

 

 

 

 

1е1еиие MOIIKИ

кассет

hl _с_ч_1

 

 

_____

 

__

 

 

 

 

 

 

 

 

 

 

 

 

 

 

 

 

 

 

 

 

 

 

 

209

 

 

 

 

 

 

 

't>-1.1еление просмотра амn,,,

 

_ _

 

 

 

_

_______.(.../\__ -

- J

 

 

 

 

210

 

 

 

 

 

 

 

 

 

 

 

 

 

 

 

 

 

 

 

 

 

-

 

 

 

 

, Д

 

 

 

 

 

 

 

 

 

 

1

 

 

 

 

 

 

 

 

__J

 

 

 

 

 

 

 

 

 

 

 

 

 

 

 

 

 

 

 

 

 

 

 

 

 

 

 

 

 

 

 

 

 

 

 

 

 

 

 

 

 

 

 

 

 

 

 

 

 

 

211-

 

 

 

 

 

 

 

 

()целение hОнтрольного хранен11япродукции, класс чистоты 3

 

 

 

 

 

! Д

 

 

 

 

 

 

 

 

 

 

 

 

 

 

 

 

 

 

 

 

 

 

 

 

 

 

 

 

 

 

 

 

 

 

 

 

 

 

 

 

 

 

 

 

 

 

--+

Отделение маркировки и упакОВhИ ампул, кл асс чистоты 4

 

 

 

 

 

 

 

 

 

 

 

В

 

 

 

 

 

 

 

 

 

 

 

 

 

 

 

 

 

 

 

 

 

 

 

 

 

 

 

 

 

 

 

 

 

 

 

 

 

 

 

 

 

 

 

-2 1 J

Отделение nо; готовки воз на

 

 

 

 

 

 

 

 

 

 

 

 

 

 

 

 

 

 

 

 

Д

 

 

 

 

 

 

 

 

 

 

 

 

 

 

 

---t----,-----------------------------------1

 

 

 

 

2!,::_

 

 

Uлюз масс <111стоты 1

 

 

 

 

 

 

 

 

 

 

 

 

 

 

 

 

 

 

 

 

 

 

 

 

 

 

 

 

 

 

 

 

 

 

 

 

 

 

 

·

 

 

_

 

 

 

 

 

 

 

 

----------------------------1--------1

 

 

 

 

 

 

 

 

 

 

 

 

 

 

 

 

 

 

 

 

 

 

 

 

 

 

 

 

 

Наименованпе

 

 

 

 

 

 

 

 

 

 

 

 

 

 

J\.01

1 Пр11

 

 

 

 

 

 

 

 

 

 

 

 

 

 

 

 

 

 

 

 

 

 

 

 

 

 

 

Перечеи . основного обоюдован11я

 

 

 

 

 

 

!\

 

 

 

 

 

 

 

 

 

 

1

 

 

 

=

,.

 

 

 

 

 

 

 

 

 

 

 

 

 

 

 

 

 

 

 

 

 

 

 

 

 

_

 

 

 

 

 

 

 

 

 

 

 

 

 

1

 

 

 

 

 

 

 

 

 

 

 

е

 

 

 

 

 

 

 

 

 

 

 

 

 

 

 

 

 

 

 

 

 

 

 

 

 

 

 

 

 

 

 

 

 

 

 

 

 

 

 

 

 

 

 

 

 

 

 

 

 

 

 

 

 

 

 

 

1

 

 

 

 

 

 

 

 

 

 

 

 

 

 

 

 

 

 

 

 

 

 

 

 

 

 

 

 

 

 

 

 

 

 

 

 

 

 

 

 

 

1

 

 

 

 

 

 

 

1 ,\,l 'Ы

 

 

 

 

 

 

 

 

 

 

 

 

 

 

 

 

 

--

 

 

-

 

 

_

 

 

 

 

_ _

 

 

--

 

---

 

1

-

 

 

 

 

 

 

 

 

 

1

 

 

 

 

с-

т+ -Ф-1

 

 

 

--

>-У-тас-_он_кв_дла_я

об_сесолив_ан ия_аодь-,

 

 

-

 

 

 

 

 

 

 

 

 

 

 

 

Hlll

 

 

 

 

 

 

 

 

 

 

 

 

 

 

 

 

 

 

 

 

 

 

 

 

 

 

 

 

 

 

 

 

 

 

 

 

 

 

 

 

 

 

 

 

 

 

 

 

 

 

 

 

 

 

 

 

 

 

 

 

 

 

 

 

 

-1---

1

 

 

 

 

+-

 

 

-

 

 

 

 

 

- _1

 

 

 

-

 

 

=3==========:=Р=еа=к=т=о=р=дл==•=п=р=н=го=т=о=в=•=•=н=11•==д=ез=р=а=ст=•=о=р=о=•===== --· .

 

 

 

 

 

 

 

--

 

 

i]

 

 

 

 

 

 

 

 

 

 

 

Установ"'а для ПОЛ)'Чения воды для инъекu1-1й

 

 

 

 

 

 

1 -- -

 

 

 

 

 

 

 

 

hтi-2

 

 

 

 

 

 

 

 

 

 

 

 

 

 

 

 

 

 

 

--+

 

 

 

 

 

 

 

 

 

 

 

 

 

 

 

 

 

 

 

 

 

 

 

 

 

 

 

 

 

 

 

 

 

 

 

 

 

 

 

 

 

 

 

 

 

 

 

 

 

 

 

 

 

 

 

 

 

 

 

1

 

 

.,, ч

 

 

 

 

 

 

 

 

Стернл 11атор

 

 

 

 

_

 

 

 

 

 

 

 

 

 

 

 

 

 

 

 

1

 

 

 

 

 

 

 

--

 

:

 

 

 

 

 

 

 

 

 

 

 

 

 

 

 

 

 

 

 

 

 

 

 

 

 

 

 

 

 

 

 

 

 

 

 

 

 

 

 

 

 

 

 

 

 

 

 

 

 

 

,- 1_' -

 

 

---1-,-Р,..

еа,о_р=.1,;=о=•=n=р=ио=г-т=о=•=.1=-еи=янра-с=т=•=о=р-а---_-_--_-_·-:_ ---- 1

- - г

 

 

 

 

 

t

-

 

6--1 Ф 6

 

--

 

 

.

 

 

 

 

_

 

 

_ _

 

 

 

_

_ _

 

_

 

 

 

 

 

 

 

 

 

 

 

 

 

 

 

 

 

 

 

 

 

 

 

 

 

 

 

 

 

 

 

 

 

 

 

 

 

 

 

 

 

 

 

 

 

 

 

1

 

 

 

 

 

 

 

 

 

 

 

 

 

 

 

Насос_

 

 

 

 

 

 

 

 

 

 

 

 

 

 

- --+---

 

 

 

 

1

 

 

 

 

2._ -:_1--с-----+ _б_р

_,_"__

__

_--,----------- 1---L

 

 

 

 

 

 

 

-

 

--8

 

 

 

Ф 7 1

 

 

 

 

 

 

С о н

_

 

 

 

 

 

 

 

 

 

 

 

 

 

 

 

 

 

 

 

 

 

Фильтр предварите,ьной фильтрации

 

 

 

 

---+---1

 

 

 

 

 

 

 

 

 

 

 

 

'

 

 

 

 

 

+

 

 

 

 

 

 

 

 

 

 

 

 

 

 

+

- -

 

 

 

 

 

 

 

 

 

 

 

 

 

 

IФII

 

 

 

 

 

 

Аатома1 для шприцевой мойки ампул

 

 

 

 

 

 

 

 

 

 

 

1

 

 

 

 

1

 

 

 

 

 

 

 

 

 

 

 

 

 

 

 

 

 

 

 

---------+---'----'------'-------'----'------

 

 

 

 

 

 

 

 

 

 

 

 

 

 

 

 

 

 

 

 

 

 

 

 

--

10

 

 

 

 

 

(Ш 12

 

 

 

 

 

 

Стеришваuионныii тоннель

 

 

 

 

 

 

 

 

 

 

 

 

 

 

 

1

 

 

 

 

 

 

 

 

 

 

 

 

 

 

 

 

 

 

 

 

 

 

 

 

 

 

 

 

 

 

 

 

 

 

 

 

 

 

 

 

 

 

 

 

 

 

 

 

 

 

 

 

 

 

 

 

 

 

11

 

 

 

 

 

1 Ф 13

 

 

 

 

 

 

Автома r шпр"uееьго наполнения н запайkи а,1п, л

 

 

 

 

 

 

 

 

 

 

 

 

 

 

 

 

 

 

 

 

G

 

f ---

12 -+---Р-14

-

 

-

 

 

t--Авто_клав дл_я с_тер '-" зн аци н _____

 

 

 

 

 

,1

 

1____.____

 

 

 

 

 

 

--

 

 

 

 

 

 

 

 

 

 

-

 

-

 

 

 

-

 

 

_

_

 

 

 

 

_

_

 

---

 

-

 

 

 

 

 

 

 

 

 

 

 

 

 

 

 

 

 

 

 

 

 

 

 

13

 

 

 

 

 

1 Ф 16

----

 

 

 

 

 

 

 

 

 

 

 

 

 

1-

 

 

!1 --

 

 

 

 

 

 

 

 

 

 

 

 

 

 

 

 

-

 

Стол для_просмотра амnvл _

 

 

 

 

 

 

 

 

 

 

 

 

 

 

 

 

 

 

 

 

 

 

 

 

 

14

 

 

 

 

 

I

Ф 17

-

 

 

 

 

 

1-::С,---т-ол_Д,_1уяnа-в-,о,-,.-.гру_пn_воую_т ар _,

 

 

 

 

--

 

 

--

 

 

 

 

 

 

 

 

 

 

 

 

 

 

 

 

 

 

с--:с-+--:--с-:--::

 

 

 

 

 

 

Автоматичесh.ая лнння для vnаковки амП\Л

 

 

 

 

- 1

 

 

--,----

168

 

 

 

 

15

 

 

 

 

 

1 Ф 18

 

 

 

 

 

 

 

 

 

 

 

 

 

 

 

 

 

 

 

 

 

 

 

 

 

 

 

 

 

 

 

 

 

 

 

 

 

 

 

169