Материал: самара

Внимание! Если размещение файла нарушает Ваши авторские права, то обязательно сообщите нам

Инв. № подл. Подп. и дата Взам. инв. № Инв. № дубл. Подп. и дата Справ. № Перв. примен.

ТУМ-2.28.05.100СБ

22к6

 

 

 

22

 

 

 

 

 

60

1

 

 

 

 

17

 

7

 

 

 

 

 

78

Н7

 

 

 

 

 

 

19

 

13

 

Js5

 

 

 

 

 

 

2

 

10

 

 

 

 

 

 

 

 

 

4

 

 

 

 

 

 

 

 

 

30к6

 

 

 

 

14

 

 

 

 

 

3

 

179,66

 

 

 

20

,2

 

 

 

 

 

317

 

 

 

 

 

 

 

 

 

62k6

 

 

 

 

23

 

 

 

 

 

 

15

 

 

 

 

18

 

 

 

 

 

 

 

12

140

35 H7

 

 

3

 

60

 

 

 

 

k6

 

 

 

52к6

 

03к6

 

 

26H7

62 H7

 

 

 

k6

 

 

 

 

 

 

 

16

 

 

 

 

21

24

9

 

 

 

 

8

 

5

 

 

 

 

 

 

 

 

 

11

 

 

 

 

 

 

 

6

 

 

 

 

 

 

 

 

182

 

 

 

 

 

295

 

 

 

 

 

 

 

 

 

ТУМ-2.28.05.100СБ

 

 

 

 

 

 

 

 

 

 

 

 

 

 

 

 

 

 

 

 

 

 

 

 

 

 

 

Редуктор зубчатый

Лит.

Масса

Масштаб

Изм.

Лист

№ докум.

Подп.

Дата

 

 

 

 

 

1:1

Разраб.

Санчаров Е.К.

 

 

 

 

 

 

 

 

 

конический

 

 

 

 

 

Пров.

Кокорев И.А.

 

 

 

 

 

 

 

 

Т.контр.

 

 

 

 

Лист

1

Лист

ов 4

 

 

 

 

 

 

 

 

 

СамГТУ

Н.контр.

 

 

 

 

 

 

 

 

 

 

 

 

 

 

3-НТ-1

Утв.

 

 

 

 

 

 

 

 

 

 

 

 

Копировал

 

 

Формат A1

Р и с. П16. Пример сборочного чертежа одноступенчатого конического редуктора типа КБ (главный вид с разрезом по осям валов)

235

ТУМ-2.28.05.200СБ

242

 

31

 

 

 

 

 

 

405

35

 

 

 

 

 

36

 

 

 

 

 

 

37

 

 

 

 

 

36

 

 

 

 

 

 

30

32

 

 

 

 

 

33

 

 

 

 

 

 

 

 

 

 

 

38

34

 

 

 

 

 

 

 

 

 

 

примен.

 

 

 

 

 

 

Перв.

 

 

 

 

 

 

 

27

 

 

 

 

 

 

29

 

 

 

 

Справ.

 

 

 

 

 

 

 

 

 

 

 

 

136

28

 

 

 

 

дата

 

 

 

 

 

 

Подп. и

 

 

 

 

 

 

дубл.

 

 

 

 

 

 

Инв. №

 

 

 

 

 

 

инв. №

 

 

 

 

 

 

Взам.

 

 

 

 

 

 

ата

 

 

ТУМ-2.28.05.200СБ

 

и д

 

 

 

Подп.

Изм. Лист

№ докум. Подп. Дата Редуктор зубчатый

Лит.

Масса

Масштаб

 

 

 

1:1

подл.

Разраб.

Санчаров Е.К.

конический

Лист

 

Т.контр.

Кокорев И.А.

2 Листов 4

 

Пров.

 

 

 

 

Н.контр.

 

 

 

СамГТУ

Инв.

 

 

 

 

 

 

3-НТ-1

Утв.

 

 

 

 

 

 

Копировал

Формат

A1

Р и с. П17. Пример сборочного чертежа одноступенчатого конического редуктора типа КБ (вид сбоку)

236

 

 

 

 

 

 

 

 

7.001.200.СБ

 

 

 

 

 

 

 

 

2.00

 

 

 

 

 

 

 

 

ТУМ-

 

 

 

9

 

 

 

 

 

 

 

 

17

 

 

 

 

 

37

 

 

50

 

 

 

 

 

 

51H7/k6

85H7

45k6

 

 

 

 

 

3

 

 

38k6

439

 

 

 

 

 

 

 

 

 

 

 

15

 

 

36

 

 

 

 

 

 

 

 

 

 

 

 

 

11

 

 

 

 

 

 

 

 

8

 

 

19

 

 

 

 

 

35

 

 

28

 

 

 

 

 

 

 

 

 

 

 

 

 

 

 

 

4

 

 

 

 

 

13

 

 

 

 

 

 

 

 

14

 

 

 

 

 

 

 

 

ен.

 

 

 

 

 

 

 

 

Перв. прим

202

 

 

 

 

 

 

 

 

 

295

 

 

 

 

 

 

Справ. №

 

 

 

 

 

 

 

 

дата

 

 

 

 

 

 

 

 

одп. и

 

 

 

 

 

 

 

 

П

 

 

 

 

 

 

 

 

дубл.

 

 

 

 

 

 

 

 

Инв. №

 

 

 

 

 

 

 

 

нв. №

 

 

 

 

 

 

 

 

зам. и

 

 

 

 

 

 

 

 

В

 

 

 

 

 

 

 

 

и дата

 

 

 

 

ТУМ-2.007.001.200.СБ

 

Подп.

 

 

Изм. Лист № докум. Подп. Дата

Редуктор

Лит.

Масса Масштаб

 

 

 

 

1:1

 

 

 

Разраб. Миронов

 

 

 

подл.

 

 

 

червячный

 

 

 

 

Пров. Кокорев

 

 

 

 

 

 

Т.контр.

 

Лист 2

Листов

4

Инв. №

 

 

Н.контр.

 

 

СамГТУ III-НТ-8

 

 

Утв. Кокорев

 

 

 

 

 

 

 

 

 

 

 

 

 

 

 

Копировал

Формат A1

 

Р и с. П18. Пример сборочного чертежа червячного редуктора

 

 

 

 

 

(вид сбоку)

 

 

 

 

 

237

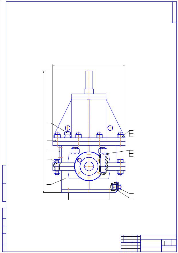
Р и с. П19. Пример сборочного чертежа конического редуктора (главный вид)

238

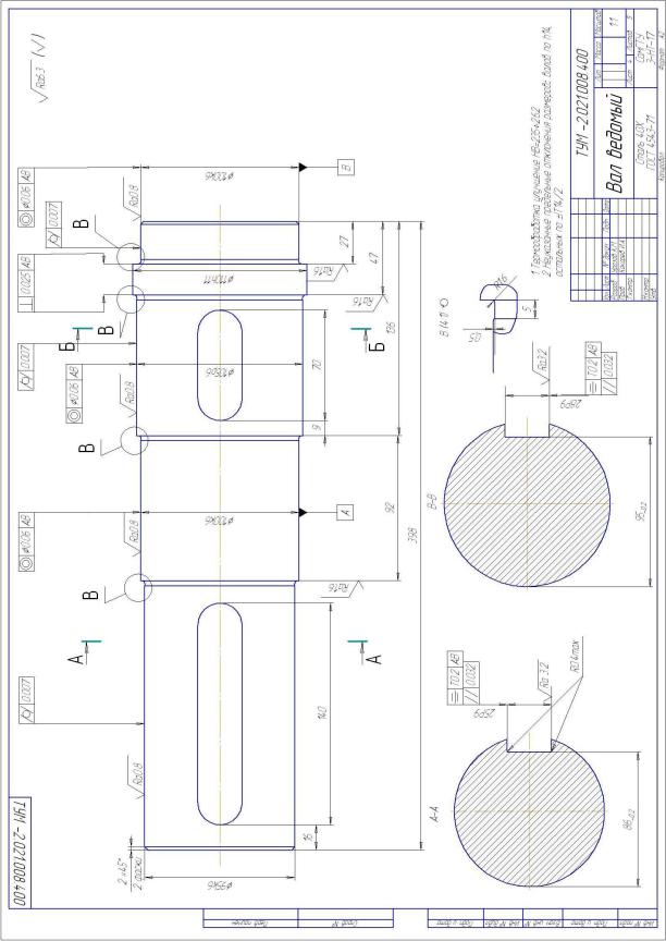
Р и с. П20. Пример рабочего чертежа вала

239