Материал: Реакторы процесса получения элементарной серы

Внимание! Если размещение файла нарушает Ваши авторские права, то обязательно сообщите нам

Рисунок 2 - Зависимость степени конверсии H2S в серу от температуры при давлениях 0,05 МПа (1), 0,1 МПа (2), 0,2 МПа (3).

Несмотря на то, что в реакции участвует большая часть сероводорода, в результате будет образовываться диоксид серы, а не сера. Поэтому использование стехиометрического избытка кислорода не приведет к увеличению степени конверсии. Однако конверсию можно увеличить, если сероводород имеет высокую концентрацию, а содержание азота в воздухе, поступающего в печь, будет снижаться или вовсе полностью удаляться.

Также необходимо учитывать, что высокое содержание влаги в сырьевом потоке оказывает плохое влияние на степень конверсии сероводорода. Присутствие паров воды оказывает значительное влияние на термодинамику и кинетику процесса. Они смещают равновесие обратимой реакции Клауса, а также вызывают ее торможение вследствие конкурентной адсорбции молекул H2O на активных центрах катализатора. Поэтому для решения практических задач тестирования катализаторов в реакции Клауса необходимо проводить в присутствии водяных паров.

Сера, в свою очередь, обладая относительно меньшей летучестью, чем любой другой компонент, может удаляться путем конденсации, что существенным образом отразилось на общих показателях установки.

Данная особенность позволяет значительно снизить парциальное давление серы, так что если оставшиеся газы вновь пропустить через катализатор, они снова будут взаимодействовать до получения дополнительного количества серы. Более того, поскольку содержание серы в технологическом газе снижается после каждой стадии, последующая каталитическая стадия может протекать при сравнительно более низких температурах без риска отложения серы в катализаторе. Эти принципы положены в основу промышленного проектирования установок Клауса.

6. Катализаторы процесса Клауса

Эффективность работы установок Клауса сильно зависит от используемого катализатора, т.е. от его активности, устойчивости к сульфатации и способности ускорять реакции гидролиза COS и CS2. Важным показателем является механическая прочность, так как наличие пыли увеличивает гидравлическое сопротивление реактора и снижает производительность установки.

Первоначально на установках восстановления серы из сероводорода широкое применение нашли природные бокситы, состоящие в основном из оксидов алюминия и железа. Они в своем составе содержат кремнезем SiO2, оксиды титана TiO2, кальция CaO, магния MgO, марганца MnO, фосфора P2O5 и др. Соответственно, метод Клауса заключался в сжигании сероводорода в слое данного катализатора до сернистого ангидрида и серы. Данный катализатор использовали в основном из - за его дешевизны, доступности, высокоактивности, а также из-за незначительных объемов перерабатываемого сероводорода. В том случае нагрузка на катализатор составляла 3 - 4 нм3 сероводорода на 1 м3 катализатора в час. Но данный тип катализаторов имел и существенные недостатки: быстрая дезактивация, вызываемая сульфатацией поверхности, непостоянство состава и свойств, недостаточно развитая поверхность, покрытие углеродистыми отложениями и гидратацией.

Степень конверсии сероводорода в серу при использовании данного катализатора составляла 80-90%, остальная часть сернистых соединений в виде диоксида серы поступала в атмосферу. Это оказывало негативное воздействие на экологическую обстановку. В дальнейшем процесс имел развитие в том плане, что процесс стал реализовываться путем двух отдельных стадий - термической и каталитической. Как говорилось ранее, в термической ступени на современных установках степень конверсии сероводорода составляет порядка 60-70%, а оставшаяся смесь сернистых соединений направляется а каталитическую ступень, где суммарно с термической степень конверсии достигает 94-98%. Поэтому качественный и эффективный катализатор является не только гарантом высокого выхода серы, но и основным фактором экологической безопасности процессов переработки сероводорода.

В более современное время ведущими специалистами в области катализа развитых промышленных стран, в том числе отечественными специалистами, были разработаны и успешно внедрены алюмооксидные и титанооксидные катализаторы.

Оксид алюминия - один из наиболее широко используемых адсорбентов, катализаторов и носителей для них. Термином «оксид алюминия» часто обозначают различные вещества, отличающиеся по своему составу от химического соединения Al2O3. В веществах в зависимости от условий приготовления могут содержаться вода, оксиды железа, щелочных и щелочно-земельных металлов, а также сульфат ионы.

Катализаторы Клауса выпускают на катализаторных фабриках из гидроксида алюминия. Типичные представители катализаторов этого ряда - гиббсит, байерит, нордстрандит. Оксид алюминия и ее гидратированные формы нерастворимы в воде, обладают амфотерными свойствами. Кроме полных гидроксидов известны также AlOOH в виде двух ромбических модификаций: диаспор с плотностью 3,3-3,5 г/см3, устойчив до 623К, в интервале температур 623 - 700К переходит в α - Al2O3 ; бемит, плотность которого 3,01 г/см3, при 673К переходит в γ - Al2O3, а при 873К переходит в α - Al2O3. Он практически не реагирует с кислотами и щелочами. Его удается перевести в растворимое состояние только с помощью сплавления со щелочами.

На практике катализатор представляет собой шарик или экструдат диаметром 4-6 мм, содержит более 94% оксида алюминия, удельная поверхность 260-345 м2/г. В состав катализатора обычно входят такие компоненты (%, масс.), как Na2O - 0,04; SiO2 - 0,02; Fe2O3 - 0,04; TiO2 - 0,01.

В одном из источников приведена информация об успешных разработках катализаторов для процессов Клауса и Сульфрен отечественными производителями, которые не уступают по своим физико - техническим характеристикам импортным. Возникла необходимость в проведении исследований в промышленных масштабах.

Изначально на газоперерабатывающих заводах применялись катализаторы процесса Сульфрен CR 4 - 6 французской фирмы Phone Pouleng, А 2/5 фирмы Procatalyse, катализаторы для установок Клауса марок CR, DR, AM фирмы Axere, а также катализаторы других фирм, такие, как S - 100, DD - 431, DD - 831. [19, c. 81; 20, c. 70]. Данные катализаторы характеризуются хорошими эксплуатационными свойствами, но обладают и существенными недостатками: высокая стоимость, неоперативность поставок, быстрая дезактивация. Эти катализаторы различаются содержанием примесей Na, Fe, Si, имеют примерно одинаковую удельную поверхность (250 - 280 м3/г), насыпную плотность (800 кг/ м3), объем пор (4,5 · 104 м3/кг), и прочность на раздавливание ((4,5 - 6) · 103 Н · м/кг).

Первому катализатору установки Клауса, разработанному отечественными учеными, присвоено обозначение ИКА - 27 - 75. Производство данного катализатора освоено на ЗАО «Щелковский катализаторный завод» в 1996 г. В 2000 г. ООО «ВНИИгаз» при поддержке ПАО «Газпром» разработал катализатор процесса Сульфрен CGS - 1.

В таблице 1.2 приведены сравнительные физико - технические характеристики отечественного катализатора ИКА - 27 - 75 и французского CR.

Проанализировав таблицу 1.2, можно прийти к выводу, что отечественный катализатор по основным характеристикам не уступает импортному.

Таблица 1. - Физико-технические характеристики катализаторов ИКА - 27 - 75 и CR

Марка катализаторов

Удельная поверхность  Sуд., м2

Объем пор, Vпор., см3

Насыпная плотность, снас., г/см3

Каталитическая активность, ч (H2S), %

ИКА - 27 - 75

 260 - 290

0,48 - 0,55

0,72 - 0,78

71

CR

 280 - 300

0,48 - 0,53

0,67 - 0,75

70


Российские специалисты при разработке катализаторов для процессов производства серы пришли к следующим выводам:

впервые в России разработаны сферические алюмооксидные катализаторы для получения газовой серы (катализаторы процессов Клауса и Сульфрен). Организовано их промышленное производство. Проведены успешные пилотные и опытно-промышленные испытания катализаторов. Катализаторы внедрены и используются на ГПЗ. На способы приготовления алюмооксидных катализаторов и их внедрение на ГПЗ выданы патенты РФ;

при нормальной эксплуатации установки, а именно точном регулировании соотношения объемных расходов кислого газа и воздуха, температуры в реакторах и конденсаторах серы, эффективность установки зависит только от состояния катализатора;

при проведении испытаний образцов катализаторов на лабораторной установке через год эксплуатации испытуемые катализаторы показали высокую степень конверсии и каталитическую активность на уровне импортных. Так, продолжительность эксплуатации катализаторов процесса получения серы составляет 3 - 4 года;

промышленное использование российских катализаторов привело к значительному снижению затрат на загрузки катализаторов, уменьшению выбросов сернистых соединений за счет степени увеличения гидролиза СОS и CS2, увеличению срока службы катализаторов на 1 - 2 года и положительно сказалось на общем экономическом эффекте.

Влияние основных технологических параметров на процесс Клауса

На эффективность процесса Клауса влияют состав кислого газа, температура процесса, давление, время контакта.

.1 Влияние температуры

Чем выше температура на термической ступени установки Клауса, тем выше степень конверсии сероводорода в серу. Оптимальная температура, поддерживаемая в печи - реакторе, варьируется в пределах 1100 - 1300 °C. В этом температурном интервале степень конверсии максимальна, а количество образующихся по побочным реакциям COS и CS2 незначительно.

Опыт эксплуатации промышленных установок Клауса показал, что температура внутри печи быстро уменьшается за счет снижения содержания H2S в кислом газе, также она зависит от содержания углеводородов в кислом газе и от количества воздуха, подаваемого в печь в смеси с кислым газом.

На каталитической ступени наблюдается обратная зависимость конверсии от температуры: конверсия повышается с понижением температуры. Но в области низких температур скорости целевых реакций становятся очень малы, и поэтому для повышения скорости реакций здесь необходимо использовать катализаторы. Нижний температурный предел ограничивается точкой росы серы (температура конденсации серы 188 °C). На практике нижний температурный предел в каталитических конверторах устанавливают на уровне 204 °C, чтобы исключить возможность конденсации серы в порах катализатора.

.2 Давление

На термической ступени установки Клауса чем ниже давление, тем выше степень конверсии сероводорода в серу, хотя в области низких давлений эта зависимость невелика. На каталитической ступени наоборот: повышение давления благоприятно влияет на выход серы из-за роста числа высокомолекулярных видов серы. На практике в каталитических конверторах обычно поддерживается давление на уровне 0,012-0,017 МПа.

.3 Время контакта

Увеличение времени контакта приводит к повышению выхода серы как на термической, так и на каталитической ступени. На термической ступени оно обычно составляет 1,0 - 3,0 с. В каталитических конверторах на практике время контакта принимают несколько выше теоретического, учитывая падение активности катализатора во времени.

8. Термическая ступень

Один из самых важных аппаратов установки Клауса - реакционная печь. При ее конструктивном оформлении главными являются два критерия: время контакта в камере сгорания и система горелок, которая должна обеспечить устойчивое пламя при изменениях нагрузки, состава или расхода исходного газа. Необходимо также тщательное перемешивание компонентов горящей смеси и обеспечение полного потребления кислорода. В реакционной печи с эффективной горелкой свободный кислород исчезает на расстоянии 20 - 30 см от сопла. Неплохие результаты получаются при использовании конструкций простых смесительных горелок, установленных по касательной к топочному пространству печи.

Согласно исследованиям фирмы «Сосьете националь Эльф - Акитен» (Франция), неплохие результаты можно получить, исходя из двух противоположных концепций:

использование тангенциальной горелки с низкой импульсивной силой, дающей длинный факел пламени, который завихряется относительно огневой кладки в конце камеры сгорания;

применение горелки с диффузором и большой импульсивной силой, создающей высокотурбулентный короткий факел.

В обоих случаях большая часть камеры предоставляется для протекания реакций Клауса.

Большинство печей модифицированных установок Клауса работают при температуре 925-1200 °С. При этих температурах и времени пребывания газа около 1 секунды потребляется весь кислород и разрушаются горючие компоненты газа. Время пребывания газа на термической стадии желательно увеличивать.

Сера, образующаяся при окислении сероводорода, выводится из технологического потопа конденсацией непосредственно после каждой ступени процесса. Тепло, выделяющееся при охлаждении газового потока из реакционной печи, используют в котле - утилизаторе для получения водяного пара среднего давления, а тепло газового потока из каталитических конверторов - в подогревателях питательной котельной воды.

При применении котлов - утилизаторов наилучшие результаты показали горизонтальные аппараты, поскольку в них обеспечивается хорошее охлаждение трубных решеток. На большинстве современных установок котел - утилизатор размещен в корпусе печи. Подогреватели питательной воды рекомендуется монтировать в вертикальном положении для обеспечения лучшего стекания серы и предотвращения ее затвердевания на самых холодных участках поверхности труб, и как следствие, повышения гидравлического сопротивления и резкого снижения коэффициента теплопередачи.

В промышленности реакционную печь называют реактором - генератором. Как известно, в нем при контакте с подаваемым в топку воздухом происходит термическое сжигание основной части кислого газа с образованием продуктов, состоящих в основном из серы, сернистого газа, сероокиси углерода и сероуглерода - технологического газа. Сгорание кислого газа происходит в герметичной топочной камере. Реактор - генератор состоит из двух частей - топочной камеры с установленными в ней горелками для сжигания сероводорода и котла - генератора для охлаждения технологического газа до температуры конденсации серы и выработки пара среднего и низкого давления.

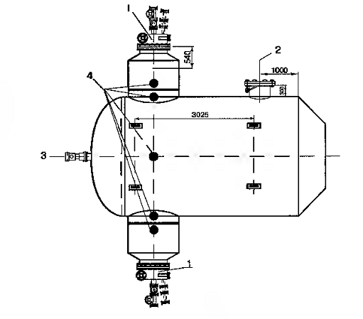
Общий вид и размер топочной камеры и 1 - ой ступени котла - генератора представлены на рисунке 3, где:

- горелочное устройство;

- люк - лаз;

- смотровой люк;

- термопары для замера температуры реакционной среды.

Рисунок 3 - Общий вид реактора - генератора

Топочная камера реактора - генератора рассчитана на рабочее давление 0,055 МПа и температуру 1250 °С. Температура стенки - 300 °С. Корпус печи изготовлен из углеродистой стали и футерован изнутри огнеупорным материалом. Футеровка должна выдержать температуру 1400 - 1480 °С и иметь значительную толщину, чтобы температура стального корпуса была 200-320 °С. При температуре выше 320 °С корпус корродирует под действием сероводорода, ниже 200 °С - под действием кислот. Наружная изоляция не требуется, но иногда над печью монтируется козырек, защищающий от дождя. В большинстве случаев в печи рекомендуется устанавливать перевальную стенку либо решетку из огнеупорного кирпича, чтобы отражать радиантное тепло в камеру сгорания, способствовать перемешиванию газов, защищать лобовую трубную решетку котла - утилизатора.

Реакция окисления сероводорода высокоэкзотермична. При снижении его содержания в сырьевом газе температура внутри реакционной печи быстро снижается. Она зависит также от содержания углеводородов в кислом газе и количества воздуха, подаваемого в печь.

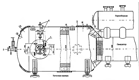
Рисунок 4 - Топочная камера реактора - генератора (вид сверху)

При переработке низкоконцентрированных кислых газов с целью повышения температуры на термической стадии используют ряд технологических приемов:

разделение сырьевого потока и подача его части мимо основной горелки на первую каталитическую ступень;

сжигание части получаемой серы до SO2 для последующего проведения реакции взаимодействия с H2S исходного кислого газа на каталитических ступенях;

предварительный подогрев кислого газа или воздуха;

использование для сжигания кислого газа воздуха, обогащенного кислородом, или чистого кислорода.

При содержании сероводорода в кислом газе менее 35% количество выделенного тепла при его сжигании недостаточно для автотермичности процесса. В этом случае в реакционную печь можно направить лишь часть кислого газа (обычно 1/3 потока) и сжечь ее в присутствии стехиометрического количества воздуха, рассчитанного на сжигание полного потока (т.е. в избытке воздуха). Процесс сжигания ведут до полной конверсии сероводорода в диоксид серы. Другую часть потока подают либо после встроенного котла, либо перед промежуточной печью нагрева технологического газа для первого конвертора.

Такая схема дает удовлетворительные результаты при переработке кислых газов, не содержащих углеводороды. В противном случае наблюдается быстрое закоксовывание катализатора, особенно в первом конверторе, а также низкое качество получаемой серы (высокое содержание золы).

Аналогичные результаты получают при сжигании части полученной серы до диоксида серы, который далее в смеси с кислым газом подают в каталитический конвертор. В этом случае необходимо прохождение кислого газа через достаточно горячее пламя для сжигания органических примесей.

За счет предварительного подогрева подаваемого воздуха и/или кислого газа можно обеспечить оптимальную температуру в реакционную печи и высокий уровень выхода серы из низкоконцентрированных сероводородсодержащих газов. Обычно подогрев кислых газов ведут до температуры 260 °С, воздуха - до 400 °С.

Топочная камера переходит в задней ее части в котел - генератор пара, состоящий из собственно генератора пара, оборудованного трубной секцией, вмонтированной в решетку, выполненную из коррозионно-устойчивых и жаропрочных сталей, и паросборника - котла. Горячие продукты сгорания кислого газа с температурой 1250 °С из топочной камеры направляются в трубную часть котла - генератора, отдают свое тепло для выработки пара, который собирается в паросборнике, охлаждаются до 315 °С и поступают во вторую часть генерирующего пар котла (на рисунке 2 не показан), где охлаждаются до 150 °С, за счет чего сера из газа конденсируется и удаляется через гидрозатвор в сборную емкость для хранения серы.

Топочная камера оборудована двумя основными горелками (см. рис. 5 и 6), для сжигания кислого газа, которые направлены навстречу друг другу.

Принципиальное устройство горелок приведено на рисунках 5 и 6, где расположены штуцеры для подачи:

А - топливного газа (резерв);

Б - кислого газа;

В1,2, Г1,2 - воздуха;

Д - топливного газа;

И - переносного газового запальника;

К - сигнализаторы погасания пламени;

л - смотрового люка.

 

Рисунок 5 - Горелочное устройство

Горелка оборудована штуцером Б для ввода кислого газа, двумя штуцерами В и двумя штуцерами Г для воздуха при минимальной и максимальной производительности работы установки по кислому газу. Расположение воздушных штуцеров для минимального и максимального расхода воздуха хорошо видно на рисунке 4.

Штуцер А в горелочном устройстве предусмотрен для подачи топливного газа, который используется только в период сушки футеровки печи и разогрева топки до необходимой температуры. При нормальной эксплуатации топливный газ не используется и сгорание кислого газа происходит за счет автотермичности процесса.

Рисунок 6 - Горелочное устройство (вид сверху)

В котле реактора вырабатывается до 5 т/ч пара давлением 0,35 - 0,4 МПа. Он используется для обогрева трубопроводов, серопроводов, гидрозатоворов, а избыток его - для нагрева теплофикационной воды на установке.

9. Каталитическая стадия

Каталитическая стадия процесса протекает в основном в двух или трех конверторах с катализатором. Основным фактором, обеспечивающим наилучшую степень использования катализатора и десорбцию серы в момент остановки, является распределение газов в конверторе. Подачу газа в конвертор необходимо производить так, чтобы избежать любого перемещения катализаторного слоя, который должен оставаться плоским во время всей операции (поэтому и заполнение катализатора должно быть особенно тщательным). Температура технологического газа на выходе из конвертора должна превышать температуру конденсации образовавшихся паров серы не менее, чем на 15-20 °С.

Температурный режим в каталитических конверторах поддерживают так, чтобы температура реакционного газа на выходе из них составляла в первом - 300-320 °С (для более полного гидролиза сероуглерода и сероокиси углерода в сероводород), во втором - 220-230 °С и в третьем - 210-220 °С (для более полного окисления сероводорода).

Снижение температуры в каталитическом конверторе сдвигает равновесие реакции сероводорода в сторону образования серы, но при этом снижается скорость самой реакции окисления, что особенно ощутимо при наличии третьего реактора.

Для эффективной работы установок Клауса необходимы:

наличие восстановительной среды во всех точках и в слоях катализатора в период работы, пуска и остановки производства с целью снижения скорости сульфатирования катализатора;

контроль за перепадом температур в каталитических реакторах, влияющем на продолжительность работы и активность катализатора;

использование в процессе, по возможности, несульфатирующихся катализаторов;

оптимизация процесса посредством точной регулировки подачи воздуха в печь и использования автоматических анализаторов соотношения продуктов реакции в отходящих газах;

оптимизация профиля температур по всем стадиям процесса, что способствует повышению степени извлечения серы на 1-2% (понижение температур способствует более глубокому протеканию основных реакций и более полному выделению серы при сепарации и конденсации). Снижение температуры на выходе из конденсатора серы может оказаться эффективным и экономически оправданным, несмотря на соответствующее снижение давления получаемого пара;

дополнительная установка третьей каталитической ступени и конденсатора - сепаратора на линии отходящих газов, что позволяет повысить степень извлечения серы примерно на 2%;

контактный подогрев газа перед каждым каталитическим конвертором, что также позволяет повысить степень извлечения серы на 2%;

усовершенствование системы контроля и управления процессом.

Затраты на мероприятия, связанные с изменениями схемы и улучшения технологии, осуществление которых возможно без прекращения работы основного оборудования, могут оказаться намного ниже, чем на создание новых установок.

Степень извлечения серы на обычных установках Клауса не превышает 96-97%. более полное извлечение серы ограничивается тем, что реакция Клауса обратима, из - за чего полное превращение сероводорода и диоксида серы невозможно.

Кроме того, вода, образующаяся по реакции Клауса и не удаленная полностью из продуктов реакции (что практически невозможно), затрудняет дальнейшее превращение и ограничивает степень извлечения серы. К тому же, соблюдение стехиометрического соотношения «сероводород - диоксид серы», равного 2: 1, на практике трудно выполнимо.

Как было сказано ранее, конверторы предназначены для проведения каталитических реакций превращения продуктов, входящих в состав технологического газа после термической ступени процесса Клауса в элементарную серу, то есть для увеличения степени конверсии сероводорода. Разрез конвертора представлен на рисунке 7, где:

А и Б - вход и выход технологического газа;

В - термопары;

Г - люк - лаз;

Д - люк для выгрузки катализатора;

Е - опорная решетка.


Рисунок 7 - Конвертор каталитический

Внутренняя часть оборудована опорной решеткой Е, на которуой находится загруженный катализатор. Температура в слое катализатора контролируется с помощью трех термопар В с целью своевременного предотвращения самопроизвольного повышения температуры до недопустимой.

Вход газа производится через патрубок А, выход конвертированного газа - через патрубок Б. Конверторы оборудованы двумя люками. Г - смотровой и для загрузки катализатора и Д - для выгрузки отработанного катализатора.

Обычно ниже слоя катализатора для предотвращения уноса катализатора укладывают слой шаров из оксида алюминия. На него укладывают слой шаров меньшего диаметра. Аналогичные слои насыпаются на верхнюю поверхность катализатора для более равномерного распределения газа по слою. Как правило, используют керамические шары.

10. Модификация установок Клауса

Установки Клауса, называемые также установками получения элементарной серы, в настоящее время являются необходимыми элементами нефтеперерабатывающего и газоперерабатывающего производства. Извлечение серы, например, из светлых нефтепродуктов обусловлено экологическими требованиями: как по снижению токсичности моторных топлив, так и, в не меньшей степени, по снижению выбросов оксидов серы в окружающую среду. Поэтому ни один современный проект реконструкции нефтеперерабатывающего предприятия не обходится без строительства или глубокой модернизации установок Клауса. В последнее время такие установки включают не только стандартный процесс Клауса, но и довольно дорогостоящие процессы доочистки хвостовых газов, что практически решает проблему с выбросами окислов серы.

В промышленности применяются четыре основных способа Клауса для производства элементарной серы из кислых компонентов природного газа и нефтезаводских газов:

прямоточный (пламенный);

разветвленный;

разветвленный с подогревом кислого газа и воздуха;

прямое окисление.

Прямоточный процесс Клауса(пламенный способ) применяют приобъемных долях сероводорода в кислых газахвыше 50% и углеводородов менее 2%. При этом весь кислый газ подается на сжигание в печь - реактор термической ступени установки Клауса, выполненный в одном корпусе с котлом - утилизатором. В топке печи - реактора температура достигает 1100 - 1300 °С и выход серы до 70%. Дальнейшее превращение сероводорода в серу осуществляется в две - три ступени на катализаторах при температуре 220-260 °С. После каждой ступени пары образовавшейся серы конденсируются в поверхностных конденсаторах. Тепло, выделяющееся при горении сероводорода и конденсации паров серы, используется для получения пара высокого и низкого давления. Выход серы в этом процессе достигает 96-97%.

При низкой объемной доле сероводорода в кислых газах (30-50%) и объемной доле углеводородов до 2% применяют разветвленную схему процесса Клауса (треть - две трети). По этой схеме одна треть кислого газа подвергается сжиганию с получением сернистого ангидрида, а две трети потока кислого газа поступают на каталитическую ступень, минуя печь - реактор. Серу получают в каталитических ступенях процесса при взаимодействии сернистого ангидрида с сероводородом, содержащимся в остальной части (2/3) исходного кислого газа. Выход серы составляет 94 - 95%. Процесс имеет технологические недостатки, которые привели к ограниченному масштабу его распространения. Общая степень конверсии сероводорода в серу для данной технологии зависит от числа применяемых каталитических ступеней и состава кислого газа, подаваемого на переработку.

При объемной доле сероводорода в кислом газе 15 - 30%, когда при использовании схемы треть-две трети минимально допустимая температура в топке печи-реактора (930 °С) не достигается, используют схему с предварительным подогревом кислого газа или воздуха.

При объемной сероводорода в кислом газе 10-15% применяют схему прямого окисления, в которой отсутствует высокотемпературная стадия окисления (сжигания) газа. Кислый газ смешивается со стехиометрическим количеством воздуха и подается сразу на каталитическую ступень конверсии. Выход серы достигает 86%.

Для достижения степени извлечения серы 99,0-99,99% используются три группы методов доочистки отходящих газов процесса Клауса:

процессы, основанные на продолжении реакции Клауса, т.е. на превращении сероводорода и диоксида серы в серу на твердом или жидком катализаторе;

процессы, основанные на восстановлении всех сернистых соединений в сероводород с последующим его извлечением;

процессы, основанные на окислении всех сернистых соединений до диоксида серы или до элементарной серы с последующим их извлечением.

химический клаус катализатор термический

Заключение

В данной работе был рассмотрен и изучен процесс получения элементарной серы методом Клауса, а также реакторы, необходимые для его осуществления.

Данный процесс осуществляется на двух ступенях: термической и каталитической. Поступающий на установку Клауса кислый газ на первой ступени подвергается высокотемпературному сжиганию в свободном пламени в присутствии стехиометрического количества воздуха с получением элементарной серы с выходом до 70%. В каталитической ступени происходят реакции взаимодействия сероводорода и диоксида серы, позволяющие увеличить выход серы до 96 - 97%.

Рассмотрены конструкции типовых реакторов, на которых осуществляется данный процесс. Обычно размеры реактора - генератора лежат в следующих пределах: диаметр 4 - 5 м, длина 6 - 7 м. Размеры конверторов: диаметр 3 - 4 м, высота 4 - 5 м.

Тепловые эффекты целевых и побочных реакций, протекающих в данных реакторах, позволяют прийти к выводу, что данные аппараты работают в автотермическом режиме, поскольку реакции протекают в несколько стадий, на одних из которых тепло выделяется, а на других поглощается.

Что касается гидродинамики процесса, то, термический реактор по данной характеристике близок к реактору идеального вытеснения. Каталитический реактор устроен так, что технологический газ входит через верхний патрубок, проходит через слой катализатора, и выходит через нижний патрубок. Это говорит о том, что реактор также работает в режиме идеального вытеснения.

Список использованных источников

1 Мейерс Р.А. Основные процессы нефтепереработки. - Спб.: Профессия, 2012. - 940 с.

2 Капустин В.М., Рудин М.Г. Химия и технология переработки нефти.- М.: Химия, 2013. - 495 с.

3 Ахметов С.А. Технология глубокой переработки нефти и газа. - Уфа.: Гилем, 2002. - 611 с.

4 Лапидус А.Л., Голубева И.А., Жагфаров Ф.Г. Газохимия: учебное пособие. - М.: ЦентрЛитНефтеГаз, 2008 г. - 450с.

Лапидус А.Л. Производство и потребление газовой серы: проблемы и перспективы / Лапидус А.Л., Голубева И.А., Болотина М.В. // Нефтепереработка и нефтехимия. - 2006. - № 9. - С. 25 - 32.

Баннов П.Г. Процессы переработки нефти.Часть 3 - я. - М.: ЦНИИТЭнефтехим, 2003. - 504 с.

Аяпбергенов Е.О. Особенности технологии получения серы на установках Клауса из сероводорода кислых газов / Е.О. Аяпбергенов // Современные научные исследования и иновации. - 2012. - № 10. - С.40 - 43.

Егоров А.С. Репетитор по химии / А.С. Егоров, К.П. Шацкая, Н.М. Иванченко, В.Д. Дионисьев, В.К. Ермакова и др. - Изд. 24 - е. - Ростов н/Д: Феникс, 2009. - 762 с.

Бусыгин И. Г., Бусыгина Н.В., Николаев В.В. Основные процессы физической и физико-химической переработки газа. - М.: Недра, 1998. - 184 с.

Афанасьев А.И. Технология переработки сернистого газа: справочник. - М.: Недра, 1993. - 155 с.

Ахметов С. А. Технология переработки нефти, газа и твердых горючих ископаемых: Учебное пособие / С.А. Ахметов, М. Х. Ишмияров, А. А. Кауфман. - СПб: Недра, 2009. - 832 с.

Цыбулевский А.М. Термодинамические исследования процесса Клауса / Цыбулевский А.М., Моргун Л.В. - М.: ВНИИЭгазпром, 1991. - 31 с.

Золотовский Б. П. Катализаторы производства газовой серы / Золотовский Б.П., Сайфуллин Р.А., Молчанов С.А. // Катализ в промышленности. - 2003. - № 6. - С. 51 - 54.

Молчанов С.А. Усовершенствование технологии процессов Клауса и Сульфрен при внедрении катализаторов отечественного производства на Оренбургском ГПЗ / Молчанов С.А., Золотовский Б.П., Зинченко Т.О. // Защита окружающей среды в нефтегазовом комплексе. - 2006. - № 7. - С. 81 - 84.

15 Широкова Г.С. Современные тенденции в развитии процесса Клауса. Пути решения задач по оптимизации работы установок производства серы: тез. докл. Материалы докладов международной конференции. Топливо и экология. М., 2009. - С. 7 - 14.