Трактора новой серии 902 обладают экономичным двигателем объемом 12,5 л., с четырьмя клапанами на каждый цилиндр. (рисунок 1.10)
Рисунок 1.10. -
Модельный ряд John Deer
В цехе по ремонту импортной самоходной техники ОАО "Коченевскй
агроснаб" обслуживается техника 2004-2011 гг.
Рисунок 1.11 - Возрастная характеристика тракторов
В следствие неуклонного роста импортной техники в НСО было принято решение в р.п. Коченёво 9-10 июня 2011 г открыть цех по ремонту импортных самоходных тракторов регионального значения. Данный цех находится на территории ОАО "Коченевский агроснаб" в р.п. Коченево Новосибирской области, на ул. Промышленная, 13. Общая площадь цеха составляет 1700 м2. Снабжающей организацией является ООО "Коченёвский агроснаб".
На данный момент цех имеет сварочное и токарное отделения. В цехе
располагаются: кран балка, передвижной стол, шкаф под инструменты, передвижная
компрессорная установка, верстак слесарный на одно рабочее место, сварочный
аппарат, вытяжка, дефектовочный стеллаж, ванна для мойки деталей, пресс,
пожарный щит, стеллаж секционный, тележка инструментальная, 3 токарных станка,
сверлильный станок, фрезерный станок, гильотина для резки металла (рисунок
1.12).
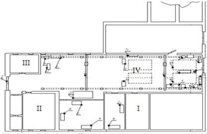
Рисунок 1.12. - План цеха по ремонту импортной мобильной техники
I. Кладовая
II. Цех для ремонта доильных установок. Сварочное отделение. Место ремонта трактора
1. Кран балка
2. Раздвижные ворота
. Шкаф для одежды
. Электрощит (трансформатор 36В)
. Передвижной стол
. Шкаф под инструмент
. Передвижная компрессорная установка
. Верстак слесарный на два рабочих места
. Сварочный аппарат
. Вытяжка
. Дефектовочный стеллаж
. Ванна для мойки деталей
. Пожарный щит
. Пресс
. Стеллаж секционный (тележка инструментальная)
. Фрезерный станок
. ,19, 20 токарный станок
21. Сверлильный станок
Пила по металлу
. Гильотина
На данный момент цех оборудован специальным инструментом и оборудованием
для ремонта тракторов VESATILE. Это можно увидеть в нижеприведённой таблице.
(Таблица 1.1)
Таблица 1.1. Имеющийся перечень специального инструмента и оборудования
для межрегионального цеха по ремонту тракторов VERSATILE
№ п.п.
Наименование
Стоимость, руб.
1
Приспособление для
установки сальников бортовых редукторов
43 400
2
Диагностическое
оборудование гидравлики
42 200
3
Программное обеспечение
Insite
63 314
4
Кран-балка 5 тонн
75 000
5
Светильник переносной
350
6
Гайковёрт электрический 220
v
8 250
7
Заправочная станция
кондиционеров
28 550
8
Присадка DCA с набором
тестирования
21 497
9
Notebook с выходом в
интернет
28 000
10
Пресс 5 тонн
25 000
11
Шлифовальная машинка
(болгарка)
2 000
12
Съемник масляных фильтров
трехлапчатый
1 928
13
Приспособление для снятия
блока МКПП
76 600
14
Съемник подшипников
трансмиссии
24 500
ИТОГО
440 589
При ремонте сельскохозяйственных машин (начиная с приемки машин в ремонт
и кончая выдачей из ремонта) необходима следующая документация: акт приёма
передачи, договор на ремонт, дефектовочная ведомость, акт выполненной работы,
счет фактура.
Вывод: несмотря на то, что цех имеет большую площадь, у него отсутствует
отдельное помещение для наружной мойки, специализированные установки для мойки
узлов и агрегатов, а также оборудования для восстановления деталей, такое как,
например, наплавочный станок УД-209.
Современная наружная мойка производится в закрытых помещениях на
автоматизированном оборудовании, при помощи форсунок установленных по периметру
помещения и сушится при помощи промышленного фена. В НСО на большинстве
предприятий мойка производится в ручную при помощи кершеров, и часто на
открытых участках.
Современная дефектовочная работа производится в самом цехе, первоначально
производится визуальный осмотр с целью выявления дефектов. Затем, с помощью
компьютерной диагностики прибором IDS, а так же на специальных стендах
производится диагностика электронных систем, в НСО часто используют устаревшие
приборы IDS, которые содержат не все программы для полной диагностики, либо
данный прибор отсутствует.
Разборка трактора на узлы и агрегаты производится при помощи специальных
домкратов, подставок и колесных колодок приспособленных под ремонтируемую
технику. Так же используются специальные краны для узлов и агрегатов и набор
инструментов.
Мойка узлов и агрегатов производится в специальных, закрытых моечных
установках для мойки агрегатов М216Е2: это закрытая машина, которая работает со
щелочным моющим раствором в закрытом пространстве. Пары и жидкость не попадают
в помещение предприятия. Раствор подогревается и повторно, многократно
используется, в процессе работы моющее средство фильтруется и очищается.
Пропорции раствора: 95-98% - вода, а 2%-5% - щелочное моющее средство.
Температура изменяется в пределах 50-80 C. В России не на всех предприятиях
есть моечные машины, и мойка агрегатов производится на специальных площадках
при помощи кершира и вручную.
Разборка агрегата на составные детали производится на специальном верстаке
с вращающейся столешницей, при помощи набора инструментов.
Разборку агрегата производят с соблюдением следующих основных правил:
. Разборке подлежит лишь агрегат или узел, предназначенный для ремонта.
. В процессе разборки сложных и ответственных механизмов и узлов следует
составлять руководствоваться технологическими картами с целью облегчения
последующей сборки.
3. Разборка должна вестись соответствующими инструментами и
приспособлениями, использование которых исключает порчу годных деталей. При невозможности
применения съемников и вынужденном использовании молотка или кувалды удары
следует наносить по деталям через прокладку или выколотку из мягкого металла,
пластмассы, дерева.
. Резьбовые соединения разбирают с помощью гаечных и специальных ключей различных
конструкций, отверток, шпильковерток, механизированного инструмента с электро-
или пневмоприводом, инерционно-ударного типа. При полной разборке узла
крепежные детали складывают в специальный ящик, а при частичной разборке после
снятия детали вставляют в предназначенные для них отверстия.
. Штифты при разборке соединений выбивают бородками с диаметром рабочего
конца несколько меньшим, чем диаметр штифта.
6. Заклепочные соединения разбирают, либо срубая головку заклепки и
бородком выбивая стержень, либо засверливая накерненную головку сверлом
несколько меньшего диаметра, чем диаметр стержня заклепки, на глубину, равную
высоте головки, после чего головку надламывают, а заклепку выбивают бородком.
. Узлы и механизмы с тяжелыми деталями разбирают с применением
грузоподъемных приспособлений или подъемных кранов. Длинные валы разбирают с
применением нескольких опор.
. В процессе разборки производят дефектацию деталей и составляют
дефектную (ремонтную) ведомость. Которая поможет в дальнейшем проанализировать
поломку, выявить причину и принять меры чтобы исключить дальнейшее появление
таких дефектов.
Современная мойка деталей агрегатов производится в специальных, закрытых
моечных установках карусельного типа SME LT BIG 1800:Аппарат замкнутого цикла
для очистки агрегатов и деталей от загрязнений. Снабжен насосом, системой
подогрева, вращающейся корзиной, системой фильтрации состава от механических
примесей, системой электроизоляции. Дополнительно можно заказать: система
удаления масляной пленки, система сушки, моторизованная корзина, контроль
уровня воды в баке, автоматический клапан опустошения бака, пароотвод, сливной
насос, термоизоляция бака, система повышения давления мойки до 6 бар, подкатная
тележка.
Максимальная масса загрузки деталей 700 кг
Диаметр рабочей корзины 1800 мм
Высота рабочей зоны 1100 мм
Температуры моющего состава 40-80
Рабочее давление 5 бар
Напряжение питания 380 В
Потребляемая мощность 37 кВт
Габариты 2300/2450/2550 мм
В России не на всех предприятиях есть моечные машины для деталей, часто
мойка деталей проводится в ваннах, и других тарах с использованием как моечных
средств, так и дизельного топлива.
Дефектовка деталей производится органолептическим способом и
микрометрированием при помощи специальных измерительных устройств (линейки, штангенциркуль,
нутромер, микрометр)
Замена поврежденных деталей на новые.
Детали, подлежащие восстановлению отправляют на восстановление в
специализированные ремонтные предприятия, выбракованные - в утиль.
Сборка узлов и агрегатов производится в обратном порядке как разбирался
на специальном верстаке с вращающейся столешницей, при помощи набора
инструментов.
Для облегчения сборки узла его детали помечают. При необходимости
соблюдения точного взаимного расположения деталей на них ставят соответствующие
метки. При разборке гидро- или пневмосистем должны помечаться все трубопроводы
и места их подсоединения на элементах системы. Обкатку узлы и агрегаты проходят
на специальных стендах.
Сборка трактора агрегаты производится при помощи специальных подъемников
приспособленных под ремонтируемую технику. Так же используются специальные
краны для узлов и агрегатов и набор инструментов.
Вывод: Таким образом, в основном на предприятиях в России текущий ремонт
не автоматизированный и происходит без использования специального и
высококачественного оборудования. Следовательно, мойку на современных
предприятиях следует производить в специально отведенных для этого помещениях
(камерах, оборудованных форсунками для мойки тракторов). Для компьютерной
диагностики следует использовать более новые приборы IDS, оснащенные последними
программными обеспечениями на все модели зарубежных тракторов и их агрегатов.
Разборку трактора на узлы и агрегаты и его сборку следует производить на таком
оборудование, которое затрачивает меньше времени и трудоемкости. Для мойки
узлов и агрегатов следует оснастить предприятия специальными моечными установка
(M216E2). Предприятие следует оснастить технологической документацией на
ремонтируемую технику.
Рассмотрим технологический процесс ремонта мобильной техники более
подробно на примере трактора Buhler VERSATIL.
Процесс ремонта трактора Buhler VERSATIL на сегодняшний день
осуществляется следующим образом:
1. Наружная мойка трактора производятся при помощи моечной установки
"Karcher HD 10/15-4CageA" на специальной площадке где отсутствует
бункер для отхода воды. Зимой мойка не производится, т.к. нет специальных
помещений для мойки тракторов, поэтому мойка производится на улице. При
отсутствии сливного бункера вода и моечные химические средства уходят в
окружающую среду, что экологически недопустимо.
2. В случае неисправности электронных систем в самом цехе, с помощью
компьютерной диагностики прибором IDS производим диагностику электронных
систем. Автоматические коробки не диагностируются прибором IDS, т.к. нет
программного обеспечения на данный агрегат. Таким образом, приходится
диагностировать АКПП вручную.
. Разборка трактора на агрегаты и узлы производится следующим
образом: трактор устанавливается на опоры (домкрат) и разбирается при помощи
набора инструментов и кран-балки, что занимает много времени и трудоемкости.
. Разборка агрегата производится без снятия его с трактора при
помощи набора инструментов, а именно: набора ключей, съемников. Это нарушает
технологию ремонта..
. Мойка деталей производится в ванной с применением дизельного
топлива, что не допустимо по технике безопасности.
. Дефектовка деталей производится визуально и при помощи измерительных
устройств (штангенциркули, микрометры, нутромеры, резьбомеры)
. Замена поврежденной детали на новую. На большинстве предприятий
изношенные и поврежденные детали не восстанавливаются, что не экономично, т.к.
это занимает много времени и материальных затрат на покупку новых деталей.
. Сборка узла производится на самом тракторе при помощи набора
инструментов и кран-балки. Это нарушает технологию ремонта.
. Сборка трактора производится следующим образом: трактор,
установленный на опорах (домкратах) собирается при помощи набора инструментов и
кран-балки, что занимает много времени и трудоемкости.
Вывод: Таким образом видно, что в ОАО "Коченевкий агроснаб"
процесс текущего ремонта значительно отстает от современных технологий. Также
стоит отметить, что в ОАО "Коченевкий агроснаб" происходит замена
дефектных деталей, а не их восстановление. В то время как восстановление
деталей менее затратно и наиболее экономично по времени, т.к. быстрее
восстановить деталь, чем заказать ее за рубежом.
При анализе существующего технологического ремонта импортной мобильной
сельскохозяйственной техники в цехе по ремонту тракторов в ОАО
"Коченевский агроснаб" были выявлены следующие недостатки:
1. Не производится восстановление поврежденных и изношенных деталей
2. Мойка запчастей производится способом, который не допустим по
технике безопасности
. В отдельных случаях узлы и агрегаты разбираются не снимая с
трактора
. Отсутствие отдельного оборудованного помещения для моечных работ
трактора, что является не экологичным.
. Компьютерная система IDS не обладает полными данными об узлах
трактора (автоматическая коробка передач)
В связи с этим, задачами дипломного проекта были определены:
1. Разработка технологического процесса ремонта импортной мобильной
техники на примере трактора Buhler Versatile
2. Предложить проект-реконструкцию существующей ремонтной мастерской
. Дооснастить участок недостающим оборудованием, приспособлениями
и инструментами.
. Рассчитать экономическую эффективность проекта
. Обосновать и рассчитать безопасность жизнедеятельности
конструктивной работа, а также самого предприятия.
2. Разработка технологического проекта ремонта тракторов
Для определения необходимого количества ремонтов воспользуемся данными
рисунков 1.4, 1.6, 1.8, 1.10, 1.11, а так же таблицей 1.2.
Всего импортных тракторов по НСО 217 шт.
Произведем расчет годового числа текущих ремонтов машин каждой марки и
определим их трудоемкость.
Расчет годового числа текущих ремонтов машин каждой марки рассчитывается
по следующей формуле:
Гдепг
- планируемая годовая наработка;
Вт
- наработка текущего ремонта (Принятая периодичность ремонтов - моточасы,
взятая у ООО "Коченевский агроснаб": капитальный ремонт -
15000моточасов, текущий ремонт - 4500моточасов);т - количество
тракторов.Versatile 535
Buhler Versatile
2375
Buhler Versatile 435
Buhler
Versatile 575Р
Так
как на территории НСО отсутствуют базы для капитального ремонта, вместо
капитального ремонта планируется производить текущий ремонт.
Определение
трудоемкости
Трудоемкость
рассчитывается согласно определенного ранее необходимого количества ремонтов и
нормативам трудоемкости для текущего ремонта. Нормативы трудоемкости взяты в
ООО "Коченевском агроснабе".
Versatile
535
Buhler Versatile 2375
Тг=1200+3900+1750+390+1600=8840
чел.- ч;
Тдоп=15%Тг=1326
(2.1.3) [5. с.227]
. Наружная мойка трактора производится в специальных оборудованных, при
помощи моечной установки кершир с подогревом, марки HDS-895, давление 170 бар.,
подача 15 л/мин, максимальная температура 1400С, мощность 6,4 кВт,
масса 120 кг. Так же помещение оборудовано спец бункером для слива воды и
моечных хим. средств.
. Диагностика электронных систем производится прибором IDS оснащенным
программным обеспечением на все узлы и агрегаты.
. Снятие с трактора узлов и агрегатов подлежащих ремонту: трактор
разбирается при помощи устройства для раскатки трактора разработанного нами,
набора инструментов марка S 1002 M-79 предметов , и кран-балки место для
разборки.
. Мойка узлов и агрегатов производится в специальных моечных установках
М216Е2
Тип: стационарная, струйная с вращающимся коллектором,
производительность, кг/ч 2000, масса обрабатываемых агрегатов, не более 1000
кг, моющая жидкость раствор воды с моющим средством, время нагрева жидкости, не
более 4часов, температура моющей жидкости, 60°С, мощность электронагревателей
18 кВт, количество форсунок в коллекторе, 54 шт., диаметр сопла в форсунке 3,0
мм, напряжение питания 380 В, потребляемая мощность 33,4 кВт, максимальный ток
48,2 А, тип электронасоса КМ 80-50-200, производительность 50 м3/ч,
напор 0,6 МПа, тип двигателя АИР160S2ЖУ2, мощность 15 кВт, частота вращения
3000 об/мин, продолжительность цикла мойки, 0-60 мин, время ожидания в режиме
предварительного нагрева 0-300 ч, частота вращения коллектора 2,25 об/мин,
двигатель коллектор типа АДМ80А6, мощность 0,75 кВт, частота вращения, 1000
об/мин, грузоподъемность корзины для деталей 200 кг, габаритные размеры
установки 4050х2150х2470 мм, размеры установки 4332х2200х3118 мм, масса 2200
кг, рекомендуемые моющие средства ВУК МС-6, нагрев от 20°С до 60°С при
температуре окружающего воздуха 20°С
. Разборка узлов и агрегатов на детали производиться специальным
инструментом набора инструментов марка S 1002 M-79 предметов, электрический
гайговерт ИЭЗ-114А наибольший диаметр резьбы 16 мм, вращающий момент затяжки
120Н/М за 3 с., Асинхронный двигателя, полезная мощность 180Вт., переменный
трехфазный ток, напряжение 36 В, частота тока 200 Гц. (стенд)
Пневмо гайковерт ИПЗ-113 наибольший диаметр затяжки 250 Н/мрасход сжатого
воздуха при затяжке 0,9 м³/мин, рабочее давление воздуха 0,5 Мпа, масса 3 кг.
Ручной двухстоечный пресс создает усилие 59 кН ход плзун - 200-400 мм.
. Мойка деталей производится в специальных моечных установках
карусельного типа SME LT BIG 1800: максимальная масса загрузк деталей 700 кг,
диаметр рабочей корзины 1800 мм, высота рабочей зоны 1100 мм, температура
моющего состава 40-80ºС, рабочее давление 5 Bar, напряжение питания 380 В,
потребляемая мощность 37 кВт, габариты мм - 2300х2450х2550.
. Дефектация детали проводится визуально на выявление явных дефектов, так
же испольуются микрометры МК 150-175 0.01 ГОСТ 6507-90 ,нутромеры НИ 10-18 0.01
ГОСТ 868-82, магнитные дефектоскопы МД-13ПР ГОСТ 24450-80, резьбомеры М60 ГОСТ
11098-75.
. Восстановление деталей происходит на Станки сварочно-наплавочные
ГАКС-Н-3С (СН-3) напряжение сети трехфазного тока, частотой 50 Гц 380 В,
Источник сварочного тока ВДУ-506, Пределы регулирования сварочного тока 50-500
А, пределы регулирования рабочего напряжения 22-46 В, диаметр электродной
проволоки 0,8-1,2 мм, Способ защиты дуги СО2, аргон, ступенчатое изменение
скорости подачи электродной проволоки, производительность наплавки до 10
кг/час.
. Комплектование и замена дефектных деталей производится на бывшие но
годные детали, на новые детали и восстановленные детали.
.Сборка узлов и агрегатов производиться специальным инструментом набора
инструментов марка S 1002 M-79 предметов, электрический гайговерт ИЭЗ-114А
наибольший диаметр резьбы 16 мм, вращающий момент затяжки 120 Н/М за 3 с.,
Асинхронный двигателя, полезная мощность 180 Вт., переменный трехфазный ток,
напряжение 36 В, частота тока 200 Гц. (стенд)
. Обкатка узлов и агрегатов производится на обкаточно-тормозных стендах
КИ-5540М для холодной и горячей с нагрузкой обкатки автотракторных двигателей.
Приводная мощность при холодной обкатке и тормозная мощность при горячей
обкатке соответственно: 90,55 кВт и 220,125 кВт. Стенды оборудованы динамометром
для измерения крутящего момента и позволяют контролировать момент сопротивления
прокручиванию двигателя при холодной обкатке и тормозного момента при горячей
обкатке, универсальный обкаточный стенд для обкатки агрегатов - КПП тракторов
КС-06.
. Установка отремонтированных узлов и агрегатов на трактор производится
при помощи устройства для раскатки трактора разработанного нами, набора
инструментов марка S 1002 M- 79 предметов , и кран-балки место для разборки.
. Контроль качества ремонта: Производится диагностика электронных систем
прибором IDS оснащенным программным обеспечением на все узлы и агрегаты,
производится обкатка трактора.
На сегодняшний день цех по ремонту импортной мобильной техники ОАО
"Коченевский агроснаб" осуществляет ремонт двигателей, рам и коробок
передач. Как уже было сказано ремонт тракторов в данном цехе осуществляется
следующим образом:
. Наружная мойка трактора.
. Дефектовка
. Разборка трактора.
. Мойка агрегатов.
. Разборка агрегата на составные детали.
. Мойка деталей.
. Дефектовка деталей.
. Замена поврежденной детали на новую.
. Смазка деталей.
. Сборка узла.
. Сборка трактора.
Исходя из этого цех необходимо дооснастись следующим оборудованием
(таблица 2.1).
Таблица 2.1. Перечень необходимого оборудования:
№ п.п
Наименование
Инструмент
Стоимость
Есть
Нужен
1
2
3
4
5
1
Инструмент для съема
форсунок QSX 15
-
+
15208 руб
2
Инструмент для съема
форсунок QSM 11
-
+
14511 руб
3
Динамометрический ключ для
регулировки клапанов
-
+ 4
Насадка на
динамометрический ключ
-
+
1192 руб
5
Ломы, монтажки
-
+
-
6
Адаптер для измерения
давления/разряжения
-
+
-
7
Съемник фильтров
-
+
-
8
Приспособления для
установки сальников бортовых редукторов
-
+
43400 руб
9
Ключ для снятия топливного
насоса QSM 11
-
+
3584 руб
10
Съемник сальника
коленчатого вала QSX 15
-
+
24444 руб
11
Комплект для установки
положения распредвалаQSX 15
-
+
25546 руб
12
Гидравлический мономер
-
+
-
13
Дроссель для измерения
картельных газов
-
+
1607 руб
14
Мультитестер
-
+
176 руб
15
Вакуумметр
-
+
490 руб
16
Диск Insite
-
+
-
17
Кран-балка не менее 3 тон
+
-
75000 руб
18
Домкрат ДГ-12, 3т, 12т
-
+
1777 руб
19
Мобильная компрессорная
установка
-
+
4873 руб
20
Зарядное устройство для аккумуляторной
батареи
-
+
8000 руб
21
Электродрель
-
+
3800 руб
22
Светильник переносной
-
+
350 руб
23
Гайковёрт электрический 220
v
-
+
8250 руб
24
Подъемный стол
-
+
15700 руб
25
Нагнетатель масла
-
+
3200 руб
26
Подставки разной высоты
-
+
4300 руб
27
Откатники 8 шт
-
+
8000 руб
28
Аппарат моющий высокого
давления (Karcher)
-
+
5500 руб
29
Набор сверл
-
+
500 руб
30
Стеллаж секционный
-
+
3000 руб
31
Верстак слесарный на два
рабочих места
-
+
16262 руб
32
Тиски слесарные поворотные
-
+
3589 руб
33
Набор дюймовых ключей
большого размера, набор ключей, набор приспособлений (щупы)
-
+
-
34
Комплект динамометрических
ключей
-
+
5304 руб
35
Набор отверток, пассатижи
-
+
-
36
Набор слесарных
инструментов (молоток, кувалда, бородок, керн, зубило, ножовка по металлу,
набор выколоток)
-
+
-
37
Заправочная станция
кондиционеров
-
+
28550 руб
38
Комбинированные щипцы для
стопорных колец
-
+
348 руб
39
Монтажная лопатка
-
+
600 руб
40
Нагрузочно-диагностическое
устройство (для проверки аккумуляторной батарейки)
-
+
2000 руб
41
Ареометр универсальный
-
+
-
42
Набор измерительных
инструментов (штангенциркуль, микрометр, скоба, индикатор)
-
+
-
43
Набор для диагностики
электрооборудования (мультитестер)
-
+
176 руб
44
Notebook с выходом в
интернет
-
+
28000 руб
45
Цифровая фотокамера
-
+
3000 руб
46
Сварочный автомат
-
+
10000 руб
47
Автоген
-
+
8000 руб
48
Приспособления, в т.ч.
3-крючковые цепи, 2-крючковые цепи, накладки, стропы, мягкие подстрочники
-
+
8000 руб
49
Съемники трехлапчатые №1,
№2, №3
-
+
2546 руб
50
Ванна для мойки деталей
-
+
15000 руб
51
Штабелер гидравлический
ручной
-
+
32000 руб
52
Емкость для слива
отработанной жидкости
-
+
15000 руб
53
Пресс не менее 3 тон
+
-
25000 руб
54
Наждак
-
+
5000 руб
55
Вытяжка для отработанных
газов
-
+
65000 руб
56
Шлифовальная машинка
(болгарка)
-
+
2000 руб
57
Шкаф с комплектом
инструмента
-
+
15000 руб
58
Линейка 2 метра
-
+
1800 руб
59
Штангенциркуль
-
+
282 руб
60
Шприц плунжерный
-
+
233 руб
61
Съемник масляных фильтров
трехлапчатый
-
+
1928 руб
62
Магнит гибкий
-
+
214 руб
63
Приспособления для снятия
блока МКПП
-
+
76600 руб
Итого
647681 руб
Фонды времени подразделяются на номинальный и действительный и
определяются по следующим формулам:
Номинальный фонд времени цеха
Фнг=(Дк - Дn - Дв)•tc•y (2.3.1) [5. с. 236]
Действительный фонд времени оборудования
Фдг=(Дк - Дn - Дв) tc•y•ηо (2.3.2) [5. с. 236]
Действительный фонд времени рабочего
Фдр=(Дк - Дn - Дв- До) •tc•y•ηрб (2.3.3) [5. с. 236]
Где Фнг, Фдг , Фдр - фонд времени соответственно номинальный го-довой,
действительный годовой, рабочего, ч;
Дk, Дn, Дв, До - количество дней соответственно: календарь праздничных,
выходных, отпуска;- продолжительность смены, ч;- количество смен;
ηо - коэффициент, учитывающий простои
оборудования (ηо=0,95);
ηрб - коэффициент, учитывающий потери
времени рабочим по уважительным причинам (ηрб = 0,95)
Фнг =(365-11-53)•8•1=2408 ч
Фдг=(365-11-53)•8•1•0,95=2288 ч
Фдр=(365-11-53-28)•8•1•0,95=2075 ч
Расчет штатов предприятия.
При расчете штатов предприятия определяется только
количество основных, производственных рабочих. Все остальные категории
работников принимаются от их числа.
М пр = Тг/ (Ф нг * a); (2.4.1) [1. с.112]
М пр = Тг/ (Ф нг * a) = 8840 / (2408*1) = 3,67
принимаем 4 чел.
где Тг, - годовая трудоемкость;
а - коэффициент перевыполнения норм выработки.
Вспомогательные рабочие
%Мпр = 0,25*4 = 1 чел.
ИТР - 8%Мпр = 0,32* 4 = 1,28 принимаем 2 чел.
Служащие
%Мпр =4* 0,28 = 1,12 принимаем 2 чел.
Младший обслуживающий персонал (МОП) и личный состав
пожарно-сторожевой охраны
%Мпр = 0,32* 4 = 1,28 принимаем 2 чел.
Тракторы Buhler Versatile 4WD полноприводные тракторы с шарнирным
соединением. Конструкция трактора состоит из передней и задней рамы, которые управляются
с помощью вращения в центральной точке шарнирного соединения. Вращение рамы
трактора осуществляется в центральной точке транспортного средства с помощью
шарнирного соединения. Передняя и задняя рамы трактора поворачиваются
относительно друг друга, образуя угол поворота (рисунок 3.1).
Дефектность в предельном состоянии может привести к усталостному излому
пальца или проушин вследствие чего рама конструкция шасси на две полурамы, и
выводу из строя поворотного механизма.
Износ рабочих поверхностей происходит в следствии трения пальца о
проушины, при повороте и движении трактора по не ровному рельефу местности
палец испытывает большие переменные нагрузки (изгиб кручения).
Рисунок 3.1 - Трактор с ломающейся рамой
Существует четыре разных угла поворота, которые используются на тракторах
исходя из конфигурации шин. Эти углы составляют42°, 38°, 33° и 31°. Положение
упоров, 1, определяется углом поворота. Упоры расположены на передней раме над
каждым топливным баком
Колебания рамы
Колебания это способность трактора вилять благодаря передней и задней
раме, что позволяет ему перемещаться по неровной поверхности. Колебания
трактора могут достигать 15° в любом направлении. Способность рам к колебаниям
достигается использованием шаровых опор и системы продольных тяг в шарнирном
соединении трактора (рисунок 3.2).
Рисунок 3.2 - Колебания рамы
Верхний шарнирный шкворень
Верхний шарнирный шкворень, 1, обеспечивает верхнюю точку шарнира для передней
и задней рамы трактора во время руления.
Компоненты, из которых состоит верхний шарнирный шкворень, следующие
(рисунок 3.3):
Рисунок 3.3 - Верхний шарнирный шкворень
. Шарнирный шкворень
. Упорная шайба
. Верхняя втулка
. Нижняя втулка
. Шайба
. Стопорный болт Нижний шарнирный шкворень, 2, обеспечивает нижнюю шарнирную точку и точку
колебании для передней и задней рамы трактора во время руления и движения по
неровной поверхности. Очень важно соблюдать усилие момента затяжки шарнирного
шкворня 1356 Нм, чтобы предотвратить преждевременный износ компонентов, которые
входят в состав нижнего шарнирного соединения.
Компоненты, из которых состоит нижний шарнирный шкворень, следующие
(рисунок 3.4):
Рисунок 3.4 - Нижний шарнирный шкворень
. Шарнирный шкворень
. Скоба
. Верхнее уплотнение
. Пластина
. Нижнее уплотнение
. Прокладка
.Шайба
. Контргайка
Подвижная рама
Подвижная рама, соединяется с передней рамой с помощью верхнего
шарнирного шкворня, и с задней рамой с помощью системы продольных тяг.
Подвижная рама позволяет трактору поворачиваться между передней и задней
рамами, вращаясь у верхнего шарнирного шкворня при повороте рулевого колеса.
Подвижная рама также позволяет трактору колебаться на неровной поверхности,
обеспечивая виляние трактора между передней и задней рамами посредством системы
продольных тяг и нижнего шарнирного шкворня.
3.2 Анализ существующих технологий процесса ремонта сочленения рамы
Таким образом, рассмотрим существующие современные технологии ремонта
импортных мобильных тракторов.
Продольная тяга
Демонтаж
1. Установить трактор на ровной поверхности, включить стояночный
тормоз и вытащить ключ из замка зажигания.
2. Установить фиксатор шарнирного сочленения в закрытое положение в
центральной части трактора.
. Установить колодки под колеса трактора, чтобы предотвратить его
движение.
. Установить домкраты под переднюю часть передней рамы с каждой
стороны трактора
. Установить домкраты под заднюю часть передней рамы с каждой
стороны трактора
. Установить гидравлический домкрат под переднюю часть задней рамы
. Снять болты, гайки и шайбы, и щиток клапана рабочего
оборудования,
. Тщательным образом удалить все загрязнения с продольных тяг.
. Снять фитинги для смазки, со шлангов для смазки, и снять шланги
с кронштейна на правой стороне трактора.
. Отсоединить шланг для смазки, с задней части продольной тяги.
. Снять фланцевый болт, и шайбу, с пальца передней продольной
тяги.
. Вставить фланцевый болт, обратно в нижнюю часть пальца.
Установить переходную втулку, или кусок квадратной заготовкимежду продольной
тягой и подвижной рамой. С помощью винтового домкрата, осторожно вытащить
передний палец из рамы
. Снять фланцевый болт, и шайбу, с пальца задней продольной тяги.
. Вставить фланцевый болт, обратно в нижнюю часть пальца. С
помощью винтового домкрата, осторожно вынуть палец,
. Снять продольную тягу в сборе с задней рамы и подвижной рамы.
Осмотр
. Тщательным образом очистить все детали соответствующим раствором и
высушить с помощью воздуха.
. Проверить втулки, на каждой стороне продольной тяги на наличие следов
значительного износа, коррозии или прочих повреждений. Втулки должны свободно
отклоняться в любом направлении. Если требуется заменить втулки, необходимо
выполнить следующее:
а. Осторожно отшлифовать стыкующиеся поверхности, с одной стороны
продольной тяги.
б. Повернуть продольную тягу и выдавить втулку.
в. Вставить новую втулку в продольную тягу.
г. С помощью молотка и пробойника установить новую втулку и зафиксировать
в трех точках, расположенных на 120° друг от друга.
. Проверить шкворни продольной тяги на наличие следов износа или прочих
повреждений. Размеры шкворней указаны ниже.
Установка
. Нанести слой силикона RTV на уплотнения, Установить нижнее заднее
уплотнение и прокладку, на заднюю раму, совмещая отверстия для шкворней.
. Установить продольную тягу, на верхнюю часть нижнего уплотнения.
. Установить верхнее уплотнение
. Установить палец задней продольной тяги, с плоским концом в нижнюю
часть шкворня по направлению к передней части трактора.
. Нанести резьбовой герметик на болт, и установить болт с шайбой. Затянуть
болт с усилием 170 Нм.
. Нанести слой силикона RTV на передние уплотнения. Установить нижнее
переднее уплотнение и прокладку, под продольную тягу, в подвижной раме,
совмещая отверстия для шкворней.
. Установить верхнее уплотнение, на верхнюю часть продольной тяги.
. Установить палец передней продольной тяги, с плоским концом в нижнюю
часть шкворня по направлению к задней части трактора.
. Нанести резьбовой герметик на болт, и установить болт с шайбой.
Затянуть болт с усилием 170.
. Установить шланг для смазки на заднюю часть продольной тяги.
. Установить конец шлангов для смазки, с фитингом для смазки, в кронштейн
на правой стороне трактора.
. Установить щиток клапана рабочего оборудования, и затянуть с помощью
болтов и гаек.
. Убрать домкраты из-под передней и задней части передней рамы.
Верхний шкворень шарнира сочленения и подвижная рама
Демонтаж
. Снять продольные тяги в соответствии с описанием выше в данном разделе.
. Снять две гайки, болты и шайбы, с кронштейна гидравлического шланга, и
снять кронштейн.
. Снять стопорный болт, и шайбу, со шкворня.
. С помощью винтового домкрата, вытащить верхний шкворень шарнира
сочленения, с передней рамы, и подвижной рамы,как показано на рисунке.
. Установить лапы вилочного погрузчика под подвижную раму, как показано
на рисунке. Передвинуть раму на лапы и снять раму иупорные шайбы с трактора.
Осмотр
. Проверить шкворень на наличие следов чрезмерного износа, деформации и
обесцвечивания по причине перегрева. Размерышкворня представлены на рисунке.
. Выкинуть упорные шайбы, и установить новые.
. Проверить втулку шарнирного соединения, на наличие следов износа или
деформации. Если необходимо, выбить втулку.
. Проверить вращающиеся зоны подвижной рамы на наличие следов износа,
неровной формы или прочих деформаций.
Установка
. Поднять подвижную раму в положение на переднюю рамы с помощью вилочного
погрузчика.
. Установить верхнюю и нижнюю упорные шайбы, со смазанными поверхностями
друг к другу.
. Установить верхний шкворень шарнира сочленения через подвижную раму и
переднюю раму плоским концом в нижней частишкворня в направлении передней части
трактора.
. Установить шайбу, и стопорный болт, в шкворень. Затянуть болт с усилием
170 Нм.
. Установить шланговый кронштейн, 1, в положение и закрепить двумя
гайками, болтами и шайбами.
. Установить продольные тяги в соответствии с описанием выше в данном
разделе.
Нижний шарнирный шкворень
Демонтаж
. Установить трактор на ровной поверхности, включить стояночный тормоз и
вытащить ключ из замка зажигания.
. Установить колодки под колеса трактора, чтобы предотвратить его
движение.
. Отсоединить отрицательные кабели от аккумуляторной батареи.
. Установить домкраты под переднюю часть передней рамы с каждой стороны
трактора.
. Установить домкраты под заднюю часть передней рамы с каждой стороны
трактора.
. Отсоединить привод на ведущие колеса, выполненный из шарнирных
соединений.
. Снять оба рулевых цилиндра с трактора
. Снять верхний шкворень шарнира сочленения и подвижную раму
. С помощью лап вилочного погрузчика, приподнять переднюю часть задней
рамы трактора.
. С помощью насадки 2 3/8 дюйма (инструмент №1978) снять контргайку, и
шайбу, нижнего шарнирного шкворня.
. С помощью винтового домкрата, вынуть нижний шарнирный шкворень, из
трактора.
. Снять верхнее уплотнение.
. Снять нижнее уплотнение, и прокладку.
. Убрать колодки под задними колесами и отогнать трактор, чтобы
отсоединить заднюю раму от передней рамы для получения доступа к крышке
подшипникового узла. Установить колодки обратно и поместить опору под переднюю
часть задней рамы.
. Снять четыре болта, и прижимную планку подшипникового узла.
. Вытащить подшипник, из отверстия.
Осмотр
. Проверить следующие элементы крепежа и в случае деформации заменить их:
Винт с буртиком
Прижимная планка
Плоская шайба
Прокладка
Контргайка
Шарнирный шкворень
Верхнее уплотнение подшипника
Нижнее уплотнение подшипника
. Промыть все детали соответствующим сольвентом и продуть сжатым
воздухом.
. Выкинуть верхнее и нижнее уплотнение подшипника, и заменить их на
новые.
. Проверить шкворень на наличие следов чрезмерного износа, деформации и
обесцвечивания по причине перегрева
. Проверить подшипник шарнирного сочленения на наличие следов износа или
прочих деформаций. Если подшипник поврежден, заменить его.
. Проверить втулку шарнирного сочленения на наличие следов износа на
верхней и нижней части контактных зон.
Установка
. Вставить подшипник шарнирного сочленения, в отверстие.
. Нанести резьбовой герметик на болты. Установить прижимную пластину
подшипника, и закрепить ее четырьмя болтами. Затянуть болты с усилием 75 Нм.
. Поднять заднюю раму трактора и осторожно совместить ее с передней
рамой. Совместить отверстия для шарнирного шкворня.
. Нанести слой силикона RTV вокруг нижнего уплотнения, и прокладки, при
совмещенных отверстиях для шкворня.
. Нанести слой силикона RTV вокруг верхнего уплотнения, и установить
уплотнение.
. Установить нижний шарнирный шкворень, с плоским концом на шкворне в
направлении задней части трактора. Чтобы окончательно просунуть шкворень через
все рамы заднюю раму можно по необходимости двигать в разных направлениях.
. Установить шайбу, и контргайку, на шарнирный шкворень. С помощью
насадки (2 3/8 дюйма) (инструмент № 1978) затянуть контргайку с усилием 1356
Нм.
. Установить верхний шарнирный шкворень и подвижную раму в соответствии с
описанием выше в данном разделе.
. Установить два рулевых цилиндра.
. Установить привод на ведущие колеса, выполненный из шарнирных
соединений.
. Убрать опоры из-под задней части передней рамы.
. Убрать опоры, поддерживающие переднюю раму трактора.
. Подсоединить отрицательные кабели аккумуляторной батареи
. Убрать колодки из-под колес и вилочный погрузчик от задней части
трактора.
. Запустить двигатель трактора и проверить рулевые цилиндры на наличие
утечек. Проверить работу нижнего шарнирного шкворня путем шарнирного
подсоединения трактора.
Сварка
Сварка должна выполняться только квалифицированным сварщиком. Рама
выполнена из конструкционной стали, ASTM A36, и сварку необходимо выполнять с
помощью металлической проволоки диаметром 1,6 мм (1/16 дюйма).
Дефектные детали, а именно: палец сочленения рамы.
Восстановительные операции, заключающиеся в наплавке.
Следует отметить, что восстанавливаемая деталь - палец
сочленения рамы. Он имеет сложную цилиндрическую форму с разными диаметрами на
разных уровнях. Стоит также обратить внимание что палец состоит из
высоколегированной стали, при которой улучшаются механические свойства,
теплоустойчивость, жаропрочность, коррозионная стойкость и др. Величина износа
у такого пальца проявляется в появление шероховатости, внешней деформации и
изменении размера детали.
Исходя из выше сказанного, можно выделить два способа
восстановление такой детали, а именно, контактна приварка металлической ленты и
осталивание.
Осталивание - это один из эффективных методов
современной технологии ремонта. Осталивание позволяет наносить слой металла
значительно большей толщины (2-3 мм и более). Этим способом целесообразно
восстанавливать:
· детали с неподвижными посадками или
детали с невысокой поверхностной твердостью;
· детали, работающие на трение при
величине износа более 0,5 мм;
· детали, работающие одновременно на
удары и истирание.
Можно выделить следующие преимущества осталивания:
· высокая производительность,
· низкая стоимость компонентов,
входящих в состав электролита,
· возможность получения твердых и
плотных осадков как малой, так и большой толщины,
· возможность добиться малых припусков
на дальнейшую механическую обработку,
· проводится при комнатной температуре,
поэтому не оказывает влияние на структуру материала детали, не вызывает
возникновения зон повышенных внутренних напряжений в металле и не приводит к
зарождению трещин в нём.
Другим наиболее экономичным и эффективным способом
восстановления является наплавка в среде защитных газов .
Наплавку в защитных газах применяют в тех случаях,
когда невозможны, или затруднены подача флюса, и удаление шлаковой корки.
Преимуществами данного вида наплавки являются визуальное наблюдение за
процессом и возможность его широкой механизации и автоматизации с
использованием серийного сварочного оборудования. Ее применяют при наплавке
деталей в различных пространственных положениях, внутренних поверхностей,
глубоких отверстий, мелких деталей и сложных форм и т.п. Наибольшее
распространение получила наплавка в углекислом газе плавящимся электродом на
постоянном токе обратной полярности. Учитывая, что углекислый газ окисляет
расплавленный металл, в наплавочную проволоку обязательно вводят раскислители
(марганец, кремний и др.). При наплавке применяют как проволоку сплошного
сечения, так и порошковую. Для наплавки деталей из углеродистых и
низколегированных сталей с целью восстановления их размеров применяют сварочные
проволоки сплошного сечения Св-08ГС, Св-08Г2С, Св-12ГС, а также наплавочные
Нп-40, Нп-50, Нп-30ХГСА и др. При необходимости получения наплавленного слоя с
особыми свойствами применяют порошковые проволоки.
Недостатком способа является то, что в процессе
наплавки в углекислом газе наблюдается сильное разбрызгивание жидкого металла,
приводящее к налипанию брызг на мундштук и засорению сопла горелки. Кроме того,
возможность сдувания газовой струи ветром затрудняет наплавку на открытом
воздухе.
По
техническому критерию решение о выборе предпочтительного рационального способа
выполнено на основе расчётных данных по коэффициенту долговечности где
1) осталивание;
Кi= 0,9…1,2
Кв = 0,8
Кс = 0,65… 0,8
Кп = 0,8…0,9
Кд1= Кi* Кв * Кс * Кп = 0,9*0,8*0,65*0,8 = 0,37
) контактная приварка металлической ленты.
Кi= 0,85…1,1
Кв = 0,9…1,1
Кс = 1
Кп = 0,8…0,9
Кд2= Кi* Кв * Кс * Кп = 0,85*0,9*1*0,8 = 0,61
В
соответствии с проведенным анализом и исходя из принципа где
Находим
коэффициент )
осталивание;
Св=
0,05…0,5
Кд
= 0,37
Кт1
= Св/ Кд = 0,05/0,37 = 1,34 руб.
)
контактная приварка металлической ленты
Св=
0,6…0,8
Кд
= 0,64
Кт2
= Св/ Кд = 0,6/0,64 = 0,94 руб.
Эффективным
считают способ, у которого КТ®min.
Из
полученных результатов по технико - экономическому критерию видно, что способ
восстановления методом наплавки в защитных газах наиболее рациональнее.
Разработка маршрутно-операционного технологического процесса
осуществляется для приоритетного варианта.
.Очистая.
Очистка от жира и масел в ванне с щелочным раствором.
.Дефектовочная.
Визуально определяется такие дефекты как деформация детали
Так же износ поверхности и микротрещины детали измеряется микрометром и
магнитный дефектоскоп МД-13пр ГОСТ 12997.
.Токарная
Токарная обработка деталей (пальца) производится до ремонтных размеров на
токарном станке 1К62 до ремонтных размеров
.Подготовительная
Проволоку для наплавки на деталь готовят толщиной 1-6 мм. Готовят
защитный газ (углекислый газ) в болонах.
.Наплавочная
Для наплавки в защитных газах обычно используют металлическую проволоку
на наплавочном станке типа УД-209.
. Контрольная
Деталь замеряется микрометром и проверяется дефектоскопом
.Токарная
Механическая обработка на фрезерном станке FP-16K
.Контрольная
Замеряется микрометром.
Таким образом, как уже говорилось, цех по ремонту импортной мобильной
техники ОАО "Коченевский агроснаб" занимается ремонтом тракторов
Buhler VERSATILE, т.к. в цехе не используется восстановление деталей. Также
стоит отметить, что в цехе ОАО "Коченевский агроснаб" используется
замена дорогостоящих деталей трактора Buhler VERSATILE. Однако целесообразней
было бы использовать восстановление таких деталей, т.к. это экономит как
временные, так и материальные затраты.
На известных предприятиях таких как ОАО "Коченевский агроснаб"
не используются подъемники для ремонта тракторов с сочлененной рамой. В
основном для разбора таких тракторов как говорилось ранее, используются системы
домкратов и упорных колодок (рисунок 4.1).
Рисунок 4.1 - домкратные упоры для трактора
Так же подъемниками пользуются в авто ремонтных мастерских:
Подъёмник 2-стоечный электрогидравлический RAV KPH-370.42K (рисунок 4.2)
портального типа (верхняя синхронизация) имеющий 2 гидроцилиндра, механические
фиксаторы кареток, разблокировка одной рукояткой, симметричное расположение
колонн, 2-коленные передние и 3-коленные задние подхваты.
Предназначен для подъема автомобилей полной массой не более 4,2 т и
проведения общеслесарных и сервисных работ.
Вывод: на предприятии ОАО "Коченевский агроснаб" для расборки и
раскатки трактора используют домкраты и упорные калотки, что является весьма
трудоемким процессом и занимает много времени. Что бы уменьшить трудоемкость
этого процесса и снизить затраты времени на его проведение, мы предлогаем нашу
крнструктивную разработку устройство для раскатки трактора.
Как известно, ремонт сочленения рамы трактора состоит из большого числа
операций. Одна из таких операций ремонта сочлененной рамы трактора, на которую
стоит обратить внимание - это раскатка трактора. Стоит обратить внимание, что
данная операция занимает много времени.
Раскатка трактора происходит следующим образом: трактор ставят на ровную
поверхность, устанавливают колодки под колеса трактора, чтобы предотвратить его
движение, устанавливают домкраты под переднюю часть передней рамы с каждой
стороны трактора, устанавливают домкраты под заднюю часть передней рамы с
каждой стороны трактора, устанавливают гидравлический домкрат под переднюю
часть задней рамы.
Чтобы упростить разборку тракторов с сочлененной рамой мы предлагаем
разработку устройства для раскатки тракторов для данных тракторов. Подъемник
позволяет экономить время, снижает количество операций и обеспечивает более
устойчивое положение трактора.
Описание: установка представляет собой две отдельных плиты собранные из
металлических листов ГОСТ 19903-74, распиленных по размеру и сваренные между
собой (ГОСТ-5264-80 У4 ∆6, ГОСТ-5264-80 Т3 ∆6, ГОСТ-5264-80 У2 ∆6).
подвижная (1) и не подвижная (2) на каждой плите установлены телескопические
упоры (3) собранные из квадратных труб ГОСТ 8639-82 (4) к которым приваривается
тавр ГОСТ 26020-83 (5) на тавре установлен роликовый транспортер собранный из
металлических листов ГОСТ 19903-74 (6) на к котором приварены
гидроцилиндрыГЦ-40А ГОСТ 6540-68 (7) не подвижная плита установлена на бетонной
подушке, подвижная часть установлена на на подвижной телеге ГОСТ 9246-2004 (8)
к штокам гидроцилиндра приварены упорные тарелки(9) подвижная часть
откатывается с помощью гидроцилиндра ГОСТ 6540-68 установленного между
платформами и закрепленного болтами М30 ГОСТ 22353-77 (10)
Принцип работы: Трактор заезжает на платформу с двумя установками,
телескопическими упорами гидроцилиндры подстраиваются под раму трактора.
Тарелки с приваренные к штокам гидроцилиндра упираются в раму трактора, за тем
установка поднимает трактор, узел сочленения разбирается и подвижная часть
откатывается с отделенной полурамой.
Смотреть чертежи: РМ ДП 78 00 00 Д8, РМ ДП 78 00 00 ВО
.3.1 Расчет мощности и подачи насоса. Выбор насоса
Мощность, подводимая к гидроцилиндру Nп.ц., Вт, равна:
где: P - усилие на штоке гидроцилиндра, Н;ш - скорость перемещения штока, м/с;
ηобщ.ц- общий к.п.д. гидроцилиндра.
Величина ηобщ.ц. колеблется в пределах 0,92 - 0,94.
Мощность насоса с учетом потерь давления и расхода Nн, Вт, определяется по формуле:
н = Kз.у. Kз.с. Nп, (4.3.1.2) [16. с.10]
н = 1,2*1,3*5000=7800Вт
где: Kз.у. - коэффициент
запаса по усилию, Kз.у. =
1,1-1,2;з.с. - коэффициент
запаса по скорости, Kз.с. =
1,1-1,3.
Подачу насоса Qн, м3/с,
определим по формуле:
где:-
номинальное давление в гидросистеме, Па;
Nн - мощность насоса,
Вт.
Зная P и Qн выбираем
насос НШ40А-3 ГОСТ 19027-89. Для насосов (например, шестеренных), где указаны
допустимые пределы частоты вращения, следует определить частоту вращения
выбранного насоса, которая должна попасть в эти пределы. Частота вращения n,
об/мин, определяется по следующей формуле:
где:
qн - рабочий объем насоса, то
есть величина подачи насоса за один оборот его вала, м3/об;
ηо.н. -
объемный к.п.д. насоса (обычно приводится в таблицах);
Если
в результате расчета частота вращения вала оказалась выше или ниже
рекомендованных в таблице, то необходимо повторить расчет, изменив рабочий
объем в ту или иную сторону.
В
гидросистемах легкого и среднего режимов работы целесообразно применить
шестеренные насосы, как более простые по устройству, обслуживанию и стоимости,
а для весьма тяжелого и тяжелого - роторно-поршневые насосы.
4.3.2 Расчет трубопроводов
По известному расходу Qн и
средней скорости V движения жидкости в трубопроводе вычисляем диаметры d и
округляем их до стандартных значений. Внутренний диаметр трубы находим,
используя следующую формулу:
В зависимости от назначения трубопровода, давления в гидросистеме и
условий эксплуатации выбираем скорость V потока рабочей жидкости. Ниже
приведены разработанные практикой рекомендации по выбору скорости V:
для всасывающего трубопровода - 1,0-2,0 м/с;
для сливного трубопровода - 1,5-2,0 м/с;
для напорного трубопровода - 4-10 м/с.
Толщину стенки металлического трубопровода δ, м, определяем по следующей формуле:
где: σр =16МН/м2);- внутренний диаметр трубопровода, м;-
рабочее давление, Н/м2.
Принимаем армированные шланги
с диаметрами на слив и всасыванием 20мм напорные 16мм ГОСТ 8752-79
.3.3 Расчет потерь давления в гидросистеме
При проектировании системы гидропровода необходимо
определить величину потерь давления рабочей жидкости, что позволит определить
полный к.п.д системы, подобрать гидродвигатели, при необходимости установить
пределы работоспособности гидропривода при низких температурах. Гидросистема
считается оптимально спроектированной, если потери давления в ней не превышают
6% от номинального давления насоса.
Для начала расчета потерь давления на трение по длине
следует определить длины и диаметры напорных, всасывающих и сливных
трубопроводов.
Диаметры труб были найдены по формуле, а длины даны в
задании и распределяются на три следующие группы:
всасывающий трубопровод - участок трубы между масляным
баком и насосом. Если длина этого участка очень мала или он вообще отсутствует
(например, насос располагается в масляном баке), то потери давления по длине
равны нулю;
напорный трубопровод - сумма участков трубы между насосом
и распределителем; распределителем и гидродвигателем; гидродвигателем и
распределителем;
сливной трубопровод - участок между распределителем и
масляным баком.
Таким образом, для каждой группы трубопроводов будут
одинаковыми диаметры и скорости движения жидкости и тогда расчет всех потерь
давления будет осуществляться по трем группам.
Расчет потерь давления на трение по длине трубы hl, Па, проводим по
формуле:
где: λ - коэффициент гидравлического трения (λ=0,02);- сумма длин трубопроводов, м;- диаметр трубопроводов,
м;
ρ
- плотность жидкости, кг/м3;- средняя
скорость движения жидкости, м/с.
Зная среднюю скорость V,
кинематический коэффициент вязкости ν и диаметр d трубопроводов, найдем критерий Рейнольдса по формуле:
Если 2300<Re<6·104, то
коэффициент λ
определяем по формуле для турбулентного
режима (область гидравлических гладких труб):
Определив потери давления на трение по длине трубы во всасывающих (hlвс), в напорных (hlн) и сливных (hlс) трубопроводах, суммируем их и
получаем сумму потерь давления на трение по длине трубы в гидросистеме
Σhl = hlвс+ hlн+ hlс (4.3.3.4) [16. с. 12]
Σhl = 32400+32400+900000=964800Па
Расчет местных потерь давления проводим по формуле:
где:
∑x- сумма коэффициентов местного сопротивления.
Полные потери давления в гидросистеме найдем, как сумму величин из формул
(12) и (13):
Σh = Σhl +
Σhм (4.3.3.6) [16.
с.12]
Σh = 964800+760500=1725300Па=1,7мПа
.3.4 Расчет к.п.д. гидропривода
Величина коэффициента полезного действия гидропривода позволяет
установить эффективность спроектированного устройства. Причем для оптимально
разработанной гидросистемы общий (полный) к.п.д. должен находиться в пределах
от 0,6 до 0,8.
Общий кпд гидропривода определяем произведением гидравлического,
механического и объемного к.п.д.:
ηобщ =
ηг·ηм·ηо
(4.3.4.1) [16. с.13]
где ηг - гидравлический к.п.д.;
ηм - механический к.п.д.;
ηо - объемный к.п.д.
ηо= 0,89·0,72·0,76=0,48
ηг=
(P - ΣΔΡ)/P (4.3.4.2) [16. с.13]
ηг= (16*1000000 - 1725300)/16*1000000
Механический к.п.д. определяем как произведение механических к.п.д. всех
последовательно соединенных агрегатов, в которых происходит потеря энергии на
трение (насос, распределитель, двигатель):
ηм =
ηм.н·ηм.р·ηм.д
(4.3.4.3) [16. с.13]
ηм = 0,8·1·0,9=0,72
где: ηм.н- механический кпд насоса;
ηм.р- механический кпд распределителя;
ηм.д- механический кпд двигателя.
Объемный к.п.д. гидропривода ηо определяем как произведение объемных
к.п.д. насоса, распределителя и двигателя.
ηо= 0,8·0,98·0,98=0,76
где: ηо.р- объемный к.п.д. распределителя;
ηо.д- объемный к.п.д. двигателя.
.3.5 Выбор силовых гидроцилиндров
При проектировании гидропривода силовые гидроцилиндры выбираем по ГОСТ
6540 - 68, или по ОСТ 12.44.099 - 78.
Выбор гидроцилиндров осуществляем по двум параметрам - величине хода
поршня, которая выбирается конструктивно в соответствии с кинематической
схемой, и внутреннему диаметру, который определяется расчетом.
Если при рабочем ходе поршня жидкость подается в поршневую полость
цилиндра, то внутренний диаметр найдем по формуле:
где: P - усилие на штоке гидроцилиндра, Н;- рабочее давление, Н/м.;
Σh - суммарные потери давления, Н/м.;
ηм.ц- механический кпд гидроцилиндра.
Далее выбираем гидроцилиндр: Ц 40-160-11 ГОСТ 6540-68.
.3.6 Определение объема масляного бака
Выбор емкости масляного бака осуществляется конструктивно в зависимости
от назначения и режима работы гидропривода.
Практикой выработаны рекомендации выбора объема бака в зависимости от
назначения машины и ее температурного режима.
Для ориентировочного расчета можно принять емкость бака Vб по формуле:
б =2·60·Qн (4.3.6.1) [16.
с.14]
б =2·60·2228·0,000001=0,267·4=1,068=1068л
Объем Vб округляем до
стандартного значения 1250 л. ГОСТ 8870-79.
.3.7 Тепловой расчет гидросистемы
Тепловой расчет гидросистемы выполняется для выяснения условий работы
гидропривода, уточнения объема масляного бака, а также выяснения необходимости
применения теплообменников.
Минимальная температура рабочей жидкости равна температуре воздуха
окружающей среды. Максимальная температура определяется в результате теплового
расчета.
Повышение температуры рабочей жидкости, прежде всего, связано с
внутренним трением. Все потери мощности в гидросистеме в конечном счете
превращаются в тепло, которое аккумулируется в жидкости.
Количество тепла, получаемое гидросистемой в единицу времени Qт, Дж/с, соответствует потерянной в
гидроприводе мощности и может быть определено по формуле:
т=(1-ηобщ.)·Nн·Kп (4.3.7.1) [16.
с.14]
где: Nн - мощность,
подводимая к насосу, Вт;
ηобщ. - общий к.п.д. гидропривода;п - коэффициент продолжительности
работы гидропривода под нагрузкой (для ориентировочного расчета можно принять
Kп=0,7).
Максимальная температура рабочей жидкости, которая достигается через один
час после начала работы и не зависит от времени tж, °С, определяется по следующей формуле:
где: tв.макс-
максимальная температура окружающего воздуха, °С;
К - коэффициент теплоотдачи поверхностей гидроагрегатов (К=0,04
кДж/(м.·°С));- суммарная площадь теплоизлучающих поверхностей гидропривода, м.
Суммарную
площадь теплоизлучающих поверхностей гидропривода F, м., можно найти по
следующей эмпирической формуле:
Зная минимальную температуру той климатической зоны, для которой
проектируется машина, и определив максимальную температуру tж, можно установить диапазон
температуры рабочей жидкости в гидросистеме.
Если в результате теплового расчета окажется, что максимальная
установившееся температура превышает 70 °С, то необходимо увеличить объем
масляного бака или предусмотреть в гидросистеме теплообменное устройство.
4.3.8 Расчет на прочность
Рассчитываем усилие на срез сварочного шва
Тср=Q/0,7*К*l (4.3.8.1) [20. с.35]
Где, Q- сила воздействующая на шов- биссектриса шва- длинна шва
Рисунок 4.3. - Эпюра расчета на срез сварочного шва
Рисунок 4.4. - Эпюра расчета на срез сварочного шва
Тср=75000/0,7*0,8*600=22,4мПа
Тср=75000/0,7*6*88=203мПа
.3.9 Расчет на гибкость
.3.10 Усилие на сжатие
Эксплуатировать устройство следует строго по инструкции:
Трактор заезжает на специализированную платформу, после чего
гидравлические цилиндры (домкраты) подстраиваются под раму трактора.
Гидроцилиндры (домкраты) поднимают до упора к раме, после чего закрепляют
трактор на подъемнике через технические отверстия. После проделанных операций
трактор поднимают на нужный уровень, и разбирают сочленение, после чего
раскатывают трактор. Таким образом, как уже говорилось ранее, ремонт сочленения рамы трактора
состоит из большого числа операций. Одна из таких операций , на которую стоит
обратить внимание - это разборка. Необходимо также учитывать, что данная
операция занимает много времени.
Таким образом, чтобы упростить разборку тракторов с сочлененной рамой был
предложен, разработан и рассчитан подъемник для данных тракторов. Подъемник
позволяет экономить время, снижает количество операций и обеспечивает более
устойчивое положение трактора.
5. Безопасность жизнедеятельности
В соответствии с современными представлениями, основной упор на
реализацию требований охраны труда переносится непосредственно на предприятие.
Эта работа может быть выполнена лучше всего, если будет разработана Система
управления охраной труда на данном предприятии. В настоящее время имеется вся
необходимая нормативно-правовая база для осуществления таких разработок.
Требования к системам управления охраной труда изложены в ГОСТ Р 12.0.006-2002.
Такая система может быть оформлена в виде стандарта предприятия. Система может
включать ряд подсистем, перечень которых разрабатывается в процессе работ.
На работе в цехе для ремонта импортной техники большую роль имеет охрана
труда, так как в цехе есть такие вредные факторы как:
· Физические (шум, пыль, вибрации, микроклимат)
· Химические (различные вредные вещества содержащиеся в
технических жидкостях, и выхлопов двигателей)
· Биологические (микробы, споры, микроорганизмы)
Психофизические (Нервные перегрузки, стрессы, утомления)
Анализ состояния охраны труда на предприятии
Цех по ремонту импортной самоходной техники был открыт около года назад в
р.п. Коченево. На данный момент ОАО "Коченевский агроснаб" имеет
инструкции по охране труда, утвержденные исполнительным директором и
согласованные с главным инженером. Данные инструкции разработаны в соответствии
с требованиями ст. 225 Трудового кодекса Российской Федерации, ГОСТ 12.0.004
-90 и во исполнение постановления Минтруда России и Минобразования РФ от
13.01.2003г №1/29 "Об утверждении порядка обучения по охране труда и
проверки знаний требований охраны труда работников организаций".
Согласно данным инструкциям, к работе с сельскохозяйственной техникой
допускаются лица не моложе 18 лет, имеющие соответствующую квалификацию,
получившие как вводный инструктаж и первичный инструктаж на рабочем месте по
охране руда, так и прошедшие проверку знаний. Так же после проведения
первичного инструктажа работникам назначается стажировка (практическое обучение
безопасным приемам и методам труда) в течении 2-14 смен под руководством
инструктора из числа опытных дисциплинированных работников. Слесарь по сборке,
ремонту и техническому обслуживанию сельскохозяйственной техники не реже чем 1
раз в 3 месяца проходит повторный инструктаж по охране труда. Слесарь
-ремонтник проходит повторный инструктаж по охране труда один раз в полугодие.
Также для слесаря-ремонтника ежегодно проводится обучение безопасным приемам и
методам труда с проверкой знаний.
В данном цехе комиссия по проверке знаний требований охраны труда в
составе: председатель - гл. инженер - Литвиненко В.В.; зам. председателя -
специалист - Главчев П.Е.; секретарь - юрист - Визниченко Т.А.; члены комиссии:
начальник производства - Лукьянов Е.А., инженер Техцентра - Тараданов Д.В.,
механик автопарка - Денисенко В.С.
Вся документация по охране туда по данному цеху находится в кабинете у главного
инженера - Литвиненко В.В.
В план мероприятий по охране труда входят повторный инструктаж по охране
труда - 1 раз в 3 месяца или полугода (в зависимости от занимаемой должности),
а так же ежегодное обучение приемам и методам труда с проверкой знаний. Так как
данный цех работает меньше года, то на данный момент трудно говорить о степени
его выполнения.
В связи с тем, что цех работает небольшой промежуток времени, случаи
травматизма и профессиональных заболеваний не было зафиксировано.
На данном этапе развития цеха документация по охране труда разработана
довольно полно. Это доказывает то, что за данный промежуток времени работы цеха
не произошло никаких происшествий. Также стоит подчеркнуть, что сам цех имеет
небольшую площадь и небольшое количество рабочих, что позволяет качественно
подготовить специалиста и отследить его работу.
Анализ пожарной безопасности
Ответственным за пожарную безопасность предприятия назначен главный
инженер - Литвиненко В.В. В период его отсутствия (отпуск, командировка, болезнь)
обязанности лица ответственного за пожарную безопасность предприятия
возлагаются на начальника службы сервиса.
Ответственным за пожарную безопасность (противопожарное состояние) в
складах, выставочных залах, открытых площадках хранения техники, производственных
участках, мастерских, гаражах, административных зданиях, назначены руководители
подразделений, специалисты:
· Склад №1 открытая площадка хранения новой техники ( в т.ч. под козловым
краном) - зав. складом Бугаева Н.П.
· Склад №2 (в т.ч. подтоварник) Куценко ВВ.
· Склад №3 (в т.ч. под козловым краном) Денисенко Н.С.
· Склад ж/б - Медведев А.Н.
· Мастерская, гараж, цех ТНВД, металл. склады, ТОП, подкрановая
площадка - Лукьянов Е.А.
· СТОЖ - Гуров С.М,
· Цех сервисного обслуживания , открытая площадка хранения
готовой к продаже техники, выставочные залы, гараж автопогрузчиков с подсобными
помещениями, аккумуляторная, склад металлический хранения смазочных материалов
- Тараданов Д.В.
· КГНС - Иванов А.М.
· Административное здание, административно-хозяйственное
диспетчерско-информационное - Плотникова Л.В.
· Пожарная безопасность электроустановок - Куриленко В.Н.
Ответственные за пожарную безопасность установлен соответствующий
пожарной опасности противопожарный режим, в т.ч.: определенные оборудованные
места для курения; порядок уборки горючих отходов, промасленной ветоши,
спецодежды; порядок обесточивания помещений в конце рабочего дня, проведения
огневых и сварочных работ.
Ответственные за пожарную безопасность в своей работе руководствуются
инструкциями о мерах пожарной безопасности, обеспечивая строгое и точное
соблюдение противопожарного режима всеми работниками предприятия.
Все ИТР, рабочим и служащим предприятия проходят противопожарный
инструктаж, организацию противопожарного инструктажа и прием зачетов от
работников возлагается на главного инженера.
Для осуществления планов мероприятий пожарной безопасности и спасения при
возникновении ЧС материальных ценностей создано 2 противопожарных звена:
· Торговая база - 5 человек
· Командир звена - Тараданов Д.В.
Члены звена: Ленгутин А.В., Панов А.А., Бобков И.В., Владимиров В.В.
Мастерские - 3 человека
Командир - Лукьянов Е.А.
Члены звена: Кондрюк И.И., Гусенков С.Н.
Из числа ответственных ИТР создана пожарно-техническую комиссию с
правами, обязанностями, изложенными в приложении и в составе 4-х человек
(председатель С.В.Жуков, члены комиссии: гл. инженер Литвиненко В.В., начальник
производства Лукьянов Е.А., инженер Тараданов Д.В.)
Контроль за соблюдением противопожарного режима на объектах Агроснаба проводится
в следующей периодичности:
· в летний период - 1 раз в месяц
· в зимний период - 1 раз в квартал
Все работники должны знать правила пожарной безопасности, соблюдать
исполнение инструкций, начальники подразделений и специалисты должны иметь
специальную подготовку по пожарной безопасности в объеме пожарно-технического
минимума, участвовать в учебно-тренировочных мероприятиях по пожарной
безопасности.
В данном цехе установлены следующие сигналы оповещения о пожаре:
на торговой базе использовать звонок громкого боя, громкоговорящая связь,
удар в рельс, автомобильная сирена.
О пожаре сообщается в ПЧ-62 по телефону 01, 2050-01.
Начальникам подразделений проводится инструктаж по пожарной безопасности,
объясняется действия работников в чрезвычайных ситуациях, вывешивается на
видном месте план эвакуации, инструкции.
О запрещении курения в складах, гаражах, возле территории ТЗП, КГНС, на
потенциально опасном объекте. Курить разрешается в отведенных местах.
Запрещается сжигать мусор, сухую траву.
Сварочные работы проводятся в строго отведенном месте с соблюдением
правил пожарной безопасности. В случае проведения сварочных работ за пределами
сварочного участка оформляются работы наряд-допуском, ограждается место сварки
ширмами, оборудование средствами пожаротушения.
Обращается особое внимание на хранение газовых баллонов и соблюдение
техники безопасности и пожарной безопасности при работе с ними.
Бензовоз оборудован средствами пожаротушения, искрогасителем и
заземляющим проводом. При сливе топлива цистерну заземляют. Стоянка тракторов и
автомобилей в гараже допускается только с выключенной массой.
Сварочные работы по ремонту автомобилей начинаются после выхода автомашин
из гаража на линию и получения наряда допуска.
Рабочее место, место стоянки автомобилей при проведении сварочных работ
ограждается с трех сторон щитами, укомплектовывается средствами пожаротушения,
автомобиль заземляется, необходимо не допускать проведение сварочных работ
техники с баками, наполненными топливом, применять легковоспламеняющиеся жидкости
для мойки узлов и деталей.
Топливные баки ремонтируются сваркой после промывки каустической содой,
продувки паром и тщательного высушивания или путем заполнения бака водой.
Остатки электродов собирать в специальную тару.
Запрещается проведение сварочных работ в выходные дни и нерабочее время.
Запрещается: загромождать проходы, запасные выходы, противопожарные щиты,
пользоваться открытым огне, оставлять без присмотра электроприборы.
После окончания рабочего дня необходимо обесточить осветительные линии,
электроустановки и электрооборудование.
Горючие материалы, отходы. Промасленная ветошь, упаковка должны ежедневно
удаляться из помещения.
Пожарно-технической комиссией проводится обследование всех помещений,
зданий , территорий на предмет противопожарн6ого состояния, составляются
мероприятия по обеспечению пожарной безопасности при проведении технологических
процессов.
Поскольку цех работает меньше года, случаев пожара и возгорания
зафиксировано не было.
Противопожарная служба
Цех оснащен пожарными щитами, на которых имеется огнетушители и другие
средства пожаротушения, такие как топоры ведра лопатки, здание цеха оснащено
громоотводами. Так же к цеху подведен водопровод, предприятие (цех) планируется
оснастить противопожарной сигнализацией, датчиками и дымоуловиелями. Рядом с
предприятием находится пожарная часть. Так же предприятие следует оснастить
пожарными машинами.
Вывод: не смотря на то, что цех работает не продолжительный период
времени, на данный момент, противопожарная система развита довольно не плохо,
это доказывает то, что в цехе по ремонту импортной самоходной техники не было
случаев пожара и возгорания. Однако следует совершенствовать данную
противопожарную систему, так как предприятие развивается.
Экологическая безопасность проекта
Количество выбросов в окружающую среду определяем по
формулам
Количество вредных веществ Вдв , кг/ч (окиси углерода, окислов азота и
альдегидов), выделяющееся при работе двигателя внутреннего сгорания,
определяется по формуле:
В дв= (А1 + Б 1 Vц) (q оt /6000), кг/ч, (5.4.1) [8. с.17]
где А1 и Б 1 - коэффициенты, равные: для карбюраторных двигателей А1=9; Б
1=12; для дизельных А1=160; Б 1=13,5; Vц - рабочий объем цилиндров двигателей,
л; q о - объемная доля вредных веществ в отработанных газах (принимается для
карбюраторных двигателей - окиси углерода 4-6%; для дизельных двигателей -
окиси углерода 0,05-0,07%, окиси азота 0,007-0,009%, альдегидов 0,035-0,050%; t
- время работы двигателя.
Обкатка двигателя
Оксид углерода
В дв= (160 + 13,5 *15) (0,07*3 /6000)= 0,012 кг/ч
Оксид азота
В дв= (160 + 13,5 *15) (0,008*3 /6000)=0,0014 кг/ч
Альдегид
В дв= (160 + 13,5 *15) (0,05*3 /6000)=0,009кг/ч
Транспортные работы
Оксид углерода
В дв= (160 + 13,5 *15) (0,07*0,25 /6000)= 0,001 кг/ч
Оксид азота
В дв= (160 + 13,5 *15) (0,008*0,25 /6000)=0,0001кг/ч
Альдегид
В дв= (160 + 13,5 *15) (0,05*0,25 /6000)=0,0007кг/ч
Таблица 5.1. Количество вредных выбросов в окружающую среду по
технологическим операциям, принятым в дипломном проекте за год
Технологические операции
Марка трактора и рабочий объем
цилиндра V ц
Количество тракторов или
автомобилей n
Время выполнения данной
операции Тчас
Наименование и количество
выбросов в кг
Оксид углерода
Оксид азота
альдегиды
Обкатка двигателей
Buhler Versatile 575 V=15л
39
3
0,012
0,0014
0,009
Транспортные работы
Buhler Versatile 575 V=15л
39
0,25
0,001
0,0001
0,0007
В цехе предусмотрена система вентиляции. Так же все вредные отходы
(отработанные масла и другие технические жидкости) сливаются в специальные
контейнера, после чего увозятся на утилизацию.
Расчет естественного освещения
Зная суммарную площадь световых проемов (14м) можно найти действительное значение коэффициента
естественного освещения можно получить:
где
ΣFо- суммарная площадь окон, м2;
τо- общий коэффициент светопропускания;
r1
- коэффициент, учитывающий свет, отраженный от стен и потолка;
hо- световая
характеристика окон ;п- площадь пола помещения, м2.
Коэффициент
меньше санитарной нормыln=1,0предлагаем увеличить площадь окон.
Расчет
искусственного освещения
При
расчете искусственного освещения необходимо учитывать требования к освещению:
достаточность (соответствие нормам), равномерность, экономичность, приближение
спектра света к естественному, отсутствие теней.
Определяем
число ламп и высоту подвеса светильника - НП из условия равномерности
освещения, используя отношение
НП
/ ℓ = 1,4-1,8 м,
HП/l = 4/2,7=1,5
где ℓ - расстояние между лампами в ряду, м;
НП - высота подвеса светильников при использовании ламп мощностью до 200
Вт принимается равной 2,5-4 м.
ℓ = НП / 1,4-1,8 м=к(L0/l-1) (5.6.1) [8. с. 20]=к(L0/l-1)=2(25,3/2,6-1)=
17шт
Определяем световой поток одной лампы:
K3 = 1,3 ÷1,5;- число ламп;
η - коэффициент использования светового потока,
η = 0,2÷0,6.
По
полученному значению выбираем лампы
накаливания НБ-220-230-60
Расчет
вентиляции
Для
приближенного способа определения необходимого воздухообмена применяют
коэффициент кратности воздухообмена - КВ, который показывает, сколько раз в
течение часа должен меняться в помещении воздух.
Необходимый воздухообмен определяют из выражения
О = КВ× V, м3/ч,
(5.7.1) [8. с.21]
где КВ - коэффициент кратности воздухообмена;
V - объем помещения, м3.О = 5×3965=19825 м3/ч,
Расчет естественной вентиляции
Суммарную площадь вытяжных каналов, проемов определяют из выражения
= WО / 3600 ×V, м2, (5.8.1) [8. с.22]
= 19825/3600 * 0,21 = 1,16
где WО - необходимый воздухообмен, м³/ч. Принимается из выше приведенных
расчетов;- скорость воздушного потока в канале, м/с:
где
μ
- коэффициент, учитывающий сопротивление
воздуха в канале, проеме, μ = 0,5;
Р
- разность давлений в точке забора воздуха внутри и вне помещения, Па:
Р@ 9,8 h (γн - γв), (5.8.3)
[8. с.22]
P@ 9,8 * 6,5 (1,4 -1,2) = 12,7
где h - разность высот между точкой приема воздуха и точкой выброса, м;
γн, γв - плотности наружного и внутреннего
воздуха:
γн = 353 / (273 + tн), (5.8.4) [8.
с.22]
γн = 353 / (273 -20) = 1,4
γв = 353 / (273 + tв), (5.8.5) [8.
с.22]
γв = 353 / (273 + 20) = 1,2
где tн, tв - температура наружного и внутреннего воздуха, °С.
Число вытяжных каналов определяют по формуле
в = S / f, (5.8.9) [8. с.22]
где f - площадь сечения одного вытяжного канала, проема, м2.
Расчет механической вентиляции
Рисунок 5.1 - Схема механической вентиляции
Подбираем диаметры труб (по
мере удаления от вентилятора диаметр трубы уменьшается):т = 0,2÷0,8 м
Определяем необходимый
воздухообмен WО по вышеприведенным формулам и найти производительность
вентилятора Wв:
в = Kз×WО , м3/ч, (5.9.1) [8. с.23]
в = 2 * 19825= 39650 м3/ч
где Kз - коэффициент запаса
(1,3÷2,0).
Рассчитываем потери напора на
прямых участках труб Нпп, Па:
где
ψ
- коэффициент сопротивления (для железных
труб ψт = 0,02);
ℓт
- длина участка трубы, м;
g - плотность воздуха
внутри помещения
g = 353 / (273 + tв), кг/м3ср - скорость
воздуха на данном участке трубы (для труб, примыкающих к вентилятору, 8-12 м/с,
удаленных 1-4 м/с);Т - диаметр трубы, м.
Рассчитать местные потери Нм (Па) напора в переходах, коленах, жалюзи,
используя таблицу 11
где
ψм - местные потери напора
Определяем суммарные потери напора на прямолинейных участках и поворотах,
а также в целом по всей схеме вентиляции:
где
n - число участков прямолинейных и местных сопротивлений;
Нв
- напор вентилятора по всей системе вентиляции.
Зная Нв, Wв , принимая наибольший КПД вентилятора η
= 0,6, определить
безразмерное число А и номер вентилятора Nв на пересечении вертикальной и
горизонтальной линии.
Определяем число оборотов вентилятора
n = A / Nв, об/мин (5.9.5) [8. с.24]
= 1200/6 = 216
Рассчитываем мощность Рдв электродвигателя для вентилятора
где
ηв - КПД вентилятора,
ηв = 0,5÷0,65;
ηп - КПД привода,
ηп = 0,9÷0,95
Безопасность
конструктивной разработки
В
гидравлическом подъемнике не используется электричество.
Подвижные
детали защищены кожухами.
Подъемник
работает очень медленно.
Эксплуатировать
устройство следует строго по инструкции:
Трактор
заезжает на специализированную платформу, после чего гидравлические
цилиндры(домкраты) подстраиваются под раму трактора. Гидроцилиндры (домкраты)
поднимают до упора к раме, после чего закрепляют трактор на подъемнике через
технические отверстия. После проделанных операций трактор поднимают на нужный
уровень, и разбирают сочленение, после чего раскатывают трактор.
Устойчивость
проектируемого объекта в чрезвычайных ситуациях.
В
Коченево имеются такие опасные факторы как: пожары, штормовые предупреждения,
Ч.С. техногенного характера.
В
случае чрезвычайных ситуациях цех снабжен дизельным генератором. Также он
снабжен запасами воды на 2-3 дня, имеются склады с запасными частями,
инструментами и ТСМ. Рядом с цехом имеется медпункт. Так же имеются средства
индивидуальной защиты (ватномарливые повязки, респираторы, защитные очки).
Электрический щит в цехе имеется тумблер который обесточивает все
электроприборы (станки).
6. Экономическая эффективность проекта
Эффективность разработанной конструкции (подъемника) заключается в
экономии: трудозатрат, улучшении качества работ, увеличение уровня механизации,
сокращает время работы.
Для проверки экономической целесообразности проекта ремонтного
предприятия, оценка производственной мощности и эффективности принятых решений,
для сопоставления с существующими предприятиями и нормативами рассчитываются
технико-экономические показатели, а также предлагается планирование, в
частности, составление сметы расходов.
Полная
смета расходов производства ( К
прямым затратам относятся заработная плата основным производственным рабочим ( К
косвенным расходам относятся общепроизводственные ( Рассмотрим
составные части сметы расходов в этой же последовательности.
.1.1
Годовой фонд заработной платы
Годовой
фонд заработной платы основным производственным рабочим с начислениями ( В
состав основной заработной платы входят: плата по тарифным ставкам, окладам,
сдельным расценкам; доплата и надбавки за вредность условий труда, за работу в
ночное и сверхурочное время; премии за перевыполнение плана, экономию
материалов и электроэнергии и др. Основная заработная плата определяется по
формуле:
где
Где
Сi - часовые тарифные ставки, р/ч;- число рабочих, получающих по данной часовой
тарифной ставке, чел;- суммарное число рабочих всех тарифных разрядов, чел.
Дополнительную
заработную плату вычисляют по формуле:
где
Она
включает выплаты за время не отработанное в хозяйстве, но подлежащее оплате
согласно действующему законодательству - оплата очередных отпусков, льготных
часов подростков, оплата за выполнение государственных и общественных
обязанностей, компенсация на неиспользованный отпуск и т.д.
Начисления
на зарплату (Снз) за социальное страхование составляют 4,4% от сумы основной
(Сзп) и дополнительной (Сд) зарплаты:
Стоимость
запчастей определяется как произведение программы ремонта (количество ремонтных
объектов) на стоимость ремонта по элементам затрат.
Стоимость
электроэнергии, топлива, пара, воды и газа для технологических нужд учитывается
по каждому рабочему месту и равна:
Электроэнергия
1кВт - 2,2 р,
Вода
1000 л - 11,37 р,
К
общепроизводственным накладным расходам относятся: затраты на заработную плану
с начислениями: износ и ремонт инструмента, хозинвентарь и спецодежда;
электроэнергия на освещения и топливо для заправки двигателей после ремонта;
вспомогательные и обтирочные материалы; содержание помещения мастерской;
текущий ремонт оборудования, амортизация основных средств; командировки,
изобретательство и рационализацию и др.
В
укрупненных расчетах могут быть приняты в размере 90-150% от заработной платы
основных производственных рабочих с начислениями.
К
общехозяйственным накладным расходам относят заработную плату
административно-управленческому персоналу; канцелярские, типографические и
другие расходы; затраты на текущий ремонт; противопожарные мероприятия;
подготовку кадров и др. общехозяйственные расходы в укрупненных расходах можно
принять для ремонта мастерских 10-15% о сумы прямых и косвенных затрат, т.е. от
себестоимости продукции.
6.1.2 Технико-экономические показатели ремонтного предприятия
Технико-экономические показатели делятся на две группы:
а) исходные показатели
б) производственные показатели
Исходные показателя являются основными величинами, характеризующими
производственную мощность предприятия.
Производственные показатели выражают величины, отнесенные к какой-либо
единице: к одному рублю, к одному рабочему и т.д. Они выводятся на основе
исходных показателей.
Исходные показатели являются основными, к ним относятся:
) Годовой объем работ - 8840,
) Количество работающих:) Всего 10 чел) Производственные
рабочие - 6 чел
) Площадь цеха - 610,5 м2
Годовой расход электроэнергии
Затраты на технологическую энергию (Сэ) подсчитываются по формуле:
Где
Wэ - годовой расход электроэнергии
Годовой
расход электроэнергии определяется по формуле:
Где
Nэ - установленная мощность оборудования по группам, кВтспэ - коэффициент
спроса, kспэ = 0,18
ηэ - коэффициент загрузки оборудования, ηэ = 0,60
Затраты на осветительную электроэнергию определяют из расчета 15Вт-ч на
1м2 площади помещения и плюс 5% на дежурное освещение. Более точно эти затраты
находят по уравнению
Стоимость
основных производственных фондов
Определяется
по формуле:
где
Сзд
- стоимость всех зданий мастерской (самого цеха)
Стоимость оборотных средств
Определяется формулой:
Где,
Сзч - стоимость запасных частей на программу, р
Срм - стоимость ремонта материалов на программу, р
Снп
- стоимость незавершенного производства, р;
Сгп
- стоимость готовой продукции, хранящейся на складе предприятия;
Собр
- стоимость фондов обращения, р. Определяется в размере 20-25% от стоимости
нормируемых оборотных средств (Сноб)
Удельную
прибыль на 1руб. основных производственных фондов ( Уровень
рентабельности ремонтного предприятия определяется по выражению:
Показатель
эффективности капиталовложений:
Где
Сноб - стоимость нормируемых оборотных фондов, р
Оборачиваемость
оборотных средств:
Период оборачиваемости оборотных средств в днях:
Срок
окупаемости капитальных вложений, необходимых для реконструкции ремонтного
предприятия:
Таким
образом, срок окупаемости капиталовложений, необходимых для реконструкции
ремонтного предприятия составляет 5 лет
В этом подразделе произведём расчёт оценок экономической эффективности
внедрения разработанной нами конструкции в производство.
Стоимость конструкторской разработки главным образом определяется
совокупностью затрат на её изготовление и вычисляется по формуле
где
РМ- материальные затраты, руб;
РО-
затраты на оплату труда, руб;
РП-
прочие затраты, руб.
Таблица 6.1. Затраты на материалы и комплектующие детали
Наименование изделий
ГОСТ марка
Кол- во
Цена за единицу р.
Общая стоимость, рублей ГОСТ 8509-93, 8510-93
16
1075
17200
Уголок 1250мм
ГОСТ 8509-93, 8510-93
16
2688
43008
Листовая сталь 6мм 1300/800
ГОСТ 14637
4
2190
8760
Листовая сталь 6мм 288/800
ГОСТ 14637
8
378
3024
Листовая сталь 6мм 288/1300
ГОСТ 14637
4
820
3280
Трубы квадратные H 180
ГОСТ 8639-82
8
723
5784
Трубы квадратные H 150
ГОСТ 8639-82
8
730
5840
Трубы квадратные H 140
ГОСТ 8639-82
8
675
5400
Двутавр3 м
ГОСТ 26020-83
4
16380
65520
Бетонная падушка
ГОСТ 7473-94
1
1000
1000
Железная дорожка 6м
ГОСТ Р 21.1702-96
1
6000
6000
ВСЕГО
159416
Таблица 6.2. Покупные изделия, узлы и агрегаты
Гидроцилиндр
95011-8603010-10А
ГОСТ 6540-64
8
2400
19200
Гидроцилиндр 40-200-11
ГОСТ 18464-87
9
2700
24300
ЖД тележка
ГОСТ 10527-84
1
110000
110000
Насос шестеренчатый НШ
40А-3
ГОСТ 14060-68
1
25000
25000
Распределительзолотниковый
ГОСТ 28988.
1
10000
10000
Армированные шланги
ГОСТ 8752-79.
1
24000
24000
ВСЕГО
212500
.2.1 Расчёт материальных затрат
Материальные затраты представляют собой совокупность стоимостей покупных изделий и стоимостей
израсходованных материалов:
где
СП.И.- стоимость покупных изделий, узлов и агрегатов, руб;
СМ
- стоимость израсходованных материалов, руб.
Суммарную
стоимость покупных изделий, узлов и агрегатов
.2.2
Расчёт затрат на оплату труда
Затраты
на оплату труда включают в себя зарплату рабочих и отчисления на социальные
нужды:
где
ЗОБЩ - зарплата рабочих, занятых на изготовлении конструкции, руб.;
ОСН.
- социальные и налоговые отчисления, руб.
Общая
заработная плата с учётом районного коэффициента определяется по формуле:
где
ЗТ - основная тарифная заработная плата, руб.;
ЗД
- компенсационные доплаты, руб.;
ЗН
- стимулирующие выплаты - надбавки, руб.;
КР
- районный коэффициент.
Для
определения Зобщ в первую очередь необходимо знать основную тарифную заработную
плату
Для
расчёта основной тарифной заработной платы рабочих, занимающихся изготовлением
оригинальных деталей стенда его сборкой и осуществлением монтажных работ,
определим трудоёмкость рассмотренных работ, подберём квалификацию работников
(т. е. разряды), а также среднюю тарифную ставку.
Расчет
трудоемкости на изготовление деталей и сборочных единиц стенда представим
таблично (таблица 6.3).
Таблица
6.3. Расчет трудоемкости на изготовление деталей
Детали
Наименование работ
Кол, шт.
Трудоемкость, чел.-ч.
Бетонная подушка
монтажные
1
3
Плита
сварочные
27
12
Гидроцилиндры в упорах
монтажные
8
6
Телескопические упоры
слесарные
24
4,6
Тавр
сварочные
8
4
Гидроцилиндры на роликовых
транспортерах
сварочные
8
2,7
Железные пути
монтажные
1
7
Итого:
40
Основную тарифную заработную плату рабочих, занятых на изготовлении
конструкции определим таблично (таблица 6.4.) в соответствии с формулой:
где
Т - средняя трудоёмкость отдельных видов работ чел.-ч;
СЧ
- часовая тарифная ставка руб./ч.
Таблица 6.4 - Тарифная заработная плата
Виды работ
Разряд работ
Часовая тарифная ставка СЧ,
руб.
Трудоемкость Т, чел.час.
Стоимость работ ЗТ, руб.
Слесарные
IV
24,0
24
576
Монтажные
III
31,2
16
499,2
сварочные
III
25,6
18,7
478,72
Прочие неучтённые
изготовительно-сборочные работы
II
25,6
2,6
66,56
Итого:
1620,48
В
результате основная тарифная заработная плата рабочих получилась равной: Компенсационные
доплаты на предприятии при штучном производстве обычно достигают 80% от ЗТ:
за
условия труда, отличающихся от нормальных - до 12 %;
за
работу в вечернее и ночное время - до 4%;
за
совмещение профессий - до 6%;
за
расширение зон обслуживания или увеличение объёма работ - до 7%;
за
интенсивность труда - до 12%;
за
ненормированный рабочий день - до 8%;
за
период освоения новых норм трудовых затрат - до 9%;
за
продукцию - до 20%.
В
результате величина компенсационных доплат составит:
Стимулирующие
выплаты - надбавки не превышают 60% от ЗТ.
Применять
следующие надбавки:
за
высокое профессиональное мастерство - до 3%;
за
классность - до 30%;
за
высокие достижения в труде - до 15%;
персональные
надбавки - до 12%.
В
результате величина компенсационных доплат составит:
КР
- районный коэффициент (составляет 20%):
20
% - установлен Правительством РФ для Новосибирска;
Таким
образом:
Отчисления
на социальные нужды или во внебюджетные фонды определяются:
где
КЕН - страховые взносы в государственные внебюджетные фонды (КЕН = 30%) в том
числе: в пенсионные фонды - 22%; медицинское страхование - 5,1%; социальное
страхование 2,9%;
ННС
- страхование от несчастных случаев, начисляющееся для предприятий технического
сервиса, АТП - 1,1%;
В
результате затраты на оплату труда составят:
.2.3
Расчёт прочих затрат
Прочие затраты включают в себя общепроизводственные и общехозяйственные
расходы:
где
РОПР- общепроизводственные расходы, руб;
РОХ
- общехозяйственные расходы, руб.
Общепроизводственные
расходы определяются по формуле:
где Они
складываются из:
затрат
по организации производства;
затрат
на обслуживание и содержание, а также ремонт основных средств;
- амортизационные отчисления;
затрат на мероприятия по охране труда и технику безопасности;
износа малоценных и быстроизнашивающихся предметов для общеотраслевых
целей;
расходов на транспортное обслуживание работ;
затрат на оплату труда с отчислениями на социальные нужды работников
аппарата управления в подразделениях и др.
Общехозяйственные
расходы вычисляются по формуле:
где К
общехозяйственным расходам относят затраты, связанные с управлением и
обслуживанием производства в целом по предприятию:
расходы
на оплату труда административно-управленческого аппарата с отчислениями на
социальные нужды;
конторские,
типографские, почтово-телеграфные расходы;
расходы
на противопожарные мероприятия, охрану труда и технику безопасности (устройство
ограждений, сигналов, вентиляции и т. д.);
расходы
на оплату отпусков молодых специалистов;
расходы
на содержание легкового автотранспорта;
налоги
и сборы и др.
Таким
образом, общепроизводственные расходы составили:
.2.4
Калькуляция затрат
В
результате полученные данные сведём в таблицу 7.5 и произведём суммирование
полученных данных в соответствии с результирующей формулой:
Таблица 6.5. - Калькуляция на изготовление разработанной конструкции
Статьи затрат
Обозначение
Стоимость, руб.
Покупные изделия
СП.И.
212500
Материалы и комплектующие
СМ
159416
Оплата труда рабочих
ЗОБЩ
4472,5
Отчисления на соц. Нужды
ОСН
1391
Общепроизводственные
расходы
РОПР
188890
Общехозяйственные расходы
РОХ
75556
Всего стоимость конструкции
СК
831115
В результате полная стоимость конструктивной разработки составила 831115
руб.
.2.5 Эффективность разработки
Стоимость нашей конструкции составила более 100 МРОТ (10000 рублей).
Следовательно, для нашего предприятия она представляет собой определённый объём
капитальных вложений. Таким образом, возникает необходимость определения её
экономической эффективности и окупаемости.
Таблица 6. - Экономическая эффективность разработки
Характеристики
Работа с предлагаемой
конструкцией
Работа без предлагаемой
конструкцией
Время затраченное на работу
час
3
7-9
Аренда оборудования
-
+ (Аренда крана 1500р/ч)
Средняя з.п. р/ч
900
900
Сумма р.
2700
6300+10500=16800
Ожидаемый объем заказов в
год
15
15
Денежные расходы в год
40500
252000
Экономический эффект
составил р.
211500
Рентабельность
25%
Данная конструкция позволяет экономить время и снижает трудоемкость.
Так как на предприятиях у которых отсутствует кран балка, приходится
вызывать кран.
Аренда крана: 1500р/ч средняя зарплата рабочего 900 р/ч. Приблизительный
объем заказов 15 в год.
В среднем на раскатку трактора уходит 7-9 часов при наличии подъемника
время сокращается до 3 часов.
Экономия времени 7 часов, следовательно что с подъемником в год
экономиться 180000 руб.
Полная стоимость конструктивной разработки составила 1473340,5 руб.
Срок окупаемости:
/211500= 3,9 года.
Предприятие ОАО "Коченевский агроснаб"
занимается продажей и сервисным обслуживанием тракторов импортного
производство. Год назад был в р.п. Коченево был открыт цех по ремонту тракторов
Buhler Versatile.
Проанализировав существующий технический ремонт импортной мобильной
техники в данном цехе, были выявлены следующие недостатки:
. Не производится восстановление поврежденных и изношенных деталей
. Мойка запчастей производится способом, который не допустим по
технике безопасности
. В отдельных случаях узлы и агрегаты разбираются не снимая с
трактора
. Отсутствие отдельного оборудованного помещения для моечных работ
трактора, что является не экологичным.
. Компьютерная система IDS не обладает полными данными об узлах
трактора (автоматическая коробка передач)
На основе анализа современных способов ремонта
тракторов был разработан и предложен технологический процесс восстановления
изношенных деталей, а именно палец и втулка сочленения рамы который представлен
в виде маршрутной карты.
Под данный технологический процесс ремонта было рассчитано и подобрано
оборудование и предлагается специальная планировка участка
Так как самым трудоемким этапом ремонта трактора является
разбор сочленения рамы, то в качестве конструктивной разработки нами было
разработано и предложено устройство для раскатки трактора с сочлененной рамой.
Описание: Трактор заезжает на платформу с установленными на ней плитами
от которых отходят 2 двутавра на которых находятся 4 передвижных гидроцилиндра
(домкрата) которые регулируются по высоте. Подставки с резиновой прокаткой
упираются в раму трактора и поднимают его.
Одной из задач дипломного проекта являлась разработка
мероприятий по технике безопасности при выполнении основных операций ремонта.
Было проведено экономическое обоснование проекта,
которое показало, что себестоимость продукции повысится, но зато улучшится
качество ремонта.
Заключение: применение конструкторской разработки актуально для предприятия.
ремонт производственный трактор импортный
Библиографический список
1. Анфиногенов М.А., Ермаков К.Ф. Проектирование ремонтных
предприятий в сельском хозяйстве/ Новосиб. гос. аграр. ун-т. Инж. ин-т; сост.:
М.А. Анфиногенов, К.Ф. Ермаков. - Новосибирск, 2001 - 124 с.
2. Баранов Е.И. Проблемы и перспективы развития организации текущего
ремонта импортной мобильной техники в АПК Новосибирской области// Материалы III
научно-практической конференции студентов и аспирантов, посвященной памяти
Анфиногенова Михаила Андриановича (11 ноября 2011 г.) / Новосиб. гос. аграр.
ун-т. Инженер. ин-т. - Новосибирск, 2011. - 72 с.
. Бут Г.П. Технологии восстановления деталей машин. Разработка
технологического процесса восстановления детали: метод. указания по выполнению
курс. раб./ Новосиб. гос. аграр. ун-т. Инженер. ин-т; сост. Г.П. Бут. -
Новосибирск, 2007. - 126 с.
4. Варпаков
В.В., Стрельцов В.В.
Технический сервис машин с/х назначения / В.В. Варпаков, В.В.Стрельцов и др. -
М.: "Колос", 2000. - 256 с.
5. Курчаткин В.В., Н.Ф. Тельнов. Надежность и ремонт машин. /В.В.
Курчаткин, Н.Ф. Тельнов и др.; под. ред. В.В Курчаткина. - М.: Колос, 2000. -
776 с.
6. Молодых Н.В., Зенкин А.С. Восстановление деталей машин / Н.В.
Молодых А.С. Зенкин - Москва: "Высшая школа", 1991.
7. Официальный сайт ОАО
"Агроснабтехсервис" [Электрон. ресурс]. -
<http://www.agrosnab-nso.ru/>
8. Патрин В.А., Понуровский В.А. Раздел "Безопасность
жизнедеятельности" в дипломных проектах по инженерным специальностям:
Методическое пособие / Сост.: В.А. Патрин, В.А. Понуровский; /Новосиб. гос.
аграр. ун-т; Инж. ин-т. - Новосибирск, 2012. - 34 с.
. Петров Ю.А. Основы
ремонта машин. / Ю.А. Петров - Москва: "Колос", 1972 - 214 с.
. Селиванова А.И.
Справочная книга по организации ремонта машин в сельском хозяйстве. / под ред.
А.И. Селиванова - Москва: "Колос", 1976 - 46с.
11. Тихоновский
В.В. Технико-экономическая оценка конструкторской разработки дипломного
проекта: метод. указания / Новосиб. гос. аграр. ун-т. Инженер. ин-т; сост. В.В.
Тихоновский. - Новосибирск, 2012. - 12 с.
12. Турьевский
И.С. Техническое обслуживание автомобилей. Ч.2. Организация хранения, ТО и
ремонта а/м. - М.: "Форум" - ИНФА-М, 2007. - 256 с.
13. Турьевский
И.С. Техническое обслуживание автомобилей: Ч.1. ТО и текущий ремонт а/м. - М.:
"Форум" - ИНФА-М, 2007. - 256 с.
14. Ульман И.Е. Ремонт машин/И.Е. Ульман - Москва: "Колос",
1982. - 446 с.
15. Федосьев В.И. Сопротивление материалов / В. И.Федосьев - Москва:
"Наука", 1980
16. Христенко
А.Г., Диденко А.А. Гидравлика. /А.Г. Христенко, А.А. Диденко -Новосиьбир. гос.
аграр. ун-т. Инженер. ин-т - Новосибирск, 2010. - 17с
17. Черноиванов В.И. Организация и технология восстановления деталей
машин / В.И. Черноиванов - Москва: "Агропромиздат", 1989
18. Черноиванов В.И., Горячев С.А. Главные направления организации
технического сервиса импортной сельскохозяйственной техник и / В.И.Черноиванов,
С.А.Горячев // Техника и оборудование для села - 2009. - №5. - 6-9 с.
. Чижов В.Н. Тенденции в развитии технического сервиса
сельскохозяйственной техники: учеб. Пособие / В.Н. Чижов. - Барнаул: Изд-во
Алт. ИПК АПК, 201 - 216 с.
20. Шибков
А.А.Сопротивление материалов: метод. рекомендации по выполнению контрольных
работ / Новосиб. гос. аграр. ун-т. Инженер. ин-т; сост. А.А. Шибков. -
Новосибирск, 2010. - 76 с.
.3 Анализ
современных и перспективных технологий. Методы организации текущего ремонта
тракторов
.4 Анализ
действующих технологических процессов ремонта импортной мобильной техники в ОАО
"Коченевский агроснаб"
1.5
Обоснование и постановка задач проектирования
.1
Обоснование (расчет) объемов производства. Определения необходимого количества
ремонтов
; (2.1.1)
[5. с. 225]
; nтр = 2
; nтр = 8
; nтр = 3
Versatile
485
; nтр = 2
; nтр = 3
. (2.1.2)
[5. с. 227]
чел.-ч;
чел.-ч;Versatile
435
чел.-ч;Versatile
485
чел.-ч;Versatile
575Р
чел.-ч;
.2 Разработка
технологических процессов ремонта импортной мобильной техники в ОАО
"Коченевский агроснаб"
.3 Расчет
потребности в технологическом оборудовании
2.4 Расчет
фонда времени
2.5 Обоснование
состава рабочих и инженерно-технических работников
3. Разработка
технологического процесса ремонта сочленения трактора Buhler Versatile
.1 Анализ
технического состояния объекта и обоснование способов технологических
воздействий
3.3 Разработка
маршрутно-технологического процесса восстановления пальца сочленения рамы
.
(3.3.1) [3. с. 94]
- коэффициент износостойкости;
-
коэффициент выносливости;
-
коэффициент сцепляемости покрытия;
-
поправочный коэффициент, принимается 0,8-0,9.
на первом этапе в качестве предпочтительного выбираем
способ восстановления по варианту 2. По технико-экономическому критерию
окончательное решение принимаем, исходя из оценки по коэффициенту
(3.3.2) [3. с.96.]
- себестоимость восстановления одной изношенной
поверхности детали, руб/шт.
:
.4 Разработка
маршрутно-операционного технологического процесса восстановления пальца
сочленения рамы
.5 Выводы
4. Разработка
конструкции устройства для раскатки трактора с сочлененной рамой
.1 Анализ
известных конструкций

.2
Обоснование предлагаемого варианта конструкции и ее описание
4.3
Обоснование и расчеты технологических и конструктивных параметров устройства
(4.3.1.1)
[16. с.10]
(4.3.1.3)
[16. с.10]
(4.3.1.4)
[16. с.11]
(4.3.2.1)
[16. с.11]
(4.3.2.2)
[16. с.12]
(4.3.3.1)
[16. с.12]
(4.3.3.2) [16. с.12]
(4.3.3.3) [6]
(4.3.3.5)
[16. с.12]
(4.3.5.1)
[16. с.14]
(4.3.7.2)
[16. с.14]
(4.3.7.3)
[16. с.14]
![]()
(4.3.9.1)
[20. с.35]
![]()

Рисунок 4.5.
- эпюра расчета на гибкость
![]()
(4.3.10.1)
[20. с.36]
![]()

Рисунок 4.6.
- эпюра расчета на сжатие
.4 Разработка
технологической инструкции на применение конструктивной разработки устройства
для раскатки тракторов с сочлененной рамой
, (5.5.1)
[8. с. 20]
, лм,
(5.6.2) [8. с. 20]
П -
площадь пола, м2;- коэффициент запаса,
, (5.8.2)
[8. с.22]
, (5.9.2)
[8. с.23]
Па
Па
Па
Па
, (5.9.3)
[8. с.24]
Па
Па
Па
Па
Па
, (5.9.4) [8. с.24]
Па
, кВт,
(5.9.6) [8. с.24]
.1
Определение технико-экономических показателей проектируемой технологии
) равна
сумме прямых (
) и косвенных (
) затрат:
. (6.1.1)
[11. с.5]
), стоимость запасных частей (
), стоимость материалов (
), стоимость энергии (
),
топлива, масла, воды, расходуемых на технологические нужды:
(6.1.2)
[11. с.5]
), общехозяйственные (
) и
внепроизводственные (
) накладные расходы.
. (6.1.3)
[11. с.5]
) состоит из основной (
),
дополнительной (
) и начислений на заработную плату (
), учитывающих расходы по социальному страхованию.
Подсчитывается по следующему выражению
(6.1.1.1) [11. с. 6]
(6.1.1.2) [11. с. 6]
- годовой объем работы, чел-ч;
-
часовая тарифная ставка рабочего среднего разряда, р/ч;
-
коэффициент, учитывающий доплату к основной заработной плате за сверхурочные и
другие работы, равный 1,03-1,04;
(6.1.1.3)
[11. с. 6]
(6.1.1.4)
[11. с. 7]
- процент дополнительной заработной платы от
основной, равный 10-15%.
(6.1.1.5) [11. с. 7]
(6.1.1.6) [11. с. 7]
(6.1.2.1) [11. с. 8]
-
стоимость 1 кВт-ч силовой электроэнергии.
(6.1.2.2) [11. с. 8]
(6.1.2.3) [11.
с. 8]
- коэффициент стоимости оборудования и его монтажа (α=0,65-0,85);
-
коэффициент стоимости инструментов и приспособлений (β=0,06-0,85);
-
коэффициент стоимости инвентаря (γ=0,03-0,05);
(6.1.2.4)
[11. с. 9]
-
стоимость малоценных и быстроизнашивающихся предметов (материалов), равна
15-20%от стоимости запасных частей и ремонтах материалов;
- число
дней производственных запасов (45-90);
- число
календарных дней в году (365-366);
-
стоимость запасов топлива, равна 50-80 р на каждые 100 м2 площади цеха, р;
(6.1.2.5)
[11. с. 9]
-
годовая валовая продукция, р;
-
средняя продолжительность нахождения машины в ремонте, дней (3-12);
-
коэффициент, учитывающий стоимость незавершенного производства по рабочим
местам, kнп=0,45-0,65;
(6.1.2.6)
[11. с. 9]
-
стоимость агрегатов обменного фонда, р., Соф = 10-15% от Сгп;
) подсчитывают по формуле
(6.1.2.7)
[11. с.9]
(6.1.2.8)
[11. с. 9]
.
(6.1.2.9) [11. с. 9]
(6.1.2.10)
[11. с.9]
(6.1.2.11)
[11. с.9]
раз в
год.
(6.1.2.12)
[11. с.9]
(6.1.2.13)
[11. с. 9]
.2
Определение технико-экономических показателей конструкторской разработки
(6.2.1)
[11. с.9]
(6.2.1.1) [11. с. 9]
(6.2.2.1)
[11. с. 9]
(6.2.2.2) [11.
с. 9]
(6.2.2.3)
[11. с. 9]
(6.2.2.4)
[11. с. 10]
(6.2.3.1) [11. с. 10]
(6.2.3.2) [11.
с. 10]
- коэффициент общепроизводственных расходов;
(6.2.3.3) [11. с. 10]
- коэффициент общехозяйственных расходов;
Заключение