Материал: Разработка технологического проекта ремонта тракторов

Внимание! Если размещение файла нарушает Ваши авторские права, то обязательно сообщите нам

Разработка технологического проекта ремонта тракторов

Содержание

Введение

. Анализ производственно-технологической деятельности предприятия

.1 Общая характеристика предприятия ООО "Коченевский агроснаб"

.2 Технологическая характеристика производства. Анализ материально-технической базы ремонтно-технического предприятия

.3 Анализ современных и перспективных технологий. Методы организации текущего ремонта тракторов

.4 Анализ действующих технологических процессов ремонта импортной мобильной техники в ОАО "Коченевский агроснаб"

.5 Обоснование и постановка задач проектирования

. Разработка технологического проекта ремонта тракторов

.1 Обоснование (расчет) объемов производства. Определения необходимого количества ремонтов

.2 Разработка технологических процессов ремонта импортной мобильной техники в ОАО "Коченевский агроснаб"

.3 Расчет потребности в технологическом оборудовании

.4 Расчет фонда времени

.5 Обоснование состава рабочих и инженерно-технических работников

. Разработка технологического процесса ремонта сочленения трактора Buhler Versatile

.1 Анализ технического состояния объекта и обоснование способов технологических воздействий

.2 Анализ существующих технологий процесса ремонта сочленения рамы

.3 Разработка маршрутно-технологического процесса восстановления пальца сочленения рамы

.4 Разработка маршрутно-операционного технологического процесса восстановления пальца сочленения рамы

.5 Выводы

. Разработка конструкции устройства для раскатки трактора с сочлененной рамой

.1 Анализ известных конструкций

.2 Обоснование предлагаемого варианта конструкции и ее описание

.3 Обоснование и расчеты технологических и конструктивных параметров устройства

.3.1 Расчет мощности и подачи насоса. Выбор насоса

.3.2 Расчет трубопроводов

.3.3 Расчет потерь давления в гидросистеме

.3.4 Расчет к.п.д. гидропривода

.3.5 Выбор силовых гидроцилиндров

.3.6 Определение объема масляного бака

.3.7 Тепловой расчет гидросистемы

.3.8 Расчет на прочность

.3.9 Расчет на гибкость

.3.10 Усилие на сжатие

.4 Разработка технологической инструкции на применение конструктивной разработки устройства для раскатки тракторов с сочлененной рамой

.5 Выводы

. Безопасность жизнедеятельности

. Экономическая эффективность проекта

.1 Определение технико-экономических показателей проектируемой технологии

.1.1 Годовой фонд заработной платы

.1.2 Технико-экономические показатели ремонтного предприятия

.2 Определение технико-экономических показателей конструкторской разработки

6.2.1 Расчёт материальных затрат

6.2.2 Расчёт затрат на оплату труда

.2.3 Расчёт прочих затрат

.2.4 Калькуляция затрат

.2.5 Эффективность разработки

Заключение

Библиографический список

Введение

В условиях перехода агропромышленного комплекса страны к рыночным отношениям роль и значимость агротехнического сервиса как новой формы инженерного влияния на повышение производительности сельскохозяйственного труда существенно возрастает. В настоящее время, при отсутствии достаточного опыта в инженерном обеспечении многоукладного сельхозпроизводства, наряду с традиционными мерами, требуется обоснованное построение и находится около 600 единиц импортных сельскохозяйственных машин, что составляет 2,8%. Из них можно выделить общее количество мобильной импортной техники в Новосибирске и Новосибирской области, что составляет 217 единиц. Это в свою очередь 36,2% от общего количества импортной техники в НСО. [2. с. 23]

Стоит обратить внимание, что при организации технического сервиса в нашем регионе можно выделить следующую проблему: у техники проработавшей 7-8 лет заканчивается срок эксплуатации, в связи с чем резко обозначились проблемы отсутствия помещений и мастерских фирменных центров по организации текущего ремонта. Таким образом, зная, что на территории НСО концентрируется немалое количество импортной техники, целесообразно было бы с целью поддержания работоспособности машин организовать качественный текущий ремонт, создать специализированные центры по сбору, восстановлению и изготовлению деталей к импортной технике.

Большую роль играют дилерские центры расположенные на территории Новосибирской области. Это центры предпродажной подготовки, фирменные станции технического обслуживания, машинно-технологические станции (МТС), специализированные ремонтные предприятия, снабженческие организации. Разработаны концепции региональных центров, основанные на принципах организации фирменного сервиса, задачей которых являются сосредоточение высокопроизводительной техники и ее эффективное использование.

Ведущими дилерскими центрами сельскохозяйственной техники в Новосибирске и Новосибирской области являются ООО "ЭкоНива" и ОАО "Агроснабтехсервис", в состав которого входит один из крупнейших дилерских центров импортной сельскохозяйственной техники ООО "Коченевский агроснаб".

Таким образом, оценивая проблему ремонта и обслуживания импортной техники в ближайшее время можно предположить, что она будет обостряться по мере увеличения срока эксплуатации машин. Следовательно, в этих условиях становиться экономически целесообразно:

1.      обеспечить сохранность импортной техники;

2.      уменьшить затраты при возникновении технических неисправностей путем организации качественного ремонта, а также изготовления и восстановление деталей к импортным машинам, как альтернативы дорогим оригинальным запасным частям;

.        создание фирменных мощных сервисных баз и сервисных центров, которые должны обеспечивать:

·        квалифицированное и своевременное техническое обслуживание и диагностику машин, т.е. увеличение срока службы, а следовательно, сокращение денежных затрат;

·        регулярное выполнение ежедневных и плановых технических обслуживаний, применение приспособлений и приборов, обеспечивающих надежную работу импортных машин в периоды между плановыми техническими обслуживаниями;

·        повышение коэффициента технического использования машин, уменьшения числа простоев.

1. Анализ производственно-технологической деятельности предприятия

Состояние вопроса ремонта импортной мобильной техники в НСО

Как уже говорилось выше, ведущими дилерскими центрами сельскохозяйственной техники в Новосибирске и Новосибирской области являются ООО "ЭкоНива" и ОАО "Агроснабтехсервис", в состав которого входит один из крупнейших дилерских центров импортной сельскохозяйственной техники ООО "Коченевский агроснаб".

В последние годы многие предприятия агропромышленного комплекса все шире стали использовать и приобретать сельскохозяйственную технику импортного производства, так как импортная техника часто превосходит отечественные аналоги по следующим показателям: надежность, экономичность, комфортность, удобство управления, отрицательное воздействие на почву и окружающую среду, следовательно, спрос на такую технику неуклонно растет.

В тоже время на территории Новосибирской области практически отсутствуют специализированные предприятия по ремонту и обслуживанию импортной сельскохозяйственной мобильной техники.

На наш взгляд, стоит подчеркнуть, что государство уделяет больше внимания предприятиям, которые занимаются ремонтом тяжелой, промышленной и дорожной техники, например такие сервисные центры как Caterpillar, занимающиеся ремонтом и восстановлением компонентов, где проводится диагностика и капитальный ремонт двигателей и гидравлических трансмиссий. В то время как агропромышленному комплексу не уделяется должного внимания, а именно обеспечению мощными базами для ремонта и обслуживания импортной сельскохозяйственной техники. Так как политика обслуживания потребителя в современной России построена в первую очередь на получении дохода и прибыли, организациям выгодней продавать новые запчасти, чем организовывать сложный технический сервис.

Таким образом, было принято решение об открытии цеха по ремонту импортной мобильной техники в ОАО "Коченевский агроснаб".

.1 Общая характеристика предприятия ООО "Коченевский агроснаб"


Общество с ограниченной ответственностью ООО "Коченевский агроснаб" находится в городе Новосибирске на ул. Фабричная, 14 и представляет собой общество предоставляющее услуги по продажам и техническому обслуживании импортной сельскохозяйственной техники.

История компании началась в 2006 г., когда "Коченевский агроснаб" совместно с компанией "Агроснабтехсервис" одними из первых в Новосибирской области включились в программу модернизации технического парка агропромышленного комплекса и занялся поставками в регион импортной с/х техники.

В настоящее время ООО "Коченевский агроснаб" поставляет хозяйствам НСО и смежных регионов передовую сельскохозяйственную технику импортного производства и обеспечивает ее сервисное обслуживание. ООО "Коченевский агроснаб" является дилером таких зарубежных марок как VERSATILE, GREGOIRE-BESSON, GRIMME, PETKUS,ASA-LIFT, АГРОТЕХМАШ, HORSH-АГРОСОЮЗ (Украина).

В деятельности ООО "Коченевского агроснаба" можно выделить следующие направления:

·    торгово-посредническая;

·        сбытовая;

·        проведение сервисное, гарантийное, предпродажное техническое обслуживание сельскохозяйственной техники;

·        досборка поступающих от поставщиков сельскохозяйственных машин;

·        экспортно-импортные операции и иные внешнеэкономические действия в соответствии с действующим законодательством.

Стоит отметить, что за небольшой промежуток времени на предприятия подобран сплоченный коллектив работников, действует система подготовки и молодых специалистов, в основном выпускников ФГУ ВПО "Новосибирский Государственный Аграрный Университет". Этим объясняется относительно молодой средний возраст персонала организации.

По возрастному составу можно отметить следующее: средний возраст работников - 24-36 лет. Эти люди находятся в стадии профессионализма. У них имеется практический опыт в трудовой деятельности, происходит рост квалификации. Поэтому можно сделать вывод о наличии профессионального опыта, о возможности дальнейшего развития.

Кроме возрастной структуры персонала интересным представляется анализ профессиональной подготовки кадров предприятия. Профессиональный уровень персонала достаточно высокий, преобладает персонал с высшим и средне - специальным образованием. Это связано с тем, что в компании работает большое количество торговых представителей, для которых имеет большое значение профессиональный опыт.

Рисунок 1.1 - Структура управления предприятием ООО "Коченевский агроснаб"

Техника, поставляемая компанией ООО "Коченевский агроснаб" находится и обсуживается в цехе для ремонта импортной техники, который находится на территории ОАО "Коченевский агроснаб". Коченевский технический центр является единственной межрегиональной базой за Уралом

В агропромышленном комплексе НСО деятельность ОАО "Коченевский агроснаб" направлена на обеспечение сельхозтоваропроизводителей области услугами технического сервиса.

Основной производственно-хозяйственной деятельности общества является:

·        Переработка грузов, включая внутри складские работы

·        Оказание услуг по техническому сервису и обслуживанию с/машин, тракторов и оборудования животноводческих ферм

·        транспортные услуги

·        производство продукции технического назначения и народного потребления

·        выполнение иных работ и оказания услуг.

Рисунок 1.2- Структура управления предприятием ОАО "Коченевский агроснаб"

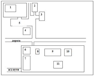
Общая площадь ОАО "Коченевского агроснаба" (Рисунок 1.3) составляет 22000 м2, из этой площади 12000 м2 занимают открытые склады для хранения техники, 300 м2 площадки с навесами для хранения комбайнов, 8000 м2 закрытых складов для хранения запчастей и комплектующих. Имеются помещения для проведения технического обслуживания машин, а также их диагностирования. Технический центр имеет железнодорожные подъездные пути, что обеспечивает удобную поставку техники и запасных частей. Все склады и площадки имеют ограждения и находятся под охраной.

Рисунок 1.3 - План территории ОАО "Коченевский агроснаб"

1.      Цех для ремонта импортной мобильной техники

2.      Т.О.П.

.        Бизнес центр

.        Главный офис

.        Стоянка автотранспорта

.        Магазин

.        Учебный класс цех досборки

.        КПП

.        Складское помещение

.        Межрегиональный выставочный склад

.        Лизинговая

Как уже говорилось ранее, ОАО "Коченевский агроснаб" поставляет и обслуживает импортную технику. Но поскольку цех открылся только год назад, в нем в основном производится ремонт импортных тракторов. Всего в НСО импортных тракторов находится 217 единиц. На открытых складах для хранения техники размещается с/х техника: трактора производства: John Deere, New Holland, Buhler и др. На территории НСО John Deere находится 87 единиц, в то время как New Holland - 16 единиц, Buhler VERSATILE - 39 единиц, а остальных - 75 единиц. Что видно на рисунке 1.4.

Рисунок 1.4. - Количество импортной мобильной техники в НСО на 2011г.

марка канадских тракторов, ведущая свою историю с 1966 года. За годы работы они зарекомендовали себя мощными, экономичными и универсальными сельхозмашинами.


Линейка тракторов VERSATILE включает в себя три серии мощностью от 190 до 535 л.с. Это производительные, простые в обслуживании и экономичные машины, которые эффективны в широком спектре сельхоз работ, как традиционных, так и ресурсосберегающих. Наиболее популярная серия в НСО это VERSATILE 2000. На территории НСО их насчитывается 21 шт. (Рисунок 1.6)

Рисунок 1.6-Модельный ряд Buhler VERSATILE

Трактора New Holland преимущественно в НСО имеют серии Т7000, Т8000 и Т9000, предназначенные для широкого спектра сельскохозяйственных работ.

Отличительными особенностями тракторов New Holland являются повышенная производительность и мощность двигателя, экономичный расход топлива, максимальная производительность гидравлики. Наиболее востребованными в НСО является серия Т9000, модельный ряд которой, представлен следующими моделями: Т 9040, Т9030, Т9060, Т9050, ТL 9050.

Трактора New Holland серии Т9000 оснащены шарнирно-сочлененной рамой. Тяжелые трактора серии T9000 изготавливают в США. Для них характерно обладание внушительным запасом крутящего момента современных и экономичных турбодизельных двигателей, мощная трансмиссия, 12 из 16 передач которой находятся в полевом диапазоне рабочих скоростей. Модели этой серии оснащены большими неразрезными мостами, увеличенной колесной базой. (Рисунок 1.8)

Рисунок 1.8. - Модельный ряд New Holland

Трактора John Deer в НСО имеют следующие сери: 9030, 9020, 7030, 8030, 5020, 5925 и 7020. Наиболее востребованной является серия 902. Модельный ряд данной серии: 9420, 9620, 9320, 9520, 9520Т.