Материал: Разработка проекта газоснабжения поселка городского типа от шкафного регуляторного пункта (ШРП) в Калининградской области природным газом

Внимание! Если размещение файла нарушает Ваши авторские права, то обязательно сообщите нам

nв - число вводов;

Нср - средняя глубина траншей на этих участках, в м.

l=0,5*14=7 м;

Vвр= 0,75*1,32*7= 6,93 м3.

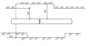
В местах сварки неповоротных стыков (стыков в траншее) расширить траншеи для удобства работы сварщика.

На участках, где рытье траншей производиться вручную, рытье приямков для сварщика также производится вручную. Там, где рытье траншей производиться экскаватором или вручную. В данном проекте прием, что этиработы производятся вручную.

Объем работ при рытье приямков учитывается, как дополнительный к подсчитанному объему земляных работ.

Размеры должны соответствовать данному чертежу:













Рисунок 2.1 - Приямок с неповоротным стыком

Vпр = ((Øн+1,2)*0,7 + (Øн+1,2-а)*Нср)*lпр(2.52

Где: lпр =1м.

Vпр = ((0,09+1,2)*0,7 + (0,09+1,2-0,75)*1,32)*1 = 1,61м3.

Полученный по формуле объем данного приямка умножается на число приямков и прибавляется соответственно к объему земляных работ, выполненных вручную, м3:

ΣVnр=Vпр*n(2.53)

Где:- число приямков (по монтажной схеме сварных стыков).

ΣVnр=1,61*23=37,03 м3.

Таким образом, общий объем земляных работ при рытье траншей вручную составит:

ΣVвр= ΣVпр+Vвр(2.54)

ΣVвр= 37,03+6,77= 43,8м3.

2.5.2.2 Подсчет объемов работ по рытью траншеи экскаватором

Производится по профилям и ведется в табличной форме.

Таблица 2.4 - Объем земляных работ по рытью траншей экскаватором

№ пикета

Глубина траншеи, Н, м

Ширина траншеи, а, м

Площадь сечения траншеи по пикету, F=a*H, м2

Номер участка, Nуч

Длина участка, L уч , м

Объём разрабатыва- емого грунта, Vэкс=(F1*F2)//2*Lуч

Примечание

1

2

3

4

5

6

7

8

ПК0

1,29

0,75

0,96

1

7,6

3,5

 

ПК0+76,54

1,29

0,75

0,96





ПК0+76,54

1,29

0,75

0,96

2

2,4

1,1

 

ПК1

1,29

0,75

0,96





ПК1

1,29

0,75

0,96

3

3,7

1,7

 

ПК1+36,95

1,29

0,75

0,96





ПК1+36,95

1,29

0,75

0,96

4

2,2

1,18

 

ПК1+58,72

1,49

0,75

1,12





ПК1+58,72

1,49

0,75

1,12

5

3,1

1,6

 

ПК1+89,48

1,29

0,75

0,96





ПК1+89,48

1,29

0,75

0,96

6

1,1

0,5

 

ПК2

1,29

0,75

0,96





ПК2

1,29

0,75

0,96

7

5,9

2,7

 

ПК2+59,81

1,29

0,75

0,96





ПК2+59,81

1,29

0,75

0,96

8

4,02

1,8

 

ПК3

1,29

0,75

0,96





ПК3

1,29

0,75

0,96

9

8,2

3,77

 

ПК3+81,63

1,29

0,75

0,96





ПК3+81,63

1,29

0,75

0,96

10

1,8

0,96

 

ПК4

1,49

0,75

1,12





ПК4

1,49

0,75

1,12

11

3,3

1,77

 

ПК4+33,32

1,29

0,75

0,96





ПК4+33,32

1,29

0,75

0,96

12

0,8

0,36

 

ПК4+42,35

1,29

0,75

0,96









44,12

20,94



Проверка:

Vэкс=a*Нср* ΣLуч(2.55)

Vэкс = 0,75*1,32*44,12 = 43,67м3

Объем работ на участках неучтенных профилем определяется по формуле:

Vн.п = а*Нср* Σlн.п.(2.56)

Vн.п.=0,75*1,32*65,7=65,04 м3.

Общая суммарная длина трассы газопровода составит:

Σlобщ= ΣLуч +Σlн.п.(2.57)

Σlобщ = 44,12+65,7=109,82 м.

Общий суммарный объем по рытью траншеи экскаватором:

ΣVобщ.экс = ΣVэкс+ ΣVн.п(2.58)

ΣVобщ.экс = 20,94+65,04=85,98 м3.

2.5.3 Объем работ по присыпке газопроводов и устройство постели

После укладки газопроводов в траншею устраивается постель, а после испытания газопровода на прочность его присыпают вручную мягким грунтом на 20-30 см. выше верха трубы и тщательно трамбуют.

Объем работ по присыпке:

Vприс=[a*(Øcp. н.+0,25)-(π*Øcp2/4)]*l(2.59)

Где:

а - ширина траншеи, м;

Øcp н-средний диаметр газопровода, м;

Π*Øcp2/4 - площадь сечения газопровода, м2;

l - длина трассы газопровода, м.

Vприс=[0,75(0,063+0,25)-(3,14*(0,063)2/4)]*109,82 = 25,4м3

Объем присыпки с учетом коэффициента остаточного разрыхления:

V’прис= Vприс*(100-Ко) / 100(2.60)

Где: Ко - коэффициент остаточного разрыхления, %;

Ко выбираем по ЕНиР, сборник 2-1, приложение 2.

V’прис=25,4*(100-5)/100=24,13м3.

Объем излишнего грунта (подлежит вывозу с трассы):

Qо =Q-((Q-q)/(1+Ко))(2.61)

Где:

Qо- Объем вывозимого с трассы грунта, м3;

Q - объем выемки, м3.

Q=ΣVвр +ΣVэкс +ΣVпер(2.62)

Q=43,57+20,94+36,8=101,31

Ко - коэффициент остаточного разрыхления (в долях единиц);

q - объем занимаемый трубой, м3.

q = (π*Øн2/4)* Σlобщ(2.63)

Где: Σlобщ- общая суммарная длина трассы газопровода, м.=(3,14*(0,063)2/4) * 1190,42 = 3,71м3;

Qо=101,31 - (101,31-3,71)/(1+0,07) = 10,09м3.

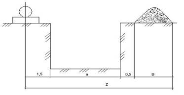
Грунт, используемый для обратной засыпки, остается на бровке траншеи. Минимальная ширина рабочей зоны зависит от объема и размеров отвала грунта, которые выбираются по схеме рис. 37 и табл. 45, стр. 140 А.Г.Яковлев и А.А.Блоштейн «Организация строительства городских газовых сетей и устройств».

Рисунок 2.2 - Рабочая зона

Минимальная ширина рабочей зоны:

Z=1,5+а+0,5+В+(0,3/0,5) (2.64)

Где: а - ширина траншеи, м;

в - ширина отвала грунта, м.

Z = 1,5+0,75+0,5+1,25+0,5 = 4,5 м.

2.5.4 Объем работ по засыпке газопровода

Окончательная засыпка траншеи по всей длине производится бульдозером грунтом, вынутым из траншей. Объем работ при засыпке бульдозером:

Vзас.бульд.=Q-Vприс(2.65)

Vзас.бульд=101,31-24,13=77,18м3.

Объем засыпки бульдозером с учетом коэффициента остаточного разрыхления:

V’зас.бульд=Vзас.бульд*(100-Ко)/100(2.66)

V’зас.бульд=77,18*(100*5)/100=385,9м3.

2.5.5 Объем сварочных работ

По монтажной схеме сварных стыков подсчитывается количество стыков (поворотных и неповоротных) по каждому диаметру труб.

Количество полиэтиленовых стыков подземного газопровода:

Баранов А.В. маркировка на стыках («Б1»)сварил 10 стыков.

Вахрудинов С.М. маркировка на стыках («В1») сварил 21 стыков.

Алибеков А.К. маркировка на стыках («А1») сварил 17 стыков.

Таблица 2.5 - Сварочные работы на полиэтиленовом газопроводе

Диаметр труб, мм

Поворотные стыки (сварка на бровке траншеи)

Неповоротные стыки (сварка в траншее)

Муфты

Седелки

Тройники

Ø90*8,2

1

2

1

-

2

Ø63*5,8

11

13

11

7

6

Σ

12

15

12

7

8


2.5.6 Ведомость объемов строительно-монтажных работ

Подготовительные и основные работы отражаются в ведомости.

Таблица 2.7 - Ведомость объемов строительно-монтажных работ

№ п/п

Наименование работ

Ед. изм.

Кол-во

Формула подсчета

Примечание

1

2

3

4

5

6

1

Наружная сеть





1.1

Подготовительные работы





1.1.1

Вскрытие и разработка асфальтного покрытия

м2

9,08

2.47


1.1.2

Вскрытие подземных коммуникация вручную

м3

16,83

2.49


1.1.3

Подвеска скрытых подземных коммуникаций:

шт



по генплану, профилю

1.2

Земляные работы





1.2.1

Рытье траншеи экскаватором с обратной лопатой Э2515

м3

195,24



1.2.2

Рытье траншеи и приямков вручную

м3

43,8

2.54


1.3

Монтажные работы





1.3.1

Сварка на бровке траншеи: Ø90*8,2 Ø63*5,8

шт

 1 11

 

1.3.2

Сварка в траншее: Ø90*8,2 Ø63*5,8

шт

 2 13


по таблице 2.5

1.3.4

Укладка труб в траншеи с помощью автокранов: Ø90*8,2 Ø63*5,8

п.м

 13,5 93,4


по генплану

1.3.5

Монтаж КС

шт

2


По генплану, по профилю

1.3.6

Монтаж контрольных трубок

шт

4


По генплану, по профилю

1.3.7

Монтаж ковера

шт

10


По генплану

1.3.8

Монтаж шарового крана

шт

1


По генплану

1.3.9

Монтаж кранов на вводах в здание Ду50

шт

14


По генплану

1.3.10

Монтаж ввода в здание 57*3,5

п.м.

53,15

Lввода=2+H0+1,5

По генплану

1.3.11

Испытание сети на прочность Ø90*8,2 Ø63*5,8

п.м.

 13,5 93,4


По генплану

1.3.12

Изоляция стыков Ø57*3,5

шт

 14


По таблице 2.6

Продолжение таблицы 2.7

1

2

3

4

5

6

1.3.13

Испытание сети на плотность Ø90*8,2 Ø63*5,8

п.м

 13,5 93,4


По генплану

1.4

Заключительные работы





1.4.1

Снятие подвесок: Водопровод конализация

 шт

4 2


По генплану, по профилю

1.4.2

Присыпка газ-да мягким грунтом и устройство постели

м2

24,13

2.60


1.4.3

Разработка пешеходных мостов

шт



По генплану

1.4.4

Разработка переездных мостов

шт



По генплану

1.4.5

Засыпка газ-да бульдозером типа ДЗ-42П

м3

385,9

2.66


1.4.6

Вывоз лишнего грунта самосвалом с трассы

м3

3,71

2.63



2.6 Выбор машин и механизмов

2.6.1 Подбор сварочного аппарата

Для сварки поворотных и неповоротных стыков выбираем сварочный агрегат Барбара USB Компакт.

Характеристика сварочного агрегата:

) Тип электромуфтового сварочного аппарата - Моноблок Поливалентный Штрих-код;

) Напряжение питания - 230 В, 50-60 Гц;

) Напряжение на выходе 8 - 44 В;

) Мощность (максимальная) - 3000 VA - 80 Amps;

) Рабочая температура наружного воздуха - от -15оС до +45оС;

) Защита - IP54;

) Размеры - 35 х 23 х 16 см;

) Вес -20 кг.

Все неразъемные соединения полиэтилен-сталь выполняются электродуговой дуговой сваркой универсальным профессиональным инвертором СварогTIG 160 AC/DC (R57).

Основные характеристики:

Напряжение питающей сети, В: 187-255;

Частота питающей сети, Гц: 50/60

ПВ,%: 60;

Диапазон регулирования сварочного тока, А: 10-160;

Потребляемая мощность, кВА: 3,3;

Напряжение холостого хода, В:45;

Габаритные размеры, мм: 480*240*330;

Вес, кг: 19

2.6.2 Подбор аппарата для пневматических испытаний

Для испытания газопроводов на герметичность подбираем компрессорную станцию, способную создать давление в 2000 мм.в.ст. Выбираем станцию Yanmar 3IRH2N5, так как она подходит по своим характеристикам.

Характеристика компрессорной станции:

1)      Марка станции - Yanmar 3IRH2N5;

2)      Рабочее давление сжатого воздуха - 700 кПа;

3)      Производительность по всасываемому воздуху - 2,5м3/мин;

)        Двигатель:

а) марка - DOOSAN 7/26E;

б) мощность - 21.2кВт;

) масса - 0,57 т.

2.6.3 Подбор агрегата для уплотнения грунта

После укладки газопровода в траншею он должен быть засыпан грунтом, который был вынут, при раскопке траншеи. Для того чтобы земля в месте укладки не просела со временем грунт необходимо трамбовать. Для этой цели используются специальные трамбовочные машины. Толщина уплотняемого слоя не должна превышать 15 - 20 см, так как при большей толщине есть вероятность повреждения газопровода. При заданных параметрах была выбрана трамбовочная машина CPBH7-IA BATMATIC.

Характеристика трамбовки:

1)      Тип трамбовки - CPBH7-IA BATMATIC;

2)      Толщина уплотняемого слоя - 15-20см;

)        Производительность - 3-4 м3/мин;

)        Расход воздуха - 2 м3/мин;

)        Рабочее давление - 0,6 МПа;

) Вес - 79 кг;

2.6.4 Подбор крана

Для укладки секции, одиночных труб, монтажа запорной арматуры, конденсатосборников выбираем строповые автомобильные краны.

Краны выбираются по грузоподъемности с учетом максимального радиуса действия крюка.

При определении грузоподъемности автокрана вес плети равномерно распределяют на 2 монтажных крана. Вес плети составит:

P=m*l(2.67)

Где:

m - масса одного погонного метра изолированной трубы, кг;

l-длина плети, м.

Вес одного погонного метра трубы составляет:

Ø90 - 2,12кг;

Ø63 - 1,05 кг.

Р=2,12*13,5+1,05*93,4 = 126,7 кг = 0,1267т.

Находим необходимую грузоподъемность крана с учетом коэффициента запаса:

Q=(P/2)*К(2.68)

Где: К - коэффициент запаса, К=6-10;

Q = (0,1267/2) * 8=0,51т.

Рисунок 2.3 - Рабочая зона крана

Определяем радиус действия крюка крана:

R=(а/2)+b1+b2+0,5 +1,0 +1,3+(b3/2)(2.69)

Где:

b1=1,5м;

b2-наружный диаметр с изоляцией, м;

b3 - ширина автокрана, м;

Проверяем возможность применения автокрана HINORANGER, максимальный вылет стрелы крана составляет 21 м.

Максимальная грузоподъемность составляет 5т, что больше требуемого:

R=(0,75/2)+1,5+0,09+0,5 +1,0 +1,3+(2,6/2) = 6,06м.

Характеристика автокрана:

1)      Грузоподъемность:

а) на выносных опорах - 5 т;

б) Без выносных опор - 2 т;

2)      Длина стрелы:

а) основной - 5,3 м;

б) удлиненной - 21 м;

3)      Шасси FD3WDA;

4)      Двигатель:

а) марка - HINO;

б) мощность - 121 кВт;

5)      Габаритные размеры:

а) длина - 8000 мм;

б) ширина - 2600 мм;

в) высота - 3350 мм.

2.6.5 Подбор бульдозера

Согласно объёму работ в пункте 2.5.4 подбираем бульдозер с поворотным ножом (отвалом)

Характеристика бульдозера:

1)      Тип ДЗ-42П;

2)      Тип отвала поворотный;

)        Длина отвала 2,8 м;

)        Высота отвала 0,9 м;

)        Управление гидравлическое;

)        Марка трактора Д75Д;

)        Двигатель А-41.

Итак, для производства работ выбираем следующие машины и механизмы: экскаватор для рытья траншеи одноковшовый с обратной лопатой Э2515. Для сварки поворотных и неповоротных стыков выбираем сварочный агрегат Барбара USB Компакт.Все неразъемные соединения полиэтилен-сталь выполняются электродуговой дуговой сваркой универсальным

профессиональным инвертором СварогTIG 160 AC/DC (R57).Для испытания газопроводов на герметичность подбираем компрессорную станцию, способную создать давление в 2000 мм.в.ст. Выбираем станцию Yanmar 3IRH2N5, так как она подходит по своим характеристикам.Для уплотнения грунта выбираем трамбовочную машинуCPBH7-IA BATMATIC.Для укладки секции, одиночных труб, монтажа запорной арматуры, конденсатосборников выбираем строповые автомобильные краныHINORANGER. Максимальный вылет стрелы крана составляет 21 м.Подбираем бульдозер с поворотным ножом (отвалом) ДЗ-42П.

2.7 Определение расходов газа на технологические нужды при продувке и ремонтных работах систем газоснабжения

Расходы газа на проведение регламентных (плановых) работ, предусмотренных действующими в Российской Федерации нормативно- техническими документами по газоснабжению:

продувка газом газопроводов и оборудования при вводе в эксплуатацию (в т. ч. и повторном после текущего и капитального ремонтов) наружных и

внутренних газопроводов, ГРП, ШРП, ГРУ, внутридомового газового оборудования, газифицированных котельных, технологического оборудования ГНС, АГЗС, групповых резервуарных и баллонных установок;