- режущие инструменты: токарные резцы, свёрла, деревянные бруски для полирования;
- средства измерения: биениемер;
- рабочие-станочники высокой квалификации;
- специальная технологическая оснастка
- сборный долбежный резец для долбежных станков с ЧПУ, состоящий из:
- твердосплавной вставки;
- державки с рифлёным пазом;
- разрезного адаптера.
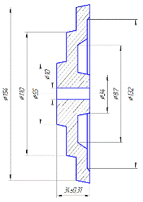
3.1.1 Описание конструкции и назначение детали
Деталь - «шкив», тело вращения с тремя ступенями
и сквозным центральным отверстиями со шпоночным пазом, тремя ручьями круглого
сечения и сквозными отверстиями по торцам, равномерно распределенными по
окружности. Имеются точные поверхности. В сборке представляет собой деталь,
которая необходима для передачи вращательного момента на шпиндель установки. На
валу привода шкив фиксируется при помощи шпонки. Шкив изготовлен из материала
Д16Т (дюралюминий, сплав алюминия с магнием и медью), химический состав
которого приведён в таблице 2, механические свойства в таблице 3.
Таблица 2 - Химический состав в % материала Д16Т (ГОСТ 4784-97.)
|
Al |
Si |
Mn |
Cr |
Ti |
Fe |
Cu |
Mg |
Zn |
|
90,9-94,7 |
до 0,5 |
0,3-0,9 |
до 0,1 |
до 0,15 |
До 0,5 |
3,8-4,9 |
1,2-1,8 |
до 0,25 |
Таблица 3 - Механические свойства сплава Д16Т
|
Состояние поставки, режим термообработки |
σ0,2 (МПа) |
σв(МПа) |
δ5 (%) |
KCU (кДж / м2) |
HB |
|
Закалка и старение |
300 |
440 |
20,0 |
250 |
105 |
Сплав Д16Т имеет лучшие технологические свойства, чем конструкционные и легированные стали. Закалка производится для улучшения механических и технологических свойств материала.
Возможна замена дюралюминия другими сплавами на
основе алюминия: АЛ8, АЛ26, АК5М7, а также различными пластмассами.
3.1.2 Технологический контроль чертежа детали
Чертеж содержит всю необходимую информацию для технологического проектирования. В соответствии с требованиями ЕСКД.
Изображение конструкции детали адекватно.
Изначальный материал детали (сплав АЛ2) заменен на сплав Д16Т.
Конструкторский чертёж выполнен на А3 1:1 другие масштабы дают искаженно представление.
На рабочем чертеже обрабатываемой детали указана недопустимо низкое значения шероховатости.
Вносим в чертёж все необходимые дополнения, дающие полное представление о детали.
После внесения дополнений на чертеже находятся
все проекции, разрезы, совершенно чётко и однозначно поясняющие её конфигурацию
и вероятные виды производства заготовки. В чертеже обозначены все параметры с
нужными отклонениями, необходимая шероховатость и точность обрабатываемых
поверхностей. Чертёж имеет всю нужную информацию о материале детали. Рабочий
чертеж отвечает актуальным на данный момент стандартам.
3.1.3 Анализ технологичности конструкции детали
Главной задачей исследования является проработка технологичности конструкции обрабатываемой детали, уменьшение трудоёмкости, вероятность обработки высокопроизводительными методами.
Проведенный анализ показал:
Материал, из которого сделана деталь - сплав Д16Т, легко обрабатывается лезвийными инструментами, требуется закалка и старение, невозможна шлифовка, для обеспечения заданной шероховатости необходимо полирование.
Деталь - шкив. Форма поверхностей: цилиндрические, конические, ручьи круглого сечения.
Конструкция нежесткая.
Для контроля требуется высококачественные средства измерения.
Необходима полировка для обеспечения необходимых требований по точности и шероховатости.
Поскольку годовой проект выпуска нужной детали довольно мал (мелкосерийное производство при выпуске годовом 20 - 50 шт.), то будет лучше использование методов высокопроизводительных обработки. Особенно, применение токарных станков с ЧПУ, долбежных станков с ЧПУ, сверлильных станков с ЧПУ, полировальных станков.
Для обработки шпоночного паза применяется сборный долбежный резец для долбёжных станков с ЧПУ.
В целом деталь технологична.
3.1.4 Выбор способа изготовления заготовки
Выбор заготовки связан с исходными комплексами.
При выборе заготовки учитывается: материал, возможные изменения материала на другой, формы поверхностей, размеры и их соотношение, жёсткость детали, тип производства, точность детали, требуемая точность заготовки, наличие в действующем производстве необходимого оборудования, а вдобавок экономичностью изготовления. Варианты заготовок, это 1, 2-х, 3-х ступенчатые с центральным отверстием, выбираем более экономичный по расходу материала [7].
Экономическое обоснование:
(13)
Где C - себестоимость заготовки;
А - изготовление заготовки;
В - механическая обработка;- масса;- сложность;-
точность;- соотношение;- точность заготовки;- точность обработки;- не
обрабатываемые участки.
(15)
(16)
Размеры заготовок представим на рисунке 3.1.

а) б) в)
Рисунок 3.1 - Эскиз заготовки:
а-одноступенчатая заготовка; б-двухступенчатая заготовка; в-трехступенчатая
заготовка с центральным отверстием
Выбираем трёхступенчатую заготовку с центральным
отверстием.
3.1.5 Выбор плана обработки детали
Предварительно выбираем следующий технологический маршрут обработки.
Заготовка: отливка
- Термическая обработка: закалка.
- Токарная с ЧПУ: обработать деталь по программе.
- Токарная с ЧПУ: обработать деталь по программе.
- Долбежная с ЧПУ: обработать деталь по программе.
- Токарная с ЧПУ: обработать деталь по программе.
- Сверлильная с ЧПУ: обработать деталь по программе.
- Слесарная: зачистить деталь.
- Полировальная: полировать поверхности ручьев до Ra 0,63.
- Контроль.
3.1.6 Выбор и расчёт припуска на обработку
Главным значением в процессе проектирования операций технологических механической обработки деталей обладают припуски. Грамотный выбор припусков на обработку, включает экономию трудовых ресурсов и материала, качество выпускаемой продукции. Размер припусков для обработки и допуски на размеры заготовок зависят от следующих факторов:
- материала заготовки,
- конфигурации и размеров заготовки,
- вида заготовки и способов её получения,
- требований в отношении обработки механической,
- технических условий касательно
класса и качества шероховатости плоскости, точности параметров заготовки.
Рисунок 3.2 - Схема расчётов припусков
Из этого следует, что размер общего припуска обуславливается от толщины слоя дефектного, который снимут, припусков на промежуточные операции, погрешности установки, шероховатости поверхности.
Общий припуск на обработку:
мм (17)
3.1.7 Предварительное техническое нормирование
Продолжительность выполнения операций от 2 до 5
минут (максимально 10 минут) основные и холостые ходы.
3.1.8 Определение типа
производства
(18)
Где N - годовая программа выпуска, шт;
- среднее штучное время
техпроцесса, мин;
Тип производства единичное, т.к. годовая
программа изготовления 50 штук [8].
3.1.9 Выбор оборудования
Подбор станков проводится посредством таких условий, как точность обработки, метод обработки, габаритных размеров заготовки, обеспечение заданной производительности, расположение размеров обрабатываемых поверхностей, численность инструментов в наладке станка, эффективность работы станка по времени, мощности и др.
В ходе обработки детали применяется несколько видов станков:
- Токарный станок ЧПУ: Tormach 15L Slant-PRO.
- Долбежный станок с ЧПУ: CNC-500.
- Сверлильный станок с ЧПУ: Mark Super CNC.
- Полировальный станок: ART.94
3.1.10 Выбор режущего инструмента
Подбор режущих инструментов происходит в зависимости от метода обработки, формы и размеров обрабатываемой поверхности, её точности, шероховатости, от обрабатываемого материала, заданной производительности и периода стойкости. Режущие инструменты обязаны обладать высокой режущей способностью (стабильной размерной стойкостью при высоких режимах резания), обеспечить вероятность быстрой и комфортной замены, наладки в процессе работы, формировать транспортабельную стружку и отводить её от зоны обработки без нарушения стандартной работы оборудования [9].
В таблице 4 указаны параметры об инструменте
режущем, и применяемом при обработке детали, по данным справочным.
Таблица 4 - Выбор режущего инструмента
|
Операция и переходы |
Режущие инструменты |
Мат-ал режущей части |
ГОСТ инструмента |
|
1 |
2 |
3 |
4 |
|
Токарная с ЧПУ |
Резец подрезной |
ВК8 |
ГОСТ 20872-80 |
|
|
Резец проходной |
ВК8 |
ГОСТ 18877-73 |
|
Токарная с ЧПУ |
Резец подрезной |
ВК8 |
ГОСТ 20872-80 |
|
|
Резец проходной |
ВК8 |
ГОСТ 18877-73 |
|
|
Резец проходной |
ВК8 |
ГОСТ 18877-73 |
|
|
Сверло
|
|
|
|
|
Расточной резец |
ВК8 |
ГОСТ 18882-73 |
|
Долбежная с ЧПУ |
Сборный долбёжный резец с твердосплавной вставкой для долбёжных станков с ЧПУ |
Т15К6 |
- |
|
Токарная с ЧПУ |
Резец проходной |
ВК8 |
ГОСТ 18881-73 |
|
|
Резец проходной |
ВК8 |
ГОСТ 18881-73 |
|
|
Резец контурный |
ВК8 |
ГОСТ 18881-73 |
|
|
Резец контурный |
ВК8 |
ГОСТ 18881-73 |
|
Сверлильная с ЧПУ |
Сверло
|
|
|
|
Полировальная |
Притир деревянный |
Дуб |
- |
3.1.11 Выбор средств измерения
Подбираем инструмент контроля и измерения
размеров, который зависит от вида производства, размера допуска параметра,
контролируемого для каждой операции и занесём в таблицу 5.
Таблица 5 - Выбор средств измерения
|
№ |
Операция |
Средство измерения |
|
1 |
Контроль |
Биениемер ПБ-250 |
3.1.12 Выбор вспомогательных инструментов
К дополнительным инструментам относятся стойки
для резцов, державки, направляющие втулки. Подбор происходит в зависимости от
конструкции хвостовика режущего инструмента, конструкции посадочного места на
станке, длины обрабатываемой поверхности, требуемой жёсткости и точности
средства, требований замены и корректировки инструмента.
3.1.13 Выбор приспособления
Приспособление станочное подбираем с требованием, для обеспечения нужного надежного закрепления и базирования детали на операциях, сильную жесткость поставленной на станке детали, учитывая реальность автоматизации обработки и прочих условий.
Цанговый патрон, тиски, оправка
3.1.14 Расчёт режимов резания
Режимы обработки были выбраны в соответствии с
рекомендациями ПО «Вертикаль». Полученные режимы резания приведены на рисунке
3.3.
Рисунок 3.3 - Режимы обработки
3.1.15 Разработка управляющей программы для станка ЧПУ составленная с помощью программы SprutCAM.
Текст управляющей программы для токарного станка
с ЧПУ для обработки детали «Шкив» приведен в Приложении 3.
3.2 Разработка
конструкции специального инструмента
В настоящее время в машиностроении большое
развитие получили станки с числовым программным управлением. Станки с ЧПУ
позволяют производить детали очень сложных конфигураций. Для обеспечения
станков с ЧПУ необходим специализированный инструмент. В частности, одной из
групп станков, которая получает большое развитие стлали долбежные станки с ЧПУ.
Для обработки различных профилей необходим режущий инструмент разной геометрии.
Режущий инструмент - это инструмент для обработки резаньем, т.е. удаления части
материала со стружкообразованием. Новый инструмент позволяет повысить
производительность производства, повысить качество продукции. В настоящий
момент большое очень востребован твердосплавный инструмент [10].
3.2.1 Техническое задание
Шпоночный долбёжный резец шириной 4 мм. и вылетом 30 мм.
В процессе проектирования необходимо определить:
- Форму вставки.
- Материал режущей части и корпусных деталей.
- Назначить геометрию вставки.
- Выбрать способ закрепления вставки в
корпусе резца.
.2.2 Литературный обзор
Долбежный резец - это режущий инструмент, применяемый на долбежных станках. Во время обработки долблением главное движение резание- поступательное движение резца, движение подачи совершает стол станка. движение подачи может быть поступательным и вращательным. Крепление долбежных резцов на долбежных станках ЧПУ отличается от способа крепления на универсальных долбежных станках. Этим и обусловлена разница в контракции долбежных резцов для станков с ЧПУ и без ЧПУ.