Материал: Разработка кондуктора для обработки (сверления) отверстий

Внимание! Если размещение файла нарушает Ваши авторские права, то обязательно сообщите нам

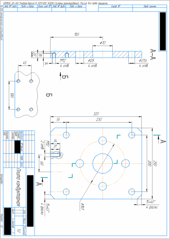
Максимальный зазор S1 (рис. 4) между постоянной втулкой и инструментом, определяется исходя из величин полей допусков на данные элементы, так соответственно для отверстия втулки поле допуска Ø18F8 , а для режущего инструмента (сверла) допуск будет Ø18h8 .

Таким образом, .

Рис. 4. Схема к расчету точности

Максимальный радиальный зазор S2 между отверстием Ø93±0,02 мм и установочным цилиндрическим пальцем Ø93f9 соответственно составит

Сумма зазоров для данного случая определится по формуле

По ГОСТ 18435-73 радиальное биение поверхности d относительно D для втулки с полем допуска n6 определяется по 4 степени точности ГОСТ 24643-81.

Для d =28, е =0,005 мм, тогда допустимая погрешность:

Следовательно, допуск на расстояние, которое необходимо указать на чертеже, составит ±0,2 мм.

5. Расчет усилия зажима

Для обеспечения надежного закрепления детали при обработке необходимо, чтобы с помощью зажимных элементов и устройств базовые поверхности детали были бы прижаты к опорным элементам.

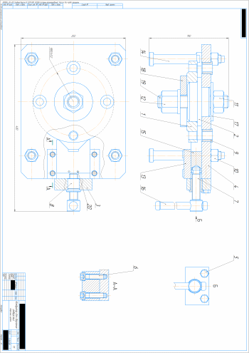
В процессе обработки из-за погрешностей заточки сверла, т.е. смещения перемычки от оси вращения сверла, будет возникать усилия, приводящие к сдвигу детали в момент начала сверления. Кроме того, если деталь при обработке не будет закреплена усилием, приложенным к поверхности рычага, которая не обрабатывается, то крутящий момент от сил резания приведет к вращению детали вместе с обрабатывающим инструментом (рис. 5).

Рис. 5. Схема к расчету усилия зажима

При выполнении сверления будет возникать крутящий момент и осевая сила. При нем возникает наибольшее значение мощности резания, которое было ранее определено при проверке выбора станка и составляет: .

Крутящий момент соответственно определится как

Тогда сила резания будет равна

Рассчитаем силу зажима детали, для чего составим уравнение действия на заготовку момента резания и сил зажима и реакций опор

где L – расстояние от точки приложения силы резания до плеча, 108 мм; l – расстояние от точки приложения силы зажима до плеча, 97 мм; – коэффициент запаса, рассчитывается применительно к конкретным условиям обработки, 2,34.

Таким образом, сила зажима определится как

Нажимной винт 7006-0827 М20 ГОСТ 13433-68, который используется в конструкции кондуктора, может развить усилие зажима Qmax = 16000 Н, что значительно больше необходимого Q = 13748 Н.

ПОПРАВКА: В КОНЕЧНОМ ИТОГЕ БЫЛО РЕШЕНО ВЗЯТЬ ШПИЛЬКУ (ПОЗ. 19) И ГАЙКИ (ПОЗ. 11 И ПОЗ. 12) МЕНЬШИХ РАЗМЕРОВ.

Приложения

Список литературы

  1. Методические указания к выполнению курсового проекта для студентов специальности 1-08 01 01 «Профессиональное обучение», направление 1-08 01 01 01 «Машиностроение».  Минск: БНТУ, 2007.

  2. Ансеров, М.А. Приспособления для металлорежущих станков / М.А Ансеров.- Л.: Машгиз, 1975. - 656 с.

  3. Антонюк, В.Е.. Конструктору станочных приспособлений: справ, пособие / В.Е Антонюк. - Мн: Беларусь, 1991. - 400 с.

  4. Анурьев, В.И. Справочник конструктора - машиностроителя. В 3 т. Т. 1 / В.И. Анурьев - М.: Машиностроение, 1980. - 728 с.

  5. Анурьев, В.И. Справочник конструктора - машиностроителя. В 3 т. Т.2 / В.И. Анурьев. - М.: Машиностроение, 1980. - 559 с.

  6. Гжиров, Р.В. Краткий справочник конструктора: Справочник/ Р.В. Гжиров. - Л.: Машиностроение, 1984. - 464 с.

  7. Горбацевич, А.Ф. Курсовое проектирование по технологии машиностроения. - 4-е изд / А.Ф. Горбацевич, В.А. Шкред; под ред. А.Ф. Горбацевич. -Мн.: Вышэйшая школа, 1983.-256 с.

  8. Горбацевич, А.Ф. Методические указания по выполнению курсовых проектов по курсу "Проектирование станочных приспособлений" для студентов заочной формы обучения специальности 0577 - "Машиностроение" / А.Ф. Горбацевич,- Мн.: 1985.-40 с.

  9. Горбацевич, А.Ф. Методические указания по разработке заданий к курсовым проектам по технологической оснастке и технологии машиностроения. / А.Ф. Горбацевич, В.В. Жданович, С.А. Иващенко; под ред. А.Ф. Горбацевич. - Минск: изд БИТУ, 2003. - 40 с.

  10. Горбацевич, А.Ф. Задания на курсовой проект курса «Конструирование станочных приспособлений» для студентов специальности 0577 - «Машиностроение» дневной и заочной форм обучения /А.Ф. Горбацевич - Минск: изд БПИ, 1987. - 14 с.

  11. Горошкин, А.К. Приспособления для металлорежущих станков. Справочник / А.К. Горошкин. - М.: Машиностроение, 1979. - 303 с.

  12. Жданович, В.В. Оформление документов и курсовых проектов/ В.В. Жданович, А.Ф. Горбацевич. - Мн: УП «Технопринт», 2002. -99 с.: ил.

  13. Данилевский, В.В. Технология машиностроения / Данилевский В.В. - М.: Высшая школа, 1972. - 483 с.

  14. Корсаков, B.C. Основы конструирования приспособлений в машиностроении: Учеб. для вузов.-2-е изд. перераб. и доп./ B.C. Корсаков. - М.: Машиностроение, 1983. - 277 с.

  15. Поливанов, П.М. Таблицы для подсчета массы деталей и материалов: Справочник. - 10-е изд./ П.М Поливанов, Е.П. Поливанова. - М.: Машиностроение, 1975. -304 с.

  16. Режимы резания металлов: Справочник / А. Д. Корчемкин [и др]; под ред. А.Д. Корчемкина.- М.:НИИТавтопром, 1995.-456 с

  17. Справочник контролера машиностроительного завода. Допуски, посадки, линейные измерения / А.И. Якушева [и др]; под ред.А.И. Якушева.- М.: Машиностроение, 1980. - 527 с.

  18. Справочник технолога-машиностроителя. т.1 / А.Г. Косиловой и Р.К. Мещерякова; под ред. А.Г. Косиловой и Р.К. Мещерякова. - М.: Машиностроение, 1972. - 694 с.

  19. Станочные приспособления: Справочник/ Б.Н: Вардашкин,и А.А. Шатилов; под ред. Б.Н. Вардашкина и А.А. Шатилова. М.: Машиностроение, 1984, Т. 1. - 522 с., Т.2. - 656 с.

  20. Филиппов, Г.В. Режущий инструмент / Г.В.Филиппов. - JL: Машиностроение, 1981. - 392 с.