Материал: Расчет трансформаторов

Внимание! Если размещение файла нарушает Ваши авторские права, то обязательно сообщите нам

Номинальную мощность и класс напряжения указывают через тире после буквенного обозначения в виде дроби, числитель которой - номинальная мощность в киловольт-амперах, знаменатель - класс напряжения трансформатора в киловольтах. Если автотрансформатор имеет обмотку СН напряжением 110 кВ и выше, то в виде сложной дроби добавляется обозначение класса напряжения обмотки СН.

Исполнения трансформаторов, предназначенных для работы в соответствующих климатических районах, обозначаются следующими буквами: У - для районов с умеренным климатом; ХЛ - для районов с холодным климатом; Т - для районов с тропическим климатом.

.4 Основные материалы

При изготовлении трансформаторов применяют магнитные, проводниковые, электроизоляционные, конструкционные и вспомогательные материалы.

Первые три вида называют электротехническими материалами, которые по отношению к электрическому току, электрическому и магнитному полям обладает по сравнению с другими материалами особыми свойствами и занимают основное место в устройстве электрических аппаратов, машин и различных электроустановок.

Кроме того магнитные и проводниковые материалы принято называть активными, хотя часто в электротехнических устройствах один и тот же материал выполняет функции как активного так и конструкционного материала. Так, стержень ввода, является основной токоведущей его частью, механически скрепляет между собой все его детали.

.5 Общие вопросы проектирования трансформаторов

Проектирование силовых трансформаторов включает в себя широкий круг технических вопросов. Разработка конструкции трансформатора проводится на основе электромагнитного, теплового и механического расчетов, обеспечивающих заданные основные электрические и эксплуатационные параметры. При конструировании должна быть обеспечена необходимая электрическая прочность изоляции, механическая прочность узлов, динамическая и тепловая стойкость обмоток при КЗ. Конструкция изоляции в целом должна обеспечивать его эксплуатационную надежность. При разработке конструкции частей и узлов трансформатора следует стремиться к возможно меньшему расходу материалов и меньшей трудоемкости изготовления, с тем, чтобы снизить стоимость трансформатора до минимума.

Магнитная система трансформатора является основой его конструкции. Выбор размеров магнитной системы совместно с основными размерами обмоток определяет главные размеры активной части и всего трансформатора. Рассмотрим двухобмоточный трансформатор с плоской магнитной системой стержневого типа со стержнями, имеющими сечение в виде симметричной ступенчатой фигуры, вписанной в окружность и с концентрическим расположением обмоток. Магнитная система такого трехфазного трансформатора показана на рисунке1.

Диаметр D0 окружности, в которую вписано ступенчатое сечение стержня, является одним из его основных размеров. Вторым основным размером трансформатора является осевой размер Н0 (высота) его обмоток. Обычно обе обмотки имеют одинаковую высоту. В случае различия в высоте за размер Н0 принимают их среднее арифметическое значение. Третьим основным параметром трансформатора является средний диаметр витка двух обмоток, или диаметр осевого канала между обмотками D12, связывающих диаметр стержня с радиальными размерами обмоток а1 и а2 и осевого канала между ними а12. Если эти три размера выбраны или известны, то остальные размеры, определяющие форму и объем магнитной системы и обмоток, например высота стержня Нс и т.д., могут быть найдены, если известны допустимые изоляционные расстояния от обмоток ВН до заземленных частей и до других обмоток.

Рисунок 1 - Основные размеры трансформатора

Сечение обмоток НН и ВН

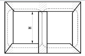
Расчет обмоток трансформатора начинается с обмотки низкого напряжения. Расчет проводится по алгоритму, которым пользовались в п.2.3 данной работы. Из данного расчета видно, что основными критериями выбора количества проводников в витке и сечения каждого проводника является величина фазного тока и выбранная плотность тока для данной обмотки. Структурно обмотку НН и ВН (конфигурацию и параметры прямоугольного витка) показаны на рисунке 2 и рисунке 3.

Рисунок 2 - К определению высоты витка

Рисунок 3 - К определению радиальных размеров обмотки

Регулирование напряжения

Для экономичной и безаварийной работы любого потребителя необходимо, чтобы напряжение, подводимое к нему, было с минимальными отклонениями. Допустимые отклонения нормированы и не должны нарушатся. Так, для электродвигателей напряжение на зажимах не должно отличаться от номинального более чем на - 5% до +10%. При снижении напряжения, например на 10%, уменьшается частота вращения двигателя, возрастают токи в статоре и роторе, потери, нагрев изоляции, что ведет к сокращению срока службы и преждевременному выходу двигателя из строя.

Для осветительных установок нормы ±5% - для жилых помещений и от -2.5% до 5% - для общественных зданий и производственных помещений. При повышении напряжения сверх нормы резко срок службы электроламп, и при снижении - ухудшается освещаемость. Таким образом, колебания напряжения приводят к значительному ущербу, и их надо свести к минимальным.

Однако колебания сети неизбежны вследствие переменных режимов работы потребителей, включения и отключения групп потребителей и других причин. Поэтому для поддержания неизменного уровня напряжения требуется постоянное его регулирование.

Напряжение можно регулировать без отключения нагрузки и с отключением трансформатора от сети. Первый способ называется регулирование под нагрузкой (РПН), а трансформатор в котором оно предусмотрено, трансформатором РПН. Однако РПН требует сложных и дорогих переключающих устройств, поэтому трансформаторы РПН установлены только там, где это дает заметный экономический эффект. В других случаях применяют регулирование без возбуждения (ПБВ) после отключения всех обмоток от сети. Трансформатор, в котором предусмотрено такое регулирование, называют трансформатором ПБВ.

При ПБВ потребителя на время вообще отключают от сети, что неудобно и особенно там, где нагрузка меняется часто, но вместе с тем конструкция ПБВ проста и относительно дешева.

Наиболее распространено регулирование напряжения ступенчатым изменением числа витков одной из обмоток. Экономичнее выполнять регулирование на той обмотке, напряжение которой меняется особенно часто. Например, у трансформатора, питающего потребителя с переменной нагрузкой, целесообразнее регулировать число витков на обмотке НН, и наоборот, если нагрузка спокойна, а первичное напряжение часто меняется, регулирование выгодно осуществлять в обмотке ВН. Большинство трансформаторов выполняют с регулированием на обмотке ВН, поскольку в обмотке НН большой ток и переключающее устройство получится очень громоздким. Поскольку в обмотке ВН токи гораздо меньше, то переключающее устройство получится относительно небольшим, хотя его приходится изолировать от заземленных частей трансформатора.

Напряжение регулируют чаще изменением основного магнитного поля в магнитопроводе. Так, при постоянном ВН и уменьшении вторичного напряжения следует увеличить магнитной поле, чтобы восстановить номинальной НН. Это достигается уменьшением числа витков в обмотке ВН. Индуктированное напряжение, равное первичному, пропорциональна произведению числа витков 1 и интенсивности магнитного поля В: U1≡1·B;

При постоянном напряжении U1 для увеличения индукции надо уменьшить число витков в первичной обмотке, и наоборот, если нагрузка падает, а напряжение U2 растет, следует уменьшить интенсивность поля, т.е. увеличить число витков в первичной обмотке.

Если изменяется первичное напряжение, следует поддержать для сохранения НН магнитное поле неизменным, что достигается соответственным изменением числа витков.

При одновременном изменении U1 и U2 следует отключить такую часть витков, когда скомпенсировалось снижение этих напряжений. Когда регулирование возможно в обмотке НН, основное магнитное поле (U1 неизменно) остается постоянным, а увеличение (или уменьшение) напряжения НН осуществляется включением (или отключением) части последовательно соединенных витков обмотки НН.

Во всех случаях принцип регулирования заключается а изменении числа витков в обмотке трансформатора определенными ступенями. Обычно в обмотке ВН определяют регулировочную часть и разделяют на ряд ступеней с необходимым числом витков, концы которых выводят с помощью ответвлений. У трансформаторов ПБВ небольшой мощности (до 630 кВ·А) выполняют обычно три - пять ступеней (напряжение регулируют в пределах ±5%), располагая их в середине обмотки. Отключение части витков ухудшает магнитную симметрию и увеличивает опасность от возникающих электродинамических усилий. Поэтому в более мощных трансформаторах стремятся выполнять магнитно-симметричные схемы соединения регулировочных частей.

Добавочные потери

Определение добавочных потерь в обмотках сводится к расчету коэффициента увеличения основных электрических потерь обмотки kд. Этот коэффициент подсчитывается отдельно для каждой обмотки трансформатора. Значение коэффициента зависит от частоты тока, размеров проводников и обмотки, их удельного электрического сопротивления и их расположения по отношению к полю рассеяния трансформатора.

Любая обмотка трансформатора, намотанная из прямоугольного или круглого провода, может быть для расчета коэффициента условно представлена в таком виде, как на рисунке 4. При этом в такой условной обмотке должно быть сохранено число проводников реальной обмотки в направлениях, параллельном и перпендикулярном направлению потока рассеяния. Наличие каналов, параллельных направлению потока рассеяния не влияет на kд.

Рисунок 4 - К определению добавочных потерь

Добавочные потери от вихревых токов, вызванные собственным магнитным полем рассеяния обмоток, неодинаковы для отдельных проводников, различным образом расположенных в обмотке по отношению к полю рассеяния. Наибольшие добавочные потери для двухобмоточных трансформаторов возникают в проводниках, находящихся в зоне наибольших индукций, т.е. в слое проводников, прилегающем к каналу между обмотками. Наименьшие потери возникают в слое, наиболее удаленном от соседней обмотки. Подсчет основных потерь в отводах сводится к определению длины проводников и массы металла в отводах. Этот подсчет может быть точно произведен после окончательного установления конструкции отводов. В процессе расчета может быть произведено приближенное определение массы отводов.

В силовых трансформаторах общего назначения потери в отводах составляют, как правило, не более 5-8 % потерь КЗ, а добавочные потери в отводах - не более 5% основных потерь в отводах. Поэтому предварительный расчет дает достаточно точный результат.

Осевые силы

Осевая сила Fос является суммой элементарных осевых сил приложенных к отдельным проводникам обмотки и направленных вниз в верхней половине и вверх в нижней половине каждой из обмоток. Максимальное значение Fос достигается в середине высоты обмотки. Осевые силы действуют на межкатушечную и межвитковую изоляции, которые должны быть проверены на сжатие. В цилиндрических обмотках осевые силы могут вызывать сползание крайних витков внешнего слоя, если они укреплены недостаточно прочно. Кроме осевых сил, возникающих при КЗ, в обмотке трансформатора создаются осевые силы прессовки с напряжением на изоляции от 2 до 10 МПа. Эти силы необходимы для того, чтобы сохранялась механическая монолитность обмотки и не образовывались зазоры при прекращении действия сил КЗ.

Равномерное распределение витков по высоте обеих обмоток в трансформаторах встречается редко, например, при многослойных цилиндрических обмотках, когда отключаемые регулировочные витки располагаются по высоте всего наружного слоя обмотки. Во всех остальных случаях регулировочные витки выделяются в особые катушки, чаще всего располагаемые в середине высоты обмотки. Отключение этих катушек приводит к нарушению равномерности распределения витков по высоте обмотки. По силе, действующей на ярмо может быть проверена механическая прочность опорных конструкций. По максимальной сжимающей силе проверяется прочность межкатушечной изоляции. Для определения средней приведенной длины индукционной линии поперечного поля рассеяния пользуются тем, что поперечное поле рассеяния замыкается через стержень и стенку бака и определяется как расстояние от поверхности стержня трансформатора до стенки бака.

Наиболее опасны в механической прочности потеря радиальной устойчивости внутренней обмотки. Потеря радиальной устойчивости имеет место в трансформаторах различных мощностей причем с ростом мощности роль этого факта растет. Для оценки механической прочности обмотки обычно определяют напряжение сжатия во внутренней обмотке НН возникающее под действием радиальной силы и напряжение сжатия в прокладках межкатушечной и опорной изоляции обмоток от наибольшей из осевых сил (рисунок 5 ).

Рисунок 5 - К определению механических напряжений в обмотках

Определение массы магнитопровода

Для определения массы стали магнитную систему мысленно делят на части, масса которых легко рассчитывается. Имея ввиду в дальнейшем определение потерь и тока ХХ трансформаторов из холоднокатаной стали, следует делить магнитную систему так, чтобы условия прохождения магнитного потока в пределах каждого из участков были более или менее одинаковыми (рисунок 6). На данном рисунке также схематически показана средняя линия основного магнитного потока. В пределах вертикальных участков поток идет вдоль направления проката листов, что обеспечивает минимальные потери активной и реактивной мощности. В пределах заштрихованных участков (углов) магнитного потока искривляются и не совпадают с направлением проката, что приводит к увеличению потерь в стали и тока холостого хода.

Сечение стержней и ярм (рисунок 7) представляют собой ступенчатые фигуры, симметричные относительно взаимоперпендикулярных осей. Форма сечения ярма повторяет форму сечения стержня, за исключением нескольких крайних пакетов, которые объединяются в один пакет для увеличения опорной поверхности ярмовых балок.

Рисунок 6 - К определению массы стали магнитопровода

Рисунок 7 - сечения стержней и ярма

Тепловой расчет трансформатора

При правильном выборе электромагнитных нагрузок и правильном распределении и выборе размеров охлаждающих масляных каналов внутренние температуры в обмотках и магнитной системе оказываются не выше обычно допускаемых значений. Вследствие этого тепловой расчет обмоток сводится к проверочному определению перепадов температуры внутри и на поверхности для принятой конструкции и размеров обмотки. Определение этих перепадов проводится с учетом конструктивных обмоток различных типов.

Тепловой расчет бака отличается тем, что сама конструкция бака зависит в первую очередь от того теплового потока, который должен быть отведен с поверхности бака в окружающую среду, и лишь во вторую очередь определяется требованиями механической прочности.

2. Расчет основных электрических величин трансформатора

Мощность обмоток одного стержня трансформатора:


где S - мощность трансформатора по заданию; c - число активных стержней трансформатора.

Номинальный (линейный) ток обмотки ВН и НН трехфазного трансформатора:


На стороне ВН:

На стороне НН:

где U - номинальное линейное напряжение соответствующей обмотки; I - ток обмотки одного стержня трёхфазного трансформатора.

Для трехфазного трансформатора фазный ток обмотки одного стержня, для соединения обмоток звездой, фазные напряжения:

ВН:

Iф.вн=Iвн=33.5А,

НН:

Iф.нн=Iнн=577.35А,

ВН:

    НН:


Для определения изоляционных промежутков между обмотками и другими токоведущими частями и заземлёнными деталями трансформатора существенное значение имеют испытательные напряжения, при которых проверяются электрическая прочность изоляции трансформатора. Испытательное напряжение определяется по таблице 4-1 [1] для каждой обмотки трансформатора по её классу напряжения.

ВН: Uисп=25 кВ,

НН: Uисп=5 кВ.

Потери короткого замыкания, указанные в задании, дают возможность определить активную составляющую напряжения короткого замыкания: