8 Скорость газов на выходе из дымовой
трубы
Принимаем согласно рекомендациям:
|
при искусственной тяге ωг=12-18 м/сек (для котлов ДКВР-4,ДКВР-6,5,ДКВР-10 при сжигании твердых топлив и котлов ДКВР-6,5 и ДКВР-10(газ и мазут))м/с15 |
|
|
|
|
|
|
9 |
Высота трубы |
|
|
|
|
10 Охлаждение газов в трубе на 1 пог. м.
Для кирпичных труб на 1 пог. м. высоты:
;
|
∑D - суммарная
паропроизводительность (т/ч) всех одновременно работающих котлов |
|
|
|
|
|
|
11 |
Охлаждение газов по всей высоте трубы |
- |
|
|
|
12 Температура газов на выходе из трубы ![]()
,
|
где |
Средняя температура газов в трубе |
|
|
|
|
|
14 |
Удельный вес газов в трубе |
|
|
|
|
|
15 |
Потеря при выходе газов из трубы |
|
8,8 |
|
|
16 Внутренний диаметр трубы ![]()
,
,
где: Vтр - суммарный расход газов через трубу при одновременной работе всех котлов, определяемый как Bp(Vг)вэm,
где m - число котлов;(Vг)вэ- объем газов после водяного экономайзера (воздухоподогревателя) по данным теплового расчетам2,5
|
260425,2 |
|
|
|
17 Потеря на преодоление сопротивления
трения в трубе ![]()
,
|
где: λ - коэффициент трения, принимаемый для кирпичных труб: λ=0,02 мм.вод. ст.0,14 |
|
|
|
18 Полное сопротивление газового тракта ![]()
мм.вод.
ст.
|
(кг/м2)91,56 |
|
|
|
|
|
|
19 |
Самотяга трубы (при искусс-твенной тяге) |
|
12,8 |
|
|
|
20 |
Перепад пол-ного давления газового тракта |
|
78,76 |
|
|
21 Высота трубы, обеспечивающая
необходимую естественную тягу ![]()
![]()
|
где: γхв - удельный вес наружного воздуха, принимаемый равным 1,2 кг/м3 (tхв=200C)м174,9 |
|
|
|
8.2
Расчет сопротивления воздушного тракта
Таблица 4
|
№ п/п |
Наименование величины |
Обозначение |
Расчетная формула и способ определения |
Размерность |
Величина |
|
1 |
2 |
3 |
4 |
5 |
6 |
1 Сопротивление слоя топлива и решетки
Принимается из расчетных характеристик топок:
|
1) для бурых углей с Ap>10%, антрацитов и древесных отходов (опилки, кора)100-110; 2) для остальных видов твердого топлива 60-80 мм.вод.ст.мм.вод.ст.70 |
|
|
|
|
|
|
2 |
Сопротивление воздуховода |
|
|
|
|
3 Сопротивление воздухоподогревателя (с
воздушной стороны) ![]()

;
|
где: |
|
|
|
|
|
|
4 |
Сопротивление горелочных устройств |
|
|
|
|
5 Общее сопротивление воздушного тракта ![]()
(газ или
мазут)мм.вод.ст.
|
(кг/м2)78 |
|
|
|
9. Подбор тягодутьевых устройств. Расчет и выбор типа
дымососов и дутьевых вентиляторов
Таблица 5
|
№п/п |
Наименование величины |
Обозначение |
Расчетная формула и способ определения |
Размерность |
Величина |
|
1 |
2 |
3 |
4 |
5 |
6 |
1 Производительность дымососа ![]()
;
где: Bp - расход топлива, кг/ч (нм3/ч);г - объем газов, нм3/кг (нм3/нм3);
|
θвэп - температура газов на выходе из экономайзера, |
|
|
|
2 Полное расчетное давление дымососа ![]()
,
|
где: Hп - перепад полного
давления газового тракта, принимаемый из табл.3 аэродин.расчета |
|
|
|
3 Мощность на валу дымососа ![]()
,
|
где: |
|
|
|
4 Мощность электродвигателя ![]()
,
где: ηп - КПД передачи: для муфтовой передачи ηп=0,95;
|
k-коэффициент запаса мощности, принимаемый в зависимости от мощности на валу мотора и вида передачи по приложению ХVI [10]кВт24,78 |
|
|
|
|
|
|
5 |
Конструктивные характеристики дымососа |
- |
Принимается в соответствии с выбранным типом машины по приложению ХVIII [10] |
Д-15,5; n=970 об/мин; Вбар=760 мм.рт.ст; h=375 мм; h1=600 мм; h2=350 мм, b=125 мм; А=580 мм; В=907 мм; А1=714 мм. |
|
|
6 |
Производительность вентилятора |
|
|
|
|
|
7 |
Полный напор вентилятора |
Нв |
|
|
|
|
8 |
Мощность на валу вентилятора |
|
|
|
|
|
9 |
Мощность электродвигателя |
|
|
|
|
|
10 |
Конструктивные характеристики вентилятора |
- |
Принимается в соответствии с выбранным типом машины по приложению ХVIII [10] |
ВД-10: n=970 об/мин; Вбар=760 мм.рт.ст; h=280 мм; h1=400 мм; h2=250 мм, b=80 мм; А=376 мм; В=580 мм; А1=488 мм. |
|
10. Золоулавливание
Очистка дымовых газов от золы н уноса необходима при сжигании твердого топлива. Это уменьшает загрязнение атмосферного воздуха и улучшает санитарно-гигиенические условия воздушного бассейна, а также повышает надежность эксплуатации дымососов, так как снижается их золовой износ.
В котельных, сжигающих уголь и торф в слоевых и камерных топках, применяют два вида золоуловителей: сухие и мокрые. Для котлов паропроизводительностью до 20 т/ч обычно устанавливают сухие золоуловители. Сухие золоуловители более просты, экономичны и надежны и обеспечивают степень очистки дымовых газов от золы при слоевом сжигании до 80-90%, а при камерном - до 70-80%.
Мокрые золоуловители более эффективны и даже при камерном сжигании обеспечивают степень очистки дымовых газов от золы до 90-92%, однако они более сложны и требуют более тщательного ухода. Их целесообразно применять при гидравлическом шлакозолоудаленин и количестве дымовых газов свыше 100000 м3/ч. Из мокрых золоуловителей получили распространение центробежные скрубберы (ЦС-ВТИ). Из сухих золоуловителей в настоящее время применяются циклоны, скомпонованные в блоки (блок-циклоны) и батарейные циклоны (мультициклоны).
В обоих типах золоуловителей зола из дымовых газов выделяется под
действием центробежной силы, возникающей в результате вращательного движения и
различия плотности газа и золы.
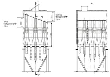
Рис. 6. Батарейный циклон
В данном проекте применены батарейные циклоны типоразмера БЦ2 7Х (5+3) в количестве 5 штук (по числу котлов). Батарейный циклон установлен на 4 стойках внутри здания. Температура очищаемого газа не выше 400°С.
Батарейный циклон (рис. 6) имеет 56 циклонных элементов малого диаметра
(250 мм) скомпонованных внутри общего кожуха, разделенного на две секции,
каждая из которых имеет свой бункер для улавливания золы, подводящий патрубок и
распределительную камеру. Выхлопная камера является общей для обеих параллельно
работающих секций батарейного циклона. Разделение циклона на две секции
выполнено для отключения одной из них и сохранения качества очистки дымовых
тазов при снижении их расхода. Секции отключают языковым шибером.
Аэродинамическое сопротивление батарейного циклона составляет 45 мм вод. ст.
Основные размеры батарейного циклона: размеры в сечении блока циклонов -
2440х2160 мм, с выступающим патрубком 3585х2440 мм, высота - 5020 мм.
11. Расчет и выбор питательных
устройств
1.1 Определение производительности питательного насоса
Производительность питательного насоса:
(7)
где 1,05 - коэффициент, учитывающий возмещение потери воды при продувке котла;
,2 - коэффициент запаса расхода воды;
Дмакс
- максимальный расход воды, равный максимальной суммарной
паропроизводительности всех котлов (120000 кг/ч).
11.2
Определение напора питательного насоса
Напор питательного насоса:
(8)
где рк - избыточное давление в котле, ати;
Нс
- суммарное сопротивление всасывающего и напорного участка питательной сети.
11.3 Определение мощности электродвигателя насоса
Мощность электродвигателя насоса:
(9)
где
- коэффициент полезного действия питательного насоса
(0,60-0,65);