Курсовая работа (т): Проектування каналізаційної насосної станції

Внимание! Если размещение файла нарушает Ваши авторские права, то обязательно сообщите нам

Проектування каналізаційної насосної станції
















Проектування каналізаційної насосної станції

Вихідні дані

1.      Добова подача насосної станції в часи максимального водовідведення  Qмакс.доб = 40087м3/доб.

2.      Загальний коефіцієнт нерівномірності  Кч = 1,5

.        Число мешканців у населеному місці  N = 60550 жит.

4. Довжина напірних водоводів  lвод.= 1500 м

. Відмітки:

.1 лотка підвідного колектора  Zлот = 48.560м

.2 поверхні землі в місці розташування насосної станції, Zнс = 53.150м;

.3. приймальної камери очисних спорудZос = 60.000 м

5.4 Заглиблення підвідного коллектора4,59 м

. Диаметр підвідного колектора 1000 мм

. Рівень грунтових вод 49.000м

Рис. 1. Висотна схема каналізаційної насосної станції

1. Визначення розрахункових витрат

Розрахункова витрата насосної станції має бути рівна або дещо перевершувати максимальний секундний приплив стоків. За графіком водовідведення максимальний і мінімальний годинні припливи стічних вод відповідно дорівнюють до 6,25 % і 1,6 % від Qдоб при загальному коефіцієнті нерівномірності припливу СВ Кзаг = 1,5.

Щоб підібрати обладнання необхідно визначити розрахункові витрати й повний напір насосів за різними режимами роботи.

Середня витрата:

ср. = Qдоб./24 = 40087/24 = 1670,3м3/ч = 464 л/с 

б) Максимальна витрата:

мах = (40087:100)·6,25= 2505,44 м3/ч:3,6 = 696 л/с;

або Qмах= Qсрзаг=1670,3·1,5 = 2505,44 м3/ч :3,6 = 696 л/с

в)Мінімальна витрата:

мin = 40087∙1,6/100 = 641,4м3/ч:3,6 = 178,2л/с

Результати розрахунків зводимо в таблицю 1.

Таблиця 1. Визначення розрахункових витрат

Режим роботи (витрати в % від Qмакс. доб.)

 Витрати

Q2вод м6/с2

Sвод с2/м5

hвод= 1,1·SQ2 м

Нг+(hвс+hн), м

Нполн = Нг +∑hw +hиз м


Qнс л/с

Qвод м3/с






Мінімальні витрати % від Qмакс. доб.

178

0,089

0,0079

101,67

0,9

14,94

16,34

Середні витрати 4,17% від Qмаксдоб

464

0,232

0,0538


6,02


21,46

Максимальні витрати Qмах.= Kзаг·Qсер

696

0,348

0,12


12,31


27,12

2. Визначення діаметру водовода и повного напору

Насосна станція подає воду в місто по двох паралельних водоводах, тому що за вимогами СНиП 2.04.03-85 ми повинні забезпечити безперебійну роботу насосної станції.

Для визначення діаметра водовода й втрат напору в ньому, можна користуватися таблицями А.Ф.Шевелева, в яких наведено втрати напору 1000і на довжину 1км. Діаметри водоводів також можна визначити за формулами гідравліки.

По числу жителів і максимальній добовій подачі відносимо НС до другої категорії надійності дії, тому згідно п.5.8. СНиП 2.04.03-85 приймаємо два водоводи.

Виходячи з економічних швидкостей (п.7.9. СНиП2.04.02.84) призначаємо діаметр напірних водоводів за формулою:

вод = √ ((4·Qвод)/( р·Vэк)), м

де Qвод= Qmax/2 = 696:2=348л/с = 0,348 м3/с ; эк - економічні швидкості при d < 600 мм дорівнюють 1,2 - 1,8 м/с;вод = √ ((4·Qвод)/( р·Vэк)) = √(4∙0,348/3,14∙1,5) = 0,544 м

Приймаємо діаметр труб 500мм, матеріал - чавунні труби.

При цьому V= 1,71 м/с;

i = 8,21м;

Ат = 0,06778 с26;

Де Ат - питомий опір труб на 1м довжини у с26, приймаємо за табл. 2.1. додатку ;

i - втрати напору на 1км довжини водовода.

Втрати напору у водоводі визначають за формулами:

hвод = 1,1 ∙(1000і∙ lвод ) = 1,10∙ (8,21 х 1,5) = 13,54м;вод = 1,1 · SQ2 = 1.1 · 101,67∙ ( 0,348)2 = 13,54 м;вод = Aт· lвод = 0,06778 ∙ 1500 = 101,67 с25;

 

Визначення повного напору насоса

Повний напір насоса при максимальній подачі дорівнює

Н = Нг + ∑hw;

де Hг - геометричний напір, Hг = Zос - Zрез, Zрез = Zлот - 1,0м ;

∑hw = hвод +( hвс + hн) + hзл;

(hвс + hн) - сума втрат напору в комунікаціях насосної станції;

hзл - витрати на злив (0,5 - 1,0 м);

г = Zос - Zрез = 60,0 - 47,56 = 12,44 м;

Zрез = Zлот - 1,0 = 48,56- 1,0 = 47,56 м .

Сума втрат (hвс + hн) у всмоктувальній і напірних сполучних лініях попередньо приймаємо рівними 2,5м (ці втрати у подальшому розрахунку уточнюються).

Н = Нг + ∑hw = 12,44+ 13,54 + 2,5 + 0,5 = 28,98 ≈ 29.0 м;

По максимальній секундній витраті 696л/с і повному напору 29,0м по каталогу насосів і зведеному графіку полів Q-H (рис.2.15 МВ) підбираємо 3 робочих горизонтальних насоса марки СМ250-200-400/4Б. Подача одного насоса дорівнює 232л/с. Згідно п.5.4. СНиП 2.04.03 - 85 на НС ІІ категорії при числі робочих агрегатів до 3-х варто приймати 2 резервних агрегатів.

Разом до установки прийнято 5 насосних агрегатів марки СМ250-200-400/4Б. Робочі характеристики насоса приведені на рисунку 2.

Рис.2. Характеристики насоса СМ250-200-400/4Б

. Розміщення основного обладнання в машинному залу

У машинному залу розміщуються 5 технологічних насосів СМ250-200-400б/4Б (3робочих і 2-х резервних), 2 насоси ВК2/26 (1 - робочий, 1 - резервний зберігається на складі) для подання води на ущільнення сальників основних технологічних насосів, 2 погружних дренажних насоса марки ГНОМ 10-10 (1 - робочий і 1 - резервний), які встановлюють у дренажному приямку.

Насоси СМ250-200-400б/4Б монтуються з електродвигуном на загальній плиті, що входить в об'єм постачання заводу виробнику і встановлюються під затокою відносно рівня води в приймальному резервуарі, при якому включається перший насос в роботу. Компонування насосів прийнято згідно з типовим проектом, однорядне, перпендикулярно подовжній розділовій стіні.

Проектуємо два діаметрально протилежні виходи напірного трубопроводу з насосної станції, d = 500 мм із сталевих труб. На напірному трубопроводі кожного насоса встановлюється зворотний клапан між засувкою і насосом. До кожного насоса передбачена окрема всмоктувальна труба. Засувки на загальному напірному трубопроводі встановлені електрифіковані, на всмоктувальних і напірних трубопроводах від кожного насоса теж.

. Гідравлічний розрахунок всмоктувальних і напірних трубопроводів

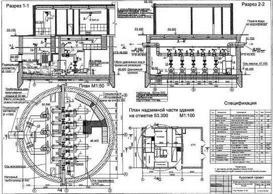
Для визначення внутрішньостанційних опорів викреслюємо аксонометричну схему (рис.2.3.) всмоктуючих і сполучних напірних трубопроводів. На схемі вказуємо діаметри, арматуру, фасонні частини і визначаємо самий невигідний для розрахунку втрат напору шлях руху води.

Обчислення внутрішньостанційних опорів у всмоктувальних і напірних сполучних лініях зводимо в таблицю 2.

Гідравлічний розрахунок внутрішньостанційних опорів в комунікаціях розпочинаємо з визначення діаметрів труб.

Діаметри всмоктуючих і напірних труб визначаємо по формулах:

вс = √ ((4∙Qвc) / (р∙Vэк)) =√(4∙0,232/3,14∙1,0) = 0,54м;

де Vек - допустимі швидкості у всмоктуючих трубопроводах (при d = 300 - 800 мм швидкість 0,8 - 1,5 м/с; у напірних трубопроводах - 1,0 - 3 м/с).

Приймаємо d.вс= 500 мм; при цьому згідно табл. Шевелева Vек=1,1м/с;

н = √ ((4∙Qн)/(3,14∙2,0)) =√(4 ∙ 0,232 / 3,14∙2,0) = 0,39м.

Приймаємо труби, диаметром dн = 400 мм, при цьому згідно табл. Шевелева швидкість дорівнює Vэк. нап = 1,71м/с;

Внутрішньостанційні трубопроводи приймаємо із сталевих труб, що сполучаються на зварюванні, а в місцях установки арматури - на фланцях.

Рис. 3. Аксонометрична схема внутрішньостанційних комунікацій для визначення опорів у всмоктувальних та напірних трубопроводах в середині насосної станції з п’ятьма горизонтальними насосними агрегатами типу СМ250-200-400

Номери опорів на схемі відповідні номерам опорів у таблиці 2.

Примітка: Аксонометрична схема внутрішньостанційних комунікацій вертикальних насосів типу СДВ і таблиця з обчислень опорів наведена у додатку (див. рис. 8 і табл. 6.)

Втрати напору у всмоктувальних і напірних трубопроводах визначаємо за формулами:

вс= Sвс ∙Q2 = 3,72∙(0,348)2= 0,45мн= Sн ∙Q2 = 15,45∙(0,348)2= 1,87м

Отримане розрахунком значення суми внутрішньостанційних втрат напору у всмоктувальних та напірних сполучних лініях

∑hнс = (hвс + hн)

має бути не більше за суму цих величин, прийняту попередньо при підборі насосів, а саме

∑ (hвс + hн) = 2,32м < менше 2,5 м,

де Sвс Sн - відповідні питомі опори всмоктувальних і напірних сполучних лінях, визначаються як:

вс = ∑Ат·L+ ∑Ac ·ж, c25,c= 0,0827/d4 ,

де Ат = f(d), c26 - питомий опір трубопроводу, який визначено по діаметру і матеріалу труб (таблиця 1); - коефіцієнт, що залежить від діаметру за даним місцевим опором (таблиця 1.);- довжина прямих ділянок труб в метрах (приймаєтся 3-5м);

ж - коефіцієнт цього місцевого опору;

Величини коефіцієнтів Ат, Ас і ж приводяться в таблицях додатку 13 .

Розрахунок можна вести в табличній формі, табл.2.

Таблица 2. Визначення опорів у всмоктувальних та сполучних напірних внутрішньостанційних трубопроводах

№ опорів

Найменування опір

Схема

Кількість n

Діаметр, d, мм

Ас, або Ат

ж або l

S=Ас·ж· n S= Ат·l

1. Всмоктувальна лінія

1

Вхід в трубу

1

500

1,32

0.2

0,264


2

Коліно

1

500

1,32

0.6

0,792


3

Засувка

1

500

1,32

0.2

0,264


4

Перехід звужений

1

250

21,1

0.1

2,11


5

Пряма ділянка

---

1

500

0,05784

5.0м

0,290

∑Sвс= 3,72с2/м5

2.Напірна лінія

6

Перехід розш.

1

400

3,23

0.25

0,808


7

Зворотній клапан

1

400

3,23

1.7

5,49


8

Засувка

1

400

3,23

0.2

0,646


9

Коліно

1

400

3,23

0.6

1,94


10

Засувка

5

500

1,32

0.2

1,32


11

Трійник з поворотом

1

500

1,32

1.5

1,98


12

Трійник транзитний

4

500

1,32

0.1

0,528


13

Пряма ділянка

---

1

500

0,05784

20м

1,1568

14

Коліно

2

500

1,32

0.6

1,584


∑Sн= 15,45с2/м5


. Побудова графіка спільної роботи насосів і водоводів

Характеристику трубопроводу будуємо методом підбора, задаючись витратою Q1, Q2,… Qn і визначаючи відповідний напір за рівнянням

Н = Нг + ∑hw

де Нг - геометричний напір насосів, дорівнює 12,44м; ∑hw - загальні втрати напору у системі ∑hw = hвод +hвс +hн +hзлив ;

S - загальній опір системи (водоводи, всмоктувальні та сполучні напірні лінії в середині насосної станції), с25.

Розрахунки доцільніше вести в табличній формі (див табл.2.3).

= Sвод + Sвс + Sн =101,67+3,72+ 15,45 = 120,84с25,

де Sвод = Ат·lвод = 101,67с25, Sвс = 3,72с25 ; Sн =15,45 с2/ м5

Таблиця 3. Для побудови графіка спільної роботи насосів та водоводів

Витрата

Q2вод , (м6/с2)

S, (с2/м5)

∑hw= 1,1·SQ2, (м)

Нг, м

Нпол=Нг +∑hw , (м)


Qвод, л/с

Q, м3/с






1

100

0,1

0,01

120,84

1,33

12,44

14,3

2

200

0,2

0,04


5,3


18,2

3

342

0,342

0,117


15,6


28,5

4

400

0,4

0,16


21,3


34,2

5

500

0,5

0,25


33,2


46,1


Аналіз графіка спільної роботи насосів і водоводів (рис.2.4.) показує, що мінімальний режим водовідведення, при витраті води Q = 178л/с і тиску Н=16,4м недоцільно забезпечувати підібраними насосами СМ250-200-400/4б, оскільки подачу насоса Qмін = 178л/с він забезпечує при тиску Н = 37,5м, а в мережі необхідний при цьому тиск всього 16,4м, тобто різницю напору (Н-Нмін)=37,5-16,4 =21,1м в години мінімального водоспоживання необхідно глушити засувкою, це допускається, але в невеликих межах, коли Н/Нмін буде не більш 1,2, а в нас відношення дорівнює 37,5/16,4 = 2,28 .

Для забезпечення економічної роботи насосної станції необхідно для мінімального режиму водоспоживання підібрати інший насос з меншою продуктивністю (або один з прийнятих насосів обладнати електродвигуном з частотним приводом для можливості регулювання витрати насоса зміною частоти обертання валу насоса). У кожному конкретному випадку вибирають варіант на основу техніко-економічних розрахунків.

6. Визначення відмітки осі насоса - ▼ВН

Згідно СНиП на каналізаційних насосних станціях насоси слід встановлювати під затокою.

Тому для нормальної роботи насоса його корпус розташовують на 0,3-0,5 м нижче рівня води в приймальному резервуарі, при якому включається перший насос в роботу - Zвкл (див. мал. 2.5.)

вкл = Zmax - 0,2(n-1) = 48,56 - 0.2 (3 - 1) = 48,16м,max = Zлот = 48,56м,

де: n - кількість насосів;

Відмітку осі насоса визначаємо за формулою:

ВН = Zвкл - 0,5 - h до осіагр = 48,16 - 0,5- 0,56 = 47,100м

де hдоосіагр - габарит насоса від верху корпусу до осі насоса приймається по монтажному кресленню каталогу насосів (табл.2.16.Додатку).

Відмітка підлоги машинного зала визначена за формулою:

м.з. = ВН - hагрдо низу - hф = 47,100- 0,7 = 46,400м.

ф - висота фундаменту для малих насосів не менше 0,25 м, для середніх- (0,4-0,7м).

Глибина приймального резервуару для насосів типу СМ дорівнюєрез = 1,5- 2,0 м. Приймаємо hрез =2,0м.

Тоді глибина машинного залу дорівнюєм.з. = 53,30 - 46,4 = 6,9м;

Геометричну висоту всмоктування визначаємо за формулою

Нs= 10-∆h- hвс - hн.п.ж = 10-8,5-0,45-0,24= 0,81м;

Тоді відмітка осі насоса становить ВН = РВmin + Нs = 46.56 + 0.81 = 47.37м, а розрахункова відмітка осі насоса дорівнює 47.100м, тобто насос в змозі працювати, якщо у приймальному резервуару мінімальний рівень води і насос працюватиме з позитивною висотою всмоктування.

Рис. 4. Графік паралельної работи 3-х насосів СМ250-200-400/4б і двох водоводів

. Визначення потужності і підбір електродвигунів і трансформаторів

Потужність електродвигунів визначаємо за формулою (13):

дв. = Кз · Nвал ;вал = Q1 · H1/(102 · з1) , кВт;

где Q1, H1, з1 -- параметри, які приймаємо за графіком спільної роботи, при роботі 1-го насоса на два водоводи (див.рис.2.4).

Кз -- коефіцієнт запасу, який дорівнює:

при: N до 100 кВт   Кз = 1,2

> 100 кВт   Кз = 1,1 вал = Q1 · H1/(102 · з1) = 272∙23/102∙0,64 = 96кВт ;

дв. = 96 ∙1,2 = 115 кВт,

Приймаємо (з табл.2.15.) електродвигун марки 4А315S4У3, потужністю 160 кВт, потужність якого повинна дорівнювати, або перевищувати розраховану.

Потужність трансформаторів визначаємо за формулою:

Р = (Кс · ∑Nуст)/( здв · cos ц) + 10 = 0,85·3·160/0,85·0,93+10 = 526кВА,

де: Nуст - підсумкова потужність електродвигунів без резервних;

Кс -- коефіцієнт попиту по потужності;

при двох електродвигунах - Кс = 0,9;

при трьох електродвигунах - Кс = 0,85;

при чотирьох - Кс = 0,8;

при п’яти - Кс = 0,7;

кВ·А додаємо на потреби насосної станції та допоміжне обладнання (дренажні насоси, технічної води або ін.). Значення здв і cos ц - беруться з технічних характеристик електродвигунів: попередньо можна прийняти здв = 0,93; cos ц = 0,85.

Рис. 5. Схема для визначення відмітки осі насосу в залежності від рівня води в приймальному резервуарі І, ІІ, ІІІ- рівень включення першого, другого та третього насосу; І', ІІ', ІІІ'- рівень вимкнення насосів.

До установки приймаємо 2 трансформатори, які знижують напругу з 6кВ до 0,380кВ потужністю Р = 400кВ·А кожний.

При роботі одного трансформатора на все навантаження, на випадок аварії, перевантаження трансформатора складе:

Кпер = 526/400=1,31 < 1,4 , що в межах норми.

Сучасні трансформатори випускають потужністю

-250кВ·А; 400-630; 750-1000; 1350-1800 кВ·А

. Визначення місткості приймального резервуару

Робоча місткість приймального резервуару - це об'єм, що знаходиться між максимальним і мінімальним рівнями води в резервуарі. Для прямокутної в плані підземної частини будівлі

р = Вр · Lр · hр,

де Вр і Lр - відповідно внутрішні розміри ширини і довжини приймального резервуару, hр = Z max - Zmin - робоча глибина приймального резервуару.

Для круглої в плані підземної частини станції можна приблизно визначити так:

р = р·D2/8 ·hр , м3,

де D - внутрішній діаметр підземної частини будівлі насосної станції, для насосів типу СМ (D = 12м при чотирьох насосних агрегатах типу СМ і 14м - більше 4-х насосних агрегатів СМ; для вертикальних насосів типу СДВ діаметр підземної частини будівлі D =24м; hр - робоча глибина приймального резервуару (прийнята для горизонтальних насосів hр = 1,5- 2,0м; для вертикальних hр = 2,0-2,5м).

р = р·D2/8 ·hр = 3,14 х 142 х 2 = 153,0 м3

Мінімальна місткість повинна бути менше робочої , но не менше п'яти- семі мінутної подачи одного насоса

min= 5·Q1/60,

1- подача одного насоса при його роботі на два водоводиmin = 1080∙5/60 =90 м3,min < Wр.

. Складання специфікації

Специфікація складається для попереднього замовлення виготовленого на заводах обладнання, для зручності читання креслень при будівництві станції, монтажі обладнання і його експлуатації.

Специфікація складається на основне та допоміжне обладнання, трубопровідну арматуру і вантажопідйомне обладнання.

В специфікації спочатку перераховуємо основні насоси, далі допоміжне обладнання (це дренажні та технічні насоси), підйомне-транспортне обладнання та запірна трубопровідна арматура (починаючи з найбільшого діаметру). Можна додати контрольно-вимірювальні прилади.

Розміри зазначені у міліметрах. Висота строки приймається 8-10мм.

Трубопровідну арматуру підбираємо по табл.2.2- 2.4.

Позиція

Позначення

Найменування

Кількість

Маса д. кг.

Примітка







20мм

60мм

60мм

10мм

20мм

Рис. 6. Форма таблиці для складання специфікації

Таблиця 4. Специфікація

Позначка

Найменування

Кіл-ть

Маса од. кг.

Прим.

1

Завод «Уралгідромаш»

Насос від центр. СМ250-200-400/4б с дв.4А315S6У3

5

2069

3роб.+2рез



 N=160 кВт




2

«Сігнал» м. Ріга

Насос консольний відцентровий К30/20



1роб+1рез

3

Московський

Дренажний насос

2

22

1роб+1рез


механічний з-д

ГНОМ10-10




4

Луцьккомунмаш

Решітка-дробарка РД-600

3

1800

2роб+1рез

5

Красногвардейський крановий завод ДОСТ7413-80Е

Кран підвесний ручний в/п 2т

1

469


6

-«-

Теж, в/п 3,2т

1

460


7

ДОСТ1106-80*

Таль ручна в/п 1т

1

39


8

ДОСТ22584-80*

Таль электрична

1

357




канатна в/п 2т




9

30ч914нж1

Засувка паралельна Д=500 Ру=0,6МПа

5

495

на всмок. лін.

10

30ч915бр

Засувка, Ду=500мм Ру=1,6МПа

6

899

на водов.

11

30ч906бр

Засувка, Ду=400мм Ру=1,0МПа

5

899

на напірн. лінії

12

КЗ44067

Клапан зворотний безударний фланцевий Ду=400

5

128

на напірн. лінії

13

Севастопольский электрорем. завод

Затвор щитовой 1000х1000

3


на каналі

10

ТК і деталі Т2092

Бак розриву струї сталевий зварний

1

104



На автоматизованих насосних станціях незалежно від діаметру, трубопровідну арматуру слід проектувати з електроприводом. На всмоктувальній лінії установлюють засувки для тиску Ру = 0,25 МПа, або Ру = 0,6 МПа, а на напірних лініях - Ру = 0,6-2,5МПа. Тиск напірних трубопроводах визначають за максимально можливого напору насосів (робота на закриту засувку). Трубопровідну арматуру виготовляють для таких умовних тисків Ру: 0,25МПа; 0,4; 0,6; 1,0; 1,6; 2,5; 4,0; 6,4; 10,0; 16,0 МПа. Трубопровідну арматуру підбірають за діаметром та тиском. Розташування за кожним з насосів зворотного клапана значно спрощуэ автоматизацію увимкнення та вимкнення насосів. Звичайно, рекомендують використовувати «безударні» клапани. Ці клапани мають меншу масу більш плавну «безударну» посадку диску на сідло при закритті клапана. Технічні характеристики клапанів подано в таблиці 4.

водовод всмоктувальний електродвигун гідравлічний

Список літератури

1.  Карелин В.Н., Минаев А.В. Насосы и насосные станции.-М.: Стройиздат,1986.-320с.

2.      Залуцкий Э.В., Петрухно Л.И. Насосные станции. Курсовое проектирование. - К: Выща школа,1987.-167с.

.        Лобачев П.В. Насосы и насосные станции. - М.:Стройиздат, 1990. - 320с.

.        Водоснабжение. Наружные сети и сооружения. Нормы проектирования: СНиП 2.04.02-84 Гос. Ком. СССР по делам строительства. М: ЦИТП Госстроя СССР, 1985.

.        Шевелев Ф.А., Шевелев А.Ф. Таблицы для гидравлического расчета водопроводных труб. - М.: Стройиздат, 1984.

6.      Николова Р.А. и др. Каталог насосного оборудования. МУ . ОГАСА, 1999.- 109с.

7.      Каталог насосов С.М. Рыбницкий насосный завод Номенклатура выпускаемой продукции

8. Справочник по гидравлическим расчетам, под редакцией П.Г. Киселева изд. 4-е, переработ. и доп. М., «Энергия», 1972.-312с.

Додатки

Таблиця 1. Розрахункові дані питомих опорів для сталевих, чавунних та азбестоцементних труб та коефіцієнтів Ас Ас = 0,827/d4

Діаметр, мм

Труби сталеві Ат(с2/м6)

Чавунні труби Ат(с2/м6)

Азбестові цементні труби Ат(с2/м6)

Ас

50

3686

11540

6851

13232

100

172,9

311,7

187,7

827

150

30,65

37,11

31,55

163

200

6,96

8,09

6,9

51,5

250

2,19

2,53

2,227

21,1

300

0,847

0,949

0,914

10,2

350

0,373

0,4365

0,434

5,49

400

0,186

0,219

0,217

3,23

450

0,0993

0,1186

-

2,02

500

0,05784

0,06778

0,0714

1,32

600

0,02262

0,02596

0,212

0,637

800

0,0055

0,0057

0,0048

0,202

1000

0,0017

0,00175

0,0015

0,0827

1200

0,00065

0,00066

-

0,0399

1400

0,000292

-

-

0,0215

1600

0,000144

-

-

-


Таблиця 2. Технічні характеристики засувок з електроприводом

Розміри, мм

Ру, МПа

Позначення засувки, тип шпинделя

Потужність, кВт

Вага один., кг

L

Н

l

А

L1





100

230

685

405

262

-

1,0

паралельна, 30ч906бр, з висунутим шпинделем

0,18

75

150

280

805

405

337

-



0,18

112

200

330

1050

468

400

-



0,6

183

250

450

1185

468

460

-



0,6

242

300

500

1340

468

508

-



1,3

310

400

600

1690

468

620

-



1,3

500

450

600

1600




1,0

паралельна, 30ч915бр, шпиндель не висунутий

1,4

750

500

700




-



1,5

899

600

800

1750

603

895

620



1,6

1233

800

1000

2215

770

1185

710



2,2

2880

1200

1400

3295

820

1595

970



4,5

7810

200

230




-

0,6 0,25

клинова, шпиндель висунутий 30ч914нж1


186

400

310

1750

495


-



1,3

300

500

350

2265

602


-



2,2

495

600

390

2410

602


-



2,2

625

800

470

3290

604


-



3,0

1049

1000

550

2540

605

1352

-

0,25

клинова, 30ч925бр шпиндель не висунутий

3,0

2245

1200

700

2930

820

1685

-



5,2

4668

1400

900

3290

820

1810

-



7,5

5126

1600

1000

3490

820

1930



7,5

6225

1000

1200

2600

820

1390


1,0

клинова, 30ч930брМ шпиндель не висунутий

5,2

3523

1200

1400

2900

820

1596




5,2

7327

1400

1900

3600

820

1850




5,2

9109

1600

2200

3600

820

1850




5,2

9934

200

400

1225

495


-

2,5

клинова, шпиндель висунутий 30ч964нж

1,3

264

300

500

1590

565


-



2,1

560

400

700

1750

650


-



3,5

680

1000

1900

3835

820


1035



7,5

5060

500

700

1955

820

835


2,5

клинова, 30ч930брМ шпиндель не висунутий

7,5

1383

600

800

1955

820

835

575



7,5

1433

800

1000

2770

820

1190

860



7,5

3671


Таблиця 3. Технічні характеристики дискових поворотних затворів 

Розміри, мм

Потужність електродвигуна

Ру,МПА

Позначення умовне

Вага од.,кг

D

L

Н





100


52


-

1,0

МТР

7,5

150


62


-



13,5

200


90


-



29

300

400

220

500

0,18

1,0

ИА99044

180

400

565

240

515

0,6



228,5

600

780

300

815

1,3



445,5

800

1010

400

833

2,0



943

1000

1220

450

1023

3,0



1338

1200

1455

450

800

3,0

1,0

МА99016.03

2235

1400

1675

500

905

5,2



3793

1600

1915

675

950

7,5



4987


Примітка: Усі затвори -фланцеві, ИА та МА - затвори з електроприводом, МТР- з ручним приводом.

Таблиця 4. Технічні характеристики зворотних без ударних клапанів

Dу,мм

Довжина, мм

Тип клапана

Ру, МПа

Позначення умовне

Вага од.,кг

50

60

без ударний, фланцевий

1,6

КА44075

9,1

80

70




15,7

100

80




17,7

150

100




31,2

200

110



Л44075

41,4

250

120




52,5

300

130


1,0

КЗ44067

45

400

170




128

500

200




183

600

240




237

800

350

фланцевий з противагою

1,6

ПФ44003

808

1000

400




1176

300

450

з кінцями під приварку

4,0

ИА44078

78

400

500




130

600

650




360


Таблиця 5. Середньодобове водоспоживання у % по годинах доби в залежності від годинного коефіцієнта нерівномірності водоспоживання

Години доби

% водоспоживання в залежності від коефіцієнта нерівномірності водоспоживання


1,8

1,7

1,6

1,5

1,4

1,31

1,3

1,25

1,2

0-1

1,25

1,25

1,55

1,6

1,65

1,84

1,9

2,0

2,25

1-2

1,25

1,25

1,55

1,6

1,65

1,84

1,9

2,0

2,25

2-3

1,25

1,25

1,55

1,6

1,65

1,84

1,9

2,0

2,25

3-4

1,25

1,25

1,55

1,6

1,65

1,84

1,9

2,0

2,25

4-5

1,25

1,25

1,55

1,6

1,65

1,84

1,9

2,0

2,25

5-6

3,3

3,5

4,35

4,15

4,2

4,85

4,9

5,05

4,9

6-7

5,0

5,2

5,95

5,75

5,8

5,00

5,1

5,15

4,9

7-8

7,2

7,0

5,8

6,0

5,8

5,00

5,1

5,15

5,0

8-9

7,5

7,1

6,7

6,25

5,85

5,46

5,5

5,2

5,0

9-10

7,5

7,1

6,7

6,25

5,85

5,46

5,45

5,2

5,0

10-11

7,5

7,1

6,7

6,25

5,85

5,46

5,45

5,2

5,0

6,4

6,4

4,8

5,0

5,05

5,25

5,2

5,1

4,9

12-13

3,7

3,8

3,95

4,15

4,2

5,0

4,85

5,0

4,7

13-14

3,7

3,8

3,55

5,75

5,8

5,25

5,2

5,1

5,0

14-15

4,0

4,2

6,05

6,25

5,8

5,46

5,45

5,2

5,0

15-16

5,7

5,8

6,05

6,25

5,8

5,46

5,45

5,2

5,0

16-17

6,3

6,4

5,6

5,8

5,8

5,46

5,45

5,2

5,0

17-18

6,3

6,4

5,6

5,7

5,75

4,85

5,15

5,15

5,0

18-19

6,3

6,4

4,3

4,4

5,2

4,85

5,0

5,1

5,0

19-20

5,25

5,3

4,35

4,15

4,75

4,85

5,0

5,1

5,0

20-21

3,4

3,4

4,35

4,15

4,1

4,85

5,0

5,1

5,0

21-22

2,2

2,2

2,35

2,45

2,85

3,45

3,5

3,8

4,7

22-23

1,25

1,25

1,55

1,6

1,65

3,12

1,9

2,0

2,4

23-24

1,25

1,25

1,56

1,6

1,65

1,72

1,9

2,0

2,25

разом

100%

100%

100%

100%

100%

100%

100%

100%

100%


Рис. 8. Розрахункова аксонометрична схема всмоктувальних та напірних трубопроводів насосної станції з пятьма вертикальними насосами типу СДВ2700/26,5 (номер опорів на аксонометричній схемі відповідний номеру опорів у таблиці 6.)

Таблиця 6. Визначення опорів у всмоктувальних та сполучних напірних лініях

Найменування опору

Схема

Кіл-ть n

Діаметр, d, мм

Ас, або Ат

ж або l

S=Ас·ж· n S= Ат·l

 

1. Всасывающая линия

 

1

Вхід в трубу

1

800

0,202

0.2

0,0404


 

2

Коліно

1

500

1,32

0.6

0,792


 

3

Засувка

1

800

0,202

0.2

0,0404


 

4

Перехід звужений

1

700

0,344

0.1

0,034


 

5

Пряма ділянка

---

1

800

0,0055 Ат

2.0

0,011

 







∑Sвс=

0,92с2/м5

 

2. Напорная линия

 

6

Перехід розш.

1

600

0,637

0.25

0,159


7

Зворотній клапан

1

600

0,637

1.7

1,08


8

Засувка

1

600

0,637

0.2

0,127


9

Коліно

1

600

0,637

0.6

0,382


10

Засувка

4

800

0,202

0.2

0,162


11

Трійник з поворотом

1

800

0,202

1.5

0,303


12

Трійник транзитний

3

800

0,202

0.1

0,061


13

Пряма ділянка

---

1

800

0,0055 Ат

20

0,11

14

Коліно

2

800

0,202

0.6

0,242








∑Sн=

2,63с2/м5


Рис. 9. Зведений графік полів Q-H само всмоктувальних насосів типу ВК, ВКС і ЦВ

Рис. 10. Визначення розмірів фасонних частин

Фасонні частини Д < 500мм виготовляються монтажниками на місті.

Рис. 11. Установлення консольного насоса типу СМ

Таблиця 7. Приведена висота атмосферного тиску в залежності від розташування насосу над рівнем моря

Висота над рівнем моря в метрах

-600

0

100

200

300

400

500

600

700

800

900

1000

1500

2000

Атмосферний тиск, hа, м. вод. стовпа

11,3

10,3

10,2

10,1

10

9,8

9,7

9,6

9,5

9,4

9,3

9,2

8,6

8,4


Таблиця 8. Тиск насиченої пари води, hн.п., в залежності від її температури

Температура води 0С

5

10

20

30

40

50

60

70

80

90

100

Тиск насиченої пари рідини, hн.п., метрів водяного стовпа

0,09

0,12

0,24

0,43

0,75

1,25

2,02

3,17

4,82

7,14

10,33


Таблиця 9. Технічні характеристики вихрових само всмоктувальних насосів ВКС та ЦМК

Марка

Подача, л/с

Напір, м

Потужність, кВт

Маса, кг

Габарити в плані, мм

Допустима вакууметрична висота всмоктування Ндопвак

ВКС 2/26

0,75-2,2

60-20

5,5

130

947х320

4

ВКС 4/24

1,58-4,3

70-20

7,5

166

1005х360

4

ВКС 5/24

2,38-5,4

70-20

10

180

1047х320

4

ВКС 10/45

5,0-11,1

30

315

1197х430

3

ЦМК16/27

4,4

27

4

136

2000х200

-


Таблиця 10. Технічні характеристики ручних кранів (кран-балки рис. 12.)

Довжина крану L, м

Вантажопідйомність,т

Прогін, Lп, м

Розміри,мм

Номер двотавра підкранового шляху




h

Н

l2

С

В

Маса крана, кг


3,6

0,5

3

370

220

300

1000

1300

274

18


1


370

220


1000


274

18


2


610

280


1000


460

24


3,2


610

280


1000


469

24


5


755

340


1500

2000

633

30

6,6

0,5

6

370

220

300


1800

372

18


1


370

220




372

18


2


610

340




663

30


3,2


610

340




679

30


5


755

400


1800

2300

889

36

10,2

0,5

9

370

280

600


2100

562

24


1


370

280




562

24


2


610

400




940

36


3,2


610

400




961

36


5


755

490


2100

2600

1271

45


Рис. 12. Кран-балки підвісні: а - ручні, вантажопідйомністю 0,5-5,0т з висотою підйому 3-12м; б- електричні вантажопідйомністю 1-5т з висотою підйому 6-18 м

Рис. 13. Кран мостовий електричний вантажопідйомністю 5-30т

Таблиця 11. Технічні характеристики підвісних кранів з електроприводом (рис. 12.б)

Довжина крану L, м

Вантажопідйомність, т

Прогін, Lп, м

Розміри,мм

Номер двотавра

Маса крана, кг




Н+h

l1

l2

С

В



3,6

1

3

1120

660

300

1000

1350

18

590


2


1350

710


1000

1350

24

785


3,2


1635

750


1000

1365

30

1060


5


1910

900


1500

2095

30

1470

5,1

1

4,5

1125

660

300

1000

1350

18

695


2


1360

710


1000

1350

24

895


3,2


1645

750


1000

1365

30

1180


5


2010

900


1500

2095

30

1745

8,4

1

6,0

1125

660

1200

1500

1850

24

890


2


1360

710


1500

1850

30

1135


3,2


1705

750


1500

1865

36

1500


5


2010

900


1800

2395

36

2070

11,4

1

9,0

1245

660

1200

1800

2150

30

1070


2


1545

710


1800

2150

30

1465


3,2


1955

750


1800

2165

36

1995


5


2170

900


2100

2695

36

2530


Таблиця 12. Технічні характеристики мостових кранів з електроприводом (рис. 13.)

Вантажопідйомність, т

Прогін, Lп, м

Розміри,мм

Маса крана, кг



Н

h1

l1

l2

В

С


5

11-32

1650

50

1100

300

5000 6500

3500 5000

13,6-33,3

17-10

10,5-34,5

1900

500

1200

1100

5508 5802

4400 5000

17-34,9

15/3

11-26

2300

600 100

2000 1000

1880 1120

5600

4400

20,5-34,4

20/5

10,5-25,5

2400

600 50

2250 1250

1950 1300

5600

4400

23-40,5

30/5

10,5-31,5

2750

400 300

2560 1600

1910 950

6300

5100

33,5-66

Примітка: в знаменнику вказані параметри допоміжнього крюка

Таблиця 13. Середні значення коефіцієнтів місцевих опорів - ж

Найменування опорів

Схема

Значення ж

Вхід у трубу без розширення

 ж =0,5


Перехід звужуваючий

(D-d)=100мм ж =0,2 (D-d)=150мм ж =0,24


Раптове розширення потоку

ж =1,0


Перехід розширений (дифузор)

ж=[(D/d)2 - 1]2, де ж= 0,1 при (D-d)=50 ж = 0,2 при (D-d)=100 ж = 0,4 при (D-d)=200


Трійник прямий з поворотом або хрестовина

ж= 1 - 2


Трійник прямий транзитний або хрестовина

ж=0,1 - 0,15


Коліно 900

ж=0,6


Засувка відкрита

ж=0,2


Зворотний клапан

ж=1,5-2,5


Витратомір


ж = 1

а)діафрагма


ж = 4

б)сопло Вентурі


ж = 1 - 2,75

в)труба Вентурі


ж = 0,7 - 1,9


Рис. 14.Монтажне креслення вертикальних насосів СДВ з електродвигунами для перекачування стічної рідини: 1-корпус насоса; 2 - вал; 3 - електродвигун; 4- всмоктувальний патрубок; 5 - напірний патрубок;

Таблиця 14. Розміри вертикальних насосів типу СДВ з електродвигунами

А

L

B

C

D

D

Маса насосу, кг

Марка електродвигуна

Потужність, кВт

Частота обертан. об/хв

Напруга В

СДВ2700/26,5

2280

3620

2105

1100

700

500

3900

ВАН118/23-8

400

750

6000

СДВ4000/28

 2075

4570

1870

1500

800

600

8000

ВАН143/36-16 ВАН143/46-16

500 630

375

6000

СДВ7200/29

2525

5700

1950

1900

1200

800

8750

СДВ2-143/34-12 ВАН143/51-12 СДВ2-143/51-12 ВДС215/41-12

800  1000  1250  1600

500

6000-10000

СДВ9000/45

2500

4760

3010

2200

1200

1000

10300

ВАН173/46-12

1600

500

6000



Рис. 15. Зведений графік полів Q-H горизонтальних насосів типу СМ

Рис. 16. Монтажне креслення горизонтального насосу типу СМ250-200-400

Таблиця 15. Габаритні розміри насосів типу СМ

Маркування електронасосного агрегату

Типорозмір двигателя

L

L1

L2

L3

L4

L5

L6

L7

L10

L9

1

2

3

4

5

6

7

8

9

10

11

12

СМ 100-60-200/2

4А200М2

1433

195

80

465

1…8

70

125

142

1000

1238

СМ 100-65-200/2Е

В 200М2

1553










СМ 100-65-200а/2

4А180М2

1425








900

1220

СМ 100-65-200а/2-Е

В 180М2

1518










СМ 100-65-200б/2

4А180S2

1395










СМ 100-65-200б/2-Е

В 180S2

1473










СМ 100-65-200/4

4А112М4

1110

195

80

465

1…8

70

125

142

700

972

СМ 100-65-200/4-Е

В 11244

1238










СМ 100-65-200а/4

4А100/4

1053










СМ 100-65-200а/4-Е

В 100/4

11 8









944

СМ 100-65-200б/4

4А100S4

1023










СМ 100-65-200б/4-Е

В 100S4

1173










СМ 100-65-250/4

4А 132S4

1155

195

90

465

1…8

70

125

142

00

100

СМ 100-65-250/4-Е

2В132S4

1170










СМ 100-65-250а/4

4А112S4

1125








700


СМ 100-65-250а/4-Е

2В112М4

1165










СМ 100-65-250б/4

4А112М4

1125










СМ 100-65-250б/4-Е

2В112М4

1165










СМ 125-80-315/4

4А180S4

1425


105

220

1…8

70

125


800

1230 1212

СМ 125-80-315/4-Е

В180S4

1515










СМ 125-80-315а/4

4А160М4

1430










СМ 125-80-315а/4-Е

В1 SМ4

1505










СМ 125-80-315б/4

4А160S4

1300










СМ 125-80-315б/4-Е

В160S4

1440










СМ 250-200-400/6

4А280S6

2530

380

178

958

6…1

70

125

180

800

2315 2275

 

СМ 250-200-400/6-Е

В280S6

2500










 

СМ 250-200-400а/6

4А250М6

2315










 

СМ 250-200-400а/6-Е

В250М6

2450










 

СМ 250-200-400б/6

4А250S6

2275










 

СМ 250-200-400б/6-Е

В250S6

2400










 


В

В1

В2

В3

В4

Н

Н1

h

Маса, (кг)

13

14

15

16

17

18

19

20

21

720

620

560

-

-

1150

580

15

2065









2235









1815









2040









1770









1985

450

265

305

380


647

225

14

420

475





732



520

410





598



345

460





708



455

410





598



325

460





708



390

310

305

200



513



200







225


245









165









220









180









220

380






270


235









292









260









215









260

400

370

220



668

315

14

405









480









395









470









370









440



Таблиця 16. Загальні показники насосних агрегатів типу СМ

Маркування агрегату

Комплектуючий електродвигун

Параметри

Габаритні разміри

заміна насоса


Найменування

Потужність, кВт

Напір, Н, м

Подача,Q м3/ч



СМ 100-65-200/2

4А200М2У3

37

50

100

1678х310х535

СД 100/40

СМ 100-65-200а/2

4А180М2У3

30

40

90

1620х310х470

СД 50/56,СД 32/40

СМ 100-65-200б/2

4А180 2У3

22

32

70

1575х310х470

СД 160/45

СМ 100-65-200/4

4А112М4У3

5,5

14-12-10,5

35-62,5-75

1305х310х513

СД 50/10

СМ 100-65-200а/4

4А100/4У3

11,5-8,2-8

33-56-67

1248х310х513

СД 25/14

СМ 100-65-200б/4

4А100S4У3

3

8,4-6,3-5,4

30-50-60

1218х310х513

СД 16/10

СМ 100-65-250/4

4АМ132S4У3

7,5

24-20-18

10-50-60

1350х350х560

СД 80/18

СМ 100-65-250а/4

4АМ112М4У3

5,5

20,2-18,6,6-14

8-47-56

1320х350х560

СД 16/25

СМ 100-65-250б/4

4АМ112М4У3

5,5

16,5-13,5-11,5

6-44-54

1320х350х560

СД 16/10

СМ 125-80-315/4

4АМ180S4У3

22

34-32-29

10-80-116

1650х400х668

СД 80/32

СМ 125-80-315а/4

4А180М4У3

18,5

28-26-24

36-72,5-102

1650х400х668


СМ 125-80-315б/4

4А180S4У3

15

21-20-18,5

32-65-85

1610х400х668


СМ 200-150-500/4

4А315М4У3

200

85-80-78

130-400-450

3025х650х1165

СД 450/95-2

СМ 200-150-500а/4

4А315М4У3

160

75-64-62

120-380-430

2965х650х1165


СМ 200-150-500б/4

4А290S4У3

110

60-50-48

110-360-410

2880х650х1165


СМ 250-200-400/4

4А355S4У3

250

55-50-40

640-800-1000

3140х720х1155

СД 450/56

 

СМ 250-200-400а/4

4А315МУ3

200

47-43-33

626-680-870

3055х720х1155

СД 800/32

 

СМ 250-200-400б/4

4А315S4У3

160

32-35-22

600-665-850

2895х720х1155


 

СМ 250-200-400/6

4А280S6У3

75

26,5-23-18

215-640-680

2910х720х1155

СД 450/22,5

 

СМ 250-200-400а/6

4А250М6У3

55

23,2-19,5-16

190-500-680

2695х720х1155


 

СМ 250-200-400б/6

4А250S6У3

45

20-16,5-13,5

150-160-560

2655х720х1155


 

СМ 150-125-315/4

4А200/4У3

55

34,5-32-29,5

110-200-260

2180х517х775

СД 250/22,5

 

СМ 150-125-315а/4

4А200М4У3

37

22,5-26,5-24,5

95-175-230

2140х517х775


 

СМ 150-125-315б/4

4А180М4У3

30

22,5-20,5-19

80-145-195

2055х517х775


 

СМ 150-125-315/4

4А255М4У3

55

34,5-32-31,8

40-200-250

2167х517х818

СДС 80/32

 

СМ150-125-315а/4

4А200/4У3

45

27,5-26,5-26

35-185-230

2157х517х818


 

СМ 150-125-315б/4

4А200М4У3

37

21,5-20-19,5

25-170-210

2117х517х818


 

СД 160/10

4А160S6У3

11

12-10-9

76-160-195

1415х600х640


 

СД 160/10

В 160S6У3

11

1-10-9

76-160-195

1480х600х640


 

СД 160/10а

4А160S6У3

11

10,6-8,3-7,6

68-145-175

1415х600х640


 

СД 160/10а

В 160S6У3

11

10,6-8,3-7,6

68-145-175

1480х600х640


 

СД 160/10б

4А132М6У3

7,5

8,6-7,2-6,7

62-135-160

1320х600х640


 

СД 160/10б

ВАО-52-6У3

7,5

8,6-7,2-6,7

62-135-160

1455х600х640


 



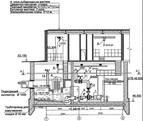
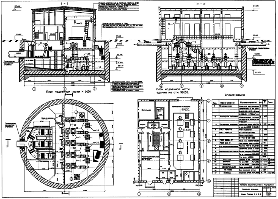
Рис. 17. Загальний вид креслення насосної станції: а) з горизонтальними насосами типу СМ

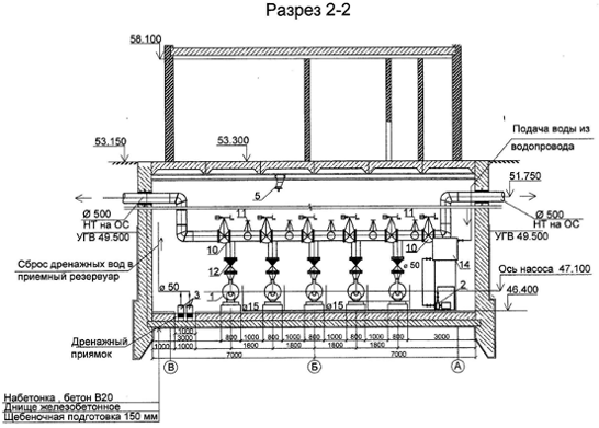
Рис. 18. Розріз 2-2 насосної станції з насосами типу СМ

Рис. 19. Розріз 1-1 з горизонтальними насосами типу СМ

Рис. 20. Компоновка горизонтальних насосів типу СМ250-200-400/4б в машинному залі

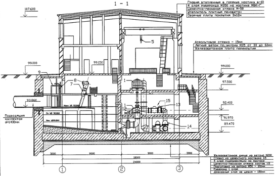
Рис. 21. креслення з вертикальними насосами

Рис. 22. Розріз 1-1 з вертикальними насосами типу СДВ