Материал: Проектирование привода цепного конвейера

Внимание! Если размещение файла нарушает Ваши авторские права, то обязательно сообщите нам

σ0F = 0,6Ft2KFYF/ (b2m) ≤ [σ0F]. (3.32)

Механический КПД червячной передачиη:

η = 0,95tgγw / tg (γw + ρ’). (3.33)

где ρ’ - приведённый угол трения.

В данном случае, что бы не было перегрева редуктора, требуется внешнее охлаждение, для чего на вал червяка проектируется вентилятор.

Уравнение теплового баланса:

t = t0 + (P1 (1 - η)) / (KTA (1 - ψ)) KHEПВ ≤ [t], (3.34)

где t0 - температура окружающего воздуха, град; Р1 - мощность на быстроходном валу, Вт; KT - коэффициент теплоотдачи при обдуве корпуса вентилятором, KT = 29; А - площадь теплоотдающей поверхности, м2, соприкасающейся с воздухом и омываемой внутри корпуса маслом, включая 70% площади поверхности рёбер и бобышек;

А = 2 ∙ 10-5aw1,7, (3.35)

где аw - межосевое расстояние, мм; ψ - коэффициент, учитывающий теплоотвод в раму или плиту (ψmax = 0,3); KHE - коэффициент эквивалентности; [t] - допускаемая температура масла, [t] = 95 оС.

В данном курсовом проекте расчёт червяка выполнен с помощью компьютерной программы APMWINMACHINEв модуле TRANS. Результаты расчётов приведены в приложении А.

4. Ориентировочный расчет валов


Ориентировочным способом следует рассчитывать все валы привода. Из расчёта по касательным напряжениям определяется диаметр вала d, мм:

, (4.1)

Где Т - крутящий момент на соответствующем валу (ТI, TII и т.д.), Н×мм, он равен вращающему моменту;  - допускаемое касательное напряжение; для сталей, используемых в валах, рекомендуется  = 15.25 МПа, для опасного сечения (под шестерней, колесом) следует принимать  =15 МПа, для хвостовика вала -  = 25 МПа.

Исходные данные: TI=462,9Н·м,TII=6420,5Н·м, TIII=6315,2Н·м.

Рассчитаем быстроходный вал редуктора. Ступенчатая конструкция быстроходного вала представлена на рисунке 4.

Рисунок 4 - Эскиз быстроходного вала редуктора

Ступенчатый вал должен имеет три ступени: подступичную часть d1 (головку), опорные участки d2и выступающую часть d3 (хвостовик). Для обеспечения осевой фиксации деталей, собираемых на валу, а также возможности съёма подшипника разность диаметров соседних участков вала должна быть Dd = 5.12 мм в интервале диаметров d= 20.80 мм.

Диаметр хвостовика вала I по формуле (56):

.

Диаметр гладкого вала II:

мм.

Выходной вал редуктора проектируем гладким (рисунок 6).

Рисунок 6 - Эскиз тихоходного вала редуктора

Диаметр гладкого вала III:

мм.

Принят  = 130 мм.

5. Эскизная компоновка редуктора


Эскизная компоновка выполняется в следующей последовательности.

1. Вычерчивают оси валов, располагая их на межосевых расстояниях aw.

2. Вычерчивают контуры червячного колеса, тихоходного вала, радиально-упорные роликоподшипники средней серии, поставленные "враспор", и зазоры.

мм, (5.1)

где Ттх - крутящий момент на тихоходном валу редуктора, Н×м.


Толщина стенок сварного корпусаdсв, мм

 

dсв = 0,8d; (5.2)

dсв = 0,8·12,53 = 10,02мм.

Толщина стенки крышки корпусаd1, мм

 

d1 = 0,9d³7 мм; (5.3)

d1= 0,9 · 12,53 = 11,28 мм.

3. Вычерчивают контуры червяка, быстроходного вала, выполняемого обычно заодно с червяком, и проектируют подшипниковые узлы. На червяк действуют значительные осевые нагрузки, поэтому один из вариантов опор - радиально-упорные конические подшипники, поставленные "враспор".

При назначении ступицы колеса необходимо учитывать, что её длина должна быть больше диаметра вала по рекомендации:

 (5.4)

D2 = 0,8 · 12,53 = 10,02мм;

D3=1,25· 12,53 = 15,66 мм.

Для обеспечения центрирования ступицы по цилиндрической поверхности. Диаметр ступицы назначается по соотношению

 (5.5)


3. Вычерчивают валы с диаметрами и конструктивными решениями, принятыми в ориентировочном расчёте.

4. Назначаются радиально-упорные конические роликоподшипники лёгкой серии, поставленные "враспор"; расстояние от внутренней стенки редуктора до торца подшипника следует принимать D4 = 2.12 мм. ПринятоD4=6 мм.

Таблица 6 - Размеры выбранных подшипников

Вал

Условное обозначение подшипника

d, мм

D, мм

B, мм

r, мм

Ведущий

7210

50

90

20

2

Выходной

7226A

120

230

40

2


3. Конструируют подшипниковый узел для определения размеров консоли. Ориентировочно длину консоли (расстояние от середины подшипника до середины ступицы) назначают:

для быстроходного вала

, (5.6)

для тихоходного

, (5.7)

Расстояние между серединами опор червяка L, мм:

L1 = dам2 = 395 мм. (5.8)

Эскизная компоновка редуктора представлена на рисунке 7.


Рисунок 7 - Эскизная компоновка червячного редуктора

6. Приближенный расчет валов


Целью приближенного расчета является получение более достоверных результатов, чем в ориентировочном расчёте, так как диаметр вала определяют из расчёта на сложное напряженное состояние при действии крутящего и изгибающего моментов. В данном разделе исходными данными расчёта являются: силы, действующие на колёса, шкивы, звёздочки и т.д., расстояния между линиями действия всех сил, диаметры колёс.

Этапы приближённого расчёта валов.

А. Выполнение эскизной компоновки редуктора.

Б. Составление расчётных схем сил, действующих на вал в двух взаимноперпендикулярных плоскостях.

В. Определение реакций опор R в двух плоскостях, радиальных Fr и осевых Fa нагрузок на подшипники.

Г. Построение эпюр изгибающих моментов M в двух плоскостях и эпюры крутящих моментов T.

Д. Определение приведенного момента в расчётном (опасном) сечении:

 (6.1)

где

a - коэффициент, учитывающий соответствие циклов касательного (от крутящего момента Т) и нормального (от изгибающего момента М) напряжений; при реверсивной работе привода a = 1, для нереверсивного привода в предположении частого включения и выключения электродвигателя a = 0,7.

Е. Определение диаметра вала в опасном сечении.

, (6.2)

где

 - допускаемое нормальное напряжение, для наиболее распространенных марок сталей = 50.60 МПа; верхнее значение принимают для вала-шестерни из высокопрочного материала.

6.1 Расчет быстроходного вала


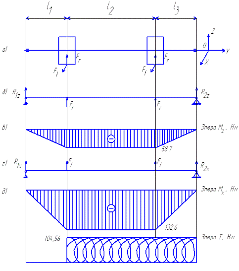
Исходные данные: крутящий момент ТI= 104,56 Н·м, расстояния между линиями действия сил (из эскизной компоновки): l1=l3=67 мм, l2=95 мм.

Параметры передачи приведены в таблице 7.

Таблица 6 - Параметры передачи (выборка из таблицы 3)

 Параметры


Цилиндрическая шестерня

Делительный диаметр d, мм

d1= 66,38

Окружное усилие в зацеплении Ft, H

Ft = 1371,46

Радиальное усилие в зацеплении Fr, H

Fr=876,6

Осевое усилие в зацеплении Fa, H

Fa= 0


Решение:

) Составлена расчётная схема вала (рисунок 8). На схеме нагружения валов (рисунок 8, а) действующие силы приложены в соответствии с кинематической схемой на рисунке 1.

) Определены реакции и моменты в плоскостиZOY. Силы, действующие в направлении Z, показаны на рисунке 8, б. Реакции опор R1zи R2z определены из двух уравнений равновесия. Третье уравнение использовано для проверки.

Уравнение моментов сил относительно опоры 1:

,

откуда


Уравнение моментов сил относительно опоры 2:

,

откуда


Знак "минус" показывает, что направление реакцийR1z и R2z противоположно изображённому на рисунке 8, б.

Проверочный расчёт выполнен по уравнению проекций:


Полученное значение практически равно нулю. Эпюры изгибающих моментов (рисунок 8, в) построены на сжатом волокне. Значения моментов Mz:

 

М1z= 0;


) В направлении XOY действует силаFt (рисунок 8, г), которая для удобства расчётов совмещена с вертикальной плоскостью. Искомые реакции опор определены аналогично плоскости ZOY:

откуда

откуда


Проверочный расчёт

 

Изгибающие моменты в направлении X:

 

М1x= 0;


) По величинам ординат эпюр Мхи Мzвыявлены опасные (расчётные) сечения3, 4 быстроходного вала. Суммарный изгибающий момент

 (67)

Приведенный момент по формуле (65):


Диаметр вала в опасном сечении по формуле (66):


В результате ориентировочного расчета диаметр вала d1=51 мм, который назначается, т.к. это позволяет иметь дополнительный запас прочности.

Рисунок 8 - Расчетные схемы быстроходного вала

6.2 Расчет промежуточного вала


Исходные данные: крутящий момент ТII= 397,36 Н·м, расстояния между линиями действия сил (из эскизной компоновки): l1=l4=56мм, l2=l3=59,5 мм.

Параметры передач приведены в таблице 8.

Таблица 8 - Параметры передач (выборка из таблиц 3и 4)

 Параметры

Величины


Цилиндрическое колесо

Цилиндрическая шестерня

Делительный диаметр d, мм

d1=272,61

d2= 107,34

Окружное усилие в зацеплении Ft, H

Ft1 =1979,58

Ft2 = 6944,02

Радиальное усилие в зацеплении Fr, H

Fr1 =876,60

Fr2=2608,78

Осевое усилие в зацеплении Fa, H

Fa1=0

Fa2 = 1773,12


Решение:

) Составлена расчётная схема вала (рисунок 9). На схеме нагружения валов (рисунок 9, а) действующие силы приложены в соответствии с кинематической схемой на рисунке 1.

а) осевая сила приведена к оси с добавлением сосредоточенного момента m, Н·м

 

т = Fa·d/2; (68)

m = 1773,8·107,34/2 = 95199,85 Н·мм = 95,2 Н·м;

) Определены реакции и моменты в плоскостиZOY. Силы, действующие в направлении Z, показаны на рисунке 9, б. Реакции опор R1zи R2z определены из двух уравнений равновесия. Третье уравнение использовано для проверки.

Уравнение моментов сил относительно опоры 1:

,

откуда


Уравнение моментов сил относительно опоры 2:

,

откуда


Знак "минус" показывает, что направление реакций R1z и R2z противоположно изображённому на рисунке 9, б.

Проверочный расчёт выполнен по уравнению проекций:


Полученное значение практически равно нулю. Эпюры изгибающих моментов (рисунок 8, в) построены на сжатом волокне. Значения моментов Mz:

 

М1z= 0;

М2z= 0.

) В направлении XOY действуют силы Ft1 иFt2 (рисунок 9, г), которые для удобства расчётов совмещены с вертикальной плоскостью.

Искомые реакции опор определены аналогично плоскости ZOY:

откуда

откуда


Проверочный расчёт

 


Изгибающие моменты в направлении X:

М1x= 0;

М2x= 0.

) По величинам ординат эпюр Мхи Мzвыявлено опасное (расчётное) сечение 4 промежуточного вала. Суммарный изгибающий момент


Приведенный момент по формуле (65):


Диаметр вала в опасном сечении по формуле (66):


В результате ориентировочного расчета диаметр вала d1=52мм, который назначается, т.к. это позволяет иметь дополнительный запас прочности.

Рисунок 9 - Расчетные схемы промежуточного вала

6.3 Расчет тихоходного вала


Исходные данные: крутящий момент ТIII= 1189,72Н·м, расстояния между линиями действия сил (из эскизной компоновки): l1=l2=119,5мм.

Параметры передач приведены в таблице 9.

Таблица 9 - Параметры передачи (выборка из таблицы 4)

 Параметры

Величины


Цилиндрическоеколесо

Делительный диаметр d, мм

d2= 342,66

Окружное усилие в зацеплении Ft, H

Ft = 6944,02

Радиальное усилие в зацеплении Fr, H

Fr=2608,78

Осевое усилие в зацеплении Fa, H

Fa= 1773,80


Решение:

) Составлена расчётная схема вала (рисунок 10). На схеме нагружения валов (рисунок 10, а) действующие силы приложены в соответствии с кинематической схемой на рисунке 1.

а) осевая сила приведена к оси с добавлением сосредоточенного момента m, Н·м, который находится по формуле (68):

 

т = Fa·d/2;

m = 1773,8·342,66/2 = 303905,15 Н·мм = 303,9 Н·м;

) Определены реакции и моменты в плоскостиZOY. Силы, действующие в направлении Z, показаны на рисунке 10, б. Реакции опор R1zи R2z определены из двух уравнений равновесия. Третье уравнение использовано для проверки.

Уравнение моментов сил относительно опоры 1:

,

откуда


Уравнение моментов сил относительно опоры 2:

,

откуда


Знак "минус" показывает, что направление реакций R1z и R2z противоположно изображённому на рисунке 10, б.

Проверочный расчёт выполнен по уравнению проекций:


Полученное значение практически равно нулю. Эпюры изгибающих моментов (рисунок 10, в) построены на сжатом волокне. Значения моментов Mz:

М1z= 0;


) В направлении XOY действует сила Ft (рисунок 10, г), которая для удобства расчётов совмещена с вертикальной плоскостью. Искомые реакции опор определены аналогично плоскости ZOY:

откуда

откуда


Проверочный расчёт


Изгибающие моменты в направлении X:

 

М1x= 0;

) По величинам ординат эпюр Мхи Мzвыявлены опасные (расчётные) сечения 3, 4 быстроходного вала. Суммарный изгибающий момент


Приведенный момент по формуле (65):


Диаметр вала в опасном сечении по формуле (66):


В результате ориентировочного расчета диаметр вала d1=75мм, который назначается, т.к. это позволяет иметь дополнительный запас прочности.

Рисунок 10 - Расчетные схемы выходного вала

7. Подбор подшипников качения


В зависимости от частоты вращения п подшипники качения подбирают (рассчитывают) по двум параметрам: динамическая грузоподъёмность С и статическая грузоподъёмность С0, что соответствует критериям: контактная выносливость и статическая прочность. [3]

По первому критерию расчёт ведут на долговечность по усталостному выкрашиванию при n> 1 об/мин (при n = 1.10 принимают n = 10 об/мин). Расчётным параметром является динамическая грузоподъёмность. [3]

Паспортная (табличная) динамическая грузоподъёмность С - это такая постоянная нагрузка, которую подшипник может выдержать в течение 1 млн. оборотов без появления признаков усталости не менее чем у 90% из группы идентичных подшипников (т.е. вероятность неразрушения Р = 0,9). Поскольку паспортная грузоподъёмность обычно выше потребной, недолговечных подшипников не 10%, а 3.5%. Остальные подшипники в соответствии с кривой выносливости будут иметь ресурс, превышающий расчётный. Потребная динамическая грузоподъёмностьC, кН [3]:

, (69)

где

Р - приведенная нагрузка; р - показатель степени кривой выносливости; принимают р = 3 - для шариковых и р = 3,33 - для роликовых подшипников при вероятности безотказной работы Р = 0,9; а - коэффициент надёжности; выбирают по ГОСТ 18875 и по таблицы 10 в зависимости от вероятности неразрушения.

Таблица 10 - Значения коэффициента надёжности

Вероятность неразрушенияР

0,8

0,85

0,9


0,95

0,97

0,98

0,99

Коэффициент а

2


1,5

1


0,62

0,44

0,33


0,21


Приведенная нагрузкаесть такая условная постоянная радиальная нагрузка, которая при приложении её к подшипнику с вращающимся внутренним и неподвижным наружным кольцами обеспечивает такую же долговечность, как и при действительных условиях нагружения и вращения. [3]

, (70)

где X и Y - коэффициенты соответственно радиальной и осевой нагрузок [2]; V - кинематический коэффициент; при вращении наружного кольца V = 1,2; при вращении внутреннего кольца, а также для шариковых сферических подшипников и упорных подшипников V = 1; Кб - коэффициент безопасности [2]; Кт - температурный коэффициент, вводимый при t>100°С. [3]

Расчётную долговечность Lh, следует принимать по ГОСТ 16162: для зубчатых редукторов не менее 5000 ч., для червячных - 10000 ч. Ресурс подшипников Lh принимают либо кратным ресурсу привода tS (см. разд.11 в [2]), либо равным ему. [3]

Подшипники для переменных режимов работы подбирают по эквивалентной нагрузке Рэ и эквивалентной динамической грузоподъёмности. Стандартные классы нагрузки определяются величинами КНЕ =1; 0,8; 0,63 и т.д. (табл.5 в [2]), поэтому при переменной нагрузке Рэ= 0,8Р; Рэ= 0,63Р и т.д. По диаметру шейки валаdи потребной динамической грузоподъёмности Сп подбирают подшипник соответствующей серии при выполнении условия

 

С>Сп, (71)

где С - динамическая грузоподъёмность по каталогу, кН.

Подшипники в симметричных конструкциях рассчитывают по более нагруженной опоре (по бóльшимРэ и Сп) и принимают обе опоры одинаковыми. Долговечность более нагруженной опоры L, ч определяют из формулы (69) [3]:

. (72)

7.1 Подбор подшипников для вала I


В редукторах с раздвоенной ступенью и шевронных проектируют плавающие валы, например, по схеме, указанной на рисунке 11.

 

Рисунок 11 - Схема расположения подшипников

Исходные данные: радиальная нагрузка Fr=0,876 кН, диаметр шейки вала d=45 мм, частота вращения n=970 об/мин, ресурс Lh=5000 ч, класс нагрузки Н0,8.

Решение: подшипники рассчитаны прямым подбором. [3]

) Эквивалентная нагрузка при V = 1 [3], Кб = 1,4 и Кт = 1, KHE =0,8 [2]:

 

Рэ = КHЕFr2KбКт = 0,8×0,876×1,4 = 0,9кН.

) Потребная динамическая грузоподъёмность


) Приняты роликоподшипники лёгкой серии 2209 с параметрами, указанными в таблице 11.

Таблица 11 - Параметры роликовых радиальных подшипников [3]

Условное обозначение

Размеры, мм

Грузо-подъемность, кН

Сопряженные размеры, мм


d

D

B

r

С

С0

da min

Da max

2209

45

85

19

2

44

25,5

53

78


Вывод: условие (71) выполнено. Для обеих опор приняты подшипники серии 2209.

) Ресурс выбранного подшипника по формуле (72):

ч> [5000 ч].

Вывод: ресурс выбранного подшипника превышает заданный ресурс.

7.2 Подбор подшипников для вала II


Схема расположения подшипников для промежуточного вала показана на рисунке 12.

Рисунок 12 - Схема расположения подшипников

Исходные данные: радиальные нагрузки Fr1= 0,876 кН; Fr2= 2,609 кН, осевая нагрузка Fа= 1,174 кН, диаметр шейки d = 45 мм, частота вращения п = 242,5 об/мин, ресурс Lh= 5000 ч, класс нагрузки Н 0,8.

Решение. Подшипники рассчитаны методом прямого подбора. [3]

) Подшипник 1 принят плавающим, так как онвоспринимает меньшую радиальную нагрузку. Расчёт проведен для более нагруженного фиксированного подшипника 2, воспринимающего полную осевую нагрузку.

) Приняты радиальные однорядные шарикоподшипники легкой серии 209 с параметрами, представленными в таблице 12.

Таблица 12 - Параметры шариковых радиальных подшипников [3]

Условное обозначение

Размеры, мм

Грузо-подъемность, кН

Сопряженные размеры, мм


d

D

B

r

С

С0

da min

Da max

209

45

85

19

2

33,2

18,6

53

78


) По отношению Fa/C0= 1,174/18,6 = 0,063 найден по интерполяции коэффициент осевого нагруженияе= 0,24 [2]. Отношение Fa/Fr1= 1,174/ 0,876 = 1,34>е. Коэффициенты для фиксированного подшипника 2: X= 0,56, Y = 1,6 [2].

) Эквивалентная нагрузка при V = 1, Кб = 1,4, KHE =0,8 и Кт = 1 [2]:

 

Р = КHЕ (XVFr1 + YFa) Kб =0,8· (0,56×2,6 + 1,6×1,174) ×1,4 = 3,73кН.

) Потребная динамическая грузоподъёмность при вероятности неразрушения Р= 0,9 (a= 1) [3]


Вывод: условие (71) выполнено. Для обеих опор приняты подшипники серии 209.

Ресурс выбранного подшипника по формуле (72):

ч> [5000 ч].

Вывод: ресурс выбранного подшипника превышает заданный ресурс.

7.3 Подбор подшипников для вала III


Схема расположения подшипников для выходного вала показана на рисунке 12.

Исходные данные: радиальная нагрузкаFr= 2,609 кН, осевая нагрузка

Fа= 1,174 кН, диаметр шейки d= 75 мм, частота вращения п = 76,98 об/мин, ресурс Lh= 5000 ч, класс нагрузки Н 0,8.

Решение. Подшипники рассчитаны методом прямого подбора. [3]

) Подшипник 2 принят плавающим, так как онвоспринимает меньшую радиальную нагрузку. Расчёт проведен для более нагруженного фиксированного подшипника 1, воспринимающего большую радиальную и полную осевую нагрузку.

) Приняты радиальные однорядные шарикоподшипники особо легкой серии 115 с параметрами, представленными в таблице 13.

Таблица 13 - Параметры шариковых радиальных подшипников [2]

Условное обозначение

Размеры, мм

Грузо-подъемность, кН


d

D

B

r

С

С0

115

75

115

20

2

39,7

26,0


) По отношению Fa/C0= 1,174/39,7 = 0,029 найден по интерполяции коэффициент осевого нагружения е= 0,23 [2]. Отношение Fa/Fr= 1,174/ 2,609 = 0,45 >е. Коэффициенты для фиксированного подшипника 2: X= 0,56, Y = 1,8 [2].

) Эквивалентная нагрузка при V = 1, Кб = 1,4, KHE =0,8 и Кт = 1 [2]:

 

Р = КHЕ (XVFr1 + YFa) Kб =0,8· (0,56×2,6 + 1,8×1,174) ×1,4 = 3,99кН.

) Потребная динамическая грузоподъёмность при вероятности неразрушенияР= 0,9 (a= 1) [3]


Вывод: условие (71) выполнено. Для обеих опор приняты подшипники серии 115.

Ресурс выбранного подшипника по формуле (72):

ч> [5000 ч].

Вывод: ресурс выбранного подшипника превышает заданный ресурс.

8. Конструирование деталей редуктора


8.1 Конструирование элементов корпуса


Корпусные детали предназначены для размещения деталей передачи, обеспечения правильного взаимного расположения сопряжённых деталей, восприятия нагрузок, защиты рабочих поверхностей зубчатых колёс и подшипников от загрязнений окружающей среды, размещения масла, защиты его от выброса в окружающую среду, отвода теплоты. Основным критерием работоспособности корпуса является жёсткость.

Корпусные детали имеют сложную форму и наибольшую стоимость из всех деталей редуктора. Большинство редукторов имеют разъёмный корпус для удобства изготовления и сборки. Обычно делают разъём в плоскости осей валов и параллельно плоскости основаниядля удобства механической обработки. Корпусные детали получают методом литья (массовое производство) либо сваркой (единичное и мелкосерийное производство).

В условиях единичного производства корпус и крышку сваривают из отдельных элементов простой формы стыковыми и угловыми швами. Элементы вырезаются из проката: листов, полос, прутков и другого. Рёбра и фланцы располагают с наружной части корпуса для удобства сварки. После сварки выполняют термическую обработку изделий и механическую обработку поверхностей, контактирующих с другими деталями. [3]

Размеры основных элементов корпуса приведены в таблице 14.

Таблица 14 - Размеры основных элементов корпуса

Параметры корпусных деталей

Формула

Значение, мм

Диаметр стяжных винтов - болтов корпуса

13


Толщина фланца по разъему

19,5


Расстояние между стяжными винтами

130


Расстояние от стенки до края фланца

35


Диаметр фундаментных болтов

16


Расстояние от стенки до края фланца лап

38


Расстояние от края до оси болта

19


Толщина стенок сварного корпуса

6,6


Толщина стенки крышки корпуса

7,4


Толщина подъемных ребер

20,5


Толщина ребра


Диаметр винтов крепления крышек

6,5


Высота платиков

4,1


Ширина платиков

15


Высота корпуса

225


 

8.2 Конструирование зубчатых колес


Колеса изготовляются из штампованных заготовок. Штамповочные и формовочные уклоны принимают g = 7.12°, а радиусы закруглений - R³ 5 мм. Толщина диска с = (0,2.0,3) b (до 0,5b).

Отверстия 4 в нём диаметром dотв= 15.25 мм предназначены не для облегчения веса, а для удобства изготовления (закрепления пакета заготовок на столе) и возможности снятия колеса с валов съёмником.

Фаски 5 на венце принимают равными модулю, они снижают концентрации нагрузки. [3]

Диаметр ступицы колеса dcт, мм вычисляется по форуле (61).

Толщина ободаδ0, мм [3]:

; (73)

Где m = mn - для цилиндрических колес (m1 = 2,5 мм, m2=4 мм).

Толщина дискас, мм [3]:

. (74)

где b - ширина венца, мм

Длина ступицыlст, мм вычисляется по формуле (60).

Основные размеры колес представлены в таблице 15.

Таблица 15 - Основные размеры колес

№ ступени

Наименование детали

Размеры, мм



dcт

δ0

с

lст

I

Шестерня

-

8,25

11,2

-


Колесо

78

8,25

10

62,4

II

Шестерня

-

12

14,4

-


Колесо

110,5

12

12,6

84,5

8.3 Конструирование звездочек большой передачи


Конструкции звёздочек цепных передач отличаются от конструкций колёс, в основном, формой профиля зуба. Размеры венца зависят от шага цепи рц, числа зубьев z, размеров цепи и других параметров. Размеры венца звёздочек роликовых цепей взяты из расчета в компьютерной программе GWBASIK (dm-7) и занесены в таблицу 16.

Таблица 16 - Основные параметры звездочек цепной передачи

Размеры, мм

Ведущая звездочка

Ведомая звездочка

Диаметр вершин

127

349

Диаметр впадин

90

312

Высота зуба

8

8

Ширина зуба

29

29

Радиальный зазор

3,2

3,2

Расстояние между кромками зубьев

35,85

35,35

Делительный диаметр

119

341

Толщина обода

11

12

Толщина диска

14

15


9. Подбор и проверка шпонок


Шпоночные соединения применены при соединении вала двигателя с малым шкивом ремённой передачи и при соединении большого шкива ремённой передачи с быстроходным валом червячного редуктора.

Размеры призматических шпонок: ширину b, высоту h, глубину паза ступицы t2 выбирают в зависимости от диаметра вала d [2]. Длину шпонки lпринимают из стандартного ряда на 5.10 мм меньше длины ступицы. Длину ступицы рассчитывают по диаметру подступичной части участка вала по формуле (60):

.

lст = (1,2…1,5) ∙ 45 = 54…67

Принята длина ступицы lст = 66 мм. Принята длина шпонки l = 56мм.

Выбрана Шпонка 2 16 x 10 x 56 ГОСТ 23360-78

Расчётная длина шпонки lp, мм:

lp = l - b = 56 - 16 = 40 мм.

Шпоночное соединение проверяют на смятие:

, (75)

σсм = 2 ∙ 462,9 ∙ 103/ (45 ∙ 4,3 ∙ 40) = 119,6 МПа ≤ 120МПа

где [sсм] - допускаемое напряжение смятия; принято при стальной ступице и посадке H7/p6 [sсм] = 120 МПа; Т - крутящий момент на данному валу; Н×мм; d - диаметр вала, мм; lр - расчетная длина шпонки, мм; t2 - глубина паза втулки, мм; lр - расчётная длина шпонки, мм.

В таблице 17 указаны основные параметры шпонки.

Таблица 17 - Основные параметры шпонок

№ вала

Крутящий момент Т, Н·м

Диаметр под шпонкой d, мм

Ширина шпонки b, мм

Высота шпонки h, мм

Глубина паза вала t1, мм

Глубина паза втулки t2, мм

Длина шпонки l, мм

Расчётная длина шпонки lp, мм

Рабочее напряжение смятия sсм, МПа

Допускаемое напряжение смятия [sсм], МПа

I

462,9

45

16

10

6,0

4,3

56

40

119,6

120


Из таблицы 17 видно, что условие прочности (75) выполняется.

Принимается шпонка:

Шпонка 2 16х10х56 ГОСТ 23360-78;

10. Подбор шлицевых соединений


Шлицы применяют в коробках передач и на выходных валах редукторов. В шлицевых валах коробок внутренний диаметр d принимают больше диаметра соседнего участка. Наибольшее применение в отечественном машиностроении нашли прямобочные шлицевые соединения. [1]

Для прямобочных шлицев σсм, МПа

, (77)

где SF - удельный суммарный статический момент площади рабочих поверхностей соединения относительно оси вала, мм3/мм [1]; l - рабочая длина соединения, мм; l ≈ 1,5d.

Исходные данные: крутящий момент TII = 6420,5 Н·м; диаметр вала d2’=120мм.

Решение:

1. Назначена длина ступицы малой звёздочки по формуле (60)

 


Принята длина ступицы lст= 160 мм [1]. Приняты прямобочные шлицы средней серии z×d×D×b = 10×102×112×16 c параметром SF = 2140 мм3/мм. Допускаемое напряжение смятия  = 20 МПа [2].

1. Рабочие напряжения смятия по формуле (77)


Вывод: прочность достаточна.

11. Выбор посадок


Выбор посадок подшипников качения: выбор посадок зависит от вида нагружения колец, действующих нагрузок, режима работы и условий эксплуатации [3].

Все подшипники проектируемого редуктора испытывают циркуляционное нагружение для внутреннего кольца и местное нагружение для наружного кольца.

По [3] принимаем посадки: для внутреннего кольца , для наружного кольца .

Выбор посадок шпонок: в проектируемом редукторе шпоночные соединения приняты основными нормальными [2].

посадка шпонки на вал: ;

посадка шпонки во втулку: .

Выбор посадок зубчатых колес, звездочек, подшипниковых крышек: по рекомендациям [2] приняты посадки:

зубчатых колес: ;

звездочек: ;

подшипниковых крышек и стаканов в корпус: .

12. Выбор муфты


Муфты предназначены для соединения валов и передачи крутящего момента. Глухие муфты (втулочные и фланцевые) в приводах не используют из-за высоких требований к соосности валов. Широко используются упругие муфты.

Выбираем муфтуупругую втулочно-пальцевую по ГОСТ 21424-75. [2] Муфта выбрана по диаметрам соединяемых валов и расчетному крутящему моменту.

Расчетный крутящий момент [2]:

 

Tp = kp×Tном, (78)

Где kp - коэффициент режима работы, учитывающий условия эксплуатации (kp = 1,4) [2]; Тном - номинальный крутящий момент, Н×м (Тном = 104,56).

Тр = 1,4×146,56= 146,38 Н×м.

Параметры выбранной муфты занесены в таблицу 18.

Таблица 18 - Параметры втулочно-пальцевой муфты

Т, Н×м

Размеры, мм


d

D

L

l

250

40

170

225

110



13. Уточненный расчет валов


Уточненный расчет валов заключается в определении коэффициента запаса s в опасных сечениях вала.

Коэффициент запаса прочности s [1]:

, (79)

Где ss - коэффициент запаса прочности по нормальным напряжениям; st - коэффициент запаса прочности по касательным напряжениям.

, (80)

Где s-1 - предел выносливости материала вала при симметричных циклах изгиба, МПа (s-1 = 380 МПа [1]); sa - амплитуда цикла нормальных напряжений, МПа; sm - среднее значение нормальных напряжений, МПа; Ks - эффективный коэффициент концентрации напряжений приизгибе (Kσ=1,69 [1]); es - масштабный фактор для нормальных напряжений (eσ=0,7 [2]); ys - коэффициент (ys = 0,1 [1]).

, (81)

Где М - изгибающий момент в опасном сечении, Н×м; W - момент сопротивления изгибу, м3.

, (82)

Где d - диаметр вала в опасном сечении, мм; b - ширина шпонки, м; c - глубина шпоночного паза, м.

, (83)

Где Fa - осевая сила, действующая на вал, Н.

, (84)

гдеt-1 - предел выносливости материала вала при симметричных циклах кручения, МПа (t-1 = 230 МПа [1]); ta - амплитуда цикла касательных напряжений, МПа; tm - среднее значение касательных напряжений, МПа; Kt - эффективный коэффициент концентрации напряжений прикручении (Kt=1,58 [1]); et - масштабный фактор для касательных напряжений (et=0,7 [2]); yt - коэффициент (yt = 0,05 [1]).

, (85)

Где Wk - момент сопротивления кручению, м3; Т - крутящий момент на валу, Н×м.

. (86)

Исходные данные и данные о опасных сечения на валах аналогичны данным приближенного расчета.

Значение коэффициента запаса прочности рассчитано по формулам (79) - (86). Полученные данные сведены в таблицу 19.

Таблица 19 - Коэффициенты запаса прочности в опасных сечениях

Параметр

Вал I

Вал II

Вал III


3,4

4

3

d, мм

51

52

75

W, мм3

22426

89556

3590822

Wк, мм3

44632

179112

71811645

7,1

3,8

1,2

00,160,1




1,172,220,2




22,241,512,6




854651,1




S

21

31

12,4


Из таблицы 19 видно, что коэффициент запаса во всех случаях достаточен, так как s ³3,5 [2]. Такая величина коэффициента гарантирует достаточную жесткость, и дополнительная проверка не требуется.

14. Выбор смазки


Смазывание зубчатых зацеплений и подшипников уменьшает потери на трение, предотвращает повышенный износ и нагрев деталей, а также предохраняет детали от коррозии. [2]

Принято масло индустриальное И-40А ГОСТ 20799-75 с вязкостью n= 35-45 мм2/с. [2]

Контроль уровня масла, находящегося в корпусе редуктора, производят с помощью маслоуказателей.

15. Порядок сборки и разборки редуктора


Разборка редуктора производится в следующей последовательности:

)        Отвертывается пробка для слива масла, сливается масло;

2)      Откручиваются болты крепления крышки редуктора;

)        Откручиваются болты крепления подшипниковых крышек, крышки снимаются;

)        Снимается крышка редуктора;

)        Валы с подшипниками убираются из подшипниковых узлов;

)        Вынимается стакан, из стакана выпрессовывается вал с подшипниками;

)        При помощи съемника с выходного вала снимается звездочка цепной передачи, кулачковая предохранительная муфта;

)        При помощи съемника снимаются подшипники, с валов снимаются колеса, вытаскиваются шпонки.

Сборка редуктора производится аналогично в обратном порядке.

Список использованных источников


1.      Глухов Б.В. Игнатюгин В.Ю. Курсовое проектирование деталей машин: Учеб. пособие. Новосибирск: Изд-во СГУПСа. 2010.160 с.

2.      Курсовое проектирование деталей машин: Учеб. пособие. / С.А. Чернавский, К.Н. Боков, И.М. Чернин и др.; Под редакцией С.А. Чернавского. М., 2005.416 с.

.        Глухов Б.В., Игнатюгин В.Ю. Конструирование деталей машин: Учеб. пособие. Новосибирск: Изд-во СГУПСа. 2011.134 с.

.        СТО СГУПС 1.01 СДМ.01 - 2012. Стандарт организации. Курсовой и дипломный проекты. Требования к оформлению.