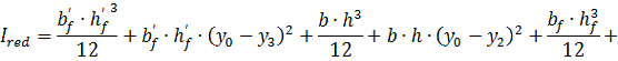
Момент
инерции приведенного сечения
Момент сопротивления приведенного сечения:
– относительно нижней грани
– относительно верхней грани
Упругопластический момент приведенного сечения:
– относительно нижней грани
– относительно верхней грани
где значения коэффициента γ, учитывающего пластические свойства бетона, принимаются по приложению 5.
Сечение двутавровое симметричное:
Принимается
![]()
Определяется
расстояние от центра тяжести приведенного сечения до нижней ядровой точки
и
до верхней ядровой точки
Определение потерь предварительного напряжения.
Расчет
потерь ведется при коэффициенте точности натяжения арматуры ![]()
Первые потери.
Величина
предварительного напряжения ![]()
.
Также для арматуры А1000 - не более ![]()
.
Многопустотные
плиты перекрытий, как правило, изготавливаются с применением
электротермического способа натяжения арматуры.![]()
назначается
с учетом допустимых температур нагрева. В расчете принимается данный метод.
Длястержневойарматуры
верхний предел![]()
при
электротермическом методе - 700 МПа. Принимается это значение:
При
электротермическом способе натяжения среди первых потерь учитываются только
потери от релаксаций![]()
. Для
стержневой арматуры
Потери
от температурного перепада ![]()
(исключаются
технологией изготовления плит).
Потери
от деформации формы ![]()
и потери
от деформации анкеров ![]()
учитываются
при расчете длины заготовки арматуры).
Таким
образом, первые потери
Усилие
предварительного обжатия с учетом первых потерь
Вторые потери
Потери
от усадки бетона
где
![]()
-
деформация усадки бетона B35.
Максимальное
сжимающее напряжение на уровне крайнего волокна без учета влияния собственного
веса плиты
Принимается
передаточная прочность бетона ![]()
![]()
-
условие выполняется.
Нагрузка от собственной массы плиты
Изгибающий момент от собственного веса плиты
Напряжение
на уровне центра тяжести продольной арматуры
Потери
от ползучести арматуры ![]()
где
![]()
-
коэффициент ползучести бетона (принимается по приложению 7). Для класса бетона B35 и нормальной
влажности -75% ![]()
Суммарные вторые потери
Полные потери
следовательно, принимаются полные потери
Усилие в арматуре с учетом всех потерь
Расчет трещиностойкости плиты
Момент трещинообразования сечения
где
![]()
-
коэффциент точности натяжения, ![]()
.
Принимается![]()
(для
конструкций 3-ей категории требований по трещиностойкости).
следовательно, условие выполняется, трещины в растянутой зоне бетона не образуются. Расчет на раскрытие трещин производится в случае невыполнения условия.
Расчет прогибов для участков без трещин в растянутой зоне
Расчет
производится из условия
где
![]()
- прогиб
от внешней нагрузки,
![]()
-
предельно допустимый прогиб.
где
S - табличный коэффициент,
в случаезагружения для плиты равный ![]()
(см.
приложение 6).
Полная
кривизна в сечении с наибольшим моментом
где
![]()
-
кривизна от непродолжительного действия кратковременной нагрузки,
![]()
-
кривизна от продолжительного действия постоянных и длительных нагрузок.
Принимается
![]()
Коэффициент
![]()
находитсяпри
помощи дополнительных коэффициентов по таблице приложения 8.
Вспомогательные
коэффициенты
где
![]()
В
соответствии с полученными значениями вспомогательных коэффициентов принимается
![]()
Условие
выполняется, прогиб не превышает предельно допустимого значения.
РАЗРЕЗНОЙ
РИГЕЛЬ
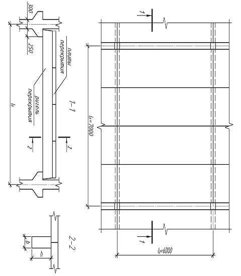
Требуется запроектировать разрезной ригель перекрытия при свободномопирании концов ригеля на консоли колонны. Опирание плит перекрытия осуществляется на ригель по верху. Шаг колонн в направлении длины ригеля равен 7 м.
Бетон для ригеля перекрытия следует принять тяжёлый. Класс бетона В35. В качестве продольной арматуры ригеля целесообразно применить арматуру класса А400, в качестве поперечной - арматуру класса А240. На рисунке 3 показана конструктивная схема перекрытия.
Рисунок 3 - Конструктивная схема перекрытия
Назначаются размеры поперечного сечения ригеля. Высота сечения
где
![]()
- пролет
ригеляв осях.
Ширина
сечения
Конструктивная длина ригеля
где
![]()
- размер
сечения колонны,
![]()
- зазор
между колонной и торцом ригеля.
где![]()
- длина
площадки опирания, принимается ![]()
Расчетная нагрузка на 1 погонный метр от веса ригеля (сечение


Полная
нагрузкас учетом нагрузки от перекрытия и ![]()
Расчетные усилия в ригеле:
Пролетный
момент
Поперечная
сила
Прочность нормальных сечений ригеля в пролете
Расчетные характеристики материалов:
бетон - тяжелый класса В35.

(определяется
в соответствии с приложением 1);
арматура
- напрягаемая класса А400, ![]()
.
Расчетное
сечение в середине пролета рассматривается как прямоугольное с размерами ![]()
м.
Предварительно назначается рабочая высота сечения ![]()
Рисунок
4 - Расчётная схема ригеля
Определяется относительная высота сжатой зоны сечения
По
таблице приложения 3 для арматуры А400 определяются ![]()
и ![]()
![]()
,
следовательно, сжатой арматуры по расчету не требуется. Сечение можно
рассчитывать как прямоугольное с одиночной арматурой.
Площадь
сечения растянутой арматуры определяется по формуле