где
- сумма путевых расходов, прилегающих к узлу.
В
графе 6 приводятся наименования крупных сосредоточенных потребителей,
расположенных рядом с соответствующими узлами, а в графе 7 - величины их
расходов. В графе 8 узловые обороты воды путем постепенного сложения величин
и
.
На схему наносятся ориентировочные расчетные расходы воды на каждом
участке и указываются стрелками предполагаемые направления движения воды.
Таблица 5.4 - Определение узловых отборов воды
|
№ Узлов |
Наименование участков |
Длина участков, Li |
Путевые расходы, qпут.р.р., л/с |
qр.р.узл., л/с |
Сосредоточенные расходы |
qузл., л/с |
|
|
|
|
|
|
|
потребители |
Qсоср., л/с |
|
|
1 |
2 |
3 |
4 |
5 |
6 |
7 |
8 |
|
ВБ1 |
ВБ1-1 |
15 |
0,41 |
0,21 |
|
- |
0,21 |
|
ВБ2 |
ВБ2-2 |
15 |
0,41 |
0,21 |
|
- |
0,21 |
|
1 |
1-ВБ1 1-3 |
15 30 |
0,41 0,82 |
0,62 |
|
- |
0,62 |
|
2 |
2-ВБ2 2-3 |
15 135 |
0,41 3,69 |
2,1 |
|
- |
2,1 |
|
3 |
3-1 3-2 3-4 |
30 135 180 |
0,82 3,69 4,92 |
4,73 |
котельная |
1,1 |
5,83 |
|
4 |
4-3 4-8 4-5 |
180 30 180 |
4,94 0,82 4,94 |
5,34 |
пекарня |
0,1 |
5,43 |
|
5 |
5-4 5-6 |
180 540 |
4,94 14,78 |
9,86 |
детский сад, спортивныйкомплекс |
0,2 |
10,05 |
|
6 |
6-5 6-7 |
540 210 |
14,78 5,74 |
10,26 |
детский сад, школа, гостиница |
4,15 |
14,41 |
|
7 |
7-6 7-9 |
210 30 |
5,74 0,82 |
3,28 |
столярно-плотницкая мастерская |
0 |
3,28 |
|
8 |
8-4 8-9 |
30 510 |
0,82 13,95 |
7,39 |
мойка, гостиница, больница |
4,1 |
11,49 |
|
9 |
9-7 9-8 9-10 |
30 510 135 |
0,82 13,95 3,69 |
9,23 |
мойка, школа |
0,45 |
9,68 |
|
10 |
10-9 10-11 |
135 30 |
3,69 0,82 |
2,26 |
спортивный комплекс |
0 |
2,26 |
|
11 |
11-10 |
30 |
0,82 |
0,41 |
деревообр. предприятие |
0 |
0,41 |
|
Итого |
|
|
|
55,9 |
|
10,1 |
66 |
Проводим гидравлический расчет водопроводной сети на пропуск максимального хозяйственного расхода.
Выбор материала труб водопроводной сети осуществляется с учетом
требований, изложенных в п.1.3 и п.8.21 [27]. Кроме того, для окончательного
выбора и обоснования выбранного материала труб рекомендуется изучить основные
характеристики водопроводных труб, выпускаемых промышленностью Российской
Федерации [28]. Гидравлический расчёт колец водопроводной сети сводится в
таблицу 5.5.
Таблица 5.5 - Гидравлический расчет водопроводной сети на пропуск максимального хозяйственного расхода
|
№ |
Участки |
Длина участка, м |
Ориен. расход, q, л/с |
Диаметр труб, d, мм |
Удельное сопротивление, А·10-6 |
Сопротивление участка, S=A·l |
q ∙ S |
Потери напора, h=Sq2 |
|
1 |
2 |
3 |
4 |
5 |
6 |
7 |
8 |
9 |
|
1 |
4-5 5-6 6-7 7-9 9-8 8-4 |
180 540 210 30 510 30 |
29 18,94 4,53 1,25 11,1 22,59 |
350 300 150 100 300 350 |
0,437 0,949 37,11 311,7 0,949 0,437 |
0,00007866 0,00051246 0,0077931 0,009351 0,00048399 0,00001311 |
0,002 0,01 0,035 0,012 0,005 0,001 ∑0,065 |
+0,06 +0,19 +0,16 +0,02 -0,06 -0,02 ∑0,35 |
В графе 1 указываются номер кольца водопроводной сети, а в графе 2 обозначения участков, из которых состоит кольцо. В графу выписываются ориентировочные расходы воды на каждом участке. По величинам ориентировочных расходов и выбранному материалу труб подбираются условные диаметры (графа 5) труб и их удельные сопротивления (графа 6). Для этого пользуемся таблицами Ф.А. Шевелева [14]. Величина сопротивления участка (графа 7) определяется по формуле (5.11).
= А ·1 (5.11)
где А - удельное сопротивление трубы, м;
- длина участка, м.
Величина потери напора (графа 8) определяется по формуле (5.12).
= S · q2,м (5.12)
где S - сопротивление участка, м;
q - ориентировочный расход на участке, л/с.
Для определения суммарной величины потерь напора в кольце перед величинами потерь напора на каждом участке ставится знаки, учитывающие направления движения воды (графа 9).
Если направление на участке совпадает с общим направлением в кольце - ставится знак «минус»; если не совпадает - ставится знак «плюс». С учетом этих знаков определяется невязка потерь напора в каждом кольце (Ʃh1 , Ʃh2 ). Допустимая невязка в кольце h = 0,5 м. Если расчетная невязка во всех кольцах не превышает допустимую, гидравлический расчет считается законченным.
Гидравлический расчет тупиков сводится в таблицу 5.6.
Таблица 5.6 - Гидравлический расчет тупиков
Длина, м
Расход, q, л/с
Условный диметр труб, d, мм
Удельное сопротивление, А·10-6
Сопротивление участка, S=A·l
Потери напора, h=q2·S, м
2
3
4
5
6
7
8
ВБ1-1 ВБ2-2 1-3 3-2 3-4 9-10 10-11
15 15 30 135 180 135 30
32,79 32,79 32,17 30,69 57,03 2,67 0,41
400 400 400 350 450 250 200
0,219 0,219 0,219 0,437 0,119 2,528 8,092
0,000003 0,000003 0,000006 0,000059 0,000021 0,000341 0,000243
0,003 0,003 0,006 0,05 0,07 0,002 0,0001
Итого
∑=0,000676
Ʃ =0,1341
Поверочный гидравлический расчёт на пропуск максимального хозяйственного и пожарного расходов.
Технические условия устройства противопожарного водопровода принимаются в соответствии с пунктом 2.11 [27]. В выпускной квалификационной работе принимаем устройство хозяйственно-противопожарного водопровода.
В соответствии с пунктом 2.14 [27] принимаются: расчетное количество одновременных пожаров и расходы воды на тушение пожара. В нашем случае один пожар и 10 л/с соответственно.
Расчетные точки возможных пожаров рекомендуется принять в наиболее удаленных узлах. В этих точках узловые расходы следует увеличить на величины пожарных расходов.
Поверочный гидравлический расчет кольца для микрорайона сводится в
таблицу 5.7. При этом графы 1, 2, 3, 5, 6, 7 остаются неизменными, а в графу 4
записываются ориентировочные расходы с учетом пожарных расходов.
Таблица 5.7 - Поверочный гидравлический расчет кольца микрорайона
|
№ |
Участки |
Длина участка, м |
Ориен. расход, q, л/с |
Диаметр труб, d, мм |
Удельное сопротивление, А·10-6 |
Сопротивление участка, S=A·l |
q ∙ S |
Потери напора, h=Sq2, м |
|
1 |
2 |
3 |
4 |
5 |
6 |
7 |
8 |
9 |
|
1 |
4-5 5-6 6-7 7-9 9-8 8-4 |
180 540 210 30 510 30 |
30 19,94 5,53 2,25 20,1 31,59 |
350 300 150 100 300 350 |
0,437 0,949 37,11 311,7 0,949 0,437 |
0,00007866 0,00051246 0,0077931 0,009351 0,00048399 0,00001311 |
0,002 0,01 0,043 0,021 0,01 0,001 ∑0,087 |
+0,06 +0,2 +0,24 +0,05 -0,20 -0,03 ∑0,32 |
Поверочный гидравлический расчет тупиков выполняется и записывается в
таблицу 5.8. При этом, рассчитываются только те участки, в которых изменяются
первоначальные ориентировочные расходы. Графы 1, 2, 4, 5 и 6 остаются
неизменными, а в графу 3 записываются ориентировочные расходы с учетом пожарных
расходов.
Таблица 5.8 - Гидравлический расчет тупиков водопроводной сети на пропуск максимального секундного и пожарного расходов
|
№ |
Участки |
Длина участка |
Ориентировочный расход, q, л/с |
Диметр труб, d, мм |
Удел. сопротивление, А·10-6 |
Сопротивление участка, S=A·l |
Потери напора, h=q2·S |
|
1 |
2 |
3 |
4 |
5 |
6 |
7 |
8 |
|
1 |
ВБ1-1 ВБ2-2 1-3 3-2 3-4 9-10 10-11 |
15 15 30 135 180 135 30 |
37,79 37,79 37,17 35,69 67,03 12,67 10,41 |
400 400 400 350 450 250 200 |
0,219 0,219 0,219 0,437 0,119 2,528 8,092 |
0,000003 0,000003 0,000006 0,000059 0,000021 0,000341 0,000243 |
0,004 0,004 0,008 0,07 0,09 0,05 0,03 |
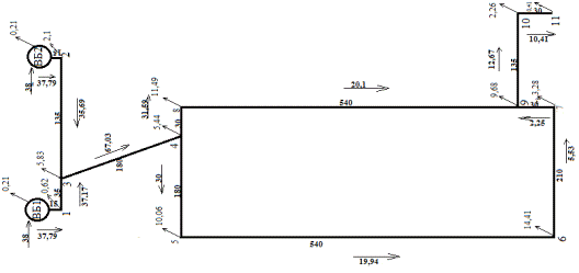
Окончательные результаты поверочного расчета выполняются по форме схемы,
приведенной на рисунке 5.9 и 5.10
Рисунок 5.9 - Схема водопроводной сети
Рисунок 5.10 - Схема водопроводной сети
5.4 Определение свободных напоров в
водопроводной сети
Свободные напоры определяются для дальнейшего проектирования напорно-регулирующих сооружений, насосных станций и водоводов. Эти расчеты выполняются для двух случаев:
а) при пропуске через водопроводную сеть максимально-хозяйственного расхода;
б) при одновременном пропуске максимально-хозяйственного и пожарного расходов.
Расчёт свободных напоров в водопроводной сети при пропуске максимального
хозяйственного расхода сводится в таблицу 5.9
Таблица 5.9 - Определение свободных напоров в водопроводной сети при пропуске максимального хозяйственного расхода
|
Узлы |
Участки |
Отметки поверхности земли |
Потери напора, вычисленные |
Потери напора увязанные |
Условные отметки пьезометрической линии |
Условный свободный напор |
Действительные отметки пьезометрической линии |
Действительный свободный напор |
|
1 |
2 |
3 |
4 |
5 |
6 |
7 |
8 |
9 |
|
ВБ1 |
|
119 |
|
|
300 |
181 |
168,941 |
49,941 |
|
|
ВБ1-1 |
|
+0,003 |
+0,003 |
|
|
|
|
|
1 |
|
119 |
|
|
300,003 |
181,003 |
168,944 |
49,944 |
|
|
1-3 |
|
+0,006 |
+0,006 |
|
|
|
|
|
3 |
|
119 |
|
|
300,009 |
181,009 |
168,95 |
49,95 |
|
|
3-2 |
|
+0,05 |
+0,05 |
|
|
|
|
|
2 |
|
119 |
|
|
300,059 |
181,059 |
169 |
50 |
|
|
2-ВБ2 |
|
-0,003 |
-0,003 |
|
|
|
|
|
ВБ2 |
|
119 |
|
|
300,056 |
181,056 |
168,997 |
49,997 |
|
|
ВБ2-2 |
|
+0,003 |
+0,003 |
|
|
|
|
|
2 |
|
119 |
|
|
300,059 |
181,059 |
169 |
50 |
|
|
2-3 |
|
-0,05 |
-0,05 |
|
|
|
|
|
3 |
|
119 |
|
|
300,009 |
181,009 |
168,95 |
49,95 |
|
|
3-4 |
|
+0,07 |
+0,07 |
|
|
|
|
|
4 |
|
123 |
|
|
300,079 |
177,079 |
169,02 |
46,02 |
|
|
4-8 |
|
-0,02 |
-0,02 |
|
|
|
|
|
8 |
|
123 |
|
|
300,059 |
177,059 |
169 |
46 |
|
|
8-9 |
|
-0,06 |
-0,06 |
|
|
|
|
|
9 |
|
121 |
|
|
299,999 |
178,999 |
168,94 |
47,94 |
|
|
9-10 |
|
+0,002 |
+0,002 |
|
|
|
|
|
10 |
|
121 |
|
|
300,001 |
179,001 |
168,942 |
47,942 |
|
|
10-11 |
|
+0,0001 |
+0,0001 |
|
|
|
|
|
11 |
|
121 |
|
|
300,0011 |
179,0011 |
168,9421 |
47,9421 |
|
|
11-10 |
|
-0,0001 |
-0,0001 |
|
|
|
|
|
10 |
|
121 |
|
|
300,001 |
179,001 |
168,942 |
47,942 |
|
|
10-9 |
|
-0,002 |
-0,002 |
|
|
|
|
|
9 |
|
121 |
|
|
299,999 |
178,999 |
168,94 |
47,94 |
|
|
9-7 |
|
+0,02 |
+0,02 |
|
|
|
|
|
7 |
|
121 |
|
|
300,019 |
179,019 |
168,96 |
47,96 |
|
|
7-6 |
|
+0,16 |
+0,01 |
|
|
|
|
|
6 |
|
120 |
|
|
300,029 |
180,029 |
168,97 |
47,97 |
|
|
6-5 |
|
+0,19 |
+0,04 |
|
|
|
|
|
5 |
|
123 |
|
|
300,069 |
177,069 |
169,01 |
46,01 |
|
|
5-4 |
|
+0,06 |
+0,01 |
|
|
|
|
|
4 |
|
123 |
|
|
300,079 |
181,079 |
169,02 |
46,02 |
|
|
4-3 |
|
-0,07 |
-0,07 |
|
|
|
|
|
3 |
|
119 |
|
|
300,009 |
181,009 |
168,95 |
49,95 |
|
|
3-1 |
|
-0,006 |
-0,006 |
|
|
|
|
|
1 |
|
119 |
|
|
300,003 |
181,003 |
168,944 |
49,944 |
|
|
1-ВБ1 |
|
-0,003 |
-0,003 |
|
|
|
|
|
ВБ1 |
|
119 |
|
|
300 |
181 |
168,941 |
49,941 |
|
|
|
|
∑ = 0,35 |
∑ = 0 |
|
|
|
|
В графу 1 выписываются все узлы в одну линию.
В графу 4 выписываются величины потерь напора из таблиц 5.2, 5.3 и 6.3.
Перед ними ставятся знаки в зависимости от направления движения воды: если направление участка совпадает с направлением движения воды - ставится знак «минус», если не совпадает - «плюс». Затем в графе 4 определяется суммарная невязка потерь напора с соответствующим знаком. На величину этой невязки уменьшаются значения потерь напора таким образом, чтобы суммарная невязка равнялась нулю. При этом рекомендуется вносить исправления только на участки, относящиеся к наружному контуру колец.
В графу 6 записываются условные отметки пьезометрической линии. В месте расположения гидропневматической установки (узел ВБ) эта отметка принимается произвольно. Все остальные отметки определяются путем прибавления или вычитания увязанных потерь напора.
В графе 7 построчно определяются условные свободные напоры, представляющие собой разность между условными отметками пьезометрической линии и отметками поверхности земли. Затем определяется место расположения диктующей точки - это узел, в котором условный свободный напор - минимальный.
В соответствии с этажностью застройки по п.2.26 [29], определяется минимальный свободный напор в диктующей точке Hmin по формуле (5.13).
= 10 + (n-1) ∙ 4, м (5.13)
где n - этажность застройки.
Hmin = 10 + (10-1) ∙ 4 = 46 м.
Определяется поправка для расчета действительных отметок пьезометрической линии и действительных свободных напоров. По данным таблицы она равна:
∆ = 177,059 - 46 = 131,059 м.
В графу 8 записываются величины действительных отметок пьезометрической линии, представляющие собой разность между условными отметками и поправкой. Действительные напоры (графа 9) также представляют собой разность между условными свободными напорами и поправкой.
Расчет на пропуск максимального хозяйственного и пожарного расходов.
Расчет выполняется также как и на пропуск максимального хозяйственного
расхода, сводится в таблицу 5.10. При этом рекомендуется принять систему
пожаротушения низкого давления с минимальным свободным напором Hmin = 10 м.
Таблица 5.10 - Определение свободных напоров в водопроводной сети при пропуске максимального хозяйственного и пожарного расходов
|
Узлы |
Участки |
Отметки поверхности земли |
Потери напора вычисленные |
Потери напора увязанные |
Условные отметки пьезометрические линии |
Условный свободный напор |
Действительный отметки пьезометрической линии |
Действительный свободный напор |
||||
|
1 |
2 |
3 |
4 |
5 |
6 |
7 |
8 |
9 |
||||
|
ВБ1 |
|
119 |
|
|
300 |
181 |
132,928 |
13,928 |
||||
|
|
ВБ1-1 |
|
+0,004 |
+0,004 |
|
|
|
|
||||
|
1 |
|
119 |
|
|
300,004 |
181,004 |
132,932 |
13,932 |
||||
|
|
1-3 |
|
+0,008 |
+0,008 |
|
119 |
|
|
300,012 |
181,012 |
132,94 |
13,94 |
|
|
3-2 |
|
+0,07 |
+0,07 |
|
|
|
|
||||
|
2 |
|
119 |
|
|
300,082 |
181,082 |
133,01 |
14,01 |
||||
|
|
2-ВБ2 |
|
-0,004 |
-0,004 |
|
|
|
|
||||
|
ВБ2 |
|
119 |
|
|
300,078 |
181,078 |
133,006 |
14,006 |
||||
|
|
ВБ2-2 |
|
+0,004 |
+0,004 |
|
|
|
|
||||
|
2 |
|
119 |
|
|
300,082 |
181,082 |
133,01 |
14,01 |
||||
|
|
2-3 |
|
-0,07 |
-0,07 |
|
|
|
|
||||
|
3 |
|
119 |
|
|
300,012 |
181,012 |
132,94 |
13,94 |
||||
|
|
3-4 |
|
+0,09 |
+0,09 |
|
|
|
|
||||
|
4 |
|
123 |
|
|
300,102 |
177,102 |
133,03 |
10,03 |
||||
|
|
4-8 |
|
-0,03 |
-0,03 |
|
|
|
|
||||
|
8 |
|
123 |
|
|
300,072 |
177,072 |
133 |
10 |
||||
|
|
8-9 |
|
-0,2 |
-0,2 |
|
|
|
|
||||
|
9 |
|
121 |
|
|
299,872 |
178,872 |
132,8 |
11,8 |
||||
|
|
9-10 |
|
+0,05 |
+0,05 |
|
|
|
|
||||
|
10 |
|
121 |
|
|
299,922 |
178,922 |
132,85 |
11,85 |
||||
|
|
10-11 |
|
+0,03 |
+0,03 |
|
|
|
|
||||
|
11 |
|
121 |
|
|
299,952 |
178,952 |
132,88 |
11,88 |
||||
|
|
11-10 |
|
-0,03 |
-0,03 |
|
|
|
|
||||
|
10 |
|
121 |
|
|
299,922 |
178,922 |
132,85 |
11,85 |
||||
|
|
10-9 |
|
-0,05 |
-0,05 |
|
|
|
|
||||
|
9 |
|
121 |
|
|
299,872 |
178,872 |
132,8 |
11,8 |
||||
|
|
9-7 |
|
+0,05 |
+0,05 |
|
|
|
|
||||
|
7 |
|
121 |
|
|
299,922 |
179,922 |
132,85 |
11,85 |
||||
|
|
7-6 |
|
+0,24 |
+0,02 |
|
|
|
|
||||
|
6 |
|
120 |
|
|
299,942 |
179,942 |
132,87 |
12,87 |
||||
|
|
6-5 |
|
+0,2 |
+0,2 |
|
|
|
|
||||
|
5 |
|
123 |
|
|
300,142 |
177,142 |
133,07 |
10,07 |
||||
|
|
5-4 |
|
+0,06 |
-0,04 |
|
|
|
|
||||
|
4 |
|
123 |
|
|
300,102 |
181,102 |
133,03 |
10,03 |
||||
|
|
4-3 |
|
-0,09 |
-0,09 |
|
|
|
|
||||
|
3 |
|
119 |
|
|
300,012 |
181,012 |
132,94 |
13,94 |
||||
|
|
3-1 |
|
-0,008 |
-0,008 |
|
|
|
|
||||
|
1 |
|
119 |
|
|
300,004 |
181,004 |
132,932 |
13,932 |
||||
|
|
1-ВБ1 |
|
-0,004 |
-0,004 |
|
|
|
|
||||
|
ВБ1 |
|
119 |
|
|
300 |
181 |
132,928 |
13,928 |
||||
|
|
|
|
∑ = 0,32 |
∑ = 0 |
|
|
|
|