Материал: Мультимедиа представление поэтапного возведения плавучего здания

Внимание! Если размещение файла нарушает Ваши авторские права, то обязательно сообщите нам

Мультимедиа представление поэтапного возведения плавучего здания

Министерство образования и науки Российской Федерации

Казанский государственный архитектурно-строительный университет

Кафедра: «Информационные технологии и системы автоматизированного проектирования»







Пояснительная записка к бакалаврской работе

На тему:

Мультимедиа представление поэтапного возведения плавучего здания












Казань 2015 г.

РЕФЕРАТ

Пояснительная записка: 68 c., ил. 17, табл. 8., библ. названий 12.

Ключевыми словами в бакалаврской работе стали следующие слова:

Стальной понтон, легкие стальные тонкостенные конструкции, автономные коммуникации, 3d моделирование, технология возведения плавучего здания, семейства компонентов, визуализация, анимация

Объектом разработки является мультимедиа представление поэтапного возведения плавучего здания.

Цель работы - создать мультимедиа представление поэтапного возведения плавучего здания.

Метод разработки - компьютерное моделирование.

Средства реализации - Autodesk Revit Architecture, Аutodesk 3ds Max.

Полученные результаты и их новизна:

создана трехмерная модель стальных понтонов;

создана трехмерная модель двухэтажного здания из легких стальных тонкостенных конструкций;

создано мультимедийное представление поэтапного возведения плавучего здания;

новизна состоит в создании мультимедийного представления о поэтапном возведении плавучего здания на стальных понтонах.

Степень внедрения - планируется использование результатов БР в учебных целях в КазГАСУ; для проектировщиков - как наглядное представление технологии возведения плавучего дома; а также использование как части презентации строительных проектов с целью привлечения инвесторов.

Эффективность внедрения результатов БР оценивается следующими показателями:

повышение уровня усваиваемости материалов студентами;

повышение уровня наглядности исследуемого объекта.

Область применения - в учебном процессе в строительных ВУЗах страны.

Основные системные и технико-экономические характеристики:

- операционная среда Windows 7;

Autodesk Revit Architecture, Аutodesk 3ds Max;

- затраты на проектирование мультимедийного проекта - 214 тыс. руб.;

срок окупаемости - 0,6 года (8 месяцев);

СОДЕРЖАНИЕ

ВВЕДЕНИЕ

. ИССЛЕДОВАНИЕ КОНСТРУКТИВНОГО РЕШЕНИЯ, ПОЭТАПНОГО ВОЗВЕДЕНИЯ ПЛАВУЧЕГО ЗДАНИЯ И МЕТОДОВ ЕГО КОМПЬЮТЕРНОГО МОДЕЛЛИРОВАНИЯ

1.1 Анализ программных продуктов для создания наглядного представления процесса технологии плавучего здания

.2 Исследование объемно-планировочного, конструктивного решения здания

.2.1 Общая характеристика здания

.2.2 Архитектурное и объемно-планировочное решения

1.2.3 Конструктивное решение здания

.3 Устройство понтонов

.3.1 Этапы возведения здания

2.ПРОЕКТНЫЙ РАЗДЕЛ

2.1 Разработка 3D модели здания

.2 Реализация мультимедиа представления поэтапного возведения плавучего здания

2.2.1 Написание сценарий ролика

.2.2 Разработка раскадровки

.2.3 Создание основных объектов ролика

.2.4 Формирование геометрической модели сцены

.2.5 Настройка освещения и съемочных камер

3. ОЦЕНКА ЭКОНОМИЧЕСКОЙ ЭФФЕКТИВНОСТИ РЕАЛИЗАЦИИ ПРОЕКТА

3.1 Резюме

.2 Общая характеристика отрасли, продукции

.2.1 Характеристика отрасли

3.2.2 Описание продукции

3.3 Организационный план

.3.1 Деловое расписание

.4 Финансовый план

.4.1 Оценка финансовой состоятельности инвестиционного проекта

.5 Коммерческая эффективность проекта

.5.1 Бюджетная эффективность

.6 План по рискам

.6.1 Расчет ставки дисконтирования

.6.2 Анализ чувствительности

4. ОБЕСПЕЧЕНИЕ БЕЗОПАСНОСТИ ЭКСПЛУАТАЦИИ ПЛАВУЧЕГО ЗДАНИЯ НА ВОДЕ

4.1 Мероприятия по безопасной эксплуатации зданий на воде

.2 Основные правила безопасности на воде для семейного отдыха

.3 Действия при крушении плавучего средства

.4 Обеспечение безопасности на водном транспорте

ЗАКЛЮЧЕНИЕ

СПИСОК ИСПОЛЬЗОВАННОЙ ЛИТЕРАТУРЫ

ПРИЛОЖЕНИЕ

ВВЕДЕНИЕ

Плоды технической фантазии всегда стремились перейти на бумагу, затем и воплощаться в жизнь. Раньше, представить, каким будет дом или интерьер комнаты мы могли лишь по чертежу или рисунку, а сейчас, с появлением трехмерного моделирования стало реальным создать объемное изображение сооружения.

D модели отличаются точностью и дают возможность лучше представить, каким будет проект, реализованный в жизнь, внести любые исправления. 3D модель производит большее впечатление, чем все остальные способы презентации будущего проекта.

Что такое 3d моделирование?

Это создание с помощью компьютерных программ объемной виртуальной модели. В основу входят рисунки, фотографии, чертежи, подробные описания. Специалисты по компьютерной графике, опираясь на эти данные, создают объемную геометрическую модель. Модель можно посмотреть в специальной программе, поместить в любое окружение, анимировать. Где применяется 3d моделирование?

Сегодня, 3D модели используются в большом количестве областей. Медицинская область использует модели органов; они могут быть созданы с 2 ми частями изображения из MRI или компьютерной томографии. Киноиндустрия использует их в качестве знаков и объектов для мультипликационных и кинофильмов. Промышленность видеоигры использует их в качестве активов для компьютерных игр. Научный сектор использует их в качестве моделей химических соединений. Промышленность архитектуры использует их, чтобы показать предложенные здания и пейзажи через программу "Архитектурные Модели". Техническое сообщество использует их в качестве проектов новых устройств, транспортных средств и структур и т.д. За последнее время сообщество науки о Земле начало создавать 3D геологические модели как привычную практику. 3D модели могут быть основой для физических устройств, реализованные с 3D принтерами или машинами CNC. Наглядная визуализация трехмерного пространства производит впечатление на клиентов. При помощи 3d моделирования можно еще до начала строительных либо работ оценить, как все это будет выглядеть потом. Если необходимо, то можно внести поправки уже на этапе обсуждения проекта.

Цель: создать мультимедиа представление поэтапного возведения плавучего здания.

Задачи:

1)   Провести анализ программных продуктов для реализации проектов мультимедиа при представлении процесса поэтапного возведения здания;

2)      Исследовать объемно-планировочное, конструктивное решения плавучего здания;

)        Исследовать технологии возведения здания на стальных понтонах;

)        Разработать трехмерную модель здания;

)        Реализовать мультимедиа представление поэтапного возведения плавучего здания;

)        Оценить экономической эффективности реализации проекта;

)        Определить условия обеспечения безопасности эксплуатации плавучего здания на воде.

Создание мультимедиа представления позволит вывести на новый уровень процесс изучения строительных процессов благодаря наглядности будущего видеоролика.


1. ИССЛЕДОВАНИЕ КОНСТРУКТИВНОГО РЕШЕНИЯ, ПОЭТАПНОГО ВОЗВЕДЕНИЯ ПЛАВУЧЕГО ЗДАНИЯ И МЕТОДОВ ЕГО КОМПЬЮТЕРНОГО МОДЕЛЛИРОВАНИЯ


1.1    Анализ программных продуктов для создания наглядного представления процесса технологии плавучего здания


Для создания информационной модели необходимо выбрать наиболее подходящий и эффективный программный продукт, учесть нюансы, которые могут встретиться на пути реализации проекта и в дальнейшем его использовании.Revit Architecture принадлежит семейству программ, выступающих ядром технологии информационного моделирования зданий Autodesk Revit, в которое также входят Revit Structure и Revit МЕР. Они позволяют прорабатывать и изучать концепции будущих конструкций и зданий.

Revit Architecture ориентирован на работу с архитектурной частью проекта.Structure - ориентирован на проектирование и анализ конструкций.Программа для проектирования зданий Revit основана на технологии моделирования сооружений и включает в себя возможности для проектирования архитектурных элементов, инженерных систем и строительных конструкций.Revit Architecture дает возможность сосредоточиться на проектировании зданий, не уделяя при этом слишком много времени на обучение. В этом программном пакете имеется возможность работы с любым видом, корректировать на любом этапе разработки проекта, изменять основные строительные компоненты, а также формировать рабочие чертежи на основе 3 D моделирования.

Интерфейс имеет удобную организацию, обеспечивая большую площадь графической области и простой доступ к командам и инструментам.

Библиотека материалов Autodesk Revit насчитывает более 1200 компонентов, что позволяет создавать наиболее реалистичную картинку модели здания.

Данный продукт подходит для 3D моделирования монолитного здания, так как имеет обширную библиотеку типовых строительных элементов (колонны, плиты, стены). При этом возможно создавать новые семейства компонентов по шаблонам и использовать их в дальнейшем.

Однако Autodesk Revit Architecture не имеет возможностей для создания видеопрезентации процессов возведения здания. Присутствует только возможность анимации на уровне облета здания или прогулки внутри здания.3ds Мах обладает обширными средствами по созданию разных по форме и сложности трёхмерных компьютерных моделей реальных или фантастических объектов окружающего мира с использованием разнообразных техник и механизмов. В сфере строительства данной программой пользуются в основном дизайнеры и архитекторы. Программа 3ds Мах была разработана профессиональными инженерами, поэтому она позволяет производить точный расчёт планировки помещений.

1.2 Исследование объемно-планировочного, конструктивного решения здания

.2.1 Общая характеристика здания

Плавучий дом является полноценным судном, которое используется в качестве постоянного жилья. Одно из главных преимуществ такого дома является мобильность, благодаря автономным системам коммуникации, электричества и канализации.

Роль канализации выполняют специальные емкости для сточных вод. Система биологической очистки сточных вод подходит для плавучего дома круглогодичной эксплуатации без централизованной канализации. Проточного типа с производительностью 1м3 в сутки септик обслуживает до 12 человек.

Питьевая вода в дом поступает из реки через фильтры, расположенные в самих понтонах. Доступ к фильтрам обеспечивается через люки, установленные при возведении дома. В свою очередь фильтры нужно периодически очищать.

Электричество в доме также является автономным, благодаря дизельному генератору. Генераторы, работающие от дизельного топлива достаточно удобны и безопасны.

Для этого необходимо горючее залить в топливный бак, откуда оно, попадает в камеру внутреннего сгорания. Выделяемое при сгорании тепло преобразуется в электроэнергию.

Отопление в доме осуществляется с помощью электрических конвекторов. Электрический конвектор это обогреватель, работающий на электричестве. Электрические конвекторы обеспечивают естественную циркуляцию воздуха. Теплый воздух поднимается вверх из верхней части конвектора, а на его место снизу приходит холодный, который в свою очередь тоже нагревается.

В конвекторе, в отличие от радиатора, теплоносителем заполнен не весь прибор, а только внутренняя труба. За счет этого расход энергии на отопление значительно экономится. Устанавливаются электрические конвекторы под окнами, так как окна являются источником холода.

Во избежание замерзания воды возле плавучего дома используются специальные "антиледовые" устройства.

Благодаря двум подвесным моторам, мощностью 50 лошадиных сил и находящиеся в задней части здания, плавучий дом приобретает такую особенность, как самоходность.

Пост управления домом находится на первом этаже: здесь расположены штурвал, рычаги, кнопки управления различными механизмами, навигационное оборудование.

.2.2 Архитектурное и объемно-планировочное решения

Плавучий дом - современный и комфортабельный двухэтажный дом, состоящая из двух этажей, общая площадь которых 105 кв.м. Планировочная схема здания соответствует нормативным документам и обеспечивает комфортное проживание семьи.

Характерная черта проекта - уникальный, запоминающийся европейский дизайн, придающий легкость сооружению, в то же время конструкция плавучего дома сохраняет способность противостоять суровой русской зиме. Экологическая вата имеет отличные технические характеристики, которая обеспечивает идеальную теплоизоляцию надстройки.

Плавучий дом укомплектован необходимыми якорными и швартовными устройствами, сигнальными огнями, спасательными средствами и предметами снабжения.

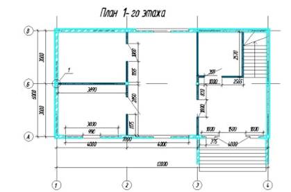
На втором этаже сконструирован балкон. На первом и втором этажах расположены витражные окна и двери, что придает дому современность и привлекательность.

Рис. 1. План 1 этажа

Рис. 2. План 2 этажа

.2.3. Конструктивное решение здания

Таблица 1

Основные характеристики плавучего здания

название

Плавучее здание

тип строения

малоэтажное

основное использование

жилой

этажность (над водой)

2

этажность (под водой)

0

архитектурный стиль

модернизм

материал каркаса

легкие стальные тонкостенные конструкции

высота (архитектурная)

7,5 м

высота (до верхнего этажа)

3 м

общая площадь

105 м2


В качестве каркаса дома используются легкие стальные тонкостенные конструкции (ЛСТК). При использовании строительства ЛСТК в несущих конструкциях используются тонкостенные профили со сквозными прорезями, выполненными в шахматном порядке (Рис. 3). Таким образом, в конструкции значительно увеличивается путь прохождения тепловых потоков, что улучшает более чем втрое теплотехнические свойства стеновой панели, а также и её звукопоглощающие свойства.

Рис. 3. Термопрофиль

Система ЛСТК современна и популярна во многих странах в качестве удобного технологичного и быстрого способа возведения зданий.

Как всякая строительная технология, имеет преимущества и недостатки.

1. Основное преимущество технологии - скорость строительства. Лёгкие конструкции из прочной стали позволяют построить дом в 100 кв. м за две - три недели, причём усилиями одной рабочей бригады из 4 человек.

2.      Такая быстрая возводимость строения не мешает ему быть прочным и устойчивым к негативным воздействиям внешней среды, таким как сейсмоактивность, влага, ветер (что не маловажно для плавучего дома).

.        Технология достаточно экономична. Её использование предполагает весомое снижение затрат на материалы. Кроме того, технология ЛСТК требует небольшого расхода стали, что также снижает общую стоимость строительства. Расход стали при строительстве одноэтажного жилого дома по технологии ЛСТК не превышает 30 кг.

.        Так как стальные тонкостенные профили имеют высокие прочностные характеристики, конструкция здания получается также весьма надёжной и прочной.

.        "Сухая стройка" так можно охарактеризовать весь циклстроительно-монтажных работ, выполняемые по данной технологии. Отсутствие жидких и льющихся компонентов и материалов исключает проблемы с влажностью и, следовательно, с проблемами сырости, грибков и плесени.