Материал: Модернизация главного электропривода фрезерного станка 6Н82 с использованием частотного преобразователя

Внимание! Если размещение файла нарушает Ваши авторские права, то обязательно сообщите нам

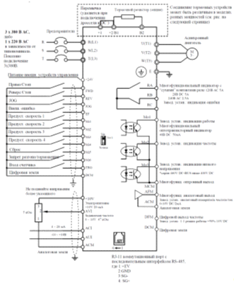
Рисунок 7 - Схема преобразователя частоты

Таблица 8 - Назначение силовых клемм

Обозначение терминалов

Назначение

R(L1), S(L2), T(L3)

Клеммы для подключения питающей сети (ПЧ с однофазным питанием 220В подсоединяются к любым двум из этих клемм)

U(T1), V(T2), W(T3)

Подключение трехфазного асинхронного двигателя

+1, +2/B1

Подключение дросселя постоянного тока (опция). Перед подключением удалите перемычку +1, +2/B1

+2/B1, B2

Подключение тормозного резистора (опция)

+2/B1, -

Подключение тормозного модуля VFDB (опция)

Подключение заземляющего провода (не подсоединять аналоговые и цифровые общие провода)



Таблица 9 - Назначение управляющих терминалов

Обозначение терминала

Функции терминала

Заводская установка функции терминала

FWD

Пуск в прямом направлении/Стоп

ВКЛ: Пуск в прямомнаправленииВЫКЛ: Стоп с заданнымзамедлением

REV

Пуск в обратном направлении/Стоп

ВКЛ: Пуск в обратномнаправленииВЫКЛ: Стоп с заданнымзамедлением

JOG

Jog-стоп (толчковая скорость)

ВКЛ: Пуск на частоте JOGВЫКЛ: Стоп с заданнымзамедлением

EF

Внешняя ошибка

ВКЛ: отключение привода

TRG

Вход внутреннего счетчика

ВКЛ: увеличение значения счетчика на 1

MI1

Многофункциональный вход 1

МI1- МI4: заданиепредустановленных скоростей; МI5: Сброс ошибки; МI6: Запрещение измененияскорости. Входы программируются впараметрах Pr.04-04…04-09.

MI2

Многофункциональный вход 2


MI3

Многофункциональный вход 3


MI4

Многофункциональный вход 4


MI5

Многофункциональный вход 5


MI6

Многофункциональный вход 6


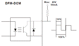
DFM

Импульсный выход с частотой пропорциональной выходной частоте (открытый коллектор)

Скважность: 50% Коэффициент передачи: Pr.03-07 Мин. нагрузка: 10KΩ Макс. ток: 50mA Макс. напряжение: 48VDC.

+24В

Источник питания внешних устройствуправления ("общий" для PNP логики)

+24В, 20мА (относительно DCM)

DCM

"Общий" для NPN логики

Общая точка для +24В


Многофункциональное реле:

Резистивная нагрузка: 5A(N.O.)/3A(N.C.) 240VAC 5A(N.O.)/3A(N.C.) 24VDC Индуктивнаянагрузка: 1.5A(N.O.)/0.5A(N.C.) 240VAC 1.5A(N.O.)/0.5A(N.C.) 24VDC Выход программируется в параметре Pr.03-00.

RA

Нормально разомкнутый контакт


RB

Нормально замкнутый контакт


RC

Общий провод контактов реле

Многофункциональный выходнойтерминал 1 (оптронный)

 

M02

Многофункциональный выходнойтерминал 2 (оптронный)


M03

Многофункциональный выходной терминал 3 (оптронный)


MCM

Общий для многофункциональныхвыходных терминалов

Макс. 48В DC 50мА

+10

Источник питания потенциометра регулировки скорости

+10В, 20мА

AVI

Аналоговый вход сигнала напряжения

Импеданс: 47kΩ Разрешение: 10 бит Диапазон: 0 ~ 10VDC = 0 ~ Макс. выходная частота (Pr.01.00) Выбор: Pr.02-00, Pr.02-13, Pr.10.00 Настройка: Pr.04-00 ~ Pr.04-03

ACI

Аналоговый вход токового сигнала

Импеданс: 250Ω Разрешение: 10 бит Диапазон: 4 ~ 20мА = 0 ~ Макс. выходная частота (Pr.01.00) Выбор: Pr.02-00, Pr.02-13, Pr.10.00 Настройка: Pr.04-11 ~ Pr.04-14

AUI

Дополнительный аналоговый вход по напряжению

Импеданс: 47kΩ Разрешение: 10 bits Диапазон: -10 ~ +10VDC = 0 ~ Макс. вых. частота (Pr.01-00) Выбор: Pr.02-00, Pr.02-13, Pr.10-00 Настройка: Pr.04-15 ~ Pr.04-18

AFM

Аналоговый выход с напряжениемпропорциональным выходной частоте

0 - 10V, 2mA Импеданс: 470Ω Ток нагрузки: 2mA макс. Разрешение: 8 бит Диапазон: 0 ~ 10VDC Назначение: Pr.03-05

ACM

Аналоговая земля

"Общий" для аналоговых входов/выходов


1.5 Расчет коробки скоростей станка при системе ПЧ

Рассчитаем количество передач станка при системе ПЧ.

Расчет первой скорости:


где, Мшпmax - максимальный момент шпинделя, Нм;н - номинальный момент, Нм;

ηн - номинальный КПД.


где, iпер1 - передаточное число;н - номинальная скорость двигателя, об/мин;мин - минимальная скорость двигателя, об/мин.


где, М1 (при n1) - момент шпинделя при скорости n1, Нм;

Мшп треб - требуемы момент шпинделя, Нм.

Расчет второй скорости:


Из расчетов следует, что для нового варианта коробки скоростей станка при системе ПЧ, требуется 4 передачи, чертеже ЮУПК270116 показан новый вариант кинематической схемы токарного станка.

Заключение: В данной курсовой работе был модернизирован горизонтально фрезерный станок 6Н82. Была рассмотрена и переработана кинематическая схема главного привода. А так же были выбраны преобразователи частоты которые повышают КПД станка при меньших энергозатратах.

2. Электроснабжение фрезерного станка

Потребитель электрической энергии - электроприемник или группа электроприемников, объединенных технологическим процессом и размещающихся на определенной территории.

Электроприемники второй категории - электроприемники, перерыв электроснабжения, которых приводит к массовому недоотпуску продукции, массовым простоям рабочих, механизмов и промышленного транспорта, нарушению нормальной деятельности значительного количества городских и сельских жителей. Горизонтально-фрезерный станок 6Н82 работает в продолжительном режиме работы. Продолжительный режим - режим, в котором электрические машины работают длительное время, при этом не перегреваясь. Этот эл.приёмник относится ко второй группе по бесперебойности эл.снабжения.

2.1 Расчет индивидуальных характеристик станка


где, Рр - расчетная активная мощность привода (кВт)

Рпасп - паспортная мощность двигателя (кВт)

Nдв - КПД двигателя

Nпч - КПД преобразователя частоты


где, Рср - средняя активная мощность приемника (кВт)

Ки - типовой коэффициент использования


где, Qр - расчетная реактивная мощность приемника (кВАр)


где, Qср - средняя реактивная мощность приемника (кВАр)


где, Sр - полная расчетная мощность приемника (кВА)


где, Iр - расчетный ток приемника (А)

Uн - номинальное напряжение (кВ)

Индивидуальные нагрузки главного привода:

 

Индивидуальные нагрузки привода подач:


Индивидуальные нагрузки станка:

 кВА


Индивидуальные нагрузки плоскошлифовального станка


2.2 Расчет групповых нагрузок

[Конюхова]

, т.к. nэ <10

Qр=Qср, т.к. Кpq<10

.3 Выбор сечения проводников, коммутационного оборудования и распределительного пункта

Питающий кабель для группы электроприемников АВВГ 4×16 мм²

Iр ≤ Iдд

,06 А ≤ 75 А

Питающий кабель для фрезерного станка 6Н82 АВВГ 4×6 мм²

Iр ≤ Iдд

,6 А ≤ 15 А

Распределительное устройство:

ПР 8501-023

Количество присоединений - 8

Тип исполнения - навесной

Iн - 250 А

Автоматический выключатель ВА51-31 (40А)

Автоматический выключатель станка ВА51-31 (31,5А)

2.4 Расчет потерь напряжения в линии

В кабеле АВВГ 4×6 мм²

 

Rлин. - активное сопротивление линии

R0 - активное сопротивление 1 м

Lлин. - длина линии

 

Х0 - индуктивное сопротивление линии 1 м


В кабеле АВВГ 4×25 мм²

 

 

 

 

 

 

2.5 Расчет токов КЗ в характерных точках цеховой сети, проверка оборудования на воздействие токов КЗ

При проектировании СЭС учитываются не только нормальные, продолжительные режимы работы ЭУ, но и аварийные режимы их. Одним из аварийных режимов является короткое замыкание. КЗ - называют всякое случайное или преднамеренное, не предусмотренное нормальным режимом работы, электрическое соединение различных точек электроустановки между собой или землёй, при котором токи в ветвях электроустановки резко возрастают, превышая допустимый ток продолжительного режима. Причинами коротких замыканий могут быть механические повреждения изоляции, старение изоляции, ошибки персонала.

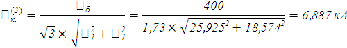
Рассчитаем ток трехфазного короткого замыкания на распредустройстве


Рассчитаем ток однофазного короткого замыкания на электроприемнике

 

При коротком замыкании по токоведущим частям проходят токи переходного режима, вызывая сложные усилия в шинных конструкциях и аппаратах электрических установок. Эти усилия изменяются во времени по значению, направлению и имеют колебательный характер.

Электродинамические усилия в токоведущих частях трудно поддаются расчёту, поэтому заводы-изготовители указывают динамическую стойкость устройства, которая должна быть больше расчетного ударного тока КЗ. Таким образом, проверка аппаратов по электродинамической стойкости производится по условию:

 

 

Произведем проверку автоматического выключателя ВА51-31(точка K1) (40А). По паспортным данным номинальная отключающая способность этого устройства 10 кА. Трехфазный ток КЗ 6,88 кА.

кА≥6,88кА, следовательно, автоматический выключатель сможет отключить линию при аварийном режиме.

Динамическая стойкость согласно паспортным данным 25 кА. Ударный ток КЗ 9,7 кА.

кА≥9,7кА ,следовательно, автоматический выключатель прошел проверку.

Произведем проверку автоматического выключателя ВА51-31(точка K2) (31,5А). Токи однофазного короткого замыкания гораздо меньше токов трехфазного короткого замыкания. Следовательно, данный выключатель необходимо проверить на способность почувствовать однофазное короткое замыкание.

Произведем расчет коэффициента чувствительности, который должен быть не менее 3

,68 ≥ 3

Коэффициент чувствительности во много раз больше необходимого минимума, следовательно автоматический выключатель прошел проверку.

3. Технико-экономический расчет

В экономической части дипломного проекта проводятся технико-экономические расчеты размеров затрат на производство продукции и дается окончательный анализ эффективности спроектированного технологического процесса.

3.1 Расчет материальных затрат

К материальным расходам относятся следующие затраты: затраты на сырье, покупные материалы для обеспечения технологического процесса, комплектующие, инструмент, спецодежда, энергия и т.д.

Определение затрат на основные материалы производят по стоимости материалов и отходов (принимается по прейскурантам, ценникам или по заводским данным)

К цене материала, взятого из прейскуранта, необходимо прибавить расходы, связанные с доставкой материала на завод (стоимость транспортировки и разгрузки), равные примерно 4% цены.

Таблица 1.1. Расчет затрат на основные материалы

Материал

Кол-во шт.

Цена материала руб. за шт.

Стоимость комплектующих руб.

Стоимость с учетом транспортного расхода руб.

Электромагнитная муфта ЭТМ-146-1А

5

7500

7500×5=37500

37500+1500= 39000

Щеткодержатель ЭМЩ-2А20

5

160

160×5=800

800+32=832

Преобразователь частоты

1

30000

30000×1=30000

30000+1200=31200

КабельАВВГ 4×6=25 (4метра)

2

128×4=512

512×2=1024

1024+41=1065

Кабель АВВГ 4×6 (4метра)

5

20×4=80

80×5=400

400+16=416

Итого

72513