Материал: Методи випробувань і досліджень металу шва і зварних з’єднань

Внимание! Если размещение файла нарушает Ваши авторские права, то обязательно сообщите нам

 Рисунок 4 - Загальний вигляд хрестоподібного зразка без надрізу

 

При випробуванні зварних зразків з накладками (рис.5) та з накладними поздовжніми кутовими швами (рис. 6) оцінюється границя текучості і тимчасовий опір зварних з'єднань. Загальний вигляд хрестоподібного зразка і зварного зразка з муфтовим з'єднанням для випробування труб наведені на (рис 7 і 8).

Для випробування швів точкового зварювання на зріз розтягуванням застосовують зразки як з однобічним (рис. 9), так і з двобічним (рис. 10) зварним з'єднанням для контролю режимів точкового зварювання, для перевірки зварюваності різних металів, а також для контролю міцності зварних точкових швів.

Розподілення силових ліній в зварному зразку показано на (рис. 11), а можливі види руйнувань на (рис. 12).

Переважно здатністю матеріалу виробу протистояти руйнуванню визначають його надійність.

Руйнування - макроскопічне порушення суцільності матеріалу через ті чи інші силові впливи на нього. Вивчення макро - та мікроструктури зламу випробовуваного матеріалу дозволяє оцінити опір матеріалу розповсюдженню тріщин.

2.1.3 Випробування на розтяг при підвищених і понижених температурах

2.1.3.1 Методи випробувань на розтяг при підвищених температурах регламентуються ГОСТ 9651-73 - ним регламентується проведення випробувань із чорних і кольорових металів, сплавів і виробів з них, за винятком листового металу і стрічки товщиною до 0,5 мм, а також дроту, труб. Даний стандарт встановлює методи короткочасного статичного випробування на розтяг для визначення при температурах до 1200°С наступних характеристик механічних властивостей:

1) границі пружності,;

2) границі текучості (фіз.),;

) границі текучості умовної,;

) тимчасового опору,;

) відносного звуження після розриву, ;

) відносного видовження після розриву ψ.

Устаткування для випробувань.

В якості машин для випробування використовують розривні і універсальні випробувальні машини всіх систем, при умові відповідності їх вимогам стандарту і ГОСТ 7855-74.

Рисунок 5 - Загальний вигляд зварного зразка з накладками

 

Рисунок 6 - Загальний вигляд зварного зразка з накладними повздовжніми кутовими швами

  

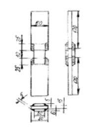
Рисунок 7 - Загальний вигляд зварного Рисунок 8 - Загальний вигляд зварного зразка з муфтовим зєднанням        хрестоподібного зразка

 

                     

Рисунок 9 - Загальний вигляд зразка     Рисунок 10 - Загальний вигляд

виконаного точковим зварюванням з зразка виконаного точковим

однобічним зварним з’єднанням                  зварюванням з двобічним

         зварним зєднанням

 

Рисунок 11 - Розподіл силових ліній в зварному зразку виконаному точковим зварюванням

 

Рисунок 12 - Загальний вигляд зварних зразків виконаних точковим зварюванням після руйнування

а) надійне центрування випробуваного зразка;

б) плавність зростання навантаження;

в) швидкість випробувань (вказується в стандартах або ТУ на металопродукцію, якщо вони відсутні, тоді швидкість переміщання активного захвату () встановлюється в межах 0,04-0,1 від розрахункової довжини зразка). При наявності вказаних в стандартах або ТУ на металопродукцію визначення границі текучості при постійній швидкості навантаження зразка не більше в ;

г) можливість припинення навантаження з точністю - до однієї найменшої поділки шкали сило вимірювача. Деформацію при визначенні умовної границі текучості вимірюють тензометрами з ціною поділки шкали не більше 0,2 мм, а при визначенні границі пружності - не більше 0,002 мм;

д) пристрої для нагрівання повинні забезпечувати рівномірний нагрів зразків по всій його робочій довжині до заданої температури і зберігати цю температуру у встановлених межах на протязі всього випробування. Вимірювання температури потрібно проводити приладами, клас точності яких не менше 5%. Термопари повинні систематично провірятися у відповідності з інструкціями державного стандарту. При наявності в стандартах або ТУ на металопродукцію особливих вказівок дозволяється проведення випробувань в захисній атмосфері.

Багато сучасних машин (парових і газових турбін, реактивних двигунів) працюють при підвищених температурах (800-1000°С). Випробування показали, що всі механічні властивості істотно змінюються в залежності від температури.

На (рис. 13) зображено діаграми напружень вуглецевої сталі при різних температурах, а на (рис. 14) - графіки залежності границі текучості тимчасового опору і відносного видовження при розриві від температури.

В інтервалі температур 150-250°С тимчасовий опір має найбільше значення, а відносне видовження після розриву - найменше; сталь стає синеламкою. При підвищених температурах міцність вуглецевої сталі швидко падає, тому для експлуатації при температурах вище 350-400°С таку сталь не використовують, при підвищенні температури також істотно зменшується модуль пружності (рис. 15).

 

Рисунок 13 - Залежність напружень () вуглецевої сталі від  температури (Т°С)

 

Рисунок 14 - Залежність границі текучості () тимчасового опору () і відносного видовження (δ) при розриві від температури (Т°С)

  

Рисунок 15 - Залежність модуля пружності  від температури (Т°С)

.1.3.2 Методи випробувань на розтяг при понижених температурах

На механічні властивості деяких металів суттєве впливають низькі температури. Матеріали, які пластичні при нормальній температурі (20°С), стають крихкими при низьких температурах. Такі матеріали називають холодноламкими.

Холодноламкість характерна для металів з кристалічною решіткою об'ємноцентрованою або гексагональною. До них відносяться більшість чорних металів, зокрема сталі та цинкові сплави. Виявляється холодноламкість виникає особливо при статичних і динамічних навантаженнях. Метали, що кристалізуються в системі куба з центрованими гранями (мідь, алюміній, срібло та ін.) не виявляють холодноламкості при пониженні температури. Наприклад алюміній при температурі рідкого азоту (-196°С) збільшує міцність приблизно в 2 рази, одночасно збільшується відносне видовження в 4 рази. Аналогічно ведуть себе мідь і нікель.

Випробування на розтяг чорних і кольорових металів та зварних з'єднань при підвищених і понижених температурах регламентується державним стандартом. Встановлені розмір і форма зразків для випробування на розтяг, а також температурні режими випробувань на розтяг при підвищених і понижених температурах проводять однаково, як і при нормальних температурах. Зразок розтягують поступово з постійною швидкістю деформації (або навантаження). Спочатку його нагрівають охолоджують до заданої температури, яку підтримують в необхідних межах на протязі всього часу випробування. Як приклад на рисунку 16 показаний графік зміни границі текучості  та тимчасового опору  при статичних випробувань вуглецевої сталі в області низьких температур.

Рисунок 16 - Графік зміни границь текучості та тимчасового опору при статичних випробуваннях вуглецевої сталі при низьких температурах

Методи випробувань на розтяг при понижених температурах проводять згідно ГОСТ 11150 - 75(65). Даний стандарт регламентує випробування, які проводяться на чорних і кольорових металах, сплавах і виробах з них, і встановлює метод статичних досліджень на розтяг при температурах від 0°С до -100°С наступних характеристик механічних властивостей:

) границю пружності,  

) границю текучості (фіз.),

3) границю текучості (умов.),  

) тимчасового опору,  

) відносне видовження,

 6) відносне звуження після розриву, ψ.

Стандарт не поширюється на стрічку товщиною до 0,5мм, дріт, труби

А Устаткування. В якості випробувальних машин використовують розривні і універсальні машини всіх систем, при умові відповідності з

ГОСТ 7855 - 74. Робочий простір машини повинен дозволяти встановлювати кріокамеру або посудину з охолоджуючою рідиною із продовжуючими штангами.

Конструкція посудини або кріокамери повинна забезпечувати рівномірність охолодження робочої частини зразка. Охолоджуючі рідини не повинні бути токсичними, агресивними і вибухонебезпечними. Застосовувати в якості охолоджувача рідкий кисень і повітря не допускається. Допускається охолоджувати зразки в газовому середовищі. В якості охолоджувачів можна застосовувати рідини органічного і неорганічного охолодження, що представляють собою суміш хладогентів (тверда вуглекислота, рідкий азот та ін.).

Для вимірювання температури охолодження середовища застосовують рідинні (не ртутні) термометри з ціною поділки шкали не більше 1°С, і термоелектричні термометри, які відповідають вказаним вимогам відносно ціни поділки.

Б. Підготовка до випробувань:

1) температура, при якій повинно проводитися випробування зразку повинна бути передбачена і записана в ТУ на металопродукцію. Рекомендується випробування проводити при температурах: 0°С; -20С;

-40°С; ... -100°С (інтервал -20°С), при необхідності - інтервал 10°С.

) зразок, встановлений у штангах, в кріокамеру або посудину з охолоджуваною рідиною;

) температуру охолодження рідини в посудині підтримують на рівні, добавляючи при необхідності невеликі порції охолоджувача або перемішують;

) при випробуваннях зразків в газовому середовищі, час охолодження до заданої температури встановлюється експериментально;

5) допускається відхилення температури охолоджуючого середовища від заданої ±2°С, в інтервалі від 0 до -100°С;

) час витримки при заданій температурі повинен бути заданий в стандартах або ТУ на металопродукцію, якщо такі дані відсутні то витримку зразків в охолоджувальному середовищі встановлюють:

а) не менше 10 хв. - для круглих зразків діаметром 6 мм;

б) менше 10 хв. - для плоских зразків, товщиною 4 мм і більше;

в) більше 15 хв. - для круглих зразків діаметром більш 6 мм;

г) більше 15хв. - для плоских зразків товщиною більше 4 мм.

В. Проведення випробувань і розрахунок результатів.

Зразки які знаходяться в кріокамері або посудині піддають випробуванням на розтяг. Проведення випробувань і підрахунок результатів проводять згідно ГОСТ 1497-73. При проведені випробувань повинні виконуватись наступні основні умови:

а) надійне центрування зразків в захватах випробувальної машини;

б) плавність навантаження;

в) швидкість переміщення основного захвату, при випробуваннях повинно бути більше 0,1 розрахункової довжини зразка;

г) плавність розвантаження;

д) можливість призупинки навантаження з точністю до однієї найменшої поділки силовимірювача.

Г. Випробування вважаються недійсними:

а) при розриві зразка по кермах якщо при цьому якась характеристика не відповідає встановленим вимогам;

б) при розриві зразків за границею розрахункової довжини (при визначенні відносного видовження);

в) при розриві зразків по дефектах металургійного походження (розшарування, газові раковини, бульбашки, плівки та ін.);

г) при порушенні температурного режиму випробування.

.2 Методи випробувань на тривалу міцність за ГОСТ 10145 - 62

Тривала міцніть - це властивість матеріалу протистояти руйнуванню під дією тривалого навантаження при температурі до 1200°С.

Метод полягає в тому що зразок доводиться до руйнування під дією постійно розтягуючого навантаження при постійній температурі. Даний стандарт поширений на чорні і кольорові метали і сплави. В результаті випробувань визначають границю тривалої міцності (встановлюють відповідність між часом до руйнування і нормою часу вказаною в стандартах або ТУ на металопродукцію).

2.2.1 Форма і розміри зразків

2.2.1.1 Встановлюються наступні основні зразки для випробувань:

а) циліндричний зразок діаметром 5 мм, з початковою розрахунковою довжиною 25 мм;

б) циліндричний зразок діаметром 10 мм з початковою розрахунковою довжиною 50 мм;

в) циліндричний зразок діаметром 10 мм з початковою довжиною

мм;

г) циліндричний зразок діаметром 7 мм з початковою розрахунковою довжиною 70 мм;

д) плоскі зразки з початковою розрахунковою довжиною.

  (2.1)