Материал: Курсач

Внимание! Если размещение файла нарушает Ваши авторские права, то обязательно сообщите нам

28

Реферат

Пояснювальна записка до курсової роботи містить 28 сторінок; 4 рисунки;

4 таблиць.

Мета роботи - систематизація і закріплення знань по технічних каналах витоку інформації та заходам щодо їх запобігання.

Об'єкт дослідження – виділене приміщення(вул. Собінова буд. 38).

Предмет дослідження – методи та засоби технічного захисту інформації.

У роботі проводиться обстеження виділеного приміщення, аналіз об`єктів захисту, виявлення загроз і вразливостей у виділеному приміщенні щодо витоку інформації технічними каналами. Ґрунтуючись на отриманих даних створюється комплекс технічного захисту інформації.

ТЕХНІЧНИЙ ЗАХИСТ ІНФОРМАЦІЇ, ЗАГРОЗИ ТА ВРАЗЛИВОСТІ, КОМПЛЕКС ТЕХНІЧНОГО ЗАХИСТУ ІНФОРМАЦІЇ, ПОБІЧНІ ЕЛЕКТРОМАГНІТНІ ВИПРОМІНЮВАННЯ, ГЕНЕРАТОР ПРОСТОРОВОГО ЗАШУМЛЕННЯ, ОСНОВНІ ТЕХНІЧНІ ЗАСОБИ, ДОПОМІЖНІ ТЕХНІЧНІ ЗАСОБИ ТА СИСТЕМИ, ФІЛЬТР ЗАХИСНИЙ ПРОТИЗАВАДНИЙ, РОЗДІЛОВИЙ ТРАНСФОРМАТОР, ОБ’ЄКТ ІНФОРМАЦІЙНОГО ДОСЛІДЖЕННЯ.

ЗМІСТ

ПЕРЕЛІК СКОРОЧЕНЬ, УМОВНИХ ПОЗНАЧЕНЬ, СИМВОЛІВ, ОДИНИЦЬ І ТЕРМІНІВ…………………………….……………………………

4

ВСТУП……………………………………………………………………………..

5

1 АНАЛІЗ ОБ’ЄКТУ ІНФОРМАЦІЙНОЇ ДІЯЛЬНОСТІ………..……….……..

6

1.1 Ситуаційний план ОІД

6

1.2 Генеральний план ОIД

9

1.3 Основні технічні засоби

11

1.4 Допоміжні технічні засоби

13

1.5 Телекомунікації, ОТЗ і ДТЗС, а також будівельні та інженерні конструкції та комунікації, що виходять за межі КЗ

14

1.6 Опис технічних каналів витоку ІзОД, що існують на ОІД

14

2 ОРГАНІЗАЦІЙНІ ЗАХОДИ ТА ТЕХНІЧНІ ЗАСОБИ ЗАХИСТУ, ЩО ПРОПОНУЮТЬСЯ ДЛЯ ЗАПОБІГАННЯ ВИТОКУ ІНФОРМАЦІЇ НА ОБ’ЄКТІ ІНФОРМАЦІЙНОЇ ДІЯЛЬНОСТІ…………………………………….

20

2.1 Захист інформації від витоку по акустичному та віброакустичному каналах

20

2.2 Захист інформації від витоку по візуально-оптичному та лазерно-акустичному каналах

21

2.3 Захист інформації від витоку електроакустичними каналами

21

2.4 Захист інформації від витоку каналами ПЕМВ

22

2.5 Захист інформації від витоку каналами наведень на лінії електроживлення, лінії заземлення, лінії охоронної та пожежної сигналізації

22

3 ОПИС КОМПЛЕСНОЇ СИСТЕМИ ЗАХИСТУ ІНФОРМАЦІЇ…………….

23

3.1 Загальні вимоги щодо захисту інформації на ОІД…………………...

23

3.2 Структура КСЗІ та вимоги до її елементів ……………...……………

24

3.3 Умови використання засобів захисту …………………………….…..

25

ВИСНОВКИ………………………………………………………………………

26

ПЕРЕЛІК ПОСИЛАНЬ…………………………………………………………....

28

ПЕРЕЛІК СКОРОЧЕНЬ, УМОВНИХ ПОЗНАЧЕНЬ, СИМВОЛІВ,

ОДИНИЦЬ І ТЕРМІНІВ

АТС – Автоматична телефонна станція

ВЧ – високочастотні

ДТЗС – допоміжні технічні засоби і системи

ЗТР – засоби технічної розвідки

ІзОД – інформація с обмеженим доступом

ІС – інформаційна система

КЗ – контрольована зона

КСЗІ – комплексна система захисту інформації

ОІД – об’єкт інформаційної діяльності

ОТЗ – основні технічні засоби

ПБ – політика безпеки

ПЕОМ – персональна електронна обчислювати на машина

ПЕМВН – побічні електромагнітні випромінювання і наводки

ПК – персональний комп’ютер

ТР – технічна розвідка

ВСТУП

Інформаційна безпека є одним з найважливіших аспектів інтегральної безпеки, на якому б рівні ми не розглядали останню - національному, галузевому, корпоративному або персональному.

При аналізі проблематики, пов'язаної з інформаційною безпекою, необхідно враховувати специфіку даного аспекту безпеки, яка полягає в тому, що інформаційна безпека є складова частина інформаційних технологій - області, що розвивається безпрецедентно високими темпами. Тут важливі не стільки окремі рішення (закони, навчальні курси, програмно-технічні вироби), що знаходяться на сучасному рівні, скільки механізми генерації нових рішень, що дозволяють жити в темпі технічного прогресу.

На жаль, сучасна технологія програмування не дозволяє створювати безпомилкові програми, що не сприяє швидкому розвитку засобів забезпечення ІБ. Слід виходити з того, що необхідно конструювати надійні системи (інформаційної безпеки) із залученням ненадійних компонентів (програм). В принципі, це можливо, але вимагає дотримання певних архітектурних принципів і контролю стану захищеності на всьому протязі життєвого циклу ІС.

  1. АНАЛІЗ ОБ’ЄКТУ ІНФОРМАЦІЙНОЇ ДІЯЛЬНОСТІ

    1. Ситуаційний план об’єкту інформаційної діяльності(ОІД)

Схему ситуаційного плану ОІД наведено на рис. 1.1

Службове приміщення, у якому циркулює інформація з обмеженим доступом, розташоване на 1-му поверсі 1-но поверхового цегляного приватного будинку за адресою вулиця Собінова будинок 38

Розташування ОІД – звичайне. Категорія приміщення – третя. Категорія інформаційної системи (ІС) – третя.

Охорона ОIД та пропускний режим не здійснюється.

Режимна територія та приміщення не охороняються.

Будинків в яких розташовані спільні підприємства та іноземні представництва, та (або) проживають іноземні громадяни в радіусі 200м немає.

Місця можливого розміщення стаціонарних та мобільних засобів (технічної розвідки) ТР, а також напрямки, сектори та зони, з яких можливе ведення ТР, відображені схематично на рис. 1.1

Основні характеристики вулиць, що проходять поруч з будинком в якому знаходиться ОIД наведено в таблиці 1.1.1

Таблиця 1.1.1 – Характеристика вулиць, що межують з ОІД

№ з/п

Назва вулиці

Розташування відносно ОІД

Ширина частини для про-їзду, м

Ширина пішохідної частини, м

Інтенсивність руху автотранспорту

Наявність місць неконтрольованого перебування автотранспорту

1

Вулиця Собінова

Захід

2.5

1.5

Низька

Так

Об’єкти, що оточують будинок, в якому знаходиться ОІД наведено в таблиці 1.1.2

Таблиця 1.1.2 – Об’єкти, що оточують будинок з ОІД

№ з/п

Розташування відносно ОІД

Кількість поверхів

Адреса

Характер діяльності

Відстань від ОІД, (м)

1

2

3

4

5

6

1

Південь

1

Вул. Собінова 36

Житловий будинок

12

2

Південний захід

1

Вул. Собінова 35

Житловий будинок

31

3

Захід

1

Вул. Собінова 37

Житловий будинок

19

4

Північний захід

1

Вул. Собінова 39

Житловий будинок

23

5

Північ

1

Вул. Собінова 40

Житловий будинок

6

Схему ситуаційного плану наведено на рис. 1.1

-місце можливого розташування та застосування рухомих ТЗР;

- цегляна огорожа.

- місце можливого розташування та застосування стаціонарних ТЗР;

Рис. 1.1 Схема ситуаційного плану ОІД

    1. Генеральний план оiд

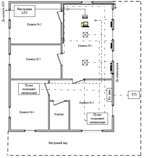
Будівлю введено в експлуатацію у 1912 році. Фундамент будинку – бетонний, стіни – цегляні.

Поли – бетонні, покриття – лінолеум. Покрівля будинку – стропильна дерев’яна система, покриття - шифер.

Основна частина системи заземлення виконана усередині контрольованої зони. Заземлювач знаходиться у КЗ.

Системи теплопостачання, водопостачання, каналізації будинку підключені до міських мереж.

Територія навколо будинку впорядкована, має тверде покриття.

Приміщення № 1 має розмір 8×6м. Стеля підвісна, висота стелі 2.6м. Підлога бетонна, покрита лінолеумом, двері дерев‘яні 2.1×1.1м, одинарні. Стіни цегляні.

Освітлення приміщення № 1 здійснюється за допомогою 2 світильників денного освітлення.

Приміщення № 1 має чотири стеклопакетових вікна.

Ремонт приміщення № 1 не проводився з 2002 року.

Доступ до приміщення обмежений, перебування відвідувачів з боку сторонніх організацій у приміщенні можливе тільки з дозволу власника.

Схему розташування елементів інтер’єра кімнати № 1 наведено на рис 1.2

Приміщення № 2 розташоване на 1-му поверсі житлового будинку. Стіни, підлога, стеля – цегляні. Має одне два стеклопакетових вікна. Вікні обладнані вертикальними жалюзі, виходять у бік вулиці Собінова в західному напрямку. Розміри вікон: - висота 1,20м,– ширина 0,90м.

Приміщення № 3 має одне стеклопакетове вікно. Вікно обладнане вертикальними жалюзі, виходить у бік вулиці Собінова в західному напрямку. Розмір вікна: - висота 1,20м,– ширина 0,90м.

Приміщення № 5 розташоване на 1-му поверсі житлового будинку. Стіни, підлога, стеля – цегляні. Має одне два стеклопакетових вікна. Вікна обладнані вертикальними жалюзі, виходять у внутрішній двір. Розміри вікон: - висота 1,20м,– ширина 0,90м.

Деякі з суміжних приміщень обладнані засобами відкритого зв’язку та офісною технікою.

Ні в суміжних приміщеннях, ні в будинку в цілому не працюють іноземні громадяни, неконтрольоване перебування сторонніх осіб унеможливлено.

    1. Схема генерального план ОIД наведено на рис. 1.2

Рис. 1.2Генеральний план ОІД

1.3 Основні технічні засоби

Схему розташування основних технічних засобів(ОТЗ) наведено на рис. 1.3.

– МФУ (принтер, сканер, копір)

– Телефонний апарат

– Проектор