Материал: Контроль размеров деталей с помощью предельных калибров

Внимание! Если размещение файла нарушает Ваши авторские права, то обязательно сообщите нам

Контроль размеров деталей с помощью предельных калибров

Содержание

1. Основные понятия

. Допуски гладких калибров

. Расчет номинальных размеров калибров

.1 Расчет калибра-пробки 60Н7

.2 Расчет калибра-скобы 60k6

.3 Расчет резьбового калибра М27х6-6G

. Особенности контроля с помощью калибров и показания качества

Список используемой литературы

1. Основные понятия

Калибры представляют собой измерительные инструменты без шкалы, предназначенные для контроля деталей при их изготовление и приемке.

По методу контроля калибры делятся на нормальные и предельные.

Нормальный калибр - это калибр, воспроизводящий заданный линейный размер и форму сопрягаемы с ним поверхности контролируемого элемента изделия.

К нормальным калибрам относятся шаблоны, щупы, калибры конусные. Шаблонами проверяют отклонение формы поверхности поверяемой детали. Прикладывая шаблоны к поверхности детали, определяют по просвету степени совпадения шаблона и детали. В машиностроение широко применяют радиусные и резьбовые шаблоны. Щупами поверяют зазор между плоскостями, их изготовляют в виде пластин толщиной 0,02-1 мм. Часто с помощью щупов выставляют зазоры. Конусные калибры контролируют точность конических валов и отверстий по базорасстоянию и краске. При применении нормальных калибров существуют два основных недостатка. Подгоняя деталь к калибру:

.        удается получить только один вид сопряжения, близкий к посадке скольжения;

.        детали приходится обрабатывать с большой, неоправданно высокой точностью.

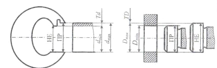
Предельный калибр - это калибр, воспроизводящий проходной и (или) непроходной пределы геометрических параметров элементов изделия, т.е. он имеет номинальный размер , равный одному из предельных размеров детали или два номинальных размера сразу, которые раны наибольшему и наименьшему предельным размерам контролируемой детали. Наибольшее практическое применение имеют предельные калибры, особенного в условиях серийного и массового производства, для проверки размеров гладких сопряжений, конусных, резьбовых и шлицевых деталей, глубин и высот выступов, а так же расположений поверхностей и других параметров. Сущность контроля размеров деталей с помощью предельных калибров заключается в определении годности контролируемой детали путем определения того, лежит ли размер детали в пределах заданного допуска, без нахождения действительного размера детали (рис. 1).

Рис.1 Схемы измерения деталей калибрами

По назначению предельные калибры делятся на проходные(ПР) и непроходные (НЕ), рабочие (Р), приемные (П), и контрольные (К).

Проходной калибр- это предельный калибр с геометрическими параметрами контролируемого элемента изделия, соответствующими максимально допустимому для скобы и минимально допустимому для пробки количеству материала изделия.

Непроходной калибр - предельный калибр с геометрическими параметрами контролируемого элемента изделия, соответствующими минимально допустимому (для скобы) и максимально допустимому (для пробки) количеству материала изделия.

Рабочий калибр- калибр для контроля изделий при их изготовлении.

Приемный калибр - калибр для контроля изделия заказчиком.

Контрольный калибр - калибр для контроля рабочих калибров.

По конструктивным признакам калибры делятся на регулируемы и нерегулируемые, одно- и двухпредельные, одно- и двухсторонние (рис. 2).

Рис. 2 Калибры пробки (а-д) и скобы (е-и), односторонние (г,д,е,ж,и) и двухсторонние (а,б,в,з)

а- с цилиндрическими вставками от 1 до 3 мм; б-со вставками и коническим хвостиком от 1 до 50 мм; в- с цилиндрическими насадками от 3 до 100 мм; г-неполные от 50 до 500 мм; листовые: е- для размеров от 1 до 180 мм; ж- для размеров от 1 до 50 мм; штампованные: з-для размеров от 3 до 50 мм; и- с ручкой для размеров от 50 ло 170 мм; д -контркалибры к скобам

2. Допуски гладких калибров

Гладкий калибр- калибр с гладкой рабочей поверхностью. Он может быть с цилиндрической, сферической, конической и плоской рабочей поверхностью.

Калибры, как и любые другие детали, изготовляются на металлорежущих станках и не могут быть изготовлены абсолютно точно, на них так же назначаются допуска.

На проходной калибр необходимо предусмотреть допуск на износ, так как в противном случае при изготовлении проходного калибра по наименьшему предельному размеру после небольшого срока его эксплуатации на сборке появятся бракованные детали, размеры которых меньше наименьшего предельного размера. Допуск на износ непроходной части калибра не назначается, так как непроходной калибр почти не изнашивается в следствии редкого сопряжения этого калибра с контролируемыми деталями.

Производственный допуск - разница между наименьшим предельным размером непроходного калибра и наибольшим предельным размером проходного. Эта разность значительно меньше табличного допуска, заданного на деталь.

Сокращение производственного допуска по сравнению по сравнению с табличным приводит к увеличению себестоимости изготовляемых деталей.

В связи со значительным увеличением себестоимости детали при их контроле калибрами, допуски которых расположены по идеальной схеме, на практике приняты «реальные» схемы расположения полей допусков калибров относительно допуска контролируемой детали.

Реальные схемы расположения допусков значительно расширяют производственный допуск, что обеспечивает снижение затрат на изготовление деталей, но делает возможным появление бракованных деталей на сборке. Если изменение размеров происходят по закону нормального распределения, вероятность поступления на сборку бракованных деталей уменьшается.

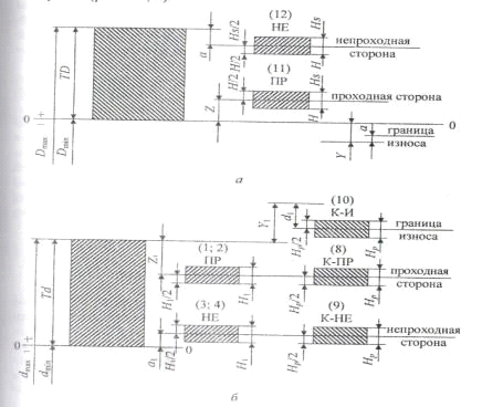
Четыре реальные схемы расположения допусков калибров по отношению к допуску контролируемой детали представлены на рис. 3. Первая и вторая схемы применяются для контроля отверстий с диметром до 180 мм, а третья и четвертая - свыше 180 мм.

Первая схема обеспечивает наибольшее расширение производственного допуска и применяется в 6-8 квалитетах, так как в этих квалитетах допуски калибров соизмеримы с допуском контролируемой детали.

Рис. 3 Реальные схемы расположения допусков калибров

допуск калибр качество вал

Сумма допусков калибров (проходного, непроходного и проходного на износ) составляет около половины допуска контролируемой детали, что приводит при идеально схеме к сокращению производственного допуска в два раза по сравнению с табличным. Вторая схема применяется для контроля диаметров с допусками в 9-78, третья схема-IT6-IT8, а четвертая - 9-18 квалитетов. В более грубых квалитетов допуски калибров составляют лишь незначительную часть от допуска контролируемой детали, поэтому даже применение схемы , близкой к идеальной, незначительно уменьшит величину производственного допуска по сравнению с табличным.

Рабочие калибры используются рабочими при изготовлении детали. Кроме того, калибры должны быть у контролера ОТК. Их калибры могут иметь то же расположение допусков, что и у рабочих калибров , так как при одинаковом расположении допусков калибров рабочего и контролера ОТК могут возникнуть производственные недоразумения из-за различного расположения действительных размеров калибров рабочего и контролера в пределах допуска на изготовления калибра. Например проходной калибр рабочего изготовлен по наименьшему предельному размеру, а у контролера по наибольшему, наоборот ,проходной калибр изготовлен по наибольшему и непроходной по наименьшему предельным размерам. В этом случае правильно проконтролированные рабочими детали будут забракованы контролером (рис.4). Для того, чтобы таких ситуаций не возникло, предусматривается использование контролером изношенных рабочих калибров.

Рис. 4 Схема, поясняющая необходимость использования контролерами ОТК изношенных рабочих калибров

Приемные калибры служат для контроля наиболее ответственных деталей приемщиками заказчика. Они обеспечивают приемку продукции заказчиком при использовании на производстве полностью изношенных рабочих калибров. Непроходной приемный калибр обозначается П-НЕ, а проходной П-ПР.

ГОСТ 24853-81 на гладкие калибры установлены следующие допуски на изготовление Н-рабочих калибров (пробок) для отверстия (рис. 5 а).

Рис. 5 Схемы расположения полей допусков калибров для отверстий (а) и валов (б)

В скобках указаны номера видов по ГОСТ 24851-81:Hs-тех же калибров, но со сферическими измерительными поверхностями; Н1- калибров (скоб) для валов (рис. 5б); Нр- контрольных калибров для скоб. В квалитетах 6,8-10 допуски Н1 для скоб примерно на 50 % больше допусков Н для пробок, что объясняется большой сложностью изготовления скоб. В квалитетах 7,11 и грубее допуски Н и Н1 равны. Допуски Нр для всех типов контрольных калибров одинаковы. Для размеров до 500 мм износ калибров ПР с допуском I8 включительно может выходить за границу поля допуска детали на величину Y для пробок и Y1 для скоб; для калибров ПР с допуском IT9 до IT17 износ ограничивается проходным пределом, т.е Y=0 и Y1=0. Следует отметить что поле допуска на износ отражает средний возможный износ калибра.

Для всех проходных калибров поля допусков Н(Нy) и Н1 сдвинуты внутрь поля допусков изделия на величину Z для калибров -пробок и Z1 , для калибров-скоб.

При номинальных размерах свыше 180 мм поле допуска непроходного калибра также сдвигается внутрь поля допуска детали на величину б для пробок и б1 для скоб, создавая так называемую зону безопасности , введенную для компенсации погрешностей контроля калибрами соответственно отверстий и валов размером свыше 180 мм. После допуска калибра НЕ для размеров до 180 мм симметрично относительно верхнего отклонения детали для пробок и относительно нижнего - для скоб, т.е б=б1=0.

3. Расчет номинальных размеров калибров

Номинальными называют предельные размеры калибра, по которым изготавливают наименьший размер с положительным отклонением; а для пробки - их наибольший размер с отрицательным отклонением. Таким образом, отклонение на чертеже проставляется в «тело» калибра, что обеспечивает максимум металла на изготовление и большую вероятность получения годных калибров. Номинальные размеры калибров определяют по формулам.

3.1 Расчет калибра-пробки ш60Н7

Определяем номинальные размеры калибров-пробок для отверстия диаметром D=60 мм с полем допуска Н7. Допуск основного отверстия:IT7=30 мкм. Следовательно, Dmax=60,030 мм; Dmin= 60,000 мм.

Допуски и предельные отклонения калибров для IT7 в интервале 50…80 мм: Н=5 мкм, Z=4 мкм, Y=3 мкм. По этим данным строим схему расположения полей допусков калибра-пробки (рис.6).









Рис.6 Схема расположения полей допусков калибра-пробки 60Н7

Наибольший размер нового проходного калибра-пробки:

ПРmax=Dmin+Z+H/2=60,000+0,004+0,005/2=60,0065 мм.

Размер калибра-пробки ПР, поставляемый на чертеже, при допуске на изготовление Н=5 мкм равен 60,0065-0,005 мм.

Номинальные размеры:

наибольший - 60,0065 мм,

наименьший - 60,0015 мм.

Наименьший размер изношенного проходного калибра-пробки при допуске на износ

Y=3 мкм равен

ПРизн=Dmin-Y=60,000-0,003=59,997 мм.

Наибольший размер нового непроходного калибра-пробки:

НЕmax=Dmax+H/2=60,030+0,005/2=60,0325 мм.

Номинальные размеры:

наибольший - 60,0325 мм;

наименьший - 60,0275 мм.

Рис. 7 Схема рабочего эскиза калибра пробки 60Н7

3.2 Расчет калибра скобы ш60k6

Определяем номинальные размеры калибра-скобы для вала диаметром d=60 мм с полем допуска k6.

Допуск основного вала равен: IT6=19 мкм. Следовательно, dmax=60,021 мм; dmin=60,002 мм.

Допуски и предельные отклонения калибров для IT6 в интервале 50…80 мм: =5 мкм, =4 мкм, =3 мкм, =2 мкм. По этим данным строим схему расположения полей допусков калибра-скобы (рис. 8).












Рис.8 Схема расположения полей допусков калибра-скобы 60k6

Наименьший размер проходной новой калибра-скобы

ПРmin=dmax-Z1-H1/2=60,021-0,004-0,005/2=60,0145 мм.

Размер калибра-скобы ПР, поставляемый на чертеже, при допуске на изготовление

=5 мкм равен 60,0145+0,005 мм.

Номинальные размеры:

наибольший - 60,0195 мм,

наименьший - 60,0145 мм.

Наибольший размер изношенного калибра-скобы при допуске на износ

=3 мкм равен

ПРизн=dmax+Y1=60,021+0,003=60,024 мм.

Наименьший размер непроходного калибра-скобы

НЕmin=dmin-/2=60,002-0,005/2=59,9995 мм.

Размер калибра-пробки НЕ, проставляемый на чертеже, равен 59,9995+0,003.

Номинальные размеры:

наибольший - 60,0025 мм;

наименьший - 59,9995 мм.

рис. 9 Схема рабочего эскиза калибра-скобы 60k6

3.3 Расчет резьбового калибра М27х3-6G

Основные размеры резьбы:

Шаг резьбы:Р=3 мм;

номинальный наружный диаметр:D=27,000 мм;

номинальный средний диаметр:D2=25,051 мм

номинальный внутренний диаметр: D1=23,752 мм;

Допуск среднего диаметра

TD2= 264 мкм

Половина угла профиля =30°±8’

Для контроля резьбы М27-6G

принимаем калибр пробку резьбовой проходной (ПР) и калибр-пробку непроходной (НЕ). Схема расположения полей допусков метрического резьбового калибра указана на рис.10.













Рис.10 Схема расположения полей допусков резьбового калибра М27-6G

ПР Наружный диаметр

D+EID+ZPL=27,000+0,048+0,016=27,064 мм

Предельное отклонение ±TPL=±0,014 мм;

D=27,078-0,028 мм;

Средний диаметр

D2+ EID2+ZPL=25,051+0,048+0,016=25,115

Предельное отклонение ±TPL/2=±0,007 мм;

D2=25,122-0,14 мм;

Предел износа

D2+ EID2+ZPL-WGO=25,051+0,048+0,016-0,021=25,094 мм;

D2=25,094 мм;

Внутренний диаметр

D1+ EID1-Н/6=23,752+0,048-0,86=22,940

НЕ Наружный диаметр

D2+ EID2+T D2+ TPL/2+2*F1=25,051+0,048+0,264+0,007+2*0,100=25,570 мм,

Предельное отклонение ±TPL=±0,014 мм;

D=25,584 -0,028 мм;

Средний диаметр

D2+ EID2+T D2+ TPL/2=25,051+0,048+0,264+0,007=25,370 мм,

Предельное отклонение ±TPL/2=±0,007 мм;

D2=25,377-0,014

Предел износа

D2+ EID2+T D2+ TPL/2-WNG=25,051+0,048+0,264+0,007-0,019=25,351 мм;

Внутренний диаметр

D1+ EID1-Н/6=23,752+0,048-0,86=22,940

рис. 11Схема рабочего эскиза резьбового калибра-пробки М27-G6

4. Особенности контроля с помощью калибров и показатели качества