Материал: Гражданские здания и их конструкции

Внимание! Если размещение файла нарушает Ваши авторские права, то обязательно сообщите нам

В зданиях ячейкового типа обычно используют квадратную сетку опор с относительно небольшим продольным и поперечным шагом. В этих зданиях технологические линии размещают в двух взаимно перпендикулярных направлениях.

В зданиях пролетного типа, которые являются наиболее распространенными, ширина пролетов преобладает над шагом опор.

Здания зального типа характерны для производств, которые требуют значительных свободных площадей без внутренних опор.

Здания комбинированного типа представляют собой сочетание перечисленных выше типов.

По наличию подъемно-транспортного оборудования здания бывают крановые (с мостовым или подвесным транспортом) и бескрановые.

По материалу основных несущих конструкций здания можно разделить: с железобетонным каркасом (сборным, сборно-монолитным и монолитным); со стальным каркасом; с кирпичными стенами и покрытием по железобетонным, металлическим или деревянным конструкциям.

Кроме перечисленных факторов промышленные здания классифицируют и по другим признакам: системе отопления, вентиляции, освещения по профилю покрытия. Ниже рассмотрены особенности проектирования зданий с учетом этих признаков.

.2 Требования к промышленным зданиям

К промышленным зданиям предъявляют технологические, технические, архитектурно-художественные и экономические требования.

Технологические требования обусловливают полное соответствие здания своему назначению, т.е. здание должно обеспечивать нормальное функционирование размещаемого в нем технологического оборудования и нормальный ход технологического процесса в целом. С этой целью при проектировании здания составляют технологическую часть проекта и решают все вопросы, связанные с выбором способа производства, типов оборудования, его производительности и др. В эту часть проекта входит так называемая технологическая схема, которая определяет последовательность операций в технологическом процессе и, следовательно, последовательность расстановки оборудования и компоновки производственных помещений.

С учетом технологических требований выбирают вид и материал несущих и ограждающих конструкций, тип и грузоподъемность внутрицехового подъемно-транспортного оборудования, обеспечивают соответствующие санитарно-гигиенические условия работающим в цехе, качество и характер отделки.

Решая вопросы объемно-планировочного и конструктивного решения здания, необходимо учитывать перспективы развития используемого технологического процесса, который даст возможность изменять и совершенствовать производство без реконструкции самого здания.

К техническим требованиям относятся обеспечение необходимых прочности, стойкости и долговечности зданий, противопожарных мероприятий, а также сооружение зданий индустриальными методами. Перечисленные качества, которые обеспечиваются во время проектирования и сооружение здания, характеризуют его надежность. Под надежностью здания или его отдельных конструктивных элементов обычно понимают безотказную работу в заданных условиях и всего расчетного периода эксплуатации.

К техническим требованиям относят также требования по пожарной, взрывопожарной и взрывной опасности. Следует иметь в виду все более возрастающее значение этого фактора в связи с усложняющейся технологией производства, применением дорогостоящего оборудования.

Экономические требования выдвигают задачу оптимального, научно обоснованного расхода средств на строительство и эксплуатацию здания, которое проектируют. С этой целью обычно берут несколько вариантов объемно-планировочных и конструктивных решений и сравнивают их по основным технико-экономическим показателям.

3.3 Одноэтажные и многоэтажные промышленные здания. Унификация

Одноэтажные здания могут иметь в плане простые и сложные формы. В основном преобладает прямоугольная форма, а сложные формы характерны для производств со значительными тепло- и газовыбросами, если нужна организация притока и удаления воздуха.

В зависимости от характера технологического процесса одноэтажные здания по объемно-планировочному решению могут быть пролетного, зального, ячейкового и комбинированного типа.

Здания пролетного типа проектируют в тех случаях, если технологические процессы направлены вдоль пролета и обслуживаются кранами или без них.

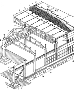
Основными конструктивными элементами современного одноэтажного пролетного промышленного здания являются (рис.3.3): колоны, которые передают нагрузки на фундаменты; конструкции покрытия, которые состоят из несущей (балки, фермы, арки) и ограждающей (плиты и элементы покрытия) части; подкрановые балки, которые устанавливают на консоли колонн; фонари, которые обеспечивают нужный уровень освещенности и воздухообмен в цехе; вертикальные ограждающие конструкции (стены, перегородки, конструкции остекления), причем конструкции стен опираются на специальные фундаментные и обвязочные балки; двери и ворота для движения людей и транспорта; окна, которые обеспечивают необходимый световой режим.

Одноэтажные промышленные здания проектируют чаще всего по каркасной системе, образованной стояками (колоннами), вмонтированными в фундамент, и ригелями (фермами или балками).

Специальные связи (горизонтальные и вертикальные) обеспечивают пространственную жесткость каркаса.

Габариты сборных элементов для промышленных зданий унифицированы, и соответственно унифицированы габариты конструктивных элементов на основе укрупненного модуля.

Пролет зданий (поперечное расстояние между колонами) принимают 12, 18, 24, 30 , 36 м и др.

Высота от пола до низа несущей конструкции покрытия устанавливают кратной модулю 0,6 м (от 3,6 до 6,0 м), укрупненному модулю 1,2 м (от 6,0 до 10,8 м) и модулю 1,8 м (от 10,8 до 18,0 м).

Здания зального типа применяют тогда, когда технологический процесс связан с выпуском крупногабаритной продукции или установкой большеразмерного оборудования (ангары, цеха сборки самолетов, главные корпусы мартеновских и конверторных цехов и др.). Пролеты зданий зального типа могут быть 100 м и более.

Развитие и внедрение средств автоматизации и механизации технологических процессов создает потребность передвижения транспортных средств в двух взаимно перпендикулярных направлениях. Необходимость частой модернизации технологического процесса легко осуществима в одноэтажных зданиях сплошной застройки с квадратной сеткой колонн. Такое объемно-планировочное решение получило название ячейкового, а здания - гибких, или универсальных.

В зданиях комбинированного типа сочетаются основные признаки зданий зального, пролетного или ячейкового типа.

Рис.3.3 - Конструктивное решение одноэтажного многопролетного промышленного здания: 1 - бетонный подлив для опоры фундаментных балок; 2 - подкрановая балка; 3 - колонна среднего ряда; 4 - подстропильная железобетонная ферма; 5 - железобетонная безраскосная ферма; 6 - железобетонная плита покрытия; 7 - пароизоляция; 8 - слой утеплителя; 9 - цементная стяжка; 10 - многослойный рубероидный ковер; 11 - конструкция остекления; 12 - стеновая панель; 13 - цокольная стеновая панель; 14 - колонна крайнего ряда; 15 - металлическая крестовая вертикальная связь между колоннами; 16 - железобетонная фундаментная балка; 17 - железобетонный фундамент под колонну

Многоэтажные промышленные здания применяют в легкой, пищевой, электротехнической и других видах промышленности.

По конструктивной схеме многоэтажные промышленные здания бывают с неполным каркасом и несущими внешними стенами или с полным каркасом (рис.3.4). Основными элементами каркаса являются колонны, ригели, плиты перекрытий и связи. Междуэтажные перекрытия выполняют из сборных железобетонных конструкций двух типов: балочные и безбалочные.

Рис.3.4 - Конструктивное решение многоэтажного здания: 1 - колонна; 2 - монтажный столик для опоры стеновых панелей; 3 - вертикальная металлическая портальная связь между колоннами; 4 - балка (ригель); 5 - плита перекрытия железобетонная ребристая; 6 - железобетонная подкрановая балка; 7 - железобетонная двухскатная балка покрытия; 8 - железобетонная плита покрытия; 9 - стеновая панель; 10 - конструкции оконного остекления; 11 - отмостка; 12 - фундаментная балка (ранд-балка); 13 - бетонный прилив для опирания фундаментных балок; 14 - песчаная подготовка.

Сборные каркасы могут быть решены по рамной, рамно-связевой или связевой системе. При рамной системе каркаса пространственная жесткость здания обеспечивается работой самого каркаса, рамы которого воспринимают как горизонтальные, так и вертикальные нагрузки. При рамно-связевой системе вертикальные нагрузки воспринимаются рамами каркаса, а горизонтальные - рамами и вертикальными связями (диафрагмами). В случае связевой системы вертикальные нагрузки воспринимаются колонами каркаса, а горизонтальные - вертикальными связями.

Сетку колонн многоэтажных зданий принимают 6х6 или 6х9 м, в последнее время разработаны проекты с сеткой 6х12, 6х18 и даже 6х24 м.

Высоты этажей многоэтажных производственных зданий унифицированные и могут быть 3,6; 4,8; 6,0 м, для первых этажей допускается высота 7,2 м (модуль 12 м).

Для вертикального транспорта в многоэтажных зданиях предусматривают грузовые и пассажирские лифты, которые вместе с лестницами объединяются в узлы.

При выборе конструктивных решений промышленных зданий необходимо иметь в виду экономическую значимость стоимости отдельных конструктивных элементов в общей сметной стоимости здания. Для многоэтажных зданий наибольшее влияние на стоимость оказывают стены, каркас, полы и проемы, в одноэтажных - каркас, конструкции кровли, полы и стены.

Список литературы

1.       Архитектура гражданских и промышленных зданий. Т.III. Жилые здания. - М.: Высш. шк., 1983. - 237 с.

2.      Архитектура гражданских и промышленных зданий. Т.I. Основы проектирования. - М.: Высш. шк., 1975.

.        Буга П.Г. Гражданские, промышленные и сельскохозяйственные здания. - М.: Высш.шк., 1983. - 404 с.

.        Благовещенский Ф.А., Букина Е.Ф. Архитектурные конструкции. - М.: Высш.шк., 1985. - 230 с.

.        Дехтяр С.Б. Архитектурные конструкции гражданских зданий. - К.: Будівельник, 1987.

.        Кузнецов Д.В., Армановский Л.И. Архитектурные конструкции гражданских зданий. Части зданий. Фундаменты. - К.: Будівельник, 1978.

.        Савченко И.П., Липявкин А.Ф., Сербинович П.П. Архитектура. - М.: Высш. шк., 1975.

.        Сербинович П.П. Гражданские здания массового строительства. - М.: Высш. шк., 1975.

.        Казбек-Казиев З.А.. Беспалов В.В., Дыховичный Ю.А. и др. Архитектурные конструкции. - М.: Высш.шк., 1989. - 342 с.

.        Миловидов Н.Е., Орловский Б.Я., Белкин А.Н. Гражданские здания. - М.: Высш. шк., 1987. - 352 с.

.        Дятков С.В. Архитектура промышленных зданий: Уч. пособие для вузов - М., 1984. - 415 с.

.        Ким Н.Н. Промышленная архитектура. - М.: Стройиздат, 1981. - 314 с.

.        Красенский В.Е., Федоровский А.Е. Гражданские, промышленные и сельскохозяйственные здания. - М.: Стройиздат, 1972. - 335 с.

.        Архитектура гражданских и промышленных зданий. Т.V. Промышленные здания. - М.: Стройиздат, 1986.

.        Шубин Л.Ф. Архитектура гражданских и промышленных зданий. Т.V. Промышленные здания. - М.: Стройиздат, 1986 с.

.        Орловский Б.Я. Архитектура гражданских и промышленных зданий: Промышленные здания. - М.: Высш. шк., 1991

.        Журнал "Красивые дома". - М.: Роспечать. - 2000-2002.

.        "Строительство. Реконструкция". Рус.-информ. - 2000-2003.

.        Журнал "Частная архитектура". - 2000-2002.

.        Журнал "Дом и сад". - 2000-2003.

.        Романенко И.И. Конспект лекций учебной дисциплины "Экономика и предпринимательство". - Харьков, 2002.

.        Будівництво та архітектура. - К., 2003.