Производственные здания должны иметь простую конфигурацию в плане, при этом целесообразно избегать пристроек к корпусу, которые в дальнейшем могут усложнить расширение и реконструкцию производства.
Современная практика показывает, что производства с однотипными, а иногда и различными технологическими процессами целесообразно блокировать в одном здании. Конечно, такое объединение не должно противоречить санитарно-гигиеническим требованиям, пожаро- и взрывобезопасности.
Современные методы типизации основаны на применении единой модульной системы и сквозной унификации всех строительных параметров зданий и сооружений.
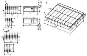
Разработки комплексных типовых проектов, типовых проектных решений, чертежей типовых конструкций и изделий, типовых монтажных и архитектурных деталей дают возможность при выполнении конкретных проектов ограничиваться составлением монтажных схем со ссылкой на соответствующие рабочие чертежи типовых конструкций, изделий и деталей. Для каждой области промышленности на этой основе определены оптимальные размеры блоков, из которых можно компоновать производственные здания нужных размеров. Так, для предприятий машиностроения рекомендованы такие типы УТС (рис.2.1):
· размерами в плане 144х72 и 72х72 м с сеткой колонн 24х12 и 18х12 м;
· высота пролетов бескрановых и с подвесным транспортом грузоподъемностью до 5 т включительно 6 и 7,2 м;
· высота пролетов с мостовыми кранами грузоподъемностью до 30 т включительно 10,8 и 12,6 м.
Приняты также дополнительные секции. На рис.2.2 приведен пример УТС. УТС многоэтажных зданий разработаны для зданий в 2, 3, 4, 5 этажей, следует принимать сетку колонн 6х6 и 6х9 м. Высота этажа может быть кратной 1,2 м, в зависимости от технологических условий и габаритов оборудования выбирают 3,6; 4,8; 6,0 м. В пределах одного здания допускается не более двух высот.
Одним из важных вопросов при проектировании производственных зданий является организация людских и грузовых потоков и эвакуация людей из здания.
Цех надо проектировать так, чтобы люди имели возможность перемещения по
кратчайшим, удобным и безопасным путям. Рабочие места должны иметь свободный
доступ. Не следует допускать пересечений в одной плоскости напряженных грузовых
и людских потоков. В местах неизбежных пересечений предусматривают туннели,
переходы и проходы. Для перехода рабочих на другую сторону конвейеров,
транспортеров, рольгангов и других движущихся устройств предусматривают
переходные мостики.
Рис.2.1 - Примеры габаритных схем унифицированных типовых секций (УТС) одноэтажных производственных зданий: а - при сетке колонн 24х12 м; б - то же, 18х12 м; в - варианты компоновки зданий из типовых секций блоков; 1 - основные секции;2 - доборные.
При проектировании и строительстве производственных зданий обязательно предусматривают пути вынужденной (аварийной) эвакуации людей из помещений. Время эвакуации определяется нормами и зависит от характера производства. Аварийная эвакуация людей из зданий обычно происходит в условиях высоких температур, задымления и загазованности. Для быстрой и безопасной эвакуации людей необходимы достаточное количество выходов, определенная протяженность и ширина путей эвакуации и эвакуационных выходов. При этом учитывают, что время эвакуации зависит от плотности потока, т.е. количества людей (или суммы площади их проекций, м2) на единицу площади (м2), а также длины пути эвакуации.
Пути эвакуации должны быть по возможности прямыми и без пересечения
другими потоками. Двери на путях эвакуации должны открываться по направлению
выхода из здания.

Обычно разрабатывают специальную схему эвакуации людей из здания, а всех работающих в здании люди предварительно оповещают о порядке эвакуации в случае возможных аварийных условиях.
Проектируя производственные здания, наряду с технологическими факторами надо учитывать ряд физико-технических вопросов, играющих при эксплуатации здания исключительно важную роль. К ним относятся вопросы: строительной теплотехники, вентиляции, в том числе аэрации; освещенности, борьбы против чрезмерной инсоляции; борьбы со снежными заносами; изоляции от агрессивных воздействий; борьбы с производственными шумами и вибрацией.
При чрезмерной инсоляции, когда прямые и отраженные солнечные лучи, попадая в глаза, мешают работе и бывают причиной травматизма, а также, нагревая облученные поверхности, вызывают перегрев помещений, ориентированных соответствующим образом, или здания в целом предусматривают устройство остекленных поверхностей или применяют конструктивные меры против инсоляции.
Важным вопросом является защита конструкций от агрессивных химических воздействий путем рационального выбора материалов, а также окраски специальными составами.
Шумы и вибрации, которые возникают от работы машин и транспорта, вредно отражаются на организме человека, снижают его трудоспособность и могут вызывать деформации в конструкциях здания. Основными мерами борьбы при этом являются:
· установка оборудования на самостоятельных, обособленных от конструкций здания опорах и фундаментах;
· устройство под машинами в толщи фундамента упругих прокладок и "экранов" из шпунтованных свай или траншей, засыпанных рыхлым материалом; надежная изоляция помещений с значительными сотрясениями и вибрациями от других помещений и их размещение на первых этажах или в крайних пролетах и др.
Как уже отмечалось, промышленные здания проектируют на основе УТС и УТП. Типовые проекты привязывают к конкретным условиям строительства.
Проектирование производственных зданий имеет две стадии: проектное задание и рабочие чертежи.
Привязку основных конструкций зданий к координационным осям делают с
соблюдением правил, изложенных дальше.
.3 Привязка конструктивных элементов к координационным осям
Привязка определяет расстояние от модульной, координационной оси до грани или геометрической оси сечения конструктивного элемента. Применяемые правила привязки дают возможность установить взаимозаменяемость конструкций и значительно сократить количество доборных элементов.
Ниже рассмотрены основные правила привязки конструктивных элементов к координационным осям.
В одноэтажных производственных зданиях колонны средних рядов располагают так, чтобы геометрические оси сечения колонн совпадали с продольными и поперечными модульными координационными осями (рис.2.3). Исключения допускаются относительно колонн возле температурных швов и перепадов высот.
При использовании в качестве несущих конструкций стропильных ферм и балок колонны крайних рядов и наружные стены привязывают к продольным координационным осям по таким правилам:
· внешнюю грань колонн совмещают с координационной осью (нулевая привязка), а внутреннюю плоскость стены смещают наружу на 30 мм (рис. 2.3,б) в зданиях следующих типов: в зданиях без мостовых кранов со сборным железобетонным каркасом при шаге крайних колонн 6 или 12 м, а также в зданиях со стальным или смешанным каркасом при шаге колонн крайних рядов 6 м; в зданиях с кранами грузоподъемностью до 20 т и со сборным железобетонным или смешанным каркасом при шаге крайних колонн 6 м и при высоте не более 14,4 м; в зданиях с ручными мостовыми кранами;
· внешнюю грань колонн смещают наружу с координационной оси на 250 мм, а между внутренней плоскостью стены и гранью колонн предусматривают зазор 30 мм (рис.2.3, в) в таких зданиях: без мостовых кранов со стальным или смешанным каркасом при шаге крайних колонн 12 м; с кранами при шаге колонн крайних рядов 12 м, в зданиях со стальным каркасом при шаге колонн 6 м, а также в зданиях с кранами грузоподъемностью свыше 20 т и сборным железобетонным или смешанным каркасом при шаге крайних колонн 6 м и высоте 12 м и более; при наличии проходов вдоль подкрановых путей.
Колонны и наружные стены из панелей привязывают к крайним поперечным координационным осям по линиям поперечных температурных швов с соблюдением таких требований:
1. В торцах зданий геометрические оси сечения колонн основного каркаса смещают внутрь на 500 мм с координационной оси, а внутренние поверхности стен - наружу на 30 мм с той же оси (рис.2.3, г);
2. По
линиям поперечных температурных швов геометрические оси сечения колонн смещают
по 500 мм в обе стороны от оси шва, совмещаемого с поперечной координационной
осью (рис.2.3,е).
Рис.2.3 - Привязка колонн и стен одноэтажных зданий к координационным
осям: а - привязка колонн к средним осям; б, в - то же, колонн и стен к крайним
продольным осям; г-е - то же, к поперечным осям в торцах зданий и местах
поперечных температурных швов; ж-и - привязка колонн в продольных температурных
швах зданий с пролетами одинаковой высоты; к-м - то же, при перепаде высот
параллельных пролетов; н-о - то же, при взаимно перпендикулярном примыкании
пролетов; п-т - привязка несущих стен к продольным координационным осям; 1 -
колонны повышенных пролетов; 2 - колонны пониженных пролетов, которые примыкают
торцами к повышенному поперечному пролету.
При устройстве продольных температурных швов или перепаде высот параллельных пролетов на парных колоннах следует предусматривать парные модульные координационные осы со вставкой между ними.
В зависимости от размера привязки колонн в каждом из смежных пролетов размеры вставок между парными координационными осями по линиям температурных швов в зданиях с пролетами одинаковой высоты и с покрытиями по стропильным балкам (фермам) принимают равными 500, 750, 1000 мм (рис.2.3, ж-и).
Размер вставки между продольными координационными осями по линии перепада высот параллельных пролетов в зданиях с покрытиями по стропильным балкам (фермам) должен быть кратным 50 мм (рис.2.3, к-м):
· привязки к координационным осям граней колонн, обращенных в сторону перепада;
· толщины стены из панелей и зазора 30 м между ее внутренней плоскостью и гранью колонн повышенного пролета;
· зазора не менее 50 мм между внешней плоскостью стены и гранью колон пониженного пролета.
При этом размер вставки должен быть не менее 300 мм. Размеры вставок в местах примыкания взаимно перпендикулярных пролетов (пониженных продольных к повышенному поперечному) составляют от 300 до 900 мм (рис.2.3, н, о).
Если есть продольный шов между пролетами, которые примыкают к перпендикулярного пролету, этот шов продлевают в перпендикулярный пролет, где он будет поперечным швом. При этом вставка между координационными осями в продольном и поперечном швах равна 500, 750 и 1000 мм, а каждую из парных колонн по линии поперечного шва нужно смещать с ближайшей оси на 500 мм.
Если на наружные стены опираются конструкции покрытия, то внутреннюю плоскость стены смещают внутрь от координационной оси на 150 (130) мм (рис.2.3, п).
Колонны к средним продольным и поперечным координационным осям многоэтажных зданий привязывают так, чтобы геометрические оси сечения колонн совпадали с координационными осями (рис.2.4,а), за исключением колонн по линиям температурных швов.
В случае привязки колонн и наружных стен из панелей к крайним продольным координационным осям зданий внешнюю грань колонн (в зависимости от конструкции каркаса) смещают наружу с координационной оси на 200 мм или совмещают с этой осью, а между внутренней плоскостью стены и гранями колонн предусматривают зазор 30 мм (рис.2.4, б,в).
По линии поперечных температурных швов зданий с перекрытиями из сборных
ребристых или гладких многопустотных плит предусматривают парные
координационные оси с вставкой между ними размером 1000 мм, а геометрические
оси парных колонн совмещают с координационными осями (рис.2.4 ,е).
Рис.2.4 - Привязка колонн и стен многоэтажных зданий к координационным
осям: а - привязка колонн к средним осям; б,в - привязка колонн и стен к
крайним продольным осям; г,д - то же, в торцах зданий; е,ж - привязка колонн по
линиям поперечных температурных швов.
В случае пристройки многоэтажных зданий к одноэтажным не допускается взаимно смешивать координационные оси, перпендикулярные к линии пристройки и общие для обеих частей сблокированного здания.
Размеры вставки между параллельными крайними координационными осями по
линии пристройки зданий назначают с учетом использования типовых стеновых
панелей - удлиненных рядовых или доборных.
Глава 3. Элементы и конструктивные схемы промышленных зданий
3.1 Классификация промышленных зданий
Промышленные предприятия разделяют на отрасли производства, которые являются составной частью народного хозяйства. Они состоят из промышленных зданий, которые предназначены дня осуществления производственно-технологических процессов, прямо или косвенно связанных с выпуском определенного вида продукции. Независимо от отрасли промышленности здания разделяют на четыре основные группы: производственные, энергетические, здания транспортно-складского хозяйства и вспомогательные здания или помещения. К производственным относятся здания, в которых осуществляется выпуск готовой продукции или полуфабрикатов. Они подразделяются на многие виды соответственно отраслям производства, среди которых механосборочные, термические, штамповочные, ткацкие, инструментальные, ремонтные и др.
К энергетическим принадлежат здания ТЭЦ (теплоэлектроцентралей), котельных, электрические и трансформаторные подстанции и др.
К зданиям транспортно-складского хозяйства относятся гаражи, склады готовой продукции, пожарные депо и др. К вспомогательным зданиям относятся административно-конторские, бытовые, пункты питания, медицинские пункты и др. Характер объемно-планировочного и конструктивного решения промышленных зданий зависит от их назначения и характера технологических процессов. Здания подразделяют на четыре класса, причем к І классу относят те, к которым выдвигаются повышенные требования, а к ІV классу - постройки с минимальными требованиями. Для каждого класса определены свои эксплуатационные свойства, а также долговечность и огнестойкость основных конструкций зданий.
Установлены три степени долговечности промышленных зданий: І степень - не менее 100 лет; ІІ - не менее 50 лет и ІІІ - не менее 20 лет.
По огнестойкости здания и сооружения подразделяют на пять степеней. Степень огнестойкости, характеризуемая группой возгораемости и пределом огнестойкости основных строительных конструкций, принимается: для зданий І класса - не ниже ІІ степени, для зданий ІІ класса - не ниже ІІІ степени. Для зданий ІІІ и ІV классов степень огнестойкости не нормируется.
По архитектурно-конструктивным признакам промышленные здания подразделяют на одноэтажные, многоэтажные и смешанной этажности.
Производства, в которых технологический процесс протекает по горизонтали и характеризующиеся тяжелым и громоздким оборудованием, крупногабаритными изделиями и значительными динамическими нагрузками, целесообразно размещать в одноэтажных зданиях.
В зависимости от количества пролетов одноэтажные здания могут быть одно-
и многопролетными (рис.3.1). Пролетом называется объем промышленного здания,
ограниченный по периметру рядами колонн и перекрытий по однопролетной схеме.
Расстояние между продольными рядами колонн называют шириной пролета.
Рис.3.1 - Основные типы одноэтажных промышленных зданий:
а - однопролетные бесфонарные; б - то же, с мостовым краном; в,г -
многопролетные с фонарями; д- общий вид здания
В многоэтажных зданиях размещают производства с вертикально направленными
технологическими процессами для предприятий легкой, пищевой, радиотехнической и
аналогичных видов промышленности. Их, как правило, сооружают многопролетными
(рис.3.2). На первых этажах размещают производства, имеющие более тяжелое
оборудование, выделяющие агрессивные сточные воды, в верхних - производства,
которые выделяют газовые вредности, пожароопасные и др.
Рис.3.2 - Основные типы многоэтажных промышленных зданий:
а-в - схемы поперечных разрезов; г - общий вид здания.
По расположению внутренних опор промышленные здания разделяют на ячейковые, пролетные, зальные и комбинированные