Материал: Електричне обладнання офісу

Внимание! Если размещение файла нарушает Ваши авторские права, то обязательно сообщите нам

Електричне обладнання офісу

Міністерство освіти і науки України

Полтавський національний технічний університет імені Юрія Кондратюка

Кафедра комп’ютерної інженерії








Розрахунково-графічна робота

з навчальної дисципліни:

"Електроживлення систем зв’язку"



Виконав: студент 402-ТТ групи

Казидуб О.О.

Перевірив: к. т. н., доцент

Смоляр В.Г.



Полтава 2013

Зміст

Завдання на розрахунково-графічну роботу

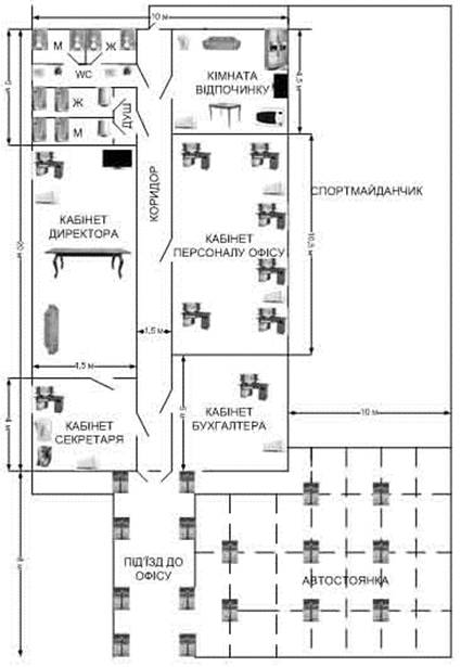
1. Схема облаштування офісу

2. Підрахунок необхідного електричного обладнання для офісу

3. Система блискавкозахисту

4. Заземлення

5. Підрахунок кількості світильників для приміщень офісу

6. Розрахунок вартості середньомісячного споживання електроенергіїї для трьох типів ламп

Висновок

Завдання на розрахунково-графічну роботу

Маємо офіс площею S=200 м2. Він містить в своєму складі:

кабінет директора (S=49,5 м2). В ньому знаходиться 1 телевізор, комп’ютер та кондиціонер;

кабінет бухгалтера (S=20 м2). В ньому знаходиться 1 комп’ютер, принтер та кондиціонер;

кабінет персоналу офісу (S=42 м2). В ньому знаходиться 6 комп’ютерів, 3 принтери та 2 кондиціонера;

кабінет секретаря (S=18 м2). В ньому знаходиться комп’ютер, принтер, електрочайник, кавоварка та кондиціонер;

кімната відпочинку (S=18 м2). В ньому знаходиться телевізор, холодильник, мікрохвильова піч, електрочайник та кондиціонер;

душ (S=11,25 м2). В ньому знаходиться 2 бойлера;

WC (S=11,25 м2);

коридор (S=30 м2).

Висота будинку - 7 м.

Висота стелі - 3 м.

Робочий день триває 8 годин - з 9.00 до 17.00. Сб, Нд - вихідний.

Потрібно забезпечити офіс електрикою, обладнати заземлення (4 Ом), освітлення приміщень.

Забезпечити зовнішнє освітлення офісу вночі. Вечірнє освітлення автостоянки (4 години), під’їзд до офісу (8 годин).

Розрахувати освітлення для різних типів ламп (накалювання, газорозрядні, світло-діодні), за умови, що використовуються стельові світильники.

Порахувати середньомісячне споживання електроенергії для трьох типів ламп та вартість електроенергії.

1. Схема облаштування офісу


2. Підрахунок необхідного електричного обладнання для офісу


Підрахунок обладнання проводитимемо по кабінетам офісу окремо.

Кабінет директора: повинен бути обладнаний 5 розетками, 2 вимикачами.

Кабінет бухгалтера: повинен мати 4 розетки, 1 вимикач.

Кабінет персоналу офісу: повинен мати 20 розеток, 2 вимикача.

Кабінет секретаря: повинен мати 7 розеток, 1 вимикач.

Кімната відпочинку: містить 6 розеток, 1 вимикач.

Душ: має 2 розетки, 2 вимикач.

WC: має 2 розетки та 2 вимикача.

Коридор: має 3 вимикача.

3. Система блискавкозахисту


 

електричне обладнання офіс лампа


4. Заземлення



5. Підрахунок кількості світильників для приміщень офісу


1). Почнемо обрахунок кількості світильників для приміщень офісу при використанні ламп накалювання.

Кабінет директора:

Маємо кабінет (офіс) з білим потолком, сірими стінами і сірою підлогою. Вихідні дані: а=11 м, b=4,5 м, h=3 м. Використовуємо світильник R-80 NEODYMIUM 60 W E27, лампа накалювання 60 Вт, в одному світильнику 2 лампи, Ф=1560 Лм. Норма освітленості Е=300 Лк на рівні 0,8 м від підлоги. Коефіцієнт запаса КЗ=1,4. Коефіцієнт відбиття потолка - 0,7, стін - 0,5, підлоги - 0,3. Коефіцієнт використання - 65.


Кількість світильників (при використанні ламп накалювання) для даного приміщення - 12 шт.

Кабінет бухгалтера:

Маємо кабінет (офіс) з білим потолком, сірими стінами і сірою підлогою. Вихідні дані: а=5 м, b=4 м, h=3 м. Використовуємо світильник R-80 NEODYMIUM 60 W E27, лампа накалювання 60 Вт, в одному світильнику 2 лампи, Ф=1560 Лм. Норма освітленості Е=300 Лк на рівні 0,8 м від підлоги. Коефіцієнт запаса КЗ=1,4. Коефіцієнт відбиття потолка - 0,7, стін - 0,3, підлоги - 0,3. Коефіцієнт використання - 38.


Кількість світильників (при використанні ламп накалювання) для даного приміщення - 8 шт.

Кабінет персоналу офісу:

Маємо кабінет (офіс) з білим потолком, сірими стінами і сірою підлогою. Вихідні дані: а=10,5 м, b=4 м, h=3 м. Використовуємо світильник R-80 NEODYMIUM 60 W E27, лампа накалювання 60 Вт, в одному світильнику 2 лампи, Ф=1560 Лм. Норма освітленості Е=400 Лк на рівні 0,8 м від підлоги. Коефіцієнт запаса КЗ=1,4. Коефіцієнт відбиття потолка - 0,7, стін - 0,3, підлоги - 0,3. Коефіцієнт використання - 44.

 

Кількість світильників (при використанні ламп накалювання) для даного приміщення - 20 шт.

Кабінет секретаря: маємо кабінет (офіс) з білим потолком, сірими стінами і сірою підлогою. Вихідні дані: а=4,5 м, b=4 м, h=3 м. Використовуємо світильник R-80 NEODYMIUM 60 W E27, лампа накалювання 60 Вт, в одному світильнику 2 лампи, Ф=1560 Лм. Норма освітленості Е=300 Лк на рівні 0,8 м від підлоги. Коефіцієнт запаса КЗ=1,4. Коефіцієнт відбиття потолка - 0,7, стін - 0,3, підлоги - 0,3. Коефіцієнт використання - 38.


Кількість світильників (при використанні ламп накалювання) для даного приміщення - 7 шт.

Маємо приміщення з білим потолком, сірими стінами і сірою підлогою. Вихідні дані: а=4,5 м, b=4 м, h=3 м. Використовуємо світильник R-80 NEODYMIUM 60 W E27, лампа накалювання 60 Вт, в одному світильнику 2 лампи, Ф=1560 Лм. Норма освітленості Е=150 Лк на рівні 0,8 м від підлоги. Коефіцієнт запаса КЗ=1,4. Коефіцієнт відбиття потолка - 0,7, стін - 0,3, підлоги - 0,3. Коефіцієнт використання - 38.

 

Кількість світильників (при використанні ламп накалювання) для даного приміщення - 4 шт.

Душ:

Маємо приміщення з білим потолком, сірими стінами і сірою підлогою. Вихідні дані: а=4,5 м, b=2,5 м, h=3 м. Використовуємо світильник R-80 NEODYMIUM 60 W E27, лампа накалювання 60 Вт, в одному світильнику 2 лампи, Ф=1560 Лм. Норма освітленості Е=75 Лк на рівні 0,8 м від підлоги. Коефіцієнт запаса КЗ=1,5. Коефіцієнт відбиття потолка - 0,7, стін - 0,3, підлоги - 0,3. Коефіцієнт використання - 32.

 

Кількість світильників (при використанні ламп накалювання) для даного приміщення - 1 шт.

WC:

Маємо приміщення з білим потолком, сірими стінами і сірою підлогою. Вихідні дані: а=4,5 м, b=2,5 м, h=3 м. Використовуємо світильник R-80 NEODYMIUM 60 W E27, лампа накалювання 60 Вт, в одному світильнику 2 лампи, Ф=1560 Лм. Норма освітленості Е=75 Лк на рівні 0,8 м від підлоги. Коефіцієнт запаса КЗ=1,5. Коефіцієнт відбиття потолка - 0,7, стін - 0,3, підлоги - 0,3. Коефіцієнт використання - 32.

 

Кількість світильників (при використанні ламп накалювання) для даного приміщення - 1 шт.

Коридор:

Маємо приміщення з білим потолком, сірими стінами і сірою підлогою. Вихідні дані: а=1,5 м, b=20 м, h=3 м. Використовуємо світильник R-80 NEODYMIUM 60 W E27, лампа накалювання 60 Вт, в одному світильнику 2 лампи, Ф=1560 Лм. Норма освітленості Е=75 Лк на рівні 0,8 м від підлоги. Коефіцієнт запаса КЗ=1,4. Коефіцієнт відбиття потолка - 0,7, стін - 0,3, підлоги - 0,3. Коефіцієнт використання - 25.

 

Кількість світильників (при використанні ламп накалювання) для даного приміщення - 5 шт.

Автостоянка:

Маємо автостоянку. Вихідні дані: а=11 м, b=7,5 м. Використовуємо вуличний світильник ODEON LIGHT 2322/1F, лампа накалювання 60 Вт, в одному світильнику 1 лампа, Ф=630 Лм. Норма освітленості Е=50 Лк. Коефіцієнт запаса КЗ=1,5. Коефіцієнт використання - 52.

 

Кількість світильників (при використанні ламп накалювання) - 22 шт.

Під’їзд до офісу:

Маємо подвір’я. Вихідні дані: а=8 м, b=4 м. Використовуємо вуличний світильник ODEON LIGHT 2322/1F, лампа накалювання 60 Вт, в одному світильнику 1 лампа, Ф=630 Лм. Норма освітленості Е=50 Лк. Коефіцієнт запаса КЗ=1,5. Коефіцієнт використання - 52.


Кількість світильників (при використанні ламп накалювання) - 8 шт.

2). Проведемо обрахунок кількості світильників для приміщень офісу при використанні газорозрядних ламп.

Кабінет директора:

Маємо кабінет (офіс) з білим потолком, сірими стінами і сірою підлогою. Вихідні дані: а=11 м, b=4,5 м, h=3 м. Використовуємо світильник Philips газоразряд. с прозор. колбой MASTER HPI-T Plus 250W/645 E40, лампа газорозрядна 250 Вт, в одному світильнику 1 лампа, Ф=9200 Лм. Норма освітленості Е=300 Лк на рівні 0,8 м від підлоги. Коефіцієнт запаса КЗ=1,4. Коефіцієнт відбиття потолка - 0,7, стін - 0,5, підлоги - 0,3. Коефіцієнт використання - 65.

Кількість світильників (при використанні газорозрядних ламп) для даного приміщення - 4 шт.

Кабінет бухгалтера:

Маємо кабінет (офіс) з білим потолком, сірими стінами і сірою підлогою. Вихідні дані: а=5 м, b=4 м, h=3 м. Використовуємо світильник Philips газоразряд. с прозор. колбой MASTER HPI-T Plus 250W/645 E40, лампа газорозрядна 250 Вт, в одному світильнику 1 лампа, Ф=9200 Лм. Норма освітленості Е=300 Лк на рівні 0,8 м від підлоги. Коефіцієнт запаса КЗ=1,4. Коефіцієнт відбиття потолка - 0,7, стін - 0,3, підлоги - 0,3. Коефіцієнт використання - 38.

Кількість світильників (при використанні газорозрядних ламп) для даного приміщення - 3 шт.

Кабінет персоналу офісу:

Маємо кабінет (офіс) з білим потолком, сірими стінами і сірою підлогою. Вихідні дані: а=10,5 м, b=4 м, h=3 м. Використовуємо світильник Philips газоразряд. с прозор. колбой MASTER HPI-T Plus 250W/645 E40, лампа газорозрядна 250 Вт, в одному світильнику 1 лампа, Ф=9200 Лм. Норма освітленості Е=400 Лк на рівні 0,8 м від підлоги. Коефіцієнт запаса КЗ=1,4. Коефіцієнт відбиття потолка - 0,7, стін - 0,3, підлоги - 0,3. Коефіцієнт використання - 38.

Кількість світильників (при використанні газорозрядних ламп) для даного приміщення - 8 шт.

Кабінет секретаря:

Маємо кабінет (офіс) з білим потолком, сірими стінами і сірою підлогою. Вихідні дані: а=4,5 м, b=4 м, h=3 м. Використовуємо світильник Philips газоразряд. с прозор. колбой MASTER HPI-T Plus 250W/645 E40, лампа газорозрядна 250 Вт, в одному світильнику 1 лампа, Ф=9200 Лм. Норма освітленості Е=300 Лк на рівні 0,8 м від підлоги. Коефіцієнт запаса КЗ=1,4. Коефіцієнт відбиття потолка - 0,7, стін - 0,3, підлоги - 0,3. Коефіцієнт використання - 38.

Кількість світильників (при використанні газорозрядних ламп) для даного приміщення - 2 шт.

Кімната відпочинку:

Маємо приміщення з білим потолком, сірими стінами і сірою підлогою. Вихідні дані: а=4,5 м, b=4 м, h=3 м. Використовуємо світильник Philips газоразряд. с прозор. колбой MASTER HPI-T Plus 250W/645 E40, лампа газорозрядна 250 Вт, в одному світильнику 1 лампа, Ф=9200 Лм. Норма освітленості Е=150 Лк на рівні 0,8 м від підлоги. Коефіцієнт запаса КЗ=1,4. Коефіцієнт відбиття потолка - 0,7, стін - 0,3, підлоги - 0,3. Коефіцієнт використання - 38.

Кількість світильників (при використанні газорозрядних ламп) для даного приміщення - 1 шт.

Душ:

Маємо приміщення з білим потолком, сірими стінами і сірою підлогою. Вихідні дані: а=4,5 м, b=2,5 м, h=3 м. Використовуємо світильник Philips газоразряд. с прозор. колбой MASTER HPI-T Plus 250W/645 E40, лампа газорозрядна 250 Вт, в одному світильнику 1 лампа, Ф=9200 Лм. Норма освітленості Е=75 Лк на рівні 0,8 м від підлоги. Коефіцієнт запаса КЗ=1,5. Коефіцієнт відбиття потолка - 0,7, стін - 0,3, підлоги - 0,3. Коефіцієнт використання - 32.

Кількість світильників (при використанні газорозрядних ламп) для даного приміщення - 1 шт.

WC:

Маємо приміщення з білим потолком, сірими стінами і сірою підлогою. Вихідні дані: а=4,5 м, b=2,5 м, h=3 м. Використовуємо світильник Philips газоразряд. с прозор. колбой MASTER HPI-T Plus 250W/645 E40, лампа газорозрядна 250 Вт, в одному світильнику 1 лампа, Ф=9200 Лм. Норма освітленості Е=75 Лк на рівні 0,8 м від підлоги. Коефіцієнт запаса КЗ=1,5. Коефіцієнт відбиття потолка - 0,7, стін - 0,3, підлоги - 0,3. Коефіцієнт використання - 32.

Кількість світильників (при використанні газорозрядних ламп) для даного приміщення - 1 шт.

Коридор:

Маємо приміщення з білим потолком, сірими стінами і сірою підлогою. Вихідні дані: а=1,5 м, b=20 м, h=3 м. Використовуємо світильник Philips газоразряд. с прозор. колбой MASTER HPI-T Plus 250W/645 E40, лампа газорозрядна 250 Вт, в одному світильнику 1 лампа, Ф=9200 Лм. Норма освітленості Е=75 Лк на рівні 0,8 м від підлоги. Коефіцієнт запаса КЗ=1,4. Коефіцієнт відбиття потолка - 0,7, стін - 0,3, підлоги - 0,3. Коефіцієнт використання - 25.

Кількість світильників (при використанні газорозрядних ламп) для даного приміщення - 1 шт.

Автостоянка:

Маємо автостоянку. Вихідні дані: а=11 м, b=7,5 м. Використовуємо вуличний світильник ArcoLux CLASSIC II, лампа газорозрядна 250 Вт, в одному світильнику 1 лампа, Ф=25000 Лм. Норма освітленості Е=50 Лк. Коефіцієнт запаса КЗ=1,5. Коефіцієнт використання - 52.

Кількість світильників (при використанні газорозрядних ламп) - 1 шт.

Під’їзд до офісу:

Маємо подвір’я. Вихідні дані: а=8 м, b=4 м. Використовуємо вуличний світильник ArcoLux CLASSIC II, лампа газорозрядна 250 Вт, в одному світильнику 1 лампа, Ф=25000 Лм. Норма освітленості Е=50 Лк. Коефіцієнт запаса КЗ=1,5. Коефіцієнт використання - 52.

Кількість світильників (при використанні газорозрядних ламп) - 1 шт.

3) Проведемо обрахунок кількості світильників для приміщень офісу при використанні світло-діодних ламп.

Кабінет директора:

Маємо кабінет (офіс) з білим потолком, сірими стінами і сірою підлогою. Вихідні дані: а=11 м, b=4,5 м, h=3 м. Використовуємо світильник Байкал LED 600 Тендер, світло-діодна лампа 32 Вт, в одному світильнику 2 лампи, Ф=3050 Лм. Норма освітленості Е=300 Лк на рівні 0,8 м від підлоги. Коефіцієнт запаса КЗ=1,4. Коефіцієнт відбиття потолка - 0,7, стін - 0,5, підлоги - 0,3. Коефіцієнт використання - 65.

Кількість світильників (при використанні світло-діодних ламп) для даного приміщення - 6 шт.

Кабінет бухгалтера:

Маємо кабінет (офіс) з білим потолком, сірими стінами і сірою підлогою. Вихідні дані: а=5 м, b=4 м, h=3 м. Використовуємо світильник Байкал LED 600 Тендер, світло-діодна лампа 32 Вт, в одному світильнику 2 лампи, Ф=3050 Лм. Норма освітленості Е=300 Лк на рівні 0,8 м від підлоги. Коефіцієнт запаса КЗ=1,4. Коефіцієнт відбиття потолка - 0,7, стін - 0,3, підлоги - 0,3. Коефіцієнт використання - 38.

Кількість світильників (при використанні світло-діодних ламп) для даного приміщення - 4 шт.

Кабінет персоналу офісу: