Материал: Деятельность коммерческого банка на примере Филиала № 8290 Орского отделения Сбербанка

Внимание! Если размещение файла нарушает Ваши авторские права, то обязательно сообщите нам

-       производство предложений точно по определению приоритетных направлений развития, текущее и стратегическое снижение,

-       бюджетирование, дирижирование рисками, активами и пассивами банка;

-       изучение экономики и финансового рынка страны;

-       обеспечение системы Сбербанка России информацией о деятельности его учреждений;

-       администрация кредитными ресурсами и внутрисистемными финансовыми потоками.

С целью расширения возможностей клиентов в 2013 году продолжено проведение мероприятий по расширению перечня продуктов и услуг, предоставляемых подразделениями банка. В результате, изменилась доля численности персонала, обслуживающего различные подразделения банка.

Рисунок 3.1 - Доли персонала, обслуживающего структурные подразделения в общей численности специалистов банка

Из рисунка 3.1 видно, что наибольший процент работников банка обслуживает операционные структурные подразделения, включая дополнительные офисы. На втором месте по количеству персонала стоят подразделения кредитования, где занято 24,3 % всех специалистов.

Таблица 3.1 - Изменение численности работников банка в 2009-2013гг.

Показатель

Год


2009г.

2010

2011

2012

2013(на 01.05.13)

235116

243 620

251 208

260 000

258050

Изменение среднесписочной численности работников имеет тенденцию к сокращению. С 2009г. по 2012г. количество работников банка увеличилось на 16380 человек, а в 2013 г. сократилось по сравнению с предыдущим годом на 1950 человек.

Таблица 3.2 - Изменение структуры персонала банка в 2009-2013 гг., %

Категория работников

Год


2009

2010

2011

2012

2013

Управленческий персонал

30,9

31,2

31

31,1

30

Специалисты

45,9

46,3

47,5

47,2

47,1

Обслуживающий персонал

23,2

22,5

21,5

21,7

22,9


Из таблицы видно, что наибольшую долю в общей численности работников банка занимают специалисты. Их удельный вес с 2009 г. по 2011 г. вырос на 1,6%. В 2011-начале 2013 г. наблюдается сокращение доли специалистов на 0,4%.

Руководством ОАО «Сбербанк» планируется продолжить сокращение численности работников и в последующих годах. При этом общее число уволенных к 2014 году составит 210000 человек. Снижение числа работников будет составлять от 3-5% ежегодно. Процесс оптимизации численности будет проходить поэтапно, в первую очередь «за счет вакансий, оптимизации распределения персонала и незамещения естественного выбытия».

Сокращения численности персонала затронут и центральный аппарат. Здесь планируются сокращения более чем на 10%.

ОАО «Сбербанк» действует согласно своей стратегии развития, а именно, сокращает численность работников, совершенствует профессиональные навыки персонала, объединяет имеющиеся структурные подразделения с одновременным увеличением количества производимых в них операций.

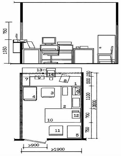
Для того, чтобы наглядно показать стиль работы служащих Сбербанка, обратимся к рисунку 3.2, на котором представлено типичное рабочее место кассира-операциониста ОАО «Сбербанк».

Рисунок 3.2 Схема операционной кассы СБ РФ: 1 - рабочий стол; 2 - компьютерный стол; 3 - стул подъемно-поворотный; 4 - передвижной сейф / закрытая тележка для транспортировки денег; 5 - сейф; 6 - компьютер; 7 - сортировка; 8 - машина для счёта банкнот; 9 - прибор для контроля банкнот; 10 - стол подсобный; 11 - стул; 12- факс; 13 - переговорное устройство; 14 - передаточный лоток в пулезащитном исполнении

Как можно судить по данной схеме, в операционных кассах ОАО «Сбербанк» всё расположено, исходя из принципа простоты и скорости обслуживания. Близкое расположение необходимого для нормального функционирования кассы оборудования повышает эффективность работы кассира-операциониста за счёт увеличения скорости обслуживания клиентов посредством уменьшения времени, нужного для совершения операций.

Заключение

В данном отчете была рассмотрена деятельность коммерческого банка на примере Филиала №8290 Орского отделения Сбербанка.

В отчете была рассмотрена характеристика Филиала №8290 Орского отделения Сбербанка и основных направлений его деятельности, произведен анализ его деятельности и финансового состояния.

В ходе анализа финансовой отчетности было выявлено, что все нормативы: нормативы ликвидности и нормативы риска строго соблюдаются, что свидетельствует о стабильном финансовом состоянии филиала, его надежности.

Основные операции, проводимые в Банке: предоставление кредитов, валютные операции и расчетно - кассовое обслуживание.

Деятельность филиала постоянно совершенствуется вместе со Сбербанком России.

Основой развития Банка является улучшение взаимоотношений с клиентами, сохранение лидирующего положения Банка на данном сегменте финансового рынка в условиях нарастания конкуренции.

Для достижения своих целей Банк ставит следующие задачи:

увеличение предоставляемых услуг;

улучшение качества предоставляемых услуг;

проведение гибкой тарифной политики;

снижение трудоемкости операций для клиента и Банка;

увеличение скорости прохождения платежей, как в рублях, так и в иностранной валюте за счет совершенствования внутренних технологий Банка.

Для достижения поставленных целей следует также повысить гибкость управления Банком, обеспечить быстроту реакции на меняющиеся рыночные условия, опережающими темпами развивать современные информационные технологии, развивать маркетинговую деятельность, рекламу. Достижение поставленных целей невозможно без качественного повышения квалификации и профессионализма персонала, совершенствования системы мотивации и стимулирования кадров.

Именно на практике в Сбербанке мне удалось сопоставить теоретические основы менеджмента с практической деятельностью.