Узел
18
От шкива 1 через эвольвентные шлицы вращение передается на муфту 4 и шестерню 7.
Соединение 4 и 7 выполнено неподвижно.


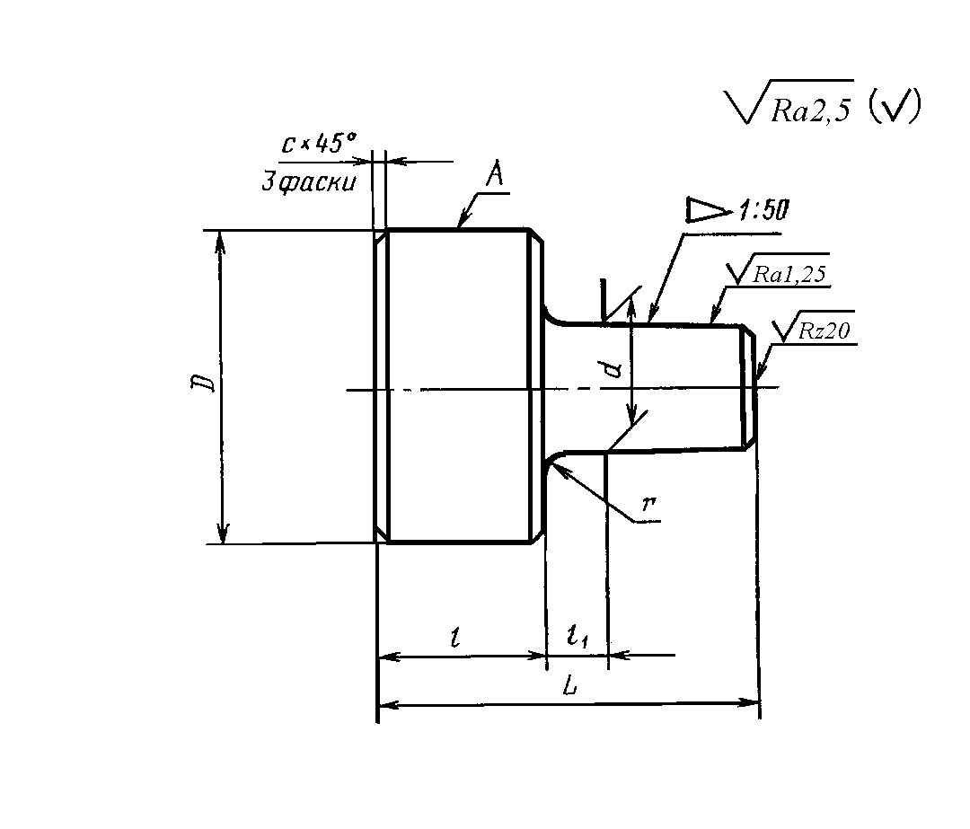
Рассчитывается и производится выбор посадки с натягом в соединении колеса 4 и муфты 7 при воздействии крутящего момента Мкр = 38Нм при следующих данных: внутренний диаметр пустотелого вала d1 = 45 мм; наружный диаметр охватывающей детали d2 = 60 мм; номинальный диаметр соединения d = 55 мм; длина соединения
l = 20мм.
Материал колеса сталь 20, полумуфты – сталь 40Х, коэффициент трения f=0,15.
Наименьший расчётный натяг:
где l - длина соединения, мм;
f - коэффициент трения;
d - номинальный диаметр соединения, мм;
Мкр - крутящий момент, Нм;
E1, E2 - модули упругости материала соединяемых деталей, МПа;
для стали 20 Е1 ≈ 2*105 МПа; стали 40Х E2 =2.1*105 МПа;
С1, С2 – коэффициенты, определяемые по формулам:
и,
,
где
μ- коэффициент Пуассона.
Коэффициент Пуассона для сталей
.



В натяг должна быть внесена поправка, тогда натяг будет:
Nmin = Nmin расч + γш + γt + γц + γп , где
γш - учитывает смятие неровностей контактных поверхностей соединяемых деталей, мкм;
γt - учитывает различие рабочей температуры и температуры сборки, различие коэффициентов линейного расширения материала деталей, мкм;
γц - учитывает деформации деталей от действия центробежных сил, мкм;
γп - учитывает увеличение контактного давления у торцов охватывающей детали, мкм;
γш можно рассчитать по формуле:
γш =1,2*(RzD + Rzd) = (RaD + Rad)
Шероховатости поверхностей деталей выбираем по таблице 2.66 т.1:
для вала Ra1 = 0,8 мкм, для охватывающей детали Ra2 = 1,6 мкм, т.к. поверхности деталей обработаны круглым шлифованием.
γш = (0.8 + 1.6) * 1,2 = 2,88;
γt температурная поправка будет равной 0, так как обе сопрягаемые детали изготовлены из стали.
Поправка γц для стальных деталей диаметром до 500 мм, вращающихся со скоростью до 47 м/с, составляет 2 мкм, т.е. γц = 2 мкм.
Вибраций и ударов в соединении нет, поэтому γп = 0.
Наименьший функциональный натяг, при котором обеспечивается прочность соединения.
Nmin = Nmin расч + γш + γt + γц + γп
Nmin = 12 + 2.88 + 0 + 2 + 0 = 16,88 мкм
На
основе теории наибольших касательных
напряжений определятся максимальное
допустимое удельное давление
Pmax,
при котором отсутствует пластическая
деформация на контактных поверхностях
деталей.
В качестве [Pmax] берется наименьшее из двух значений (МПа):
P1 = 0.58*σт1 [1 - (d1/dнс)2];
P2 = 0.58*σт2 [1 - (dнс/d2)2];
где σт2, σт1 предел текучести материалов Ст20 и Ст40Х соответственно.
P1 = 0.58 * 260 * [1 - (45/55)2] = 49,85 Н;
P2 = 0.58 * 300 * [1 - (55/60)2] = 27,79 Н.
Примем [Pmax] равным 27,79 Н.
Определяется величина наибольшего расчетного натяга N’max

Определяется с учетом поправок к N’max величина максимального допустимого натяга.
[Nmax] = N’max * γуд + γш - γt,
где γуд – коэффициент увеличения давления у торцов охватывающей детали, который определяется по рисунку 1.68 (Т1 [7]) в зависимости от отношений:
l/d
= 20/55 = 0.36;
d1/d = 45/55 = 0.8.
Здесь примем его равным 0,7 по рис.1,68 (с.336 Т1).
Поправку γt примем равной 0.
[Nmax]= 122 * 0,7 + 2,88 – 0 = 88,28 мкм.
Из таблиц 1.49 Т1 выбираем посадку с натягом
.
Видно, что условия подбора посадки выполняются:
(Nmax = 72) ≤ ( [Nmax] = 88,28);
(Nmin = 23) > ( [Nmin] = 16,88).

Рисунок 1. Схема полей допусков посадки
с натягом Ǿ 55
Подшипник качения 6-312 посажен на вращающийся вал. Подшипник 6-312 является шариковым радиальным однорядным подшипником класса точности 6 легкой серии.
По ГОСТ 8338-75, выбирают конструктивные размеры заданного подшипника (D, d, В, r) геометрические размеры:
d = 60 мм,
D = 130 мм,
B = 31 мм,
r = 3,5 мм.

b = B – 2 * r = 31 – 2 * 3,5 = 0,024 мм;
B - ширина кольца подшипника, мм
r - радиус фаски кольца, мм
Подшипник посажен в разъемный корпус и на вращающийся вал.
Нагружение наружного кольца - местное, внутреннего – циркуляционное. Нагрузка с ударами и вибрацией, перегрузка до 300%.
По таблице 1.37 [6] Т1:
Ǿ 130 Js7
ES = 0,020 мм
EI = -0,020 мм
TA = ES – EI = 0,020 – (-0,020) = 0,040 мм;
При циркуляционном нагружении колец подшипников посадки выбирают по величине PFr - интенсивности радиальной нагрузки на посадочной поверхности.
,
где
- радиальная нагрузка на опору, Н;
- ширина подшипника, мм;
- радиус скругления кромки внутреннего
кольца, мм;
- динамический коэффициент посадки,
зависящий от характера нагрузки;
- коэффициент, учитывающий степень
ослабления посадочного натяга;
- коэффициент неравномерности распределения
радиальной нагрузки
.

- при перегрузке до 300%, сильных ударах
и вибрации ([5], стр.238)
- при сплошном вале ([5], стр.238)
,
где Mкр – крутящий момент, Нм;
d – диаметр вала, м.


По таблице 9.3 [5] на вал выбирается посадка L6/js6, т.к. радиальная нагрузка входит в диапазон до 300кН.
По таблице 1.29 [6] Т1:
Ǿ 60js6
es = 0,0095 мм
ei = -0,0095 мм
TB = es – ei = 0,0095 + 0,0095 = 0,019 мм;
По ГОСТ 520-89 определим допуски и отклонения:
Для диаметра dm = 60 мм класса точности 6
по таблице 4.82 [5] Т2:
ES = 0;
EI = -0,012 мм;
Tdm = ES – EI = 0 – (-0,012) = 0,012 мм.
Для диаметра Dm = 130 мм класса точности 6
по таблице 4.83 [5] Т2:
es = 0;
ei = -0,015 мм;
TDm = es – ei = 0 – (- 0,015) = 0,015 мм.
Соединение
внутреннего кольца с валом:
максимальный натяг Nmax = es – EI = 0,0095 – (-0.012) = 0.0215 мм
минимальный натяг Nmin = ES – ei = 0,000 – (-0.0095) = 0,0095 мм
Соединение наружного кольца с корпусом:
максимальный зазор Smax = ES – ei = 0,020 – (-0,015) = 0,035 мм
максимальный натяг Nmax = es – EI = 0 – (-0,020) = 0,020 мм

Рисунок 2. Схема полей допусков соединения подшипник-вал, подшипник-втулка
3. Расчёт калибра для детали поз. 7 соединения 4-7
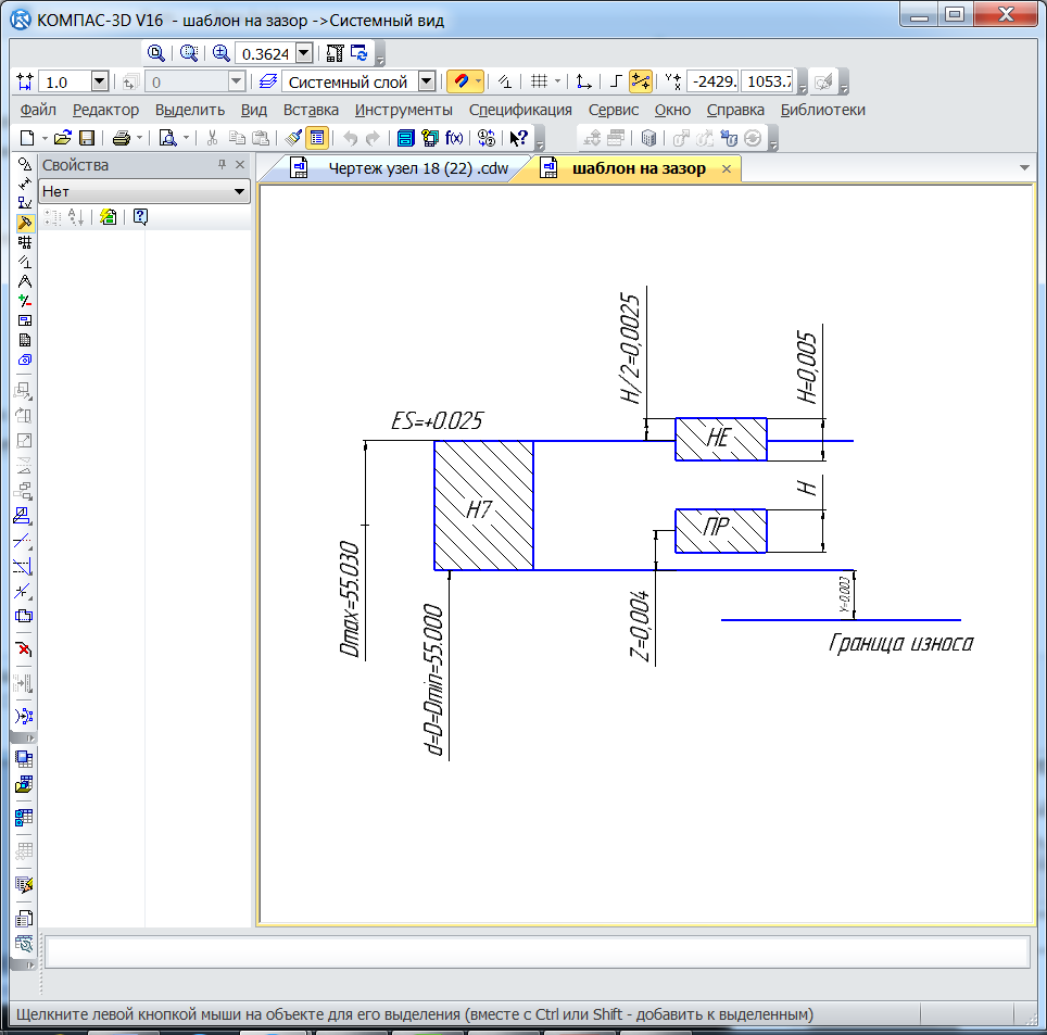
Контролируемый размер Ǿ 55 по ГОСТ 25347-82 (табл.1.9, т1, [3)] находим предельные отклонения изделия: es = +0,030 мкм, ei = 0 мкм. Наибольший и наименьший предельные размеры вала: dmax = 55,030 мм; dmin = 55 мм. По ГОСТ 24853-81 для 7-го квалитета и интервала размеров (50-80) мм находим данные для расчета размеров калибров: выбираем Н = 5 мкм, z = 4 мкм, у =3 мкм.
|
Калибр |
Рабочий калибр |
Контрольный калибр |
||||
|
размер |
допуск |
размер |
допуск |
|||
|
Для отверстия |
Проходная сторона новая |
Dmin + z |
± Н/2 |
– |
– |
|
|
Проходная сторона изношенная |
Dmin - y |
– |
– |
– |
||
|
Непроходная сторона |
Dmax |
± H/2 или Hs/2 |
– |
– |
||
Исполнительные размеры (рабочий калибр) калибров для пробки
(ГОСТ 14810-69 и ГОСТ 14748-69) определяют по формулам:
55.000
+ 0,004 + 0,005/2 = 55.0065 мм;
55.000 + 0,004 - 0,005/2 = 55.0015 мм;
55.000 - 0,003 = 54,997 мм;
55,0065 - 0,004 = 55.0025 мм;
55.03 + 0,004/2 = 55.032 мм;
55,03
- 0,004/2 = 55,028 мм;
55,032
- 0,004 = 55,028 мм
Dmin - наименьший предельный размер изделия;
Dmax - наибольший предельный размер изделия;
Н - допуск на изготовление калибров для отверстия;
z - отклонение середины поля допуска на изготовление проходного калибра для отверстия относительно наименьшего предельного размера изделия;
у - допустимый выход размера изношенного проходного калибра для отверстия за границу поля допуска изделия.



Рисунок 3. Калибр-пробка

4.
Расчет предельных размеров и
построение схемы расположения
полей допусков деталей резьбового
соединения 2-18.
Дано: Резьбовое соединение болтом планки и корпуса.
Метрическая резьба М10, шаг резьбы крупный, ГОСТ 9150 – 81.
Цилиндрическая резьба характеризуется следующими основными параметрами: профилем, средним d2(D2), наружным d(D) и внутренним d1(D1) диаметрами, шагом Р, углом профиля α, высотой исходного треугольника Н и др. Профиль и номинальные размеры диаметров, Р, α и Н являются общими для наружной и внутренней резьбы.
По ГОСТ 9150-81 установим следующие параметры резьбы (табл. 4.1):
d (D) – наружный и внутренний диаметр резьбы;
d1 (D1) – внутренние диаметры болта и гайки;
d2 (D2) – средние диаметры болта и гайки;
Р – шаг резьбы;
α – угол профиля;
Н – высота исходного треугольника.
Автор выбрал мелкий шаг резьбы Р = 1,25 [Т2. стр. 142] для резьбы диаметром 10 т.к. резьбы с мелким шагом более прочные.
Таблица 5.1 - Параметры резьбового соединения