Материал: 2464

Внимание! Если размещение файла нарушает Ваши авторские права, то обязательно сообщите нам

nti

t

в* tот*

,

(4.7)

t

в tот

здесь tв*, tот* – средние температуры внутреннего и наружного воздуха для данного помещения, °С; tв, tот – то же, что в формуле (4.2); Кобщ – общ й коэфф ц ент теплопередачи здания, Вт/(м2·°С),

1

 

 

 

Афi

 

 

 

 

 

 

 

 

 

 

;

(4.8)

 

 

 

 

Кобщ = Асум nti

Rфi

 

н

 

 

оi

 

 

 

Ккомп – коэфф ц ент компактности здания, м-1,

 

 

Ккомп

сум

 

 

 

 

 

н

 

;

 

 

(4.9)

Vот

 

 

 

Ансум – сумма площадей по внутреннему обмеру всех наружных ограждений теплозащитной о олочки здания, м2.

Совокупность фрагментов теплозащитной оболочки здания, характеристики которых используются в формуле (4.6), должна полностью замыкать оболочку отапливаемой части здания.

Удельная теплозащитная характеристика здания kоб, Вт/(м3·°С), должна быть не больше нормируемого значения kобтр, Вт/(м3·°С):

kоб ≤ kобтр.

 

Пример расчета №4

 

Всоответствииспримеромрасчета№1ГСОП=6285,6°

сут/год.

Отапливаемый объем здания Vот , м2,определяем как

 

СибАДИ

Vот = l·b·h ,

(4.10)

где l,b,h – длина, ширина и высота отапливаемого объема здания соответственно, l = 8,6 м; b = 9,0 м; h = 5,7 м;

Vот = 8,6 ∙ 9,0 ∙ 5,7 = 441,18 м3

56

Так как значения ГСОП и Vот имеют промежуточные значения, то kобтр рассчитываем в соответствии с примечанием по формуле (5.5) работы [3].

 

 

 

 

 

 

 

 

0,16

10

 

 

 

 

 

 

 

 

 

 

 

 

 

 

 

 

 

СибАДИ

 

kобтр

=

 

 

 

 

 

 

 

Vот

;

(4.11)

 

 

 

 

 

0,00013 ГСОП 0,61

 

 

 

0,16

 

 

10

 

 

 

 

 

 

 

 

 

 

 

 

 

kобтр =

 

441,18

 

 

0,636

0,446 Вт/(м2·°С)

 

0,00013 6285,6 0,61

1,427

 

 

 

 

 

или по формуле

 

 

 

 

 

 

 

 

 

 

 

 

 

 

 

 

 

 

 

 

kобтр

=

8,5

 

 

;

 

 

 

(4.12)

 

 

 

 

 

 

 

 

 

ГСОП

 

 

 

 

 

 

kобтр

 

=

 

8,5

 

 

0,107 Вт/(м3·°С).

 

 

6285,6

 

 

 

 

 

 

 

 

 

 

 

 

 

 

Так как значение kобтр

, определенного по формуле (4.11), больше,

чем по формуле (4.12), принимаем значение kобтр ,

определенного по

формуле (4.11), т.е. kобтр = 0,446 Вт/(м3·°С).

Далее находим удельную теплозащитную характеристику здания kоб, Вт/(м3·°С). Для этого определяем площадь соответствующего фрагмента теплозащитной оболочки здания для чердачного перекрытия, стен окон Аф,i , м2:

Аф,пок = 8,6∙9,0=77,4 м2; ф,ок = 0,6∙1,5∙2+1,5∙1,5∙7+2,1∙1,5∙2=1,8+15,75+6,3=23,85 м2;

Аф,ст = (5,7∙9,0∙2+5,7∙9,4∙2) – 23,85=209,76 – 23,85=185,91 м2.

Значение коэффициента n принимаем равным 1, условно считаем, чтотемпература внутреннеговоздуха tв во всех помещенияходинакова.

Удельная теплозащитная характеристика здания kоб, Вт/(м3·°С), рассчитывается по формуле (4.6):

57

kобтр

 

1

 

 

77,4

 

23,85

 

185,91

 

0,225 Вт/(м3·°С).

=

 

 

1

 

1

 

1

 

 

 

 

441,18

 

0,65

3,97

 

 

 

 

4,91

 

 

 

 

огласно комплексномутребованию

СибАДИkоб = 0,225 Вт/(м3·°С) < kтр = 0,438Вт/(м3·°С).

об

Услов е выполнено.

Контрольные вопросы и задания

1.Какова цель теплотехнического расчета ограждающих конструкций?

2.В соответств с тре ованиями каких нормативных документов выполняется теплотехнический расчет ограждающих конструкций здан й?

3.Как е стро тельные материалы рекомендуется использовать в качестве утеплителя стен чердачного перекрытия?

4.По какой формуле определяется сопротивление теплопередачи теплотехнически однородных однослойных или многослойных ограждающих конструкций с параллельными слоями?

5.Что учитывает коэффициент теплотехнической однородности при определении приведенного сопротивления теплопередачи неоднородных ограждающих конструкций?

5. РАЗРАБОТКА АРХИТЕКТУРНО-КОНСТРУКТ ВНЫХ ЧЕРТЕЖЕЙ ЗДАНИЯ

Лист для выполнения архитектурно-конструктивных чертежей здания должен иметь рамку, линии которой отстоят от краев с трех сторон на 5 мм, а слева на 20 мм. В нижнем углу листа располагается основная надпись размером 185 55 мм (по рис. II.1 работы [19]).

Для равномерного заполнения листа предварительно на нем намечают расположение отдельных чертежей с учетом масштаба и необходимых мест для выносных, размерных линий и пояснительных надписей. Размеры на всех чертежах указывают в миллиметрах, высотные отметки – в метрах. Отметки выше уровня чистого пола пер-

58

вого этажа (отметка 0.000) проставляют со знаком «плюс», ниже – со знаком «минус». Окончательное оформление чертежей выполняют в соответствии с требованиями работ [10, 11, 19, 20, 21].

СибАДИПланы этажей. План этажа – это проекция горизонтального сечения здания на уровне оконных проемов (рис. 5.1).

Рис. 5.1. Схема образования плана здания

На плане здания показывают осевые линии, наружные и внутренние стены, оконные дверные проемы, лестничные марши, а также санитарно-техническое оборудование, прорисовываются входные тамбуры, ступени лестниц и т.п. На плане показывают двери и их открывание. Условное обозначение оборудования при выполнении планов этажей применяется в соответствии с табл. Х.1, Х.3, Х.4, Х.6 ра-

боты [19].

59

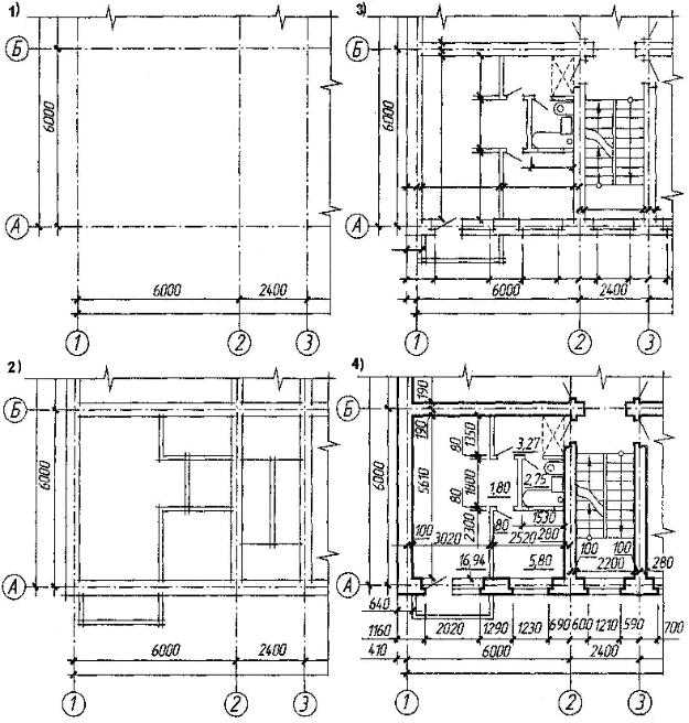
СибАДИРис. 5.2. Последовательность вычерчивания плана здания

Последовательность вычерчивания плана здания:

1-й этап. Вычерчивание плана начинают с нанесения координационных осей здания, продольных и поперечных для несущих и самонесущих наружных и внутренних стен здания. Эти оси являются условными геометрическими линиями, которые в отдельных случаях могут не совпадать с осями симметрии.

Координационные оси здания наносят штрихпунктирными линиями с длинными штрихами (толщиной S/3), обозначают марками в кружках диаметром 8 мм. Продольные оси маркируют буквами

60